Etagenwohnung in Binzen

Aufzug
Balkon/­Terrasse
Gäste WC
Keller
Garage/­Stellplatz

RESERVIERT: Erstbezug: wohngesunder Holzneubau

Anfragen bisher

Premium

Meine Chancen

Premium

Fairer Preis

Premium

1.250 €

Kaltmiete

76,77 m²

3 Zi.

Grundriss

79589 Binzen

Gewerblicher Anbieter

Fischer eG Hausverwaltung und Immobilienvermittlung
Hinter der Eich Straße 6a
79597 Schallbach

Details

Zimmerzahl
3
Wohnungstyp
Etagenwohnung
Bezugsfrei ab
01.04.2026
Anzahl Garage/ Stellplatz
1
Objektzustand
Erstbezug
Baujahr
2026

Kosten

Kaltmiete
1.250 €
Nebenkosten
230 €
Kaution
3.750 €
Was kostet dein Umzug?

Stellplätze

Stellplatztyp
Freiplatz
Anzahl
1
Miete
30 €

Objektbeschreibung

RESERVIERT


Wir vermieten im Kundenauftrag eine neue, sehr helle und komfortable Wohnung im 1. Obergeschoss mit überdachtem West-Balkon. Es handelt sich um einen Neubau mit Erstbezug mit Lift.


Das Objekt wird als "Klimafreundlicher Neubau (KFN) in KfW-40 Standard mit QNG (Qualitätssiegel nachhaltiges Gebäude)" erstellt und entspricht den neusten energetischen Anforderungen für ein gesundes und energiesparendes Wohnen. Die Wohnanlage besteht aus 15 Eigentumswohnungen verteilt auf 2 Hauseingänge, jeweils mit Lift. Alle Wohnungen sind stufenlos zu erreichen.


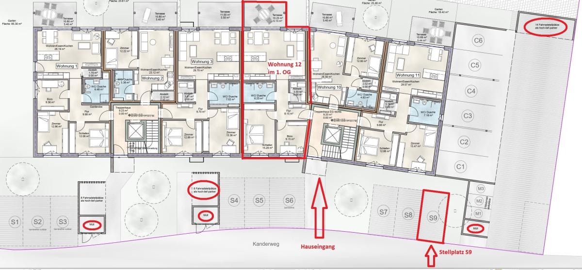
Die Wohnung Nr. 12 im 1. Obergeschoss verfügt über einen sehr ansprechenden Grundriss:


Helles Wohn- und Esszimmer mit offener Küche.
Komfortable Hebe-Schiebetüre zum großen sonnigen und überdachten Balkon Richtung West.
Helles Schlafzimmer, freundliches und kompaktes Büro.
Duschbad (flache Dusche mit Glasabtrennung, Waschbecken, WC, innen liegend).
Separates Gäste-WC mit Waschmaschinen- und Trockneranschluss, innen liegend.


Die Wohnung hat eine lichte Raumhöhe von ca. 2,50 m – dadurch wirkt die Wohnung überaus großzügig und luftig und vermittelt ein tolles Wohngefühl.


Telefon/Internet und TV kann über Glasfaser bezogen werden.


Zur Wohnung gehören ein Kellerraum sowie ein Stellplatz vor dem Haus. Ebenso gibt es abschließbare Häuschen zum Abstellen der Fahrräder.


Der Mieter bringt seine eigene Küche mit.


Miet-Konditionen:
Euro 1.250,00 Kaltmiete



  • Euro 30,00 Außen-Stellplatz

  • Euro 230,00 Nebenkostenvorauszahlung
    = Euro 1.510,00 mtl. Gesamtmiete


Mieterhöhung alle 2 Jahre um Euro 25,00
Mindestmietzeit: 3 Jahre
Kaution: 3 Kaltmieten = Euro 3.750,00
Vermietung nur an max. 2 Personen mit festem eigenem Einkommen.
Mietbeginn: 01.04.2026
Keine Haustiere: Hunde/Katzen


Da es sich um einen Neubau handelt und es bei den Nebenkosen keine Vergleichszahlen gibt, können sich die Vorauszahlungen der Nebenkosten erhöhen oder verringern. Hausmeister und Hausverwaltung sind vorhanden; die Treppenhausreinigung wird erledigt.


Eine Nutzung von eigens erzeugter Energie der PV-Anlage wird den Bewohnern zu attraktiven Preisen angeboten: Die Tarifierung (Stand heute) würde folgendermaßen aussehen:
Grundpreis 14,90 €/Monat
PV-Strom 24,29 ct./kWh
Reststrom 26,99 ct./kWh
Falls Sie dieses Angebot nutzen möchten, kommt bei den Mietkosten eine zusätzliche Stromvorauszahlung hinzu.


Bausubstanz & Energieausweis

Objektzustand
Erstbezug
Heizungsart
Fußbodenheizung
Befeuerung
Wärmepumpe
Energieausweis
Laut Gesetz nicht erforderlich

Ausstattung

Top-Ausstattung:



  • geölter Eiche-Parkettboden

  • Wohnraumlüftung mit Wärmerückgewinnung

  • Heizung über Wärmepumpe in Verbindung mit Fußbodenheizung mit Einzelraumsteuerung

  • 3-fach verglaste Fenster mit erhöhtem Einbruchschutz

  • Innenwände mit Edelputz in weiß mit einer Körnung von 1mm

  • Hebe-Schiebetüre zum großen überdachten West-Balkon

  • Balkon mit Außensteckdose


  •   Balkonbelag mit barfußechter, hydrogehobelter Thermokiefer.


  • elektrisch bedienbare Raffstoren an allen Fenstern

  • Gegensprechanlage mit Video

  • Lift


Lagebeschreibung

Schräg gegenüber des Wohnhauses befindet sich der HIEBER Markt (Edeka), hier bekommen Sie sogar auch sonntags frische Brötchen. Die Buslinie 55 fährt über Haltigen und Weil am Rhein direkt nach Basel; ebenso kommen Sie per Bus nach Lörrach oder ins Kandertal.
Dank der guten Infrastruktur lässt es sich hier wunderbar entspannt leben. Binzen bietet neben guten Einkaufsmöglichkeiten für den täglichen Bedarf auch eine sehr gute Gastronomie, Ärzte, Apotheke, Banken, Kindergärten und Grundschule sowie mehr als 20 Vereine.
Binzen liegt im schönen Dreiländereck von Deutschland, der Schweiz und Frankreich an den Südwestausläufern des Schwarzwaldes zwischen Weinbergen und Wäldern. Die eigenständige Gemeinde mit ca. 3.000 Einwohnern liegt am Ausgang des Kandertals und ist nur etwa 7km von der Schweizer Grenze entfernt. Durch die nahegelegene A5 und A98 sowie die Rheintalstrecke der Bundesbahn ist Binzen gut mit den Hauptverkehrsadern verbunden.


Sonstige Angaben

Haben wir Ihr Interesse geweckt? Gerne erwarten wir Ihre Bewerbung ausschließlich über das vollständig ausgefüllte Kontaktformular. Wir freuen uns auf Ihre Anfrage.


Wohnung finden so einfach wie möglich - das ist unsere Mission!

Kostenlose Basic Features

0 € monatlich


  • Individuelles Such-Profil anlegen
  • Suchaufträge speichern
  • One-Klick Kontaktaufnahme

alles anzeigen

Jetzt kostenlos anmelden

Premium Features

19,99 € monatlich


  • Alle kostenlosen Features
  • Smart-Alarm per Whatsapp
  • Deine Chancen checken
  • Wohngegend analysieren

alles anzeigen

Jetzt Premium freischalten

Gewerblicher Anbieter

Fischer eG Hausverwaltung und Immobilienvermittlung
Hinter der Eich Straße 6a
79597 Schallbach

Wohnglück-ID:
Objekt-Nr.:
WGL-949965
0517