Büro / Praxen in Hoppegarten (Dahlwitz-Hoppegarten)

Einbauküche
Garage/­Stellplatz

30-150m² Büroräume in beliebtem Gewerbegebiet in Hoppegarten

Anfragen bisher

Premium

Meine Chancen

Premium

Fairer Preis

Premium

450 €

Kaltmiete

15366 Hoppegarten

Gewerblicher Anbieter

ohne-makler.net
Humboldtstraße 25 A
21509 Glinde

Details

Bürofläche
30 m²
Typ der Gewerbeimmobilie
Büro / Praxen
Bezugsfrei ab
nach Absprache
Anzahl Garage/ Stellplatz
1

Kosten

Kaltmiete
450 €
Nebenkosten
90 €
Kaution
1.350 €
Was kostet dein Umzug?

Stellplätze

Stellplatztyp
Freiplatz
Anzahl
2

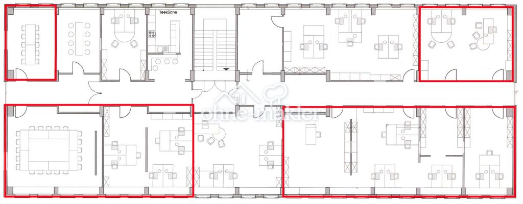
Objektbeschreibung

Herzlich willkommen in ihrer neuen Bürofläche im Zentrum des Gewerbeparks von Hoppegarten!


Der Grundriss des Büros ist optimal geschnitten und bietet ausreichend viel Platz für alle Büro Möbel und Akten, die sich über die Jahre so angesammelt haben.


Die Toiletten sind gepflegt und die Küche lädt zum gemeinsamen Mittagessen ein. Das Büro bietet somit alle Annehmlichkeiten, die Sie sich wünschen können.


Wir haben mehrere freie Flächen im Gebäude, welche flexibel angemietet werden können.


Bausubstanz & Energieausweis

Heizungsart
Sonstige

Ausstattung

Einbauküche, Gäste-WC, Teppichboden


Bemerkungen:
+++ Moderner Bürostandard
+++ Flexible Raumaufteilung möglich
+++ Pkw-Stellplätze vorhanden


Lagebeschreibung

Der Gewerbe- und Logistikpark liegt im Bundesland Brandenburg ca. 500 m vor der östlichen Stadtgrenze Berlins. Er befindet sich südlich der S-Bahnstationen "Birkenstein" und "Mahlsdorf" und erstreckt sich parallel des Neuen Hönower Weges bis zur Industriestraße. Der Gewerbepark ist Bestandteil des Gesamtgewerbegebietes der Gemeinde Hoppegarten. Zu den hier ansässigen Eigennutzern gehören Unternehmen wie Clinton Jeans, Contitec, STRABAG, BMTI, Glasfischer Glastechnik, CDC IKEA, Amazon Logistics, Hellweg Baumarkt, die Fa. LCD Logistikcenter und United Parcel Service. Die Entfernung zum Flughafen BER Berlin-Brandenburg beträgt nur ca. 20 km. Der Gewerbe- und Logistikpark ist sehr gut an das Straßennetz und den Personennahverkehr angeschlossen: Straßenverbindungen in und aus allen Richtungen über den Autobahnring A10 und die Bundesstraße B1/B5 sowie S-Bahn- und Busverbindungen.


Sonstige Angaben

Energieausweis nicht vorhanden


Machen Sie sich selbst ein Bild von den vielfältigen Möglichkeiten dieser Gewerbeflächen. Wir freuen uns, Ihnen die passenden Einheiten im persönlichen Gespräch und bei einer Besichtigung näher vorzustellen!


Impressum:


Vasto GmbH
Lilienthalstraße 3D
12529 Schönefeld


Mobil | +49 15568 827189
E-Mail | hk@vasto-immobilien.com
Webseite | www.vasto-immobilien.com


Makleranfragen nicht erwünscht. Nach § 7 UWG sind unaufgeforderte Kontaktaufnahmen durch Makler ohne ausdrückliche Einwilligung des Empfängers verboten!


ohne-makler (OM) ist weder Anbieter noch Vermittler der Immobilie. OM betreibt eine Plattform für Immobilieneigentümer, die unter anderem die gleichzeitige Veröffentlichung einzelner Inserate auf mehreren Immobilienportalen ermöglicht. Die Inhalte dieser Inserate werden ausschließlich von Dritten verantwortet. Für die Richtigkeit, Vollständigkeit oder Rechtmäßigkeit der Angaben übernimmt OM keine Haftung. Hinweise auf mögliche Rechtsverstöße können jederzeit gemeldet werden und werden nach Prüfung umgehend bearbeitet.


Wohnung finden so einfach wie möglich - das ist unsere Mission!

Kostenlose Basic Features

0 € monatlich


  • Individuelles Such-Profil anlegen
  • Suchaufträge speichern
  • One-Klick Kontaktaufnahme

alles anzeigen

Jetzt kostenlos anmelden

Premium Features

19,99 € monatlich


  • Alle kostenlosen Features
  • Smart-Alarm per Whatsapp
  • Deine Chancen checken
  • Wohngegend analysieren

alles anzeigen

Jetzt Premium freischalten

Gewerblicher Anbieter

ohne-makler.net
Humboldtstraße 25 A
21509 Glinde

Wohnglück-ID:
Objekt-Nr.:
WGL-910871
289149