Wohnung in Berlin (Charlottenburg)

Balkon/­Terrasse
Keller
möbliert
Einbauküche

Lichtdurchflutete Wohnung mit Loft-Flair im Dachgeschoss nähe Lietzensee

Anfragen bisher

Premium

Meine Chancen

Premium

Fairer Preis

Premium

1.800 €

Kaltmiete

112 m²

1,5 Zi.

5. OG

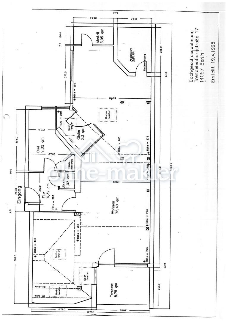
Grundriss

14057 Berlin

Gewerblicher Anbieter

ohne-makler.net
Humboldtstraße 25 A
21509 Glinde

Details

Zimmerzahl
1,5
Immobilienart
Wohnung
Etage, Geschoss
5
Etagenzahl
1
Bezugsfrei ab
16.03.2026
Objektzustand
Gepflegt
Baujahr
1900

Kosten

Kaltmiete
1.800 €
Kaution
2.000 €
Was kostet dein Umzug?

Objektbeschreibung

Es handelt sich um eine tolle 112qm große Wohnung in einem gepflegten und ruhigen Altbau in Charlottenburg. Vom Balkon aus hat man einen schönen und freien Blick Richtung Westen. Wohnzimmer und Küche wurden im Sommer 2012 komplett und mit viel Liebe zum Detail renoviert und danach für 12 Jahre an eine Einzelperson vermietet. Nach Auszug der Mieterin wurden die Wände neu gemalert.
Die Wohnung ist sehr interessant geschnitten. Formal sage ich: Sie hat 1,5 Zimmer. Tatsächlich verteilen sich die 1,5 Zimmer auf:
-einen sehr großen Raum
-einen kleinen Raum, quasi ausgefüllt mit einem 1,6m breitem Bett
-einen kleinen fensterlosen Raum nutzbar als begehbarer Kleiderschrank
-eine Abstellkammer
Das große Zimmer ließe sich nach Belieben und nach eigener Kreativität weiter unterteilen, wodurch man faktisch 3 bis 4 Zimmer schaffen könnte.


Bausubstanz & Energieausweis

A+

A

B

C

D

E

F

G

H

Objektzustand
Gepflegt
Heizungsart
Etagenheizung
Befeuerung
Fernwärme
Energieausweis
liegt vor
Energieausweistyp
Verbrauchsausweis
Energieverbrauchskennwert
143 kWh/(m²*a)
Energieeffizienzklasse
C

Ausstattung

Balkon, Keller, Vollbad, Einbauküche


Bemerkungen:
-großer Balkon Richtung Westen mit Blick auf den Funkturm mit Tisch und 2 Stühlen
-hochwertiger Parkettboden in der gesamten Wohnung (verlegt im Sommer 2012)
-im Wohnzimmer 4 Regale (eins ist derzeit noch nicht aufgebaut), Sofa, 2 Sofatische, Teppich, großer Esstisch (auf halbe Länge klappbar), Stühle, Schlafsessel, Lampen
-Einbauküche aus Massivholz mit Kühlschrank, Spülmaschine, Herd mit Ceranfeld, Backofen, Dunstabzugshaube, Geschirr, Gläser, Besteck
-großes Badezimmer mit Wanne und Dusche (Fenster ist im Badezimmer vorhanden), Nische mit Waschmaschine und großen Spiegeln
-1,60m breites Bett mit neuem Lattenrost und neuer Matratze; Matratzenschoner, Bettdecke, Kopfkissen, 2 Bezüge (alles neu)
-Schrank im als begehbaren Kleiderschrank genutzten Raum
-Garderobenhaken und Spiegel im Flur
-Regale in der Abstellkammer
Gerne ergänze ich auf Wunsch weitere Möbel bzw. Ausstattungsgegenstände.


Lagebeschreibung

Die Wohnung liegt in Charlottenburg und zwar wenige Gehminuten vom Lietzensee (gute Joggingmöglichkeiten). Am Lietzensee und in der Umgebung gibt es nette Cafés und mehrere Restaurants. Eine leckere französische Bäckerei ist im Erdgeschoss; ein Supermarkt (Edeka) mit Öffnungszeiten bis 23 Uhr, ein chinesischer Supermarkt, eine Textilreinigung und weitere Geschäfte sind 2 Gehminuten entfernt. Auch der Stuttgarter Platz (und seine Umgebung) ist nur wenige Gehminuten entfernt; zahlreiche Restaurants und eine italienische Salumeria sind dort zu finden.
Haltestellen von der BVG sind1 Gehminute entfernt. Von dort aus kommt man mit dem Bus z.B. zum Bhf. Zoologischer Garten in etwa 10 Minuten. U- und S-Bahn sind überdies in Laufnähe der Wohnung.
Infrastruktur (im Umkreis von 5 km):
Apotheke, Lebensmittel-Discount, Allgemeinmediziner, Kindergarten, Grundschule, Öffentliche Verkehrsmittel


Sonstige Angaben

Heizungsart: Etagenheizung
Energieträger: Fernwärme


Garagenstellplätze sind nach eigenen Erfahrungen in der Nachbarschaft erhältlich (zur Miete). Man findet aber auch ansonsten Parkplätze normal "draußen".


Makleranfragen nicht erwünscht. Nach § 7 UWG sind unaufgeforderte Kontaktaufnahmen durch Makler ohne ausdrückliche Einwilligung des Empfängers verboten!


ohne-makler (OM) ist weder Anbieter noch Vermittler der Immobilie. OM betreibt eine Plattform für Immobilieneigentümer, die unter anderem die gleichzeitige Veröffentlichung einzelner Inserate auf mehreren Immobilienportalen ermöglicht. Die Inhalte dieser Inserate werden ausschließlich von Dritten verantwortet. Für die Richtigkeit, Vollständigkeit oder Rechtmäßigkeit der Angaben übernimmt OM keine Haftung. Hinweise auf mögliche Rechtsverstöße können jederzeit gemeldet werden und werden nach Prüfung umgehend bearbeitet.


Wohnung finden so einfach wie möglich - das ist unsere Mission!

Kostenlose Basic Features

0 € monatlich


  • Individuelles Such-Profil anlegen
  • Suchaufträge speichern
  • One-Klick Kontaktaufnahme

alles anzeigen

Jetzt kostenlos anmelden

Premium Features

19,99 € monatlich


  • Alle kostenlosen Features
  • Smart-Alarm per Whatsapp
  • Deine Chancen checken
  • Wohngegend analysieren

alles anzeigen

Jetzt Premium freischalten

Gewerblicher Anbieter

ohne-makler.net
Humboldtstraße 25 A
21509 Glinde

Wohnglück-ID:
Objekt-Nr.:
WGL-892616
375707