Büro / Praxen in Kiel (Altstadt)

Aufzug
barrierefrei
Denkmalschutz
Keller

Bürofläche im einzigartigen Zuckerspeicher - 6. Obergeschoss - ab März 2026

Anfragen bisher

Premium

Meine Chancen

Premium

Fairer Preis

Premium

Haßstraße 13/15
24103 Kiel

Gewerblicher Anbieter

ohne-makler.net
Humboldtstraße 25 A
21509 Glinde

Details

Bürofläche
98 m²
Typ der Gewerbeimmobilie
Büro / Praxen
Etagenzahl
8
Bezugsfrei ab
nach Absprache
Objektzustand
Saniert
Baujahr
1912

Kosten

Was kostet dein Umzug?

Objektbeschreibung

Der Zuckerspeicher in der Kieler Altstadt verbindet historische Architektur mit zeitgemäßer Ausstattung. Nach der umfassenden Kernsanierung entsteht ein repräsentatives Arbeitsumfeld in zentraler Lage. Im Erdgeschoss eröffnet bald ein italienisches Bistro – ideal für Pausen und Meetings.


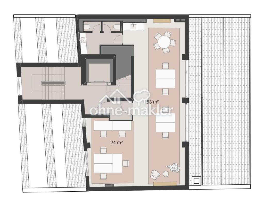
Ihre Fläche im 6. Obergeschoss:


Gesamtfläche: ca. 123 m²
Davon 98 m² exklusive Mietfläche
Bezugsfertig ab März 2026


Gebäude-Highlights:


• Kernsanierte Büro- und Gewerbeflächen
• Fahrradraum und Dusche im Keller
• Optionale Lagerräume im Untergeschoss
• Mitten in der Kieler Altstadt
• Flexible Nutzungsmöglichkeiten
• Zusätzlich im 7. Obergeschoss: anmietbare Konferenz- und Veranstaltungsfläche für Meetings, Workshops oder Präsentationen


Der Umbau wird im Februar 2026 abgeschlossen. Besichtigungen sind bereits jetzt möglich.


Kontaktieren Sie uns für weitere Details und individuelle Lösungen.


Objektzustand: Erstbezug nach Sanierung


Bausubstanz & Energieausweis

Objektzustand
Saniert
Heizungsart
Zentralheizung
Befeuerung
Fernwärme
Energieausweis
liegt vor
Energieausweistyp
Bedarfsausweis

Ausstattung

Keller, Fahrstuhl, Duschbad, Barrierefrei


Sonstige Angaben

Heizungsart: Zentralheizung
Energieträger: Fernwärme


ohne-makler (OM) ist weder Anbieter noch Vermittler der Immobilie. OM betreibt eine Plattform für Immobilieneigentümer, die unter anderem die gleichzeitige Veröffentlichung einzelner Inserate auf mehreren Immobilienportalen ermöglicht. Die Inhalte dieser Inserate werden ausschließlich von Dritten verantwortet. Für die Richtigkeit, Vollständigkeit oder Rechtmäßigkeit der Angaben übernimmt OM keine Haftung. Hinweise auf mögliche Rechtsverstöße können jederzeit gemeldet werden und werden nach Prüfung umgehend bearbeitet.


Wohnung finden so einfach wie möglich - das ist unsere Mission!

Kostenlose Basic Features

0 € monatlich


  • Individuelles Such-Profil anlegen
  • Suchaufträge speichern
  • One-Klick Kontaktaufnahme

alles anzeigen

Jetzt kostenlos anmelden

Premium Features

19,99 € monatlich


  • Alle kostenlosen Features
  • Smart-Alarm per Whatsapp
  • Deine Chancen checken
  • Wohngegend analysieren

alles anzeigen

Jetzt Premium freischalten

Gewerblicher Anbieter

ohne-makler.net
Humboldtstraße 25 A
21509 Glinde

Wohnglück-ID:
Objekt-Nr.:
WGL-892292
412552