Zinshaus / Renditenobjekt in Baden-Baden

derzeit vermietet
Keller

Attraktives MF-Haus Baden-Baden – 22 Wohnungen, hohes Entwicklungspotential, 100 % vermietet

Anfragen bisher

Premium

Meine Chancen

Premium

Fairer Preis

Premium

3.950.000 €

Kaufpreis

1.304 m²

Grundriss

76530 Baden-Baden

Gewerblicher Anbieter

Volksbank pur Immobilien GmbH & Co. KG
Sophienstraße 14
76530 Baden - Baden

Details

Grundstücksfläche
976 m²
Typ der Gewerbeimmobilie
Zinshaus / Renditenobjekt
Etagenzahl
4
Nutzfläche
269 m²
Mieteinnahmen pro Monat
14.768 €
Bezugsfrei ab
sofort
Objektzustand
Saniert
Baujahr
1953

Kosten

Kaufpreis
3.950.000 €
Käuferprovision
3,57 %
Käuferprovision inkl. 19 % MwSt.
Was kostet dein Umzug?

Objektbeschreibung

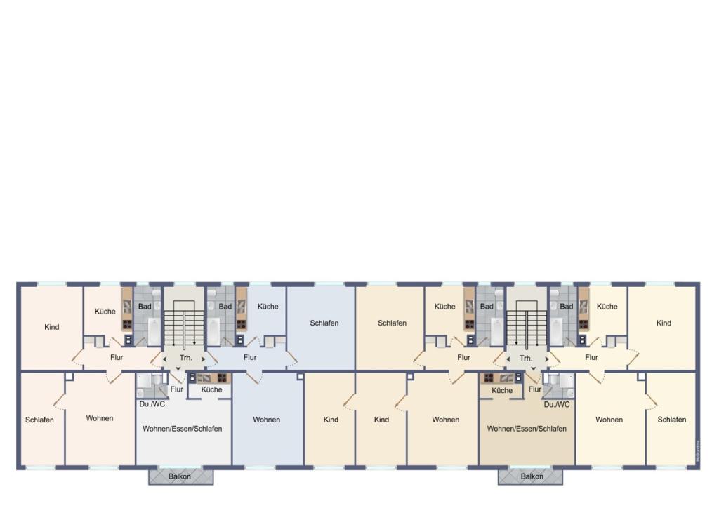
Dieses attraktive und gut gepflegte Mehrfamilienwohnhaus in der begehrten Weststadt von Baden-Baden bietet auf einer Gesamtwohnfläche von ca. 1.304 m² insgesamt 22 Wohneinheiten. Die Immobilie besitzt ein hohes Entwicklungspotential durch den möglichen Ausbau des Dachgeschosses.


Das Gebäude wurde ca. 1953 in solider, massiver Bauweise mit Satteldach errichtet und im Jahr 2006 umfassend generalsaniert. Es ist zu 100% vermietet und erzielt Mieteinnahmen von Netto ca. € 177.220,-- p.a., was für Kapitalanleger eine sehr stabile Einkommensquelle bedeutet.


Eine detaillierte Übersicht über die Mieten pro Wohneinheit sowie eine Renditeberechnung sind auf Anfrage erhältlich.


Die Wohnungen im Mehrfamilienhaus haben eine attraktive Aufteilung, die vom 1-Zimmer-Appartement mit ca. 29 m² bis hin zu großzügigen 2- bis 3-Zimmer-Wohnungen mit einer Größe von ca. 54 m² bis 85 m² reicht. Die Wohnungen sind modern ausgestattet, viele von ihnen verfügen über tageslichtdurchflutete Bäder, die mit modernen Armaturen ausgestattet sind. Einige Wohnungen sind mit einer Küchenzeile und einem Balkon ausgestattet.


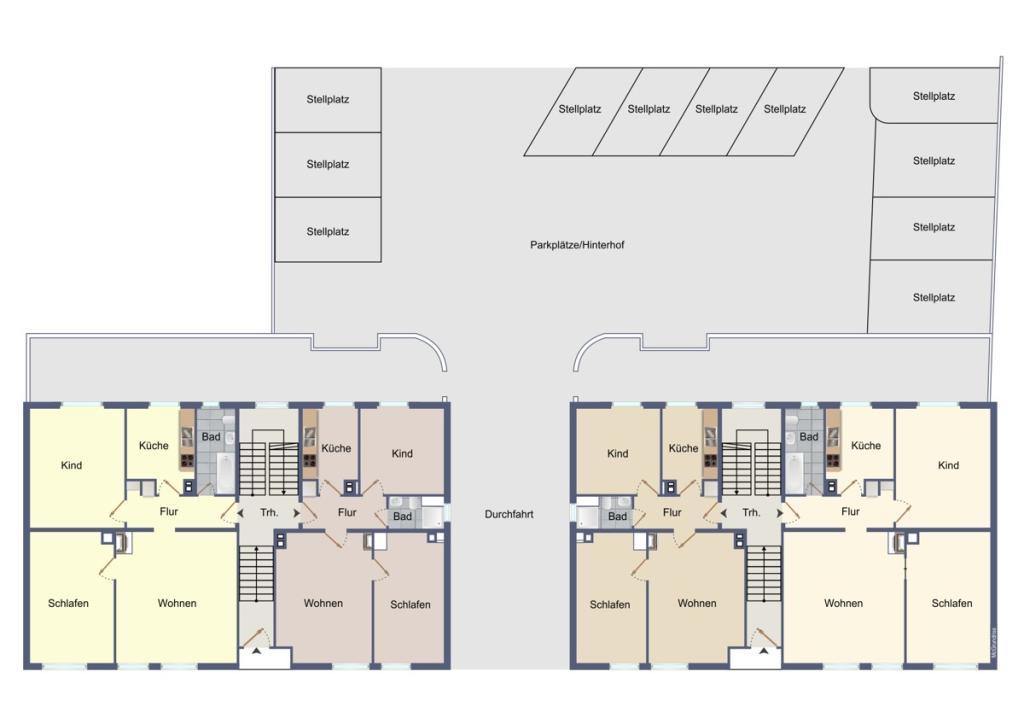
Das Gebäude ist vollständig unterkellert und bietet für jede Wohnung zugeordnete Kellerräume. Nutzfläche insgescamt ca. 268,65 m².


Erweiterungspotential
Ein Ausbau des Dachgeschosses sowie der Anbau Balkone, wäre baurechtlich genehmigungsfähig. Baueingabepläne liegen vor und sind im Angebot enthalten. Bei einer baulichen Umsetzung, wären zusätzlich ca. 400 m² an Wohnfläche und ca. € 50.000,-- p.a. an Miete zu generieren. Eine reizvolle Gelegenheit für Kapitalanleger und Entwickler!


Das Grundstück für beide Häuser umfasst eine Fläche von ca. 956 m². Der rückwärtige Grundstücksbereich ist mit 11 Kfz-Stellplätzen ausgestattet.


Mit einer vollvermieteten Struktur, der Möglichkeit zur Erweiterung durch den geplanten Dachgeschossausbau und dem Anbau Balkone, der attraktiven Standortlage, bietet diese Immobilie eine hervorragende Gelegenheit für langfristige Investititionen.


Bausubstanz & Energieausweis

A+

A

B

C

D

E

F

168 kWh/(m²*a)

G

H

Baujahr
1950
Objektzustand
Saniert
Wesentlicher Energieträger
GAS
Heizungsart
Zentralheizung
Energieausweis
vor 1.5.2014
Energieausweistyp
Bedarfsausweis
Gültig bis
24.08.2023
Energieeffizienzklasse
F
Endenergiebedarf
168 kWh/(m²*a)

Ausstattung

Die Immobilie bietet Ihnen nachfolgende Ausstattung:




  • Massivbauweise, massive Geschossdecken in Beton




  • Satteldach Deckung mit Betondachsteinen, Dachbereich ausbaufähig!




  • Kunststofffenster isolierverglast, Rollläden




  • Massivtreppe , Treppenform, Belag




  • Gaszentralheizung mit zentraler Warmwasseraufbereitung




  • großteils Tageslichtbäder mit Waschtisch, Wanne oder Dusche, WC, Einhandarmaturen, Standard Gegenstände, Farbe: weiß, raumhoch gefliest mit hellen Fliesen




  • TV/Internet Unitymedia, SAT-Anschluss, DSL verfügbar




  • Eingangstüre als Holz/Glaselement, Innentüren als Holztüren in Buche weiß




  • Bodenbeläge in Fliesen, Laminat




  • Tapeten




  • Sanierungs- und Modernisierungsmaßnahmen im Jahre 2006:




  • 6 Wohnungen wurden mit einer Küchenzeile (EBK) versehen




  • Sanitär, Elektro, Bodenbeläge, Malerarbeiten
    . Erneuerung aller Steigleitungen (Heizung/Wasser)




  • Erneuerung der Fenster




  • Installation einer neuen Heizungsanlage




Extras:




  • Kellerboden neu ausgerichtet (Ausgleich durch Estrich und dann gestrichen)




  • neuer Anstrich Treppenhaus einschl. Geländer




  • Einfriedigung, Zufahrt/Hof über funkgesteuertes Hoftor, rückwärtiger Grundstücksbereich Parkfläche für Pkw




Die obige Ausstattungsbeschreibung bezieht sich auf dominierende Merkmale.


Sonstige Angaben

Angaben und Haftungsvorbehalt: Alle Angaben in diesem Exposé wurden mit großer Sorgfalt zusammengestellt und auf ihre Korrektheit überprüft. Eine Haftung für Irrtümer (z. B. bei Flächen- / Maßangaben) wird dennoch ausgeschlossen. Im Exposé enthaltene Illustrationen und Fotos sind teilweise als Vorschläge, Entwürfe und Muster zu verstehen und nicht als wesentliche Elemente im Sinne der Baubeschreibung. Sie repräsentieren den Planungsstand zum Zeitpunkt der Drucklegung. Grundrissillustrationen können z. B. Sonderausstattungen enthalten. Maßgebend für Erwerber ist die Baubeschreibung sowie die Objektbeschreibung in der Teilungserklärung.


Gender-Hinweis: Die in diesem Exposé, auf unserer Webseite sowie in unseren Social Media-Kanälen gewählte männliche Form bezieht sich stets gleichermaßen auf weibliche, männliche und diverse Personen. Auf geschlechterspezifische Schreibweise und Mehrfachbezeichnungen wird ausschließlich zum Zweck der besseren Lesbarkeit verzichtet. Sämtliche personenbezogene Bezeichnungen in all unseren Publikationen sind somit geschlechtsneutral zu verstehen.


Wohnung finden so einfach wie möglich - das ist unsere Mission!

Kostenlose Basic Features

0 € monatlich


  • Individuelles Such-Profil anlegen
  • Suchaufträge speichern
  • One-Klick Kontaktaufnahme

alles anzeigen

Jetzt kostenlos anmelden

Premium Features

19,99 € monatlich


  • Alle kostenlosen Features
  • Smart-Alarm per Whatsapp
  • Deine Chancen checken
  • Wohngegend analysieren

alles anzeigen

Jetzt Premium freischalten

Gewerblicher Anbieter

Volksbank pur Immobilien GmbH & Co. KG
Sophienstraße 14
76530 Baden - Baden

Wohnglück-ID:
Objekt-Nr.:
WGL-890994
106821