Wohnung in München (Harlaching)

Aufzug
Balkon/­Terrasse
Gäste WC
Keller
Einbauküche
Garage/­Stellplatz

Großzügige 3,5-Zimmer Wohnung in bester Lage von Harlaching (Isar-Hochufer)

Anfragen bisher

Premium

Meine Chancen

Premium

Fairer Preis

Premium

895.000 €

Kaufpreis

130,75 m²

3,5 Zi.

Grundriss

81545 München

Gewerblicher Anbieter

RealWert Bayern Immobilien- und Finanzierungsvermittlungs GmbH
Würmstraße 4
82319 Starnberg

Details

Zimmerzahl
3,5
Immobilienart
Wohnung
Anzahl Badezimmer
1
Anzahl Garage/ Stellplatz
1
Baujahr
1968

Kosten

Kaufpreis
895.000 €
Käuferprovision
2 % Käuferprovision inkl. MwSt.
2 % Käuferprovision inkl. MwSt.
Was kostet dein Umzug?

Stellplätze

Stellplatztyp
Tiefgarage
Anzahl
1

Objektbeschreibung

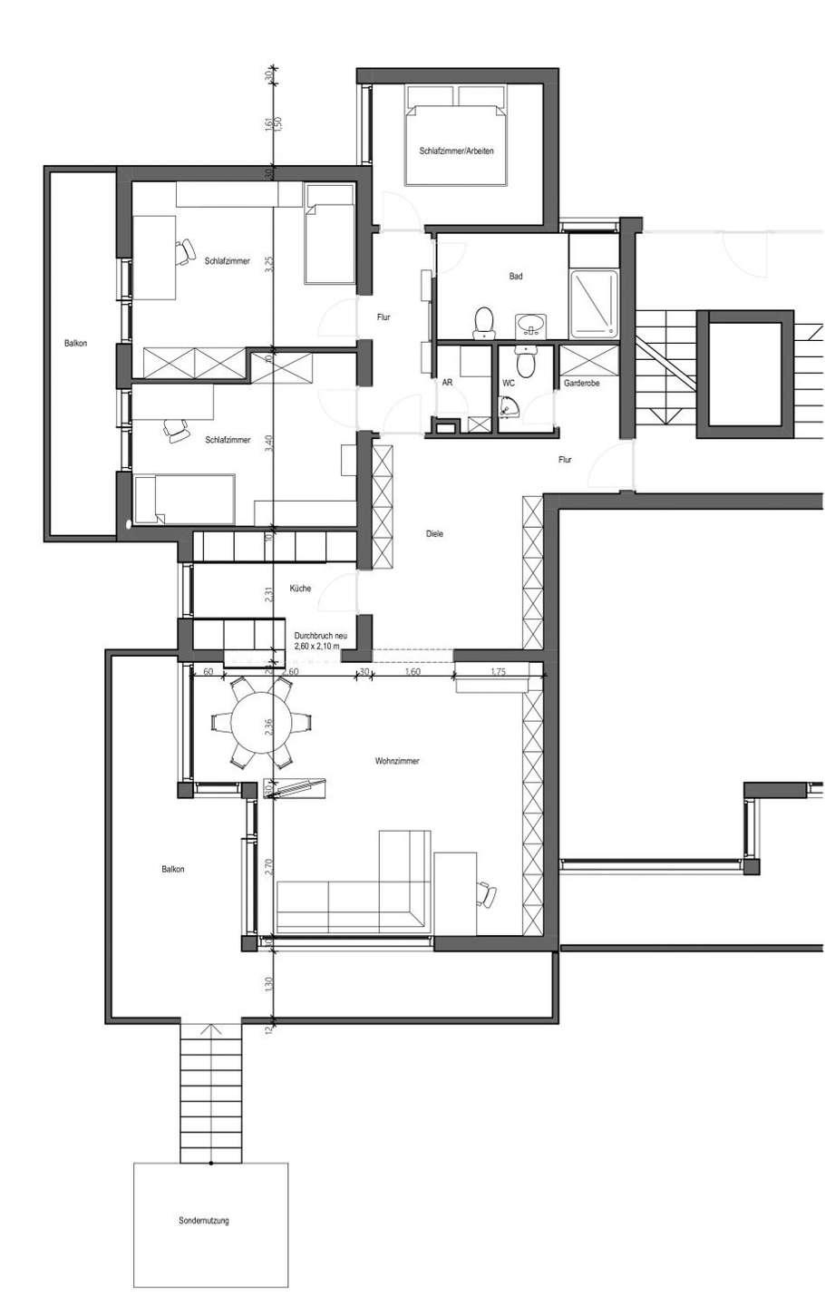
Diese Eigentumswohnung befindet sich in einer ruhigen und begehrten Wohngegend in München-Harlaching (Hochleite), einem der charmantesten Stadtteile Münchens. Die Wohnung erstreckt sich über großzügige ca. 130,75 m² und bietet somit ausreichend Platz für Ihre individuellen Bedürfnisse. Mit 3,5 gut geschnittenen Zimmern, einer modernen Küche, einem Badezimmer, einem Gäste-WC und einem praktischen Abstellraum verfügt diese Wohnung über eine äußerst funktionale Raumaufteilung.


Die Wohnung überzeugt durch ihre Großzügigkeit und hochwertige Ausstattung. Ein Highlight sind die beiden Balkone, einer davon mit ca. 23 m² und optimaler Ausrichtung nach Süd-West, der Ihnen ein idyllisches Plätzchen für entspannte Sonnenstunden bis zum Abend im Freien bietet. Eine Besonderheit: vom Balkon führt eine Treppe nach unten auf die sonnige Terrasse (Sondernutzungsrecht), umgeben von Grünflächen.


Die moderne Einbauküche in anthrazit/schwarz ist nicht nur optisch ansprechend, sondern auch funktional und mit Marken Elektrogeräten (Miele & Neff) ausgestattet.


Der Massivholz Parkettfußboden in Wohnzimmer, Diele und den Schlafzimmern verleiht eine warme Atmosphäre. Das Badezimmer ist praktisch und stilvoll gestaltet mit großflächigen Marmorplatten im Bereich der großen Dusche.


Das Baujahr der Wohnanlage aus dem Jahr 1968 zeugt von einer soliden Bausubstanz. Die Wohnanlage wurde in massiver Bauweise errichtet und präsentiert sich äußerst gepflegt. Hier können Sie in bester Lage von Harlaching leben und von der hervorragenden Infrastruktur profitieren.


Zur Wohnung gehören zudem ein Tiefgarageneinzelstellplatz sowie ein gemauertes Kellerabteil mit Fenster und Strom mit ca. 9,6 m². Der Tiefgaragenstellplatz ist im Kaufpreis inklusive!


Die ruhige Lage, hochwertige Ausstattung und die Nähe zur Natur machen diese Immobilie zu einem echten Juwel.
Die Wohnung ist bezugsfrei.


Bausubstanz & Energieausweis

A+

A

B

C

D

E

F

G

H

Wesentlicher Energieträger
Öl
Heizungsart
Zentralheizung
Befeuerung
Ölheizung
Energieausweistyp
Verbrauchsausweis
Ausstellungsdatum
04.04.2018
Gültig bis
03.04.2028
Energieverbrauchskennwert
183 kWh/(m²*a)
Energieeffizienzklasse
F
Energieverbrauch für Warmwasser enthalten
Ja

Ausstattung


  • 3,5 Zimmer Wohnung mit ca. 130,75 m² lt. Plan

  • Großzügige Diele mit sehr guten Stellmöglichkeiten für Möbel

  • Einbauküche (Farbe anthrazit/schwarz) mit Multiplex Arbeitsplatte und hochwertigen Elektrogeräten von Miele & Neff (Wert ca. 15.000 €)

  • Nachträglicher, fachmännischer Durchbruch von Küche zum Wohnzimmer

  • Separates Gäste-WC

  • Bad mit großer Dusche, abgehängten Decken mit Spots und Handtuchheizkörper

  • Zeitlose, großformatige Marmorplatten im Bereich der Dusche

  • Abstellraum mit Anschluss für Trockner, Waschmaschine und Tiefkühltruhe

  • Helles Wohnzimmer mit großen Fensterfronten

  • Eichenholz-Stabparkett in Diele, Wohn- und Schlafzimmern

  • 2 Balkone in Süd- und Westausrichtung

  • Ein Balkon mit Außentreppe zur Terrasse im Sondernutzungsrecht (Garten im Gemeinschaftseigentum)

  • Einzelstellplatz in der Tiefgarage (Nr. 55)

  • Gemauertes Kellerabteil mit Fenster und Strom (ca. 9,6 m²)

  • Im Haus gibt es einen Waschkeller und Trockenraum

  • Gepflegtes Gemeinschaftseigentum

  • Bezugsfrei


Lagebeschreibung

Die Wohnung befindet sich in einer ruhigen Wohngegend in einer 30er Zone in zweiter Reihe zur Isar. Zu Fuß sind es nur ca. 250 m zum Isar-Hochufer und italienischem Restaurant. Eine sehr schöne Umgebung zum Wohnen, auch ideal für Familien mit Kindern.


Harlaching, der 18. Stadtbezirk im Südosten Münchens, ist eine der begehrtesten und nobelsten Wohngegenden der Isarmetropole. Harlaching liegt auf einer Isarhochterrasse, im Westen bildet das östliche Isarufer die natürliche Grenze, im Südosten liegt der weitläufige Perlacher Forst. Im Süden liegt die Nobelgegend Grünwald. Im Norden und Osten schließen sich die ehemaligen Arbeiterbezirke Ober- und Untergiesing an. In erster Linie ist Harlaching eine typische Wohngegend, mit noblen Villenvierteln in Alt- Harlaching und Menterschwaige und genossenschaftlichen Arbeitersiedlungen in Neuharlaching.


Eine ausgewogene Mischung aus alteingesessenen Harlachingern, jungen Familien und hoch qualifizierten Berufstätigen – besonders der nahen Kliniken – ist hier zu Hause. Der Stadtteil ist von der Linie U1 mit drei Stationen erschlossen, in maximal 8 Minuten erreicht man den Hauptbahnhof. Zwei Trambahnlinien führen durch den gesamten Stadtteil bis nach Grünwald, außerdem verkehren verschiedene Buslinien. Besonders beliebt ist der Stadtteil bei Ausflüglern und Fußballfans: das Trainingsgelände des FC Bayern München und der Münchener Löwen befindet sich in der Säbener- bzw. Grünwalderstraße. Aber auch die Kleinsten zieht es magisch nach Harlaching, denn mitten in den Isarauen liegt der Tierpark Hellabrunn.


Die weitläufigen Isarauen laden Jung und Alt zu jeder Jahreszeit ein. Vom Ortskern aus ist die Münchner Innenstadt mit ihren Fach- und Hochschulen, vielfältigen Arbeitsangeboten, Kunst- und Kulturerlebnissen und Einkaufsmöglichkeiten binnen kurzer Zeit erreichbar.


Sonstige Angaben

Kaufpreisaufstellung:
Kaufpreis Wohnung: 875.000,- €
Kaufpreis TG-Stellplatz: 20.000,- €
Gesamtkaufpreis: 895.000,- € (zzgl. 2 % Käuferprovision inkl. MwSt.)


Wohnung finden so einfach wie möglich - das ist unsere Mission!

Kostenlose Basic Features

0 € monatlich


  • Individuelles Such-Profil anlegen
  • Suchaufträge speichern
  • One-Klick Kontaktaufnahme

alles anzeigen

Jetzt kostenlos anmelden

Premium Features

19,99 € monatlich


  • Alle kostenlosen Features
  • Smart-Alarm per Whatsapp
  • Deine Chancen checken
  • Wohngegend analysieren

alles anzeigen

Jetzt Premium freischalten

Gewerblicher Anbieter

RealWert Bayern Immobilien- und Finanzierungsvermittlungs GmbH
Würmstraße 4
82319 Starnberg

Wohnglück-ID:
Objekt-Nr.:
WGL-890184
1650