Etagenwohnung in Balingen (Gemarkung Engstlatt)

Aufzug
Balkon/­Terrasse
Gäste WC
Keller
Garage/­Stellplatz

Naturnah und lichterfüllt Leben im Holzhaus

Anfragen bisher

Premium

Meine Chancen

Premium

Fairer Preis

Premium

399.500 €

Kaufpreis

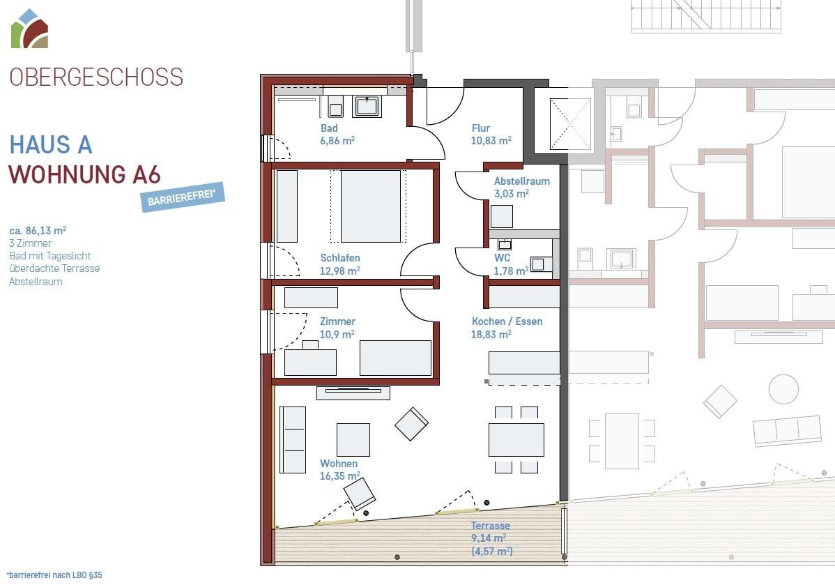
86,13 m²

3 Zi.

72336 Balingen

Gewerblicher Anbieter

Volksbank Zollernalb eG
Friedrichstr. 72
72336 Balingen

Details

Zimmerzahl
3
Wohnungstyp
Etagenwohnung
Anzahl Garage/ Stellplatz
2
Objektzustand
Erstbezug
Baujahr
2027

Kosten

Kaufpreis
399.500 €
Käuferprovision
keine
Was kostet dein Umzug?

Stellplätze

Stellplatztyp
Freiplatz
Anzahl
1
Kaufpreis
15.000 €
Stellplatztyp
Tiefgarage
Anzahl
1
Kaufpreis
29.500 €

Objektbeschreibung

Gerne prüfen wir für Sie die aktuellen Fördermöglichkeiten bei der KfW für diese Immobilie.
Vermieter können dank Wachstumschancengesetz von erhöhten Abschreibungen profitieren (5 % degressiv).


In unserer exklusiven Wohnanlage vereinen sich Komfort und Funktionalität zu einem harmonischen Ganzen. Die optimal geschnittenen Grundrisse nutzen jeden Quadratmeter sinnvoll und schaffen offene Wohnlandschaften, die Ihren Alltag bereichern. Großzügige Fensterfronten lassen Licht und Sonne herein, so dass Sie lichterfüllt leben.
Von der Tiefgarage gelangen Sie bequem per Aufzug zu Ihrer Wohnung – komfortabler kann der Heimweg kaum sein.
Jede Einheit verfügt über eine großzügige Terrasse, die den Wohnraum nach außen erweitert und zum Verweilen einlädt.
Die Erdgeschosswohnungen bieten zusätzlich einen eigenen Gartenanteil – ein privates grünes Paradies für Ihre Freizeitgestaltung.
Die Ausstattung überzeugt auf ganzer Linie mit modernster Haustechnik, die für zeitgemäßen Wohnkomfort sorgt. Intelligente Lösungen unterstützen einen ressourcenschonenden Lebensstil ohne Einbußen beim Komfort.
Besonderes Augenmerk wurde auf die Praktikabilität gelegt: So gut wie jede Wohnung verfügt über einen eigenen Hauswirtschaftsraum, der wertvolle Ordnung im Alltag schafft. Zusätzlicher Stauraum steht in Form eines separaten Abstellraums im Untergeschoss
zur Verfügung – ideal für Sportgeräte, Fahrräder, Reisegepäck oder saisonale Utensilien.


Die generationenübergreifende Gestaltung der Wohnanlage spricht jeden Lebensstil an. Ob Single, Paar, Familie oder Best Ager – die vielfältigen Grundrisse passen sich flexibel Ihren individuellen Bedürfnissen an. Vom kompakten, effizienten Apartment für
Alleinstehende über großzügige Wohnungen für Paare bis hin zu weitläufigen Familiendomizilen – hier findet jeder seinen idealen Lebensraum. Die teilweise barrierefreie Ausführung ermöglicht zudem komfortables Wohnen in jeder Lebensphase. Besonders
Familien profitieren von den sicheren Spielmöglichkeiten im Freien und der naturnahen Umgebung, während Best Ager die durchdachte Raumaufteilung und den mühelosen Alltag zu schätzen wissen.
Die beiden Gebäudeteile fügen sich harmonisch in die gewachsene Struktur der Umgebung ein. Hier wird mit Weitblick und Liebe zum Detail geplant und gebaut, sodass ein Zuhause entsteht, das sowohl ästhetisch ansprechend als auch alltagstauglich ist.
Erleben Sie Wohnen auf höchstem Niveau – durchdacht bis ins kleinste Detail und bereit für Ihren Einzug


Die Wohnanlage besteht aus 2 Gebäuden mit insgesamt 18 Wohnungen. Unterirdisch sind die Gebäude über eine Tiefgarage mit 26 Stellplätzen verbunden. Diese bietet direkten Zugang zu den Kellerräumen und zum Treppenhaus bzw. den Aufzügen. 7 Außenstellplätze komplettieren die Parkmöglichkeiten.
Die Stellplätze sind im Wohnungspreis nicht enthalten, Tiefgaragenstellplätze werden zu jeweils 29.500 €, die Außenstellplätze zu jeweils 15.000 € angeboten.


Die Fertigstellung des Neubaus wird voraussichtlich im Herbst 2027 sein.


Gerne stehen wir für eine unverbindliche Beratung zu diesem einzigartigen und lichterfüllten Neubauprojekt zur Verfügung.


Schnell sein lohnt sich, denn der frühe Käufer hat die größte Auswahl. Melden Sie sich jetzt!


Bausubstanz & Energieausweis

Objektzustand
Erstbezug
Heizungsart
Zentralheizung
Befeuerung
Elektroheizung
Energieausweis
Laut Gesetz nicht erforderlich

Ausstattung

Unsere Wohnanlage setzt mit ihrer modernen Holzbauweise neue Maßstäbe für zukunftsweisendes Wohnen. Was Sie beim Betreten sofort spüren, ist das besondere Raumklima, das nur ein Holzhaus bieten kann. Holz atmet und reguliert die Luftfeuchtigkeit auf natürliche Weise – ein unsichtbarer, aber täglich spürbarer Beitrag zu Ihrer Wohngesundheit. Die innovative Konstruktion aus hochwertigem, zertifiziertem Holz verbindet traditionelles Handwerk mit modernster Technologie. Dabei entsteht ein Gebäude, das in seiner Gesamtbilanz aktiv zum Klimaschutz beiträgt: Das verbaute Holz speichert CO₂ über die gesamte Lebensdauer und schont wertvolle Ressourcen. Die hervorragenden Dämmeigenschaften des verwendeten Materials sorgen für eine
angenehme Temperatur zu jeder Jahreszeit – warm im Winter, kühl im Sommer. Dies führt nicht nur zu einem konstant behaglichen Wohnklima, sondern reduziert auch Ihre Energiekosten merklich.
Ein weiterer Vorteil der Holzbauweise zeigt sich im Wohnkomfort. Die natürliche Wärme und Haptik des Materials schafft eine unvergleichliche Atmosphäre, die entspannend wirkt und Stress reduziert. Die besondere Akustik in Holzgebäuden trägt zusätzlich zu
einem ruhigen Wohnerlebnis bei. Die Bauweise ermöglicht großzügige, offene Räume mit viel Licht – ein Lebensgefühl, das konventionelle Bauweisen kaum bieten können. Gleichzeitig überzeugt die moderne Holzkonstruktion durch ihre Langlebigkeit und Wertbeständigkeit bei geringem Pflegeaufwand. Entscheiden Sie sich für ein Zuhause, das mehr bietet als vier Wände – für ein gesundes Wohnumfeld, das Sie jeden Tag aufs Neue spüren werden.


Alle Wohnungen sind mit Terrasse und direkter Verbindung zu den Tiefgaragen ausgestattet.
Der Bau des Hauses folgt modernster Technik und Erkenntnis. Neben optimalen Energiewerten verfügt das Gebäude über ein Heizsystem mit Wärmepumpe als umweltfreundliche Heizlösung, die besonders energieeffizient arbeitet. Höchst effizient wird mit der Umweltwärme geheizt und die Energiekosten sind sehr gering. Der Wärmedämmstandard entspricht dem KfW 55 Standard. Zusätzlich werden 2 PV-Anlagen installiert zur nachhaltigen Stromgewinnung, die das Energiekonzept des Hauses perfekt abrunden.


Große, bodentiefe Fensterfronten schaffen helle und lichterfüllte Räume. Jedes Zimmer hat Fenster – ja, sogar die meisten Badezimmer haben Tageslicht! Die Sanitärausstattung ist exklusiv mit Holz-Waschtisch und Aufsatzwaschbecken, die Spiegel sind fertig eingebaut. Die übrigen Böden sind aus hochwertigem Parkett auf massiven Holz- und Betondecken und zusätzlich entkoppeltem Estrich. Das Gebäude wird mit einer Wärmepumpe beheizt, die Zimmer werden mit Fußbodenheizung und Thermostatregelung ausgestattet. Elektrisch betriebene Rollläden und Jalousien sind eine Selbstverständlichkeit.


Lagebeschreibung

Engstlatt ist ein Teilort der Großen Kreisstadt Balingen. Die ruhige Lage in absoluter Naturnähe ist ein Trumpf: In wenigen Minuten sind Sie in der Natur und können den weiten Blick am Fuße der Schwäbischen Alb genießen.


Die durchdachte Wohnanlage entsteht in einer gewachsenen Nachbarschaft - Die Häuser entstehen in einem ruhigen, zentrumsnahen Wohngebiet von Engstlatt. Neben den Einkaufsmöglichkeiten für den täglichen Bedarf vor Ort, erreichen Sie in kurzer Distanz die Balinger Innenstadt mit allen Angeboten des täglichen Lebens.
Im Dorf gibt es eine Bäckerei mit Café und eine Metzgerei, sowie Gaststätten. Zudem gibt es in Engstlatt ein Freibad und eine Wassertretanlage.
Der Ort ist direkt ans Radnetz angebunden – so kann man nicht nur direkt nach Balingen fahren, sondern die Gegend auch über Wander- und Radwege erkunden.


Engstlatt liegt zudem verkehrsgünstig an der vierspurigen Bundesstraße (B27) nach Rottweil und Tübingen bzw. Stuttgart. Der Bahnhof im Ort sichert gute Verbindungen auch ohne Auto.


Sonstige Angaben

Die Informationen in diesem Exposé beruhen auf Angaben des Verkäufers. Wir haben diese im Rahmen unserer Möglichkeiten überprüft, eine Gewähr können wir nicht übernehmen. Die Kaufverhandlungen sind ausschließlich über uns zu führen. Die Grunderwerbsteuer, Notar- und Grundbuchkosten sind vom Käufer zu tragen. Unser Angebot ist vertraulich und freibleibend. Unser Angebot ist nur für den Empfänger bestimmt. Eine Weitergabe ist nur mit unserer Zustimmung erlaubt. Irrtum, Zwischenverkauf und Preisänderungen bleiben ausdrücklich vorbehalten. Rechtliche Ansprüche können nur aus dem Kaufvertrag, der Teilungserklärung mit der Bau und Ausstattungsbeschreibung sowie den amtlich genehmigten Bauplänen abgeleitet werden. Dieses Exposé dient zur Information und stellt kein vertragliches Angebot dar. Änderungen bleiben vorbehalten. Abbildungen sind Darstellungen aus Sicht des Illustrators. Erfüllungs- und Gerichtsstand ist, soweit gesetzlich zulässig, Balingen. Im Übrigen gelten unsere Allgemeinen Geschäftsbedingungen.


Wohnung finden so einfach wie möglich - das ist unsere Mission!

Kostenlose Basic Features

0 € monatlich


  • Individuelles Such-Profil anlegen
  • Suchaufträge speichern
  • One-Klick Kontaktaufnahme

alles anzeigen

Jetzt kostenlos anmelden

Premium Features

19,99 € monatlich


  • Alle kostenlosen Features
  • Smart-Alarm per Whatsapp
  • Deine Chancen checken
  • Wohngegend analysieren

alles anzeigen

Jetzt Premium freischalten

Gewerblicher Anbieter

Volksbank Zollernalb eG
Friedrichstr. 72
72336 Balingen

Wohnglück-ID:
Objekt-Nr.:
WGL-882324
HB-2025-0909-A6