Wohnung in Augsburg (Innenstadt)

Aufzug
Garage/­Stellplatz

Wohnen an der Stadtmauer in Augsburg - Hier entstehen 20 Wohnungen in einer TOP-Lage! - provisionsfrei für Kaufende -

Anfragen bisher

Premium

Meine Chancen

Premium

Fairer Preis

Premium

470.000 €

Kaufpreis

69,75 m²

2 Zi.

1. OG

86153 Augsburg-Innenstadt

Gewerblicher Anbieter

VR-Bank Handels- und Gewerbebank eG

Details

Zimmerzahl
2
Immobilienart
Wohnung
Etage, Geschoss
1
Bezugsfrei ab
Fertigstellung Ende 2026
Anzahl Garage/ Stellplatz
1
Baujahr
2025

Kosten

Kaufpreis
470.000 €
Käuferprovision
keine
Was kostet dein Umzug?

Stellplätze

Stellplatztyp
Garage
Anzahl
1

Objektbeschreibung

Im Zentrum der Augsburger City umgeben von der historischen Stadtmauer, Bächen und vielfältigen Grünanlagen entsteht diese hochwertige und moderne Wohnanlage mit 20 Wohnungen und 18 Tiefgaragenstellplätzen.

Eine hervorragende Zentrumslage zeichnet diese Immobilie aus. Im Umkreis von wenigen hundert Metern befinden sich Einkaufsmöglichkeiten, Banken, Restaurants, Bars, Ärzte, Schulen und alles, was Sie sonst noch für den täglichen Bedarf benötigen. Haltestellen des öffentlichen Nah- und Fernverkehrs (Straßenbahn, Bus, Zug) sind in wenigen Gehminuten erreichbar.

Das Wohngebäude besteht aus 5 Vollgeschossen und wird nach den aktuellen Baurichtlinien und ökologischen Standards geplant und in massiver Bauweise erbaut.

Die hochwertig ausgestatteten Wohnungen sind bequem mit dem vorhanden Lift zu erreichen und haben eine Größe zwischen 48 m² und 109 m². Zu jeder Wohnung gehört ein großzügiger Balkon oder eine Terrasse.

Mit dem Bau wurde begonnen. Die Fertigstellung ist Ende 2026 geplant.

Ein TG-Stellplatz kann je nach Lage und Zuschnitt zwischen 30.000 EUR - 40.000 EUR erworben werden.

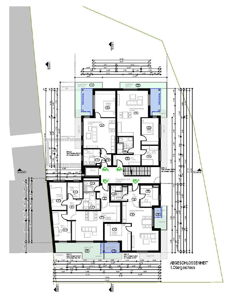
Bei dieser Wohnung handelt es sich um die Wohnung Nr.14 im 1.OG. Zu der Wohnung gehört ein großzügiger Balkon.

Der Preis setzt sich wie folgt zusammen:
Preis für die Wohnung EUR 470.000,-- + Stellplatz EUR 40.000,-- = Gesamtkaufpreis EUR 510.000,-- (ink. zusätzl. Kellerabteil).

Hier ein Überblick über die gehobenen Ausstattungsmerkmale:

- alle Wohnungen mit Balkon oder Terrasse
- Lift
- barrierefrei
- Badezimmer mit Badewanne, Dusche, Waschmaschinenanschluss, WC und Handwaschbecken
- Gäste-WC
- Fußbodenheizung
- Heizungsart: Fernwärme
- Aluminiumfenster mit 3-fach Isolierverglasung
- großer und abschließbarer Kellerraum
- TOP-Innenausstattung (Fliesen, Bodenbeläge, Türen, etc.)
- Fahrradabstellplätze
- regionale Baufirmen sichern hohe qualitative Standards
- Bauträger wird professionelle Hausverwaltung nach Fertigstellung einsetzen

Der Energieausweis wird nach Fertigstellung des Objektes erstellt!

Gerne lassen wir Ihnen Unterlagen des Bauträgers zukommen. Wir freuen uns auf Ihren Anruf!


Bausubstanz & Energieausweis

Baujahr
2025
Heizungsart
Sonstige

Wohnung finden so einfach wie möglich - das ist unsere Mission!

Kostenlose Basic Features

0 € monatlich


  • Individuelles Such-Profil anlegen
  • Suchaufträge speichern
  • One-Klick Kontaktaufnahme

alles anzeigen

Jetzt kostenlos anmelden

Premium Features

19,99 € monatlich


  • Alle kostenlosen Features
  • Smart-Alarm per Whatsapp
  • Deine Chancen checken
  • Wohngegend analysieren

alles anzeigen

Jetzt Premium freischalten

Gewerblicher Anbieter

VR-Bank Handels- und Gewerbebank eG

Wohnglück-ID:
Objekt-Nr.:
WGL-878434
0-2672#BWeRsM