Büro / Praxen in Dortmund (City)

Aufzug
Balkon/­Terrasse
barrierefrei
Denkmalschutz
Einbauküche

Topimmobilie 1A Lage Hansaplatz

Anfragen bisher

Premium

Meine Chancen

Premium

Fairer Preis

Premium

18 €

Kaltmiete

Wissstraße 14-18
44137 Dortmund

Gewerblicher Anbieter

ohne-makler.net
Humboldtstraße 25 A
21509 Glinde

Details

Bürofläche
1.000 m²
Typ der Gewerbeimmobilie
Büro / Praxen
Etage, Geschoss
1
Etagenzahl
3
Bezugsfrei ab
sofort
Objektzustand
Saniert

Kosten

Kaltmiete
18 €
Was kostet dein Umzug?

Objektbeschreibung

Das eindrucksvolle Gebäude an der Wissstraße 14-18 wurde 1904 ursprünglich als Bankgebäude der Nationalbank für Deutschland im Kaiserreich errichtet. In den folgenden Jahrzehnten diente es als Finanzinstitut und wurde später Hauptsitz der Dresdener Bank Niederlassung in Dortmund.


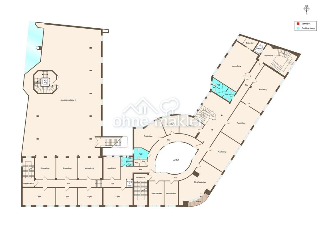
Mindestens 400 Quadratmeter bis zu 1.100 Quadratmeter flexibel nutzbare Fläche auf dem 1. Obergeschoss.


Der Gebäudekomplex erstreckt sich über die Balkenstraße, Betenstraße und Wissstraße und prägte das Wirtschaftsleben der Region. Erst in den 1980er Jahren wurde das Gebäude vom Azad Einrichtungshaus übernommen und zu einem Möbelhaus umgebaut, das bis heute eine feste Größe in der Region darstellt.


Details:


Bis zu 1.000 Quadratmeter flexibel nutzbare Fläche für Praxis, Büru und Lehrräume.
Drei separate Treppenhäuser, alle ausgestattet mit modernen Fahrstühlen.
Die derzeit als Verkaufsfläche genutzte Immobilie bietet aufgrund ihrer flexiblen Grundstruktur ideale Voraussetzungen für eine Umnutzung zu modernen Praxis- oder Büroflächen. Anpassungen und Ausbauten können gemäß den individuellen Anforderungen der künftigen Nutzer umgesetzt werden, um maßgeschneiderte Raumlösungen – beispielsweise für medizinische, therapeutische oder administrative Zwecke – zu realisieren.
Vielfältige Nutzungsmöglichkeiten: ideal für Einzelhandel, Ausstellungsräume, Büros, Gastronomie oder ein innovatives Nutzungskonzept.
Historische Architektur, die den Charme und die Eleganz vergangener Zeiten mit modernen Annehmlichkeiten verbindet.
Große Schaufenster und helle Räume sorgen für eine einladende Atmosphäre und viel natürliches Licht.
Ehemalige Nutzung:


Vor der Übernahme durch das Azad Einrichtungshaus war das Gebäude eine bedeutende Finanzinstitution. Von der Nationalbank für Deutschland über die Danat-Bank, die in den 1920er Jahren zu einer der größten deutschen Banken gehörte, spielte das Gebäude eine zentrale Rolle in der Wirtschaftsgeschichte Dortmunds.


Potentielle Nutzungsmöglichkeiten:


Stilvolle Büros, eine Praxis oder Tagungsräume die flexible Raumaufteilung bietet unzählige Möglichkeiten. Die Lage im Herzen der Stadt, kombiniert mit der imposanten historischen Architektur, macht das Objekt zu einer idealen Wahl für moderne Unternehmen.


Lage: Hansaplatz, zentral und verkehrsgünstig gelegen, mit hervorragender Anbindung an den öffentlichen Nahverkehr.


Die Flächen können nach Absprache gemietet werden. Kontaktieren Sie uns für weitere Informationen oder um einen Besichtigungstermin zu vereinbaren.


Objektzustand: Erstbezug nach Sanierung


Bausubstanz & Energieausweis

Objektzustand
Saniert
Heizungsart
Fernwärme
Befeuerung
Fernwärme
Energieausweis
Laut Gesetz nicht erforderlich

Ausstattung

Balkon, Fahrstuhl, Einbauküche, Gäste-WC, Barrierefrei, Fliesen


Bemerkungen:
Die derzeit als Verkaufsfläche genutzte Immobilie bietet aufgrund ihrer flexiblen Grundstruktur ideale Voraussetzungen für eine Umnutzung zu modernen Praxis- oder Büroflächen. Anpassungen und Ausbauten können gemäß den individuellen Anforderungen der künftigen Nutzer umgesetzt werden, um maßgeschneiderte Raumlösungen – beispielsweise für medizinische, therapeutische oder administrative Zwecke – zu realisieren.


Lagebeschreibung

Das Gebäude bietet eine hervorragende Kombination aus historischer Architektur und modernen Annehmlichkeiten, was es für eine Vielzahl von Nutzungsmöglichkeiten attraktiv macht:


Moderne Fahrstühle in allen drei Treppenhäusern, die einen komfortablen Zugang zu den verschiedenen Etagen gewährleisten.
Große Fensterfronten im Erdgeschoss und auf der ersten Etage, die für viel natürliches Licht sorgen und die Räumlichkeiten optimal für Schaufenster und Ausstellungsflächen machen.
Flexible Raumaufteilung: Die Flächen sind offen gestaltet und bieten somit flexible Nutzungsmöglichkeiten – ideal für Einzelhandel, Büros, Ausstellungsräume oder gastronomische Betriebe.
Historische Bausubstanz: Das Gebäude behält seine charmante, historische Architektur bei, während die Innenausstattung modernisiert wurde, um heutigen Ansprüchen gerecht zu werden.
Geräumige Lagermöglichkeiten im Keller, die für verschiedene Lagerbedürfnisse optimal genutzt werden können.
Zentrale Klimatisierung und moderne technische Anschlüsse, die die Räumlichkeiten sowohl für Büroflächen als auch für den Einzelhandel ideal ausstatten.
Stellplätze und Ladezonen: Im Hinterhof gibt es zusätzliche Lagermöglichkeiten sowie Zugang zu Stellplätzen und Lieferzonen, die den Betrieb erleichtern.
Die Kombination aus der historischen Atmosphäre und den modernen Ausstattungsmerkmalen macht diese Immobilie besonders attraktiv und vielseitig nutzbar.
Infrastruktur (im Umkreis von 5 km):
Apotheke, Lebensmittel-Discount, Allgemeinmediziner, Kindergarten, Grundschule, Hauptschule, Realschule, Gymnasium, Gesamtschule, Öffentliche Verkehrsmittel


Sonstige Angaben

Heizungsart: Sonstiges (s. Text)
Energieträger: Fernwärme


Azad Immobilien GmbH & Co KG


ohne-makler (OM) ist weder Anbieter noch Vermittler der Immobilie. OM betreibt eine Plattform für Immobilieneigentümer, die unter anderem die gleichzeitige Veröffentlichung einzelner Inserate auf mehreren Immobilienportalen ermöglicht. Die Inhalte dieser Inserate werden ausschließlich von Dritten verantwortet. Für die Richtigkeit, Vollständigkeit oder Rechtmäßigkeit der Angaben übernimmt OM keine Haftung. Hinweise auf mögliche Rechtsverstöße können jederzeit gemeldet werden und werden nach Prüfung umgehend bearbeitet.


Wohnung finden so einfach wie möglich - das ist unsere Mission!

Kostenlose Basic Features

0 € monatlich


  • Individuelles Such-Profil anlegen
  • Suchaufträge speichern
  • One-Klick Kontaktaufnahme

alles anzeigen

Jetzt kostenlos anmelden

Premium Features

19,99 € monatlich


  • Alle kostenlosen Features
  • Smart-Alarm per Whatsapp
  • Deine Chancen checken
  • Wohngegend analysieren

alles anzeigen

Jetzt Premium freischalten

Gewerblicher Anbieter

ohne-makler.net
Humboldtstraße 25 A
21509 Glinde

Wohnglück-ID:
Objekt-Nr.:
WGL-878012
358184