Einfamilienhaus freistehend in Stade

Balkon/­Terrasse
Dachboden
Gäste WC
Keller
Garage/­Stellplatz

Stade-Schwedenviertel: Einfamilienhaus mit viel Platz und toller Lage auf dem Geestberg.

Anfragen bisher

Premium

Meine Chancen

Premium

Fairer Preis

Premium

619.000 €

Kaufpreis

146 m²

4 Zi.

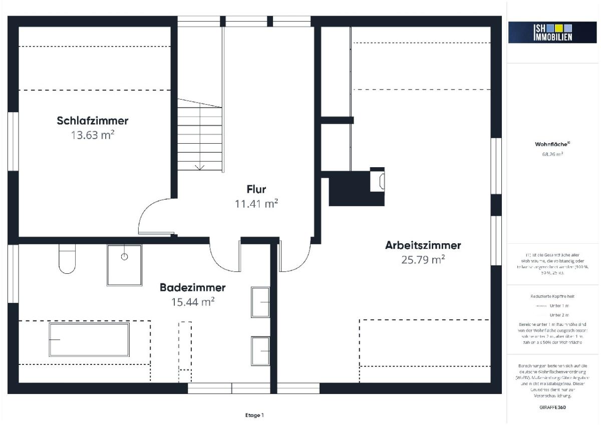
Grundriss

21682 Stade

Gewerblicher Anbieter

ISH Immobilien OHG
Thuner Str. 86a
21680 Stade

Details

Grundstücksfläche
977 m²
Zimmerzahl
4
Haustyp
Einfamilienhaus freistehend
Etagenzahl
1
Nutzfläche
100 m²
Bezugsfrei ab
nach Vereinbarung
Anzahl Garage/ Stellplatz
2
Objektzustand
Modernisiert
Baujahr
1983

Kosten

Kaufpreis
619.000 €
Käuferprovision
3.57 %
Was kostet dein Umzug?

Stellplätze

Stellplatztyp
Freiplatz
Anzahl
2
Stellplatztyp
Garage
Anzahl
2

Objektbeschreibung

Dieses beeindruckende, moderne Einfamilienhaus aus dem Jahr 1983 bietet Ihnen auf einer großzügigen Wohnfläche von 146 m² und einem weitläufigen Grundstück von 977 m² ein ideales Zuhause für die ganze Familie. Die zeitgemäße Bauweise mit den zwei großen Erkern, den Sprossenfenstern und dem ansprechenden Außenmauerwerk verleiht dem Haus eine sehr gepflegte und charmante Note. Hier fühlt man sich schon beim Ankommen wohl.


Betreten Sie das Erdgeschoss und lassen Sie sich von der hellen, einladenden Atmosphäre begeistern. Die gesamte Etage ist einheitlich weiß gefliest und mit hochwertigen, weißen Zimmertüren ausgestattet. Neben dem großzügigen Wohn- und Esszimmer, welcher gleich über zwei Terrassenzugänge und einen Ofen verfügt, finden Sie hier eine stilvolle und technisch hochwertig ausgestattete Küche sowie ein geräumiges Schlafzimmer vor. Das Duschbad rundet dieses Geschoss, mit vollem Komfort für Ihre Gäste, perfekt ab.


Im oberen Stockwerk befinden sich das luxuriös ausgestattete Vollbad sowie zwei sehr geräumige Zimmer die für Ihre individuelle Wohnbedürfnisse bestens geeignet sind– sei es als Schlafzimmer, Arbeitszimmer oder Kinderzimmer. Gerade das derzeitige Arbeitszimmer ist ein echtes Highlight, neben der offenen Balkenlage ist der antike, gusseiserne Ofen ein echter Hingucker. Hier wird eine harmonische Verbindung zwischen modernem Design und rustikalem Charme geschaffen. Durch die großen Erker ist auch das Obergeschoss hell und offen gestaltet und die Räumlichkeiten -samt Flur- bieten genügend Stellmöglichkeiten für Ihre Möbel.


Der Keller ist vollständig gefliest und bietet Ihnen zusätzliche Staufläche sowie die Möglichkeit, ihn nach Ihren Vorstellungen zu gestalten. Ob als Hobbyraum, Fitnessbereich oder Werkstatt – hier sind Ihrer Kreativität keine Grenzen gesetzt. Viele praktische Details wurden in diesem Bereich berücksichtigt, so ist der Hauswirtschaftsraum neben der Gasheizung (2006) und dem Waschmaschinenanschluss zusätzlich mit einer Dusche ausgestattet, das Arbeitszimmer verfügt über große Fenster mit Tageslicht und der Vorratsraum hat einen Außeneingang, der direkt in die Garage führt.


Eine großzügige Terrasse erweitert den Wohnraum nach draußen und bietet Ihnen die Möglichkeit, die warmen Sonnenstrahlen zu genießen oder gemütliche Grillabende zu veranstalten.
Abgerundet wird dieses attraktive Angebot durch eine Doppelgarage sowie mindestens zwei Außenstellplätze, die Ihnen ausreichend Platz für Ihre Fahrzeuge bieten.


Am Ende einer Sackgasse, mit ruhiger Nachbarschaft und dem weitläufigen Blick über den Geestberg in die naheliegende Landschaft, sind Sie hier im begehrten Schwedenviertel gut aufgehoben.
Nutzen Sie die Chance und vereinbaren Sie noch heute einen Besichtigungstermin! Ihr neues Zuhause wartet auf Sie!


Bausubstanz & Energieausweis

A+

A

B

C

D

E

F

G

H

Baujahr
1983
Objektzustand
Modernisiert
Wesentlicher Energieträger
Gas
Heizungsart
Zentralheizung
Befeuerung
Gasheizung
Energieausweis
liegt vor
Energieausweistyp
Verbrauchsausweis
Ausstellungsdatum
11.11.2016
Gültig bis
10.11.2026
Energieverbrauchskennwert
103 kWh/(m²*a)
Energieeffizienzklasse
D
Energieverbrauch für Warmwasser enthalten
Ja

Ausstattung


  • Einbauküche hell und modern

  • geräumiges Vollbad im Obergeschoss

  • Gäste-WC mit Dusche im Erdgeschoss

  • HWR mit Dusche im Keller

  • 2 Öfen

  • 2fach verglaste Kunststoff- und Holzfenster

  • Gasheizung von 2006

  • vollunterkellert

  • zusätzlicher Stauraum im Teildachboden

  • große Doppelgarage und 2 Außenstellplätze


Lagebeschreibung

Die Hansestadt Stade liegt mit ca. 50.000 Einwohnern auf halbem Weg zwischen Hamburg und der Nordsee. Stade hat eine über 1000-jährige Geschichte, die sich in der historischen Altstadt mit seinen wunderschönen Fachwerkhäusern widerspiegelt. Stade ist ein wirtschaftliches und kulturelles Behörden- und Dienstleistungszentrum im Elbe-Weser-Raum. Es gilt als Standort für moderne Industrie, erfolgreichen Mittelstand und jetzt auch Bildungsstandort mit allen Schulformen, Forschungseinrichtungen sowie einer Hochschule. Die neue Autobahn 26 und die geplante Elbquerung A 22 machen diese Region für Industrie- und Gewerbeansiedlungen sowie für das Wohnen sehr attraktiv. Viele kulturelle Veranstaltungen, beispielsweise in Form von Kunstausstellungen, musikalischen Events und Theateraufführungen werden über das Jahr in Stade angeboten. Die Nähe zur Elbe, verbunden durch den Fluss Schwinge, geben der Stadt ihr maritimes Flair. Die Stadt verfügt aber auch über sämtliche Einrichtungen für den täglichen Bedarf sowie ein großes Angebot an Sporteinrichtungen und Ärzten sowie Kliniken. In Stade leben und arbeiten, das ist Lebensqualität!


Sonstige Angaben

Hinweis: Wir weisen höflich darauf hin, dass die hier gemachten Angaben ausschließlich auf den uns vom Eigentümer übermittelten Unterlagen und Daten basieren. Für die Richtigkeit und Vollständigkeit können wir keine Haftung übernehmen. Das Angebot ist freibleibend. Forderungen und Irrtümer vorbehalten.


Wenn Sie zu diesem Angebot Kontakt zu uns aufnehmen, werden Ihre personenbezogenen Daten von uns gespeichert. Weitere Informationen zum Datenschutz finden Sie auch auf unserer Homepage unter https://ish-immobilien.de/de/datenschutzerklaerung


Hinweise Geldwäschegesetz GwG:
Als Immobilienmakler sind wir nach § 2 Abs. 1 Nr. 14 und § 10 Abs. 3 Geldwäschegesetz (GwG) dazu verpflichtet, bei der Begründung einer Geschäftsbeziehung die Identität des Vertragspartners festzustellen und zu überprüfen. Hierzu ist es erforderlich, dass wir nach § 11 GwG die relevanten Daten Ihres Personalausweises festhalten (wenn Sie als natürliche Person handeln) - beispielsweise mittels einer Kopie. Bei einer juristischen Person benötigen wir eine Kopie des Handelsregisterauszugs, aus welchem der wirtschaftlich Berechtigte hervorgeht. Das Geldwäschegesetz schreibt uns zwingend vor, dass wir die Kopien bzw. Unterlagen fünf Jahre aufbewahren.


Sie möchten Ihre Immobilie anbieten? Wir freuen uns auf Ihren Anruf unter 04141 - 79 77 111. Nach einer kostenfreien und unverbindlichen Wertermittlung Ihrer Immobilie besprechen wir alles Weitere.


Energieausweis: Verbrauchsausweis gültig von: 11.11.2016
Endenergieverbrauch Wärme: 103.0 kWh/(m²a) inklusive Warmwasser
Wesentliche Energieträger Heizung: Befeuerung Gas
Energieeffizienzklasse: D
Baujahr: 1983


Wohnung finden so einfach wie möglich - das ist unsere Mission!

Kostenlose Basic Features

0 € monatlich


  • Individuelles Such-Profil anlegen
  • Suchaufträge speichern
  • One-Klick Kontaktaufnahme

alles anzeigen

Jetzt kostenlos anmelden

Premium Features

19,99 € monatlich


  • Alle kostenlosen Features
  • Smart-Alarm per Whatsapp
  • Deine Chancen checken
  • Wohngegend analysieren

alles anzeigen

Jetzt Premium freischalten

Gewerblicher Anbieter

ISH Immobilien OHG
Thuner Str. 86a
21680 Stade

Wohnglück-ID:
Objekt-Nr.:
WGL-845872
4916