Zinshaus / Renditenobjekt in Sasbach am Kaiserstuhl

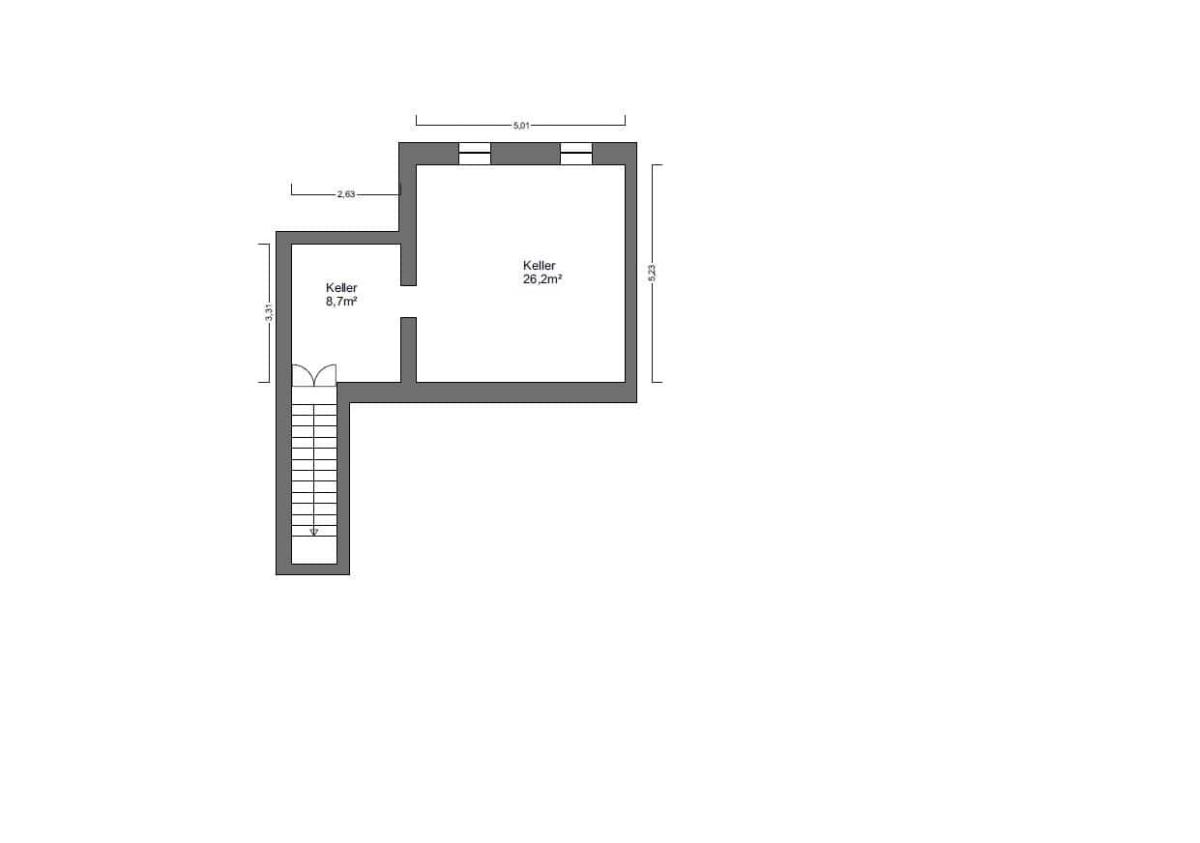
Keller

Im Herzen von Sasbach: 6 moderne Wohneinheiten

Anfragen bisher

Premium

Meine Chancen

Premium

Fairer Preis

Premium

697.000 €

Kaufpreis

292,7 m²

Grundriss

79361 Sasbach

Gewerblicher Anbieter

Volksbank Freiburg eG
Bismarckallee 10
79098 Freiburg im Breisgau

Details

Grundstücksfläche
540 m²
Typ der Gewerbeimmobilie
Zinshaus / Renditenobjekt
Nutzfläche
54,5 m²
Objektzustand
Modernisiert
Letzte Modernisierung/ Sanierung
2024
Baujahr
1963

Kosten

Kaufpreis
697.000 €
Käuferprovision
3,57 %
Was kostet dein Umzug?

Objektbeschreibung

Zum Verkauf steht ein gepflegtes Mehrfamilienhaus mit insgesamt sechs Wohneinheiten, das sich aus zwei Gebäudeteilen zusammensetzt. Das ursprüngliche Wohnhaus wurde ca. 1963 errichtet und in 1991 durch einen Anbau erweitert. Im Zuge der Erweiterung wurde auch die Heizungsanlage erneuert.


Im Jahr 2024 erfolgten umfangreiche Modernisierungsmaßnahmen: Erneuerung der Elektrik und Wasserleitungen, neue Bodenbeläge sowie Austausch der Fenster in nahezu allen Wohnungen (eine Einheit verfügt noch über ältere Fenster).


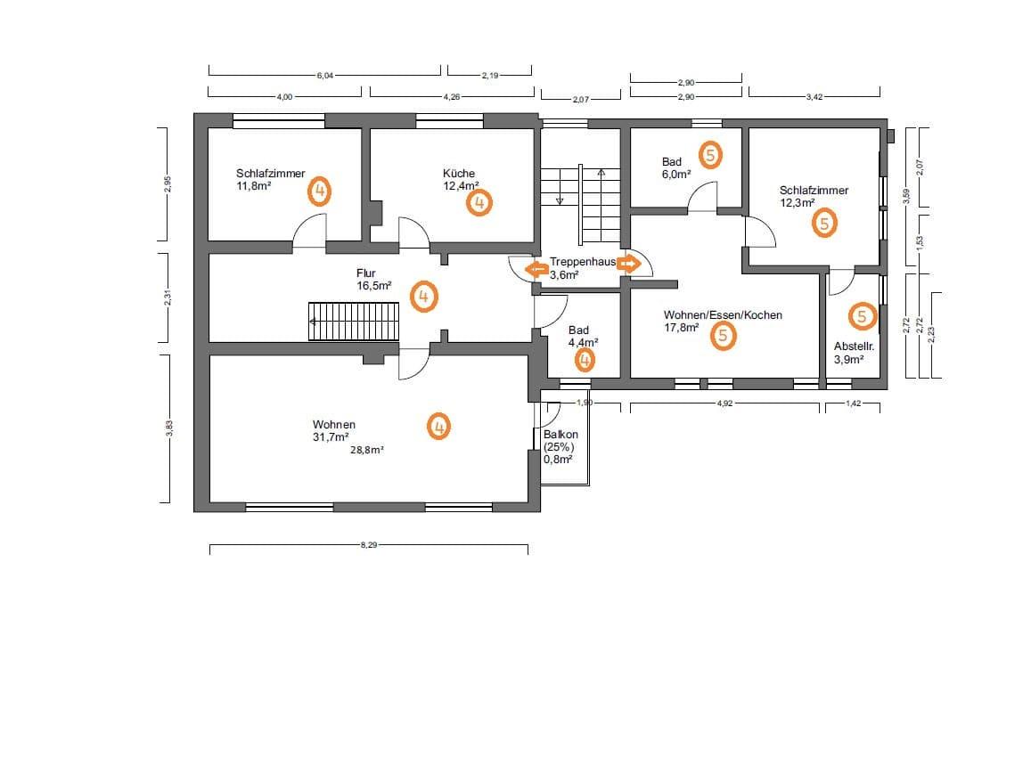
Das Objekt bietet eine interessante Aufteilung über drei Geschosse hinweg – vom Erdgeschoss bis ins Dachgeschoss. Alle Wohnungen sind vermietet.


Ein besonderes Highlight für die Bewohner ist der nicht einsehbare, rückwärtig gelegene Freisitz, der Raum für Erholung, gemeinschaftliche Nutzung oder private Rückzugsorte bietet.


Im Untergeschoss stehen zwei Kellerräume als Stauflächen für die Bewohner zur Verfügung.


Bausubstanz & Energieausweis

A+

A

B

C

D

E

F

G

H

Baujahr
1963
Objektzustand
Modernisiert
Letzte Modernisierung
2024
Wesentlicher Energieträger
Flüssiggas
Heizungsart
Zentralheizung
Energieausweis
liegt vor
Energieausweistyp
Verbrauchsausweis
Ausstellungsdatum
01.05.2025
Gültig bis
30.04.2035
Energieeffizienzklasse
D
Energieverbrauch für Warmwasser enthalten
Ja

Ausstattung

Wohnungseinheiten im Überblick:


Erdgeschoss:
Wohnung Nr. 1: 2-Zimmer-Wohnung ca. 35 m² Wohnfläche, vermietet seit 05/25
Wohnung Nr. 2: 1-Zimmer-Wohnung ca. 24 m² Wohnfläche, vermietet
Wohnung Nr. 3: 1-Zimmer-Wohnung ca. 50 m² Wohnfläche, vermietet seit 02/2025


Obergeschoss:
Wohnung Nr. 4: 2-Zimmer-Wohnung ca. 77 m² Wohnfläche, vermietet
Wohnung Nr. 5: 2-Zimmer-Wohnung ca. 40 m² Wohnfläche, vermietet seit 03/2025


Dachgeschoss:
Wohnung Nr. 6: 3-Zimmer-Wohnung ca. 64 m² Wohnfläche, vermietet seit 01/2025


Ausstattung:
Die Wohnungen haben unterschiedliche Ausstattungen und Bodenbeläge. Insgesamt sind alle Wohneinheiten hell und freundlich und verfügen über eine großzügige Raumaufteilung.


Mieteinnahmen gesamt pro Jahr Warmmiete: 59.040 EUR


Lagebeschreibung

Die Gemeinde Sasbach am Kaiserstuhl, eingebettet zwischen dem Schwarzwald und den Vogesen, bietet eine malerische Kulisse direkt am Rhein. Hier erwarten Sie nicht nur herrliche Spazierwege entlang des Flusses und durch die Weinberge, sondern auch ideale Möglichkeiten zum Wandern, Radfahren, Joggen oder Walken.


Bildung:
Der Kindergarten und die Grundschule sind fußläufig erreichbar. Ein vielfältiges Angebot an weiterführenden Schulen sind in Endingen und in Breisach zu finden. Die Stadt Endingen ist ca. 8 km und Breisach ca. 14 km entfernt.


Infrastruktur:
Sasbach punktet zudem mit einer hervorragenden Infrastruktur, die zahlreiche Geschäfte des täglichen Bedarfs sowie Hofläden mit regionalen Produkten bietet.Einkaufsmöglichkeiten sind zu Fuß oder mit dem Fahrrad erreichbar.


Dank eines sehr guten öffentlichen Verkehrsnetzes, mit einem eigenen Bahnhof der SWEG, sind Sie hier bestens vernetzt. Der Bahnhof ist ca. 500 Meter entfernt. Eine Bushaltestelle der Buslinie 500/566 Richtung Endingen ca. 180 Meter entfernt


Freizeit:
Neben den zahlreichen Aktivitäten entlang des Rheins und durch die Weinberge finden Erholungssuchende optimale Bedingungen zum Radfahren und Wandern. Familien können sich zudem am Badesee oder am Rhein mit seinen verschiedenen Wassersportmöglichkeiten vergnügen. Sasbach bietet somit ein rundum attraktives Lebensumfeld für Jung und Alt.


Sonstige Angaben

Hinweis: Gesetzliche Austausch- und Nachrüstungsverpflichtungen
Wer eine Immobilie kauft oder erbt, muss sie so sanieren, dass das Gebäude den gesetzlichen Anforderungen entspricht. Dafür haben Neueigentümer ab Einzug zwei Jahre Zeit.


Oberste Geschossdecken oder Dach dämmen (§ 47 GEG):
Ist der Dachraum unbewohnt und nicht beheizt, ist eine Dämmung der obersten Geschossdecke nachzurüsten – zumindest dann, wenn diese nicht die Mindestanforderungen an den Wärmeschutz erfüllt. Der Wärmedurchgangskoeffizient (U-Wert) darf nicht über 0,24 W/m²K liegen.


Heizkessel erneuern (§ 72 GEG):
Alte Öl- und Gasheizungen müssen nach 30 Jahren Laufzeit ausgetauscht werden. Die Sanierungspflicht gilt für sogenannte Standard- und Konstanttemperaturkessel. Niedertemperatur- und Brennwertheizungen sind davon noch ausgenommen.


Warmwasserführende Rohre dämmen (§ 71 GEG):
Sind Heizungs- und Warmwasserrohre oder Armaturen nicht gedämmt, muss dies in unbeheizten Räumen wie im Keller nachgeholt werden.


Weitere Informationen finden Sie hier: https://www.verbraucherzentrale.de/wissen/energie/energetische-sanierung/geg-was-aendert-sich-mit-dem-gebaeudeenergiegesetz-13886


Hinweis:
Dieses Exposé ist teilweise unter Nutzung von KI-gestützten Anwendungen entstanden.


Wohnung finden so einfach wie möglich - das ist unsere Mission!

Kostenlose Basic Features

0 € monatlich


  • Individuelles Such-Profil anlegen
  • Suchaufträge speichern
  • One-Klick Kontaktaufnahme

alles anzeigen

Jetzt kostenlos anmelden

Premium Features

19,99 € monatlich


  • Alle kostenlosen Features
  • Smart-Alarm per Whatsapp
  • Deine Chancen checken
  • Wohngegend analysieren

alles anzeigen

Jetzt Premium freischalten

Gewerblicher Anbieter

Volksbank Freiburg eG
Bismarckallee 10
79098 Freiburg im Breisgau

Wohnglück-ID:
Objekt-Nr.:
WGL-845737
2025 -2460