Etagenwohnung in Rottenburg am Neckar

Garage/­Stellplatz

Schöne 4,5-Zimmer-Wohnung mit Balkon in Rottenburg - Ergenzingen

Anfragen bisher

Premium

Meine Chancen

Premium

Fairer Preis

Premium

1.510 €

Kaltmiete

105,82 m²

4,5 Zi.

1. OG

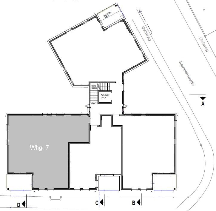
Grundriss

Stehelinstraße 1
72108 Rottenburg

Gewerblicher Anbieter

Volksbank Raiffeisenbank AmmerGäu eG
Gäustraße 5
72108 Rottenburg am Neckar

Details

Zimmerzahl
4,5
Wohnungstyp
Etagenwohnung
Etage, Geschoss
1
Etagenzahl
4
Nutzfläche
3,48 m²
Anzahl Schlafzimmer
1
Anzahl Badezimmer
1
Anzahl Garage/ Stellplatz
2
Objektzustand
Erstbezug
Baujahr
2024

Kosten

Kaltmiete
1.510 €
Nebenkosten
300 €
Kaution
3.020 €
Was kostet dein Umzug?

Stellplätze

Stellplatztyp
Freiplatz
Anzahl
1
Miete
30 €
Stellplatztyp
Tiefgarage
Anzahl
1
Miete
60 €

Objektbeschreibung

Schöne 4,5-Zimmer-Wohnung im 1. Obergeschoss eines Mehrfamilienhauses mit 15 Einheiten mit Tageslichtbad mit Badewanne und Dusche, Balkon sowie einem Tiefgaragenstellplatz und einem Außenstellplatz.
Die Wohnung wurde im Dezember 2024 fertiggestellt und kann sofort bezogen werden.
Das Objekt verfügt über einen Aufzug und wird mit einer modernen Wärmepumpe beheizt und erfüllt die KfW-55-EE-Standard Kriterien.


Die Wohnung besticht durch eine gehobene und qualitativ hochwertige Ausstattung sowie einer modernen Markeneinbauküche mit Einbaugeräten.
Sie ist mit einer Fußbodenheizung und einer Lüftung ausgestattet, wodurch ein angenehmes Raumklima entsteht. Die Fußbodenheizung kann in jedem Raum separat reguliert werden.


Die monatliche Kaltmiete für die Wohnung 7 beträgt inklusive Einbauküche (80,00 €), Tiefgaragenstellplatz (60,00 €) und Außenstellplatz (30,00 €) 1.600,00 €.


Die Gesamtmiete setzt sich wie folgt zusammen:
Kaltmiete der Wohnung 1.430,00 €
Einbauküche 80,00 €
Tiefgaragenstellplatz 60,00 €
Außenstellplatz 30,00 €
Nebenkostenabschlag 300,00 €
Gesamtmiete 1.900,00 €


Mietkaution 2 Kaltmieten 2.860,00 €


Bausubstanz & Energieausweis

A+

A

B

C

D

E

F

G

H

Baujahr
2024
Objektzustand
Erstbezug
Wesentlicher Energieträger
Elektroenergie
Heizungsart
Elektroheizung
Befeuerung
Elektroheizung
Energieausweis
liegt vor
Energieausweistyp
Verbrauchsausweis
Gültig bis
14.08.2034
Energieeffizienzklasse
A+

Ausstattung


  • Aufzug

  • Tageslichtbad mit Badewanne und Dusche

  • Gäste WC

  • Fliesen in Küche, Wohn-/Essbereich, Flur, Bad

  • Laminat in den Schlaf- und Kinderzimmern

  • Fußbodenheizung

  • Hochwertige Sanitärausstattung

  • Dreifach verglaste Fenster

  • Elektrische Rollläden

  • Moderne Küche

  • Balkon

  • Abstell-/Kellerraum im Untergeschoss

  • ein Tiefgaragenstellplatz

  • ein Außenstellplatz

  • Fahrradabstellplatz außen

  • gemeinschaftlicher Wasch- und Trockenraum


Sonstiges
Möglichkeit zum Bezug von Mieterstrom und zur Installation einer Wall-Box.
Zur Wohnung gehört ein eigener Abstell-/Kellerraum und ein gemeinschaftlicher Wasch- und Trockenraum.


Lagebeschreibung

Das Mehrfamilienhaus befindet sich im Ortskern von Ergenzingen. Der Ort ist mit rund 4.500 Einwohnern der größte Stadtteil Rottenburgs.
Der Ort verfügt über eine gute Infrastruktur. In unmittelbarer Nähe befindet sich eine Bäckerei und eine Metzgerei, Banken, Post und ein Supermarkt. Arzt und Apotheke sind ebenfalls bequem zu Fuß erreichbar. Schulen und Kindertagesstätte befinden sich im Ort. Die Bushaltestelle ist nur 1 Gehminute und der Bahnhof nur 6 Gehminuten vom Wohnhaus entfernt.
Es besteht eine direkte und sehr gute Anbindung an die A 81 und auch die attraktiven Städte Tübingen, Rottenburg, Nagold, Herrenberg und Horb sind über die B28 in kurzer Zeit erreichbar. Zum Flughafen Stuttgart sind es ca. 50 Kilometer.


Sonstige Angaben

Eckdaten:
Etage: 1. Obergeschoss
Zimmer: 4,5
Wohnfläche: ca. 105,82 m²
Stellplätze: 2


Wohnen/Essen ca. 28,58 m²
Flur ca. 15,30 m²
Schlafen ca. 14,66 m²
Kind 1 ca. 11,56 m²
Kind 2 ca. 9,37 m²
Kochen ca. 7,91 m²
Bad/WC ca. 6,96 m²
Abstellraum ca. 2,69 m²
Vorraum ca. 2,28 m²
WC ca. 1,76 m²
Balkon 50 % ca. 4,75 m²


Gesamt ca. 105,82 m²


Wohnung finden so einfach wie möglich - das ist unsere Mission!

Kostenlose Basic Features

0 € monatlich


  • Individuelles Such-Profil anlegen
  • Suchaufträge speichern
  • One-Klick Kontaktaufnahme

alles anzeigen

Jetzt kostenlos anmelden

Premium Features

19,99 € monatlich


  • Alle kostenlosen Features
  • Smart-Alarm per Whatsapp
  • Deine Chancen checken
  • Wohngegend analysieren

alles anzeigen

Jetzt Premium freischalten

Gewerblicher Anbieter

Volksbank Raiffeisenbank AmmerGäu eG
Gäustraße 5
72108 Rottenburg am Neckar

Wohnglück-ID:
Objekt-Nr.:
WGL-841520
2-07-6