Zinshaus / Renditenobjekt in Oberursel (Taunus) (Oberstedten)

Oberursel-Oberstedten: WGH mit einer bezugsfertigen Top-WE und einem vermieteten Ladengeschäft

Anfragen bisher

Premium

Meine Chancen

Premium

Fairer Preis

Premium

895.000 €

Kaufpreis

137 m²

Grundriss

61440 Oberursel (Taunus)

Gewerblicher Anbieter

Deutsche Privatfinanz AG
Rieslingweg 1
55597 Wöllstein

Details

Grundstücksfläche
294 m²
Sonstige Fläche
101 m²
Typ der Gewerbeimmobilie
Zinshaus / Renditenobjekt
Etagenzahl
4
Objektzustand
Gepflegt
Baujahr
1962

Kosten

Kaufpreis
895.000 €
Käuferprovision
5,95% auf den Kaufpreis inkl. 19% gesetzl. MwSt.
Was kostet dein Umzug?

Objektbeschreibung

Willkommen in zentraler Lage der Stadt Oberursel-Oberstedten, mitten im
Rhein-Main-Gebiet.
Hier steht dieses gepflegte, im Jahre 1962 in Massivbauweise errichtete Wohn- und Geschäftshaus, bestehend aus einer Wohn- und einer Gewerbeeinheit (Grundstücksgröße 294 m², Bodenrichtwert 875,- EUR/ m²), zum Verkauf.
Komplettiert wird das Angebot durch die vier vorhandenen Stellplätze, eine Einzelgarage und eine großzügige Dachterrasse.


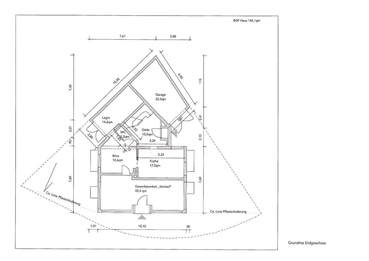
Im Erdgeschoss befindet sich die vermietete, ca. 82 m² umfassende Gewerbeeinheit (Ladengeschäft). Dieser sind zwei im Hof vorhandene Stellplätze zugeordnet. Die Kaltmiete beträgt aktuell 1.193,- EUR/ Monat.
Eine genaue Anordnung der Räumlichkeiten (Verkaufsraum, Büro, Küche, WC und Lagerraum) entnehmen Sie gerne dem beigefügten Grundriss.


Das 1. OG, das DG sowie der kleine Spitzboden umfassen die sich in einem Top-Zustand befindliche Maisonette-Wohnung (Wohnfläche ca. 137 m², Nutzfläche ca. 101 m²), in welche man über ein eigenes Treppenhaus gelangt. Zu dieser sehr einladenden, lichtdurchfluteten Wohnung mit Hauscharakter gehören ebenfalls -und sind im Kaufpreis enthalten- die vorhandene Einbauküche, eine Einzelgarage (mit elektrischem Rolltor und 380 Volt-Starkstromanschluss) sowie zwei Stellplätze. Eine großzügige Dachterrasse lädt zum Entspannen und Verweilen ein.
Die Wohnung ist leerstehend und nicht vermietet.


Aufteilung der Wohneinheit:



  1. OG
    -modernes Gäste-WC
    -modernes Tageslichtbad mit Dusche und WC
    -zwei helle, sehr schön geschnittene Wohnräume (zuletzt genutzt als ein großer Wohnraum)

    mit modernem Fliesenfußboden und Zugang zur großzügigen Dachterrasse
    -einem weiteren, freundlich-hellen Wohnraum mit Laminatfußboden
    -Tageslichtküche mit Einbauküche (im Kaufpreis enthalten)

  2. OG (Treppe innerhalb der Wohnung)
    -freundlich-helles, modernes Studio (Laminatfußboden) mit Top-moderner Badewanne

    (Fliesenfußboden)
    -Zugang zum Spitzboden (mittels Zugtreppe)
    -kleiner Abstellraum
    Die Räume des KG (Vorraum, Heizungsraum, Waschküche, 2 weitere Räume) sind der Wohneinheit zugeordnet.


Zusammenfassend betrachtet: Das Objekt überzeugt durch Lage und Zustand, seine durchdachte Strukturierung hinsichtlich Trennung Wohn- und Gewerbeanteil, den inkludierten Parkgegebenheiten, stabilen Gewerbemieteinnahmen und -bezüglich der Wohneinheit- freier Wahl Eigennutzung / Vermietung.


Bausubstanz & Energieausweis

A+

A

B

C

D

E

F

G

H

259,63 kWh/(m²*a)

Objektzustand
Gepflegt
Wesentlicher Energieträger
Gas
Heizungsart
Gasheizung
Befeuerung
Gasheizung
Energieausweis
liegt vor
Energieausweistyp
Bedarfsausweis
Ausstellungsdatum
26.10.2025
Gültig bis
25.10.2035
Energieeffizienzklasse
H
Endenergiebedarf
259,63 kWh/(m²*a)

Ausstattung

Wohn- und Geschäftshaus mit einer Wohn- und einer Gewerbeeinheit (Ladengeschäft), Baujahr 1962, massiv erbaut, Grundstücksgröße 294 m², Bodenrichtwert 875,- EUR/ m²,
Heizungskessel und Warmwasserspeicher neu in 2006, Dacheindeckung mit Biberschwanzziegeln und Kupferregenrinnen neu in 1999


Gewerbeeinheit: vermietet, Kaltmiete 1.193,- EUR/ Monat, Gewerbefläche ca. 82 m², Verkaufsraum/ Büro/ Küche/ WC/ Lagerraum, 2 Stellplätze, WC-Raum in 2012 saniert;
Energieverbrauchsausweis für Nichtwohngebäude, Ausstellungsdatum 12.11.2025, Endenergieverbrauch Wärme 90,3 kWh/(m²a), Endenergieverbrauch Strom 33,1 kWh/(m²a)


Wohneinheit: Maisonette 1. OG und DG, Hauscharakter, Wohnfläche ca. 137 m², Nutzfläche ca. 101 m², 2 Stellplätze, Einzelgarage (mit elektrischem Rolltor und in 2020 Installation 380 Volt-Starkstromanschluss), eigenes Treppenhaus, Freisprechanlage, Sanitärleitungen in 2012 erneuert, Elektroleitungen in 2012 erneuert, Bodenbeläge in 2012 erneuert, Eingangsbereich EG in 2012 erneuert, Kunststofffenster mit Rollos bzw. mit Jalousien,
Gäste-WC/ Tageslichtbad/ Küche mit im Kaufpreis enthaltener Einbauküche/ 3 Wohnräume/ Studio/ kleiner Lagerraum im DG/ kleiner Spitzboden/ Dachterrasse;
Top-Zustand (in 2024 renoviert), leerstehend, nicht vermietet;
KG bestehend aus Vorraum, Heizungsraum, Waschküche, 2 Kellerräumen
Energiebedarfsausweis für Wohngebäude, Ausstellungsdatum 26.10.2025, Energieeffizienzklasse H, Energiekennwert 259,63 kWh/(m²*a)


Lagebeschreibung

Oberursel gilt als moderner Wirtschaftsstandort und attraktive, beliebte Stadt mit viel Lebensqualität. Mit ihren ca. 47.000 Einwohnern umfasst sie 6 Stadtteile. Oberstedten, als einer von diesen, liegt nur ca. 20 km nordwestlich von Frankfurt am Main entfernt. Infrastrukturell bietet Oberursel die gesamte Bandbreite, beispielsweise die International School.
Die Verkehrsanbindung ist in jeder Hinsicht erstklassig. Über die Autobahnen A661 und A5 sind Frankfurt am Main-City, der Flughafen und auch alle weiteren Metropolen im Rhein-Main-Gebiet bequem und zügig erreichbar. S-Bahn Anschluss mit enger Taktung besteht von Oberursel sowie Bad Homburg aus z.B. nach Frankfurt am Main Hbf., verschiedene Buslinien verkehren ebenfalls vor Ort.
Der Taunus, mit seiner waldreichen Gegend und den Ausflugszielen Herzberg, Großer Feldberg, Saalburg, Hessenpark, Limes und Lochmühle, befindet sich unmittelbar vor der „Haustür“.


Sonstige Angaben

Das Objekt kann -nach Vereinbarung- zeitnah übergeben werden.
Wir bitten um Verständnis, dass wir nur Anfragen von Interessenten mit vollständig ausgefüllten Profilangaben kontaktieren können.


Die vorstehenden Angaben und Informationen, ebenso wie von uns weitergegebene Objektunterlagen und -pläne, beruhen auf Informationen Dritter bzw. wurden uns von Dritten ausgehändigt. Für die Vollständigkeit und Richtigkeit übernehmen die Deutsche Privatfinanz AG und deren Makler keine Haftung.


Wohnung finden so einfach wie möglich - das ist unsere Mission!

Kostenlose Basic Features

0 € monatlich


  • Individuelles Such-Profil anlegen
  • Suchaufträge speichern
  • One-Klick Kontaktaufnahme

alles anzeigen

Jetzt kostenlos anmelden

Premium Features

19,99 € monatlich


  • Alle kostenlosen Features
  • Smart-Alarm per Whatsapp
  • Deine Chancen checken
  • Wohngegend analysieren

alles anzeigen

Jetzt Premium freischalten

Gewerblicher Anbieter

Deutsche Privatfinanz AG
Rieslingweg 1
55597 Wöllstein

Wohnglück-ID:
Objekt-Nr.:
WGL-841321
769