Einfamilienhaus freistehend in Vellberg

Balkon/­Terrasse
Einliegerwohnung
Garten/­-mitbenutzung
Gäste WC
Keller
Einbauküche
Garage/­Stellplatz

Einzigartiges historisches Anwesen trifft modernste Technik – Wohnen mit Charakter und Effizienz

Anfragen bisher

Premium

Meine Chancen

Premium

Fairer Preis

Premium

Kaufpreis

276 m²

9,5 Zi.

Grundriss

74541 Vellberg / Kleinaltdorf

Gewerblicher Anbieter

VON POLL IMMOBILIEN Schwäbisch Hall - CB Real Estate GmbH
Mauerstraße 19
74523 Schwäbisch Hall

Details

Grundstücksfläche
1.700 m²
Zimmerzahl
9,5
Haustyp
Einfamilienhaus freistehend
Etagenzahl
4
Nutzfläche
164 m²
Anzahl Schlafzimmer
6
Anzahl Badezimmer
4
Anzahl Garage/ Stellplatz
1
Objektzustand
Saniert
Baujahr
1803

Kosten

Kaufpreis
Käuferprovision
Käuferprovision beträgt 3,57 % (inkl. MwSt.) des beurkundeten Kaufpreises
Was kostet dein Umzug?

Stellplätze

Stellplatztyp
Carport
Anzahl
2

Objektbeschreibung

Dieses außergewöhnliche Anwesen aus dem Ursprungsbaujahr 1803 vereint auf beeindruckende Weise historischen Charme und modernste Wohntechnik.
Nach einer kompletten Kernsanierung in den Jahren 2023/2024 präsentiert sich das Gebäude heute als neuwertiges Niedrigenergiehaus auf dem Stand des Jahres 2025 – ein wahrhaft seltenes Juwel, das Geschichte, Stil und Nachhaltigkeit in Perfektion miteinander verbindet.


Auf einer Gesamtwohnfläche von rund 276 m² und einer Nutzfläche von ca. 164 m² bietet die Immobilie vielseitige Nutzungsmöglichkeiten – ideal für Familien, Mehrgenerationenwohnen oder Wohnen und Arbeiten unter einem Dach.
Das großzügige Grundstück mit rund 1.700 m² überzeugt durch seinen gepflegten Garten, alteingewachsene Bepflanzung und die sonnige Südterrasse, die zum Verweilen und Entspannen einlädt.


Bereits beim Betreten des Hauses wird die architektonische Einzigartigkeit spürbar: Sichtbalken, freigelegte Natursteine aus dem Ursprungsbaujahr und stilvolle Materialien schaffen eine unvergleichliche Atmosphäre.
Trotz seines historischen Ursprungs entspricht das Haus in technischer und energetischer Hinsicht einem Neubau – eine Symbiose, die nur äußerst selten zu finden ist.


Die energetische Komplettsanierung umfasst modernste Maßnahmen: eine Luft-/Wasser-Wärmepumpe, eine Lüftungsanlage mit Wärmerückgewinnung (93 %), dreifach verglaste Kunststofffenster, Vollwärmeschutz sowie eine Fußbodenheizung in allen Wohnbereichen.
Dank dieser Ausstattung erfüllt die Immobilie höchste Standards in Sachen Energieeffizienz und Komfort.
Die installierte Smart-Home-Steuerung ermöglicht die bequeme Bedienung sämtlicher Haustechnikfunktionen – modern, sicher und zukunftsorientiert.


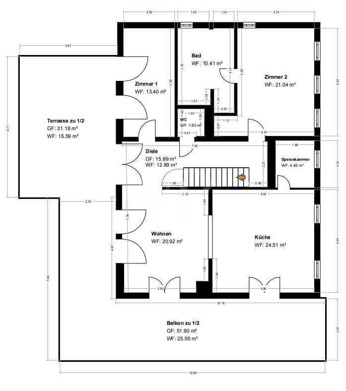
Im Erdgeschoss befinden sich zwei liebevoll gestaltete Einliegerwohnungen (ca. 19 m² und 25 m²), jeweils mit eigenem Eingang, Küche und vollwertigem Bad – ideal für Gäste, Angehörige oder als renditestarke Vermietungseinheiten.
Ergänzt wird diese Ebene durch ein großzügiges Hobby-, Gäste- oder Arbeitszimmer, den Technikraum sowie den Zugang zum sanierten Gewölbekeller – ein echtes Highlight mit beeindruckendem Charakter und 1A-Zustand.


Das Obergeschoss ist der zentrale Wohnbereich und beeindruckt mit einem weitläufigen Wohn-, Ess- und Küchenbereich, der durch seine Offenheit und Lichtfülle besticht.
Die exklusive NOLTE-Küche mit edler Arbeitsplatte aus brasilianischem Marmor lässt keine Wünsche offen.
Ein angrenzender Vorratsraum sorgt für zusätzlichen Komfort.
Auf dieser Ebene befinden sich außerdem ein Büro-/Gästezimmer, ein Gäste-WC sowie ein großzügiges Schlafzimmer mit Bad en Suite – ausgestattet mit italienischen Fliesen, Doppelwaschbecken, großer Dusche und Whirlpool-Badewanne.


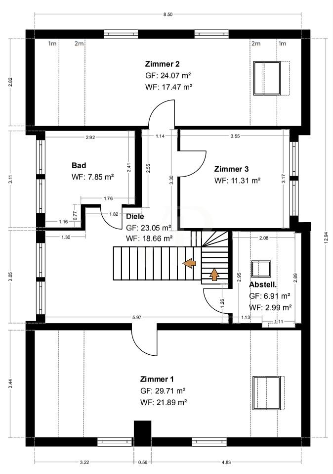
Im Dachgeschoss bieten drei weitere Zimmer flexible Nutzungsmöglichkeiten – ob als Kinder-, Gäste- oder Arbeitsräume.
Ein weiteres vollwertiges Badezimmer mit Dusche, Wanne und WC, sowie ein Abstellzimmer komplettieren diese Etage.


Über eine Treppe gelangt man in den vollständig ausgebauten Spitzboden, der zusätzlich Platz für ein Büro, Atelier oder Spielbereich bietet.


Abgerundet wird das Ensemble durch eine 5.000-Liter-Zisterne zur Außenbewässerung, Glasfaseranschluss sowie die Möglichkeit, das Grundstück bei Bedarf in zwei Flurstücke zu teilen – eine ideale Option für künftige Bebauungs- oder Erweiterungsvorhaben.


Diese Immobilie ist ein Paradebeispiel für die gelungene Verbindung von Tradition und Innovation.
Der historische Charakter des Hauses wurde mit größtem Feingefühl erhalten, während die moderne technische Ausstattung für höchsten Wohnkomfort sorgt.
Ein Zuhause, das sowohl ästhetisch als auch funktional Maßstäbe setzt – einzigartig, energieeffizient und zeitlos schön.


Bausubstanz & Energieausweis

A+

21,9 kWh/(m²*a)

A

B

C

D

E

F

G

H

Baujahr
1803
Objektzustand
Saniert
Wesentlicher Energieträger
LUFTWP
Heizungsart
Fußbodenheizung
Befeuerung
Wärmepumpe
Energieausweis
liegt vor
Energieausweistyp
Bedarfsausweis
Gültig bis
26.05.2035
Energieeffizienzklasse
A+
Endenergiebedarf
21,9 kWh/(m²*a)

Ausstattung

Hier die Highlights dieser einmaligen Immobilie in der Aufzählung:



  • Ursprungsbaujahr 1803

  • Kernsanierung komplett in 2023/2024

  • Ca. 276 m² gesamte Wohnfläche

  • Ca. 164 m² Nutzfläche

  • Ca. 1.700 m² Grundstücksfläche

  • Zwei Einliegerwohnungen (19 m² & 25 m²)

  • Neuwertiger Gesamtzustand (energetische Komplettsanierung)

  • Niedrigenergiehaus

  • Vollwärmeschutz

  • Luft-/Wasser- Wärmepumpe

  • Lüftungsanlage mit Wärmerückgewinnung (93%)

  • "NOLTE" - Küche mit Marmor Arbeitsplatte

  • Smart-HOME-Steuerung

  • Offener Wohn-, Küchen, Essbereich

  • Fußbodenheizung

  • Zisterne 5.000 Liter (Außenbewässerung)

  • Gewölbekeller (saniert)

  • Dreifach Kunststofffenster

  • Glasfaser

  • Ausgebauter Spitzboden


... und Vieles mehr


Weitere Informationen zur Immobilie und Bildmaterial stellen wir gerne nach persönlicher Rücksprache zur Verfügung.


Das VON POLL Immobilien-Team freut sich auf Ihre Anfrage.


Lagebeschreibung

Vellberg-Kleinaltdorf ist ein idyllischer Teilort der Stadt Vellberg im Landkreis Schwäbisch Hall und liegt eingebettet in die sanft hügelige Landschaft des Limpurger Landes. In wenigen Minuten erreichen Sie das historische Städtchen Vellberg, das mit seiner malerischen Altstadt, kleinen Geschäften, gemütlichen Cafés und Restaurants zum Verweilen einlädt.


Dort befinden sich Einkaufsmöglichkeiten, Ärzte, Apotheken und Schulen.


Eine gute Anbindung an die B19 ermöglicht eine schnelle Erreichbarkeit der umliegenden Städte wie Schwäbisch Hall, Crailsheim oder Ilshofen.


Die Umgebung bietet zahlreiche Freizeitmöglichkeiten – von Spaziergängen durch Streuobstwiesen und Wälder über sportliche Aktivitäten bis hin zu kulturellen Angeboten in Vellberg und Schwäbisch Hall. Familien, Naturliebhaber und Ruhesuchende finden hier gleichermaßen ein attraktives Zuhause.


Sonstige Angaben

Es liegt ein Energiebedarfsausweis vor.
Dieser ist gültig bis 26.5.2035.
Endenergiebedarf beträgt 21.90 kwh/(m²*a).
Wesentlicher Energieträger der Heizung ist Luft/wasser Wärmepumpe.
Das Baujahr des Objekts lt. Energieausweis ist 1803.
Die Energieeffizienzklasse ist A+.


GELDWÄSCHE: Als Immobilienmaklerunternehmen ist die von Poll Immobilien GmbH nach § 2 Abs. 1 Nr. 14 und § 11 Abs. 1, 2 Geldwäschegesetz (GwG) dazu verpflichtet, bei der Begründung einer Geschäftsbeziehung die Identität des Vertragspartners festzustellen und zu überprüfen, bzw. sobald ein ernsthaftes Interesse an der Durchführung des Immobilienkaufvertrages besteht. Hierzu ist es erforderlich, dass wir nach § 11 Abs. 4 GwG die relevanten Daten Ihres Personalausweises festhalten (wenn Sie als natürliche Person handeln) – beispielsweise mittels einer Kopie. Bei einer juristischen Person benötigen wir eine Kopie des Handelsregisterauszugs, aus welchem der wirtschaftlich Berechtigte hervorgeht. Das Geldwäschegesetz sieht vor, dass der Makler die Kopien bzw. Unterlagen fünf Jahre aufbewahren muss. Als unser Vertragspartner haben Sie auch eine Mitwirkungspflicht nach § 11 Abs. 6 GwG.


HAFTUNG: Wir weisen darauf hin, dass die von uns weitergegebenen Objektinformationen, Unterlagen, Pläne etc. vom Verkäufer bzw. Vermieter stammen. Eine Haftung für die Richtigkeit oder Vollständigkeit der Angaben übernehmen wir daher nicht. Es obliegt daher unseren Kunden, die darin enthaltenen Objektinformationen und Angaben auf ihre Richtigkeit hin zu überprüfen. Alle Immobilienangebote sind freibleibend und vorbehaltlich Irrtümer, Zwischenverkauf- und Vermietung oder sonstiger Zwischenverwertung.


UNSER SERVICE FÜR SIE ALS EIGENTÜMER:
Planen Sie den Verkauf oder die Vermietung Ihrer Immobilie, so ist es für Sie wichtig, deren Marktwert zu kennen. Lassen Sie kostenfrei und unverbindlich den aktuellen Wert Ihrer Immobilie professionell durch einen unserer Immobilienspezialisten einschätzen. Unser bundesweites und internationales Netzwerk ermöglicht es uns, Verkäufer bzw. Vermieter und Interessenten bestmöglich zusammenzuführen.


Wohnung finden so einfach wie möglich - das ist unsere Mission!

Kostenlose Basic Features

0 € monatlich


  • Individuelles Such-Profil anlegen
  • Suchaufträge speichern
  • One-Klick Kontaktaufnahme

alles anzeigen

Jetzt kostenlos anmelden

Premium Features

19,99 € monatlich


  • Alle kostenlosen Features
  • Smart-Alarm per Whatsapp
  • Deine Chancen checken
  • Wohngegend analysieren

alles anzeigen

Jetzt Premium freischalten

Gewerblicher Anbieter

VON POLL IMMOBILIEN Schwäbisch Hall - CB Real Estate GmbH
Mauerstraße 19
74523 Schwäbisch Hall

Wohnglück-ID:
Objekt-Nr.:
WGL-839306
25256262