Reihenhaus in Dillingen an der Donau (Dillingen a.d.Donau)

Balkon/­Terrasse
derzeit vermietet
Garten/­-mitbenutzung
Gäste WC
Keller

Zentrales Wohnen in einer ruhigen Umgebung

Anfragen bisher

Premium

Meine Chancen

Premium

Fairer Preis

Premium

399.000 €

Kaufpreis

128,75 m²

4 Zi.

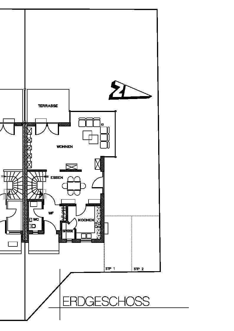
Grundriss

89407 Dillingen

Gewerblicher Anbieter

VR-Bank Donau-Mindel eG
Kapuzinerstr. 25
89407 Dillingen a.d.Donau

Details

Grundstücksfläche
291 m²
Zimmerzahl
4
Haustyp
Reihenhaus
Anzahl Schlafzimmer
3
Anzahl Badezimmer
1
Objektzustand
Gepflegt
Baujahr
1997

Kosten

Kaufpreis
399.000 €
Käuferprovision
2,5 %
Die Käuferprovision beträgt 2,50 % inkl. MwSt. vom Kaufpreis. Die Käuferprovision ist verdient und fällig mit notarieller Beurkundung. Die Immobilienabteilung der VR-Bank Donau-Mindel eG hat einen provisionspflichtigen Maklervertrag in gleicher Höhe mit dem Verkäufer abgeschlossen.
Was kostet dein Umzug?

Objektbeschreibung

Dieses reizvolle Reiheneckhaus im malerischen Dillinger Stadtteil Hausen präsentiert sich als harmonisches Zusammenspiel aus Wohnkomfort und einer ruhigen, naturnahen Umgebung. Mit einer Wohnfläche von rund 129 m² auf einem ca. 291 m² großen Grundstück bietet das Haus genug Raum, um sich zu entfalten und ein beständiges Zuhause zu schaffen.


Bereits im Erdgeschoss empfängt Sie ein Eingangsbereich, von dem aus alle Wohnräume bequem erreichbar sind. Ein praktisches Gäste-WC sorgt hier für zusätzlichen Komfort im Alltag. Die Küche ist angenehm dimensioniert und verfügt über eine angrenzende Speisekammer, in der Vorräte und Küchenutensilien ordentlich verstaut werden können – ein Detail, das für spürbare Ordnung und kurze Wege sorgt. Besonders schön gestaltet ist der offene Wohn- und Essbereich, der durch seine klare Raumaufteilung sowohl kommunikative als auch ruhige Wohnzonen ermöglicht. Während der Essbereich ideal zum geselligen Beisammensein geeignet ist, bietet der Wohnbereich Raum für Entspannung und gemütliche Stunden. Große Fensterflächen lassen viel Licht herein und schaffen eine warme, wohnliche Atmosphäre. Von hier aus gelangen Sie zudem direkt über die Terrasse in den Garten, wo sich der Alltag in der schönen Jahreszeit fast wie von selbst nach draußen verlagert.


Im Obergeschoss erwarten Sie drei gut geschnittene Schlafzimmer, die flexibel genutzt werden können – ob als Kinderzimmer, Schlafraum, Gästezimmer oder Homeoffice. Die Räume bieten viel Helligkeit und vermitteln ein harmonisches Wohngefühl. Ergänzt wird diese Ebene durch ein Tageslichtbad, das mit einer Badewanne für entspannte Momente sowie einer separaten Dusche für den schnellen Start in den Tag ausgestattet ist.


Ein weiteres Plus ist der Keller, der vielfältige Nutzungs- und Abstellmöglichkeiten bereithält. Ob Hobbyraum, Vorratsfläche oder Werkstatt – hier findet sich zusätzlicher Platz für individuelle Ideen.


Die Immobilie wird zurzeit vermietet, was sie zugleich zu einer attraktiven Kapitalanlage macht.


Wer also ein Zuhause sucht, das Ruhe, Wohnqualität und ein gepflegtes Umfeld miteinander verbindet oder nach einer wertstabilen Investition Ausschau hält, findet in diesem Reiheneckhaus im Dillinger Stadtteil Hausen gelegen ein rundum überzeugende Chance.


Bausubstanz & Energieausweis

A+

A

B

C

D

E

F

G

H

Baujahr
1997
Objektzustand
Gepflegt
Wesentlicher Energieträger
Gas
Heizungsart
Zentralheizung
Befeuerung
Gasheizung
Energieausweis
liegt vor
Energieausweistyp
Verbrauchsausweis
Ausstellungsdatum
22.10.2025
Gültig bis
21.10.2035
Energieeffizienzklasse
B

Ausstattung

Folgende Renovierungen und Modernisierungen wurden in den letzten Jahren durchgeführt:


• 2025: Gartenhaus renoviert
• 2024: Erneuerung Gastherme mit Warmwasserspeicher
• 2024: Erneuerung Kamin
• 2022: Erneuerung Terrasse
• 2011: Fassadenanstrich


Lagebeschreibung

Dillingen an der Donau, eine charmante Stadt im Herzen Schwabens, bietet die ideale Umgebung für Familien, die Wert auf Bildung und Freizeit legen. Die Immobilie liegt etwa 2,0 km westlich vom Stadtzentrum, in dem Stadtteil Hausen, und bietet somit eine angenehme Balance zwischen Ruhe und Nähe zu wichtigen Einrichtungen. In der Nähe finden Sie eine Vielzahl an Einkaufsmöglichkeiten, wie Supermärkte, Bäckereien und Drogeriemärkte, sowie verschiedene Bildungs- und Gesundheitseinrichtungen. Darüber hinaus bietet der Ort eine gute Verkehrsanbindung mit Bushaltestellen in unmittelbarer Nähe und einer Zugstation etwa 2,3 km entfernt. In der Umgebung finden Sie zudem zahlreiche Freizeit- und Naherholungsmöglichkeiten, wie Parks, Fitnessstudios, Restaurants und kulturelle Einrichtungen.


Sonstige Angaben

Alle Angaben in den Exposés sind ohne Gewähr und basieren ausschließlich auf Informationen, die uns von unserem jeweiligen Auftraggeber übermittelt wurden.
Wir übernehmen keine Gewähr für die Vollständigkeit, Richtigkeit und Aktualität dieser Angaben.


Wohnung finden so einfach wie möglich - das ist unsere Mission!

Kostenlose Basic Features

0 € monatlich


  • Individuelles Such-Profil anlegen
  • Suchaufträge speichern
  • One-Klick Kontaktaufnahme

alles anzeigen

Jetzt kostenlos anmelden

Premium Features

19,99 € monatlich


  • Alle kostenlosen Features
  • Smart-Alarm per Whatsapp
  • Deine Chancen checken
  • Wohngegend analysieren

alles anzeigen

Jetzt Premium freischalten

Gewerblicher Anbieter

VR-Bank Donau-Mindel eG
Kapuzinerstr. 25
89407 Dillingen a.d.Donau

Wohnglück-ID:
Objekt-Nr.:
WGL-837411
LH-2195