Sonstige in Ammersbek

Balkon/­Terrasse
Garten/­-mitbenutzung
Gäste WC
Einbauküche
Garage/­Stellplatz

Modernisiertes Einfamilienhaus mit Bungalowcharakter und Ausbaureserve

Anfragen bisher

Premium

Meine Chancen

Premium

Fairer Preis

Premium

639.000 €

Kaufpreis

120 m²

4 Zi.

22949 Ammersbek

Gewerblicher Anbieter

McMakler GmbH
Am Postbahnhof 17
10243 Berlin

Details

Grundstücksfläche
1.000 m²
Zimmerzahl
4
Haustyp
Sonstige
Bezugsfrei ab
nach Absprache
Anzahl Schlafzimmer
3
Anzahl Badezimmer
1
Anzahl Garage/ Stellplatz
1
Objektzustand
Gepflegt
Letzte Modernisierung/ Sanierung
2022
Baujahr
1972

Kosten

Kaufpreis
639.000 €
Käuferprovision
Die Provision i.H.v. 3,57 % inkl. MwSt. ist mit Kaufvertragsbeurkundung fällig, sofern der Verkaufspreis über 83.000,00 € liegt. Liegt der Verkaufspreis dagegen bei/unter 83.000,00 €, ist die fest vereinbarte Mindestprovision i.H.v. mind. 5.950,00
Was kostet dein Umzug?

Objektbeschreibung

Objektnr: 1069537


Zum Verkauf steht dieses Objekt in Ammersbek, in einer Nebenstraße, das sich sowohl zur Vermietung als auch zur Eigennutzung eignet. Dank eines stets pfleglichen Umgangs präsentiert sich das 1972 erbaute und im Jahr 2009 moderniserte Einfamilienhaus mit Bungalowcharakter und einer ca.35 m² großen Ausbaureserve in einem heute einladenden Zustand. Jüngste Modernisierungsmaßnahmen wurden im Jahr 2022 durchgeführt.
Folgende Modernisierungsmaßnahmen sind im Jahr 2009 durchgeführt worden:



  • gesamte Außenwanddämmung im EG

  • Fenster im EG

  • Badezimmer

  • teilüberdachte Terrasse: 2023


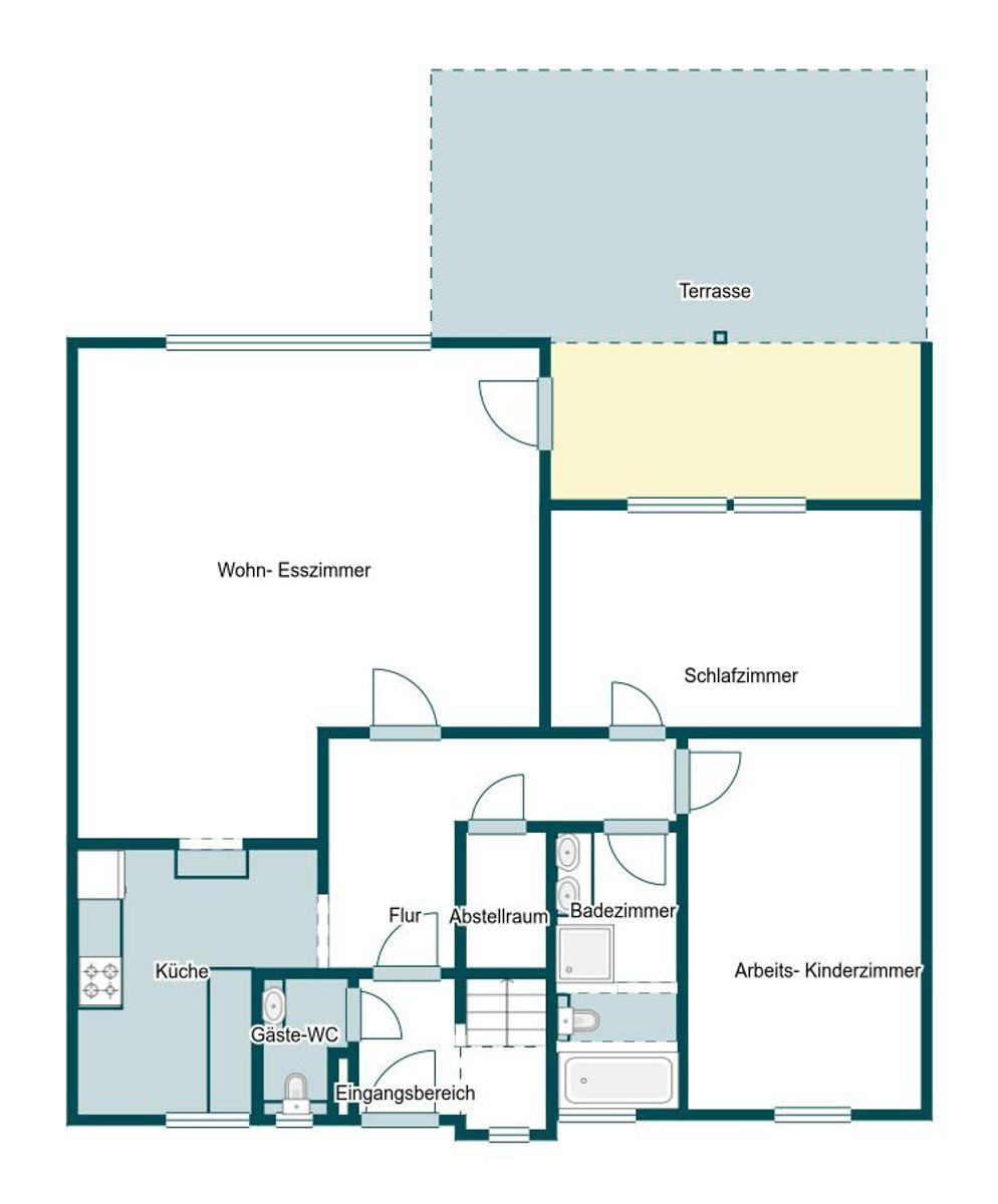
Verteilt liegen die rund 120 m² Wohnfläche auf zwei Ebenen und insgesamt 4 Zimmer. Daneben stehen ein Badezimmer mit Dusche und Badewanne sowie ein Gäste-WC in der Immobilie bereit. Die Ausstattung mit einer Einbauküche erleichtert den zukünftigen Bewohnern den Alltag. Eine
Video-Türsprechanlage, eine Alarmanlage, eine Smarthomevernetzung sowie ein Glasfaseranschluss
gehören ebenfalls zu den Ausstattungsmerkmalen.


Zur Erholung und Entspannung lädt das ca. 1.000 m² große Grundstück ein. Punkten kann das Haus durch einen großen Garten mit Terrasse und eigenem Teich, der zahlreiche Möglichkeiten eröffnet: Das großflächige Grundstück bietet vielfältige Nutzungsmöglichkeiten.


Darüber hinaus sind dem Einfamilienhaus eine Garage und 2 Freistellplätze für das Abstellen von Pkw zugehörig.


Bausubstanz & Energieausweis

A+

A

B

C

D

E

148,5 kWh/(m²*a)

F

G

H

Baujahr
1972
Objektzustand
Gepflegt
Letzte Modernisierung
2022
Wesentlicher Energieträger
Gas
Heizungsart
Zentralheizung
Befeuerung
Gasheizung
Energieausweis
liegt vor
Energieausweistyp
Bedarfsausweis
Energieeffizienzklasse
E
Endenergiebedarf
148,5 kWh/(m²*a)

Ausstattung


  • In zentrumsnaher Umgebung von Ammersbek, in einer Nebenstraße, zur Vermietung und zur
    Eigennutzung

  • Tolle Außenbereiche: Der Garten inkl. Teich auf ca. 1.000 m² Grund lädt zum Verweilen ein - eine
    teilüberdachte Terrasse bereichert das Erlebnis

  • Die Immobilie präsentiert sich in einem gepflegten Zustand - die letzten
    Modernisierungsmaßnahmen erfolgten im Jahr 2022, eine Kernsanierung des Erdgeschosses
    erfolgte im Jahr 2009

  • Vielseitig ausgestattetes Haus mit einer Smarthome-Vernetzung, einer Alarmanlage sowie einer
    Einbauküche

  • Objekt bietet Platz für Pkw dank einer Garage und 2 Freistellplätze


Lagebeschreibung

Lage: Attraktive Lage in Ammersbek mit guten Möglichkeiten für Selbstnutzer oder Anleger
Bildung und Betreuung: Familienfreundliche Lage dank Kindergarten und Schule in fußläufiger Entfernung
Nahversorgung: Verschiedene Anlaufstellen wie Supermarkt, Apotheke, Postfiliale und Bankfiliale in max. 6 km
Anbindung: Bahnhof und Autobahn gut erreichbar


Sonstige Angaben

Vereinbaren Sie noch heute einen Besichtigungstermin!








Alle Angaben sind ohne Gewähr und basieren ausschließlich auf Informationen, die uns von unserem Auftraggeber zur Verfügung gestellt wurden. Wir übernehmen keine Gewähr für die Vollständigkeit, Richtigkeit und Aktualität der Angaben.


Wohnung finden so einfach wie möglich - das ist unsere Mission!

Kostenlose Basic Features

0 € monatlich


  • Individuelles Such-Profil anlegen
  • Suchaufträge speichern
  • One-Klick Kontaktaufnahme

alles anzeigen

Jetzt kostenlos anmelden

Premium Features

19,99 € monatlich


  • Alle kostenlosen Features
  • Smart-Alarm per Whatsapp
  • Deine Chancen checken
  • Wohngegend analysieren

alles anzeigen

Jetzt Premium freischalten

Gewerblicher Anbieter

McMakler GmbH
Am Postbahnhof 17
10243 Berlin

Wohnglück-ID:
Objekt-Nr.:
WGL-836694
691228d794c30f7659f0c09a