Büro / Praxen in Freiberg (Freiberg West)

Helle freundliche Praxis- bzw. Bürofläche im EG sehr gute Lage, TOP!

Anfragen bisher

Premium

Meine Chancen

Premium

Fairer Preis

Premium

950 €

Kaltmiete

6 Zi.

09599 Freiberg

Gewerblicher Anbieter

ImmoFreiberg
Wernerstraße 1
09599 Freiberg

Details

Zimmerzahl
6
Typ der Gewerbeimmobilie
Büro / Praxen
Etagenzahl
1
Bezugsfrei ab
01.04.2026
Objektzustand
Gepflegt

Kosten

Kaltmiete
950 €
Nebenkosten
150 €
Kaution
1.900 €
Was kostet dein Umzug?

Objektbeschreibung

Objektbeschreibung


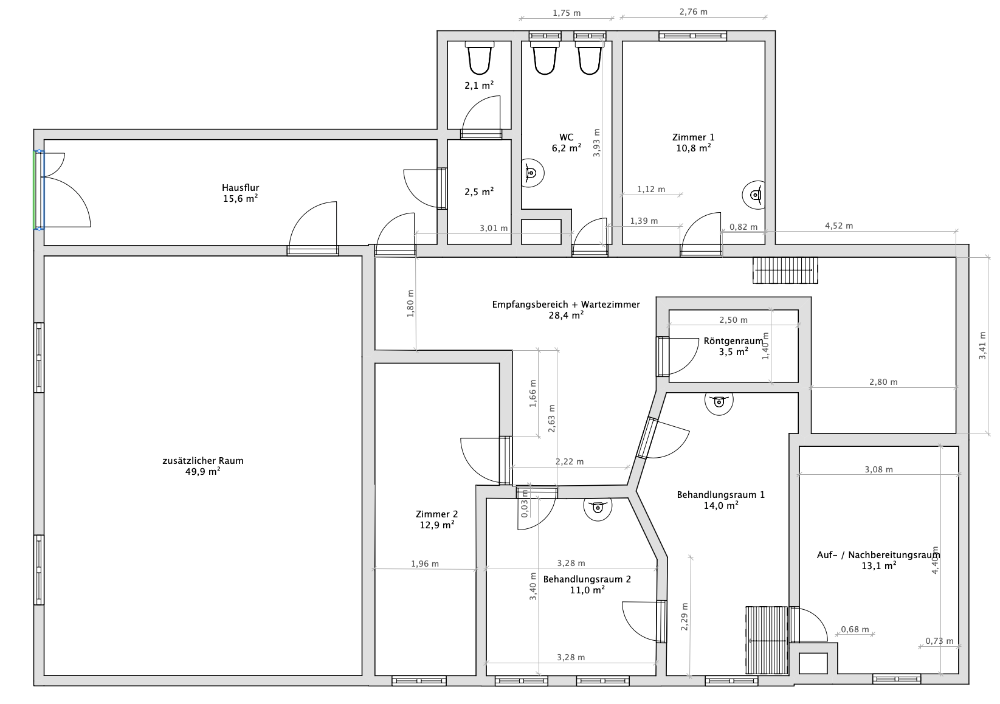
Zur Vermietung stehen attraktive und helle Praxisräume in einer ruhigen Wohnlage, die durch ihre durchdachte Aufteilung und die angenehme Arbeitsatmosphäre bestechen. Diese Räumlichkeiten bieten eine hervorragende Grundlage für Ihre berufliche Tätigkeit und überzeugen sowohl durch Funktionalität als auch durch ein einladendes Ambiente.


Herzstück der Praxis: Empfangs- und Wartebereich


Der großzügige Empfangsbereich mit dem angrenzenden Wartezimmer bildet das Herzstück der Praxis. Hier haben Ihre Patienten die Möglichkeit, in einer angenehmen Atmosphäre zu warten, während Sie sich auf die Behandlung konzentrieren können.


Behandlungsräume und Zusatzräume


Zusätzlich stehen Ihnen zwei lichtdurchflutete Behandlungsräume zur Verfügung, die flexibel genutzt werden können. Ein innenliegender Röntgenraum ergänzt das Angebot und ermöglicht eine umfassende Betreuung Ihrer Patienten. Darüber hinaus gibt es ein Bad mit WC, das sowohl für Mitarbeiter als auch für Patienten zur Verfügung steht. Direkt an einen Behandlungsraum angrenzend ist ein praktischer Vorbereitungsraum angrenzend.


Nutzungsmöglichkeiten


Die Praxisräume sind vielseitig nutzbar und eignen sich ideal für verschiedene medizinische oder therapeutische Berufe, wie zum Beispiel:


Zahnarztpraxis
Tierarztpraxis
Physiotherapie
Psychotherapie
u.v.m.


Alternativ können die Räume auch als Büro- oder Dienstleistungsräume genutzt werden, was Ihnen zahlreiche Möglichkeiten für Ihre individuelle Nutzungsidee eröffnet.


Optional: Inventarübernahme


Das bestehende Inventar des aktuellen Mieters (Zahnarztpraxis) kann bei Bedarf käuflich übernommen werden. Dies ermöglicht Ihnen einen reibungslosen Einstieg in Ihre neue Praxis und spart Ihnen die Investition in neue Ausstattung.


Ausstattung


Die Praxisräume bieten folgende Ausstattung:


Großzügiger Empfangs- und Wartebereich: Einladend und hell, ideal für die ersten Begegnungen mit Ihren Patienten.
Zwei helle Behandlungs-/Büroräume: Optimale Lichtverhältnisse für Ihre Arbeit.
Zusätzliche flexibel nutzbare Räume: Diese können je nach Bedarf als Behandlungs-, Büro- oder Lagerraum genutzt werden.
Ruhige Wohngegend: Die Lage bietet eine angenehme Umgebung und ist gut erreichbar.
Zusätzliche 50 m² Fläche anmietbar: Bei Bedarf besteht die Möglichkeit, die Fläche zu erweitern.


Vermietung


Die Vermietung erfolgt von privat, es fällt keine Maklerprovision an. Dies bedeutet für Sie eine Kostenersparnis und eine unkomplizierte Abwicklung.


Verfügbarkeit


Die Praxisräume sind ab dem 01. April 2026 verfügbar. Der Energieausweis werden derzeit erstellt und stehen Ihnen bald zur Verfügung.
Grundriss ohne Gewähr


Fazit


Die zur Vermietung stehenden Praxisräume bieten eine hervorragende Möglichkeit für verschiedene Nutzungen in einer ruhigen und gut erreichbaren Wohnlage. Die flexible Gestaltung und die Möglichkeit zur Inventarübernahme machen diesen Standort besonders attraktiv für Fachkräfte im Gesundheits- und Dienstleistungssektor. Sprechen Sie uns gerne mit Ihren individuellen Vorstellungen an – wir freuen uns darauf, gemeinsam die passende Lösung für Ihre Nutzungsidee zu finden!


Bausubstanz & Energieausweis

Objektzustand
Gepflegt
Heizungsart
Gasheizung
Befeuerung
Gasheizung

Lagebeschreibung

Die Praxis befindet sich in einer angenehmen, ruhigen Wohngegend mit guter Verkehrsanbindung. Parkmöglichkeiten sind in unmittelbarer Nähe vorhanden.


Sonstige Angaben

Interessiert? Haben wir Sie neugierig gemacht? Dann sollte einer gemeinsamen Besichtigung nichts mehr im Wege stehen. Für die Beantwortung Ihrer Fragen und zur Vereinbarung eines Besichtigungstermins stehen wir Ihnen gern zur Verfügung und freuen uns auf Ihren Anruf!


Wohnung finden so einfach wie möglich - das ist unsere Mission!

Kostenlose Basic Features

0 € monatlich


  • Individuelles Such-Profil anlegen
  • Suchaufträge speichern
  • One-Klick Kontaktaufnahme

alles anzeigen

Jetzt kostenlos anmelden

Premium Features

19,99 € monatlich


  • Alle kostenlosen Features
  • Smart-Alarm per Whatsapp
  • Deine Chancen checken
  • Wohngegend analysieren

alles anzeigen

Jetzt Premium freischalten

Gewerblicher Anbieter

ImmoFreiberg
Wernerstraße 1
09599 Freiberg

Wohnglück-ID:
Objekt-Nr.:
WGL-835108
264