Mehrfamilienhaus in Bergheim

derzeit vermietet
Garage/­Stellplatz

Attraktives Anlageobjekt: Vollvermietetes Wohn- und Geschäftshaus in zentraler Lage

Anfragen bisher

Premium

Meine Chancen

Premium

Fairer Preis

Premium

649.000 €

Kaufpreis

159 m²

8 Zi.

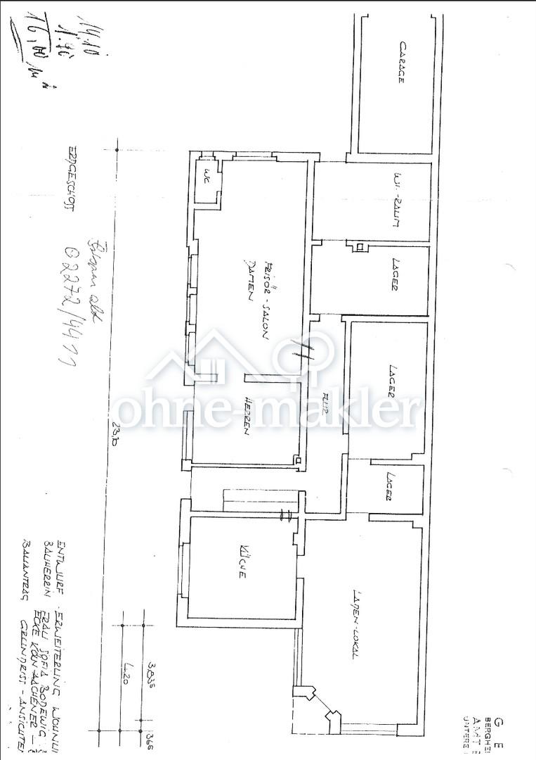
Grundriss

Lechenicher Straße 2
50126 Bergheim

Gewerblicher Anbieter

ohne-makler.net
Humboldtstraße 25 A
21509 Glinde

Details

Grundstücksfläche
404 m²
Zimmerzahl
8
Haustyp
Mehrfamilienhaus
Etagenzahl
2
Bezugsfrei ab
nach Absprache
Anzahl Garage/ Stellplatz
2
Baujahr
1950

Kosten

Kaufpreis
649.000 €
Käuferprovision
keine
Was kostet dein Umzug?

Stellplätze

Stellplatztyp
Freiplatz
Anzahl
2
Stellplatztyp
Garage
Anzahl
1

Objektbeschreibung

Bei dem angebotenen Objekt handelt es sich um ein Wohn- und Geschäftshaus in zentraler Lage von Bergheim, Lechenicher Straße 2. Das im Jahr 1950 errichtete Gebäude überzeugt durch seine solide Bausubstanz und die gute Vermietbarkeit. Es bietet eine Gesamtfläche von ca. 278 m² auf einem Grundstück von ca. 404 m².
Das Erdgeschoss umfasst zwei gut sichtbare Ladenlokale mit einer Gesamtfläche von ca. 119 m². Die Schaufensterfronten bieten ideale Präsentationsmöglichkeiten und gewährleisten eine hohe Kundenfrequenz. In den oberen Etagen befinden sich drei Wohneinheiten mit insgesamt ca. 159 m² Wohnfläche – eine Zwei-Zimmer-, eine Drei-Zimmer- sowie eine Ein-Zimmer-Wohnung mit Küche und Bad.
Alle Einheiten sind derzeit vermietet und sorgen für eine jährliche Kaltmieteinnahme von ca. 37.000€. Damit eignet sich das Objekt hervorragend als renditestarke Kapitalanlage mit stabilem Ertrag. Die Beheizung erfolgt über eine Gas-Zentralheizung.
Das Gebäude ist teilunterkellert und bietet somit zusätzliche Nutzfläche. Hinter dem Haus stehen eine Garage sowie mehrere Pkw-Stellplätze zur Verfügung.
Hinweis:
Für das Objekt liegen zwei separate Energieausweise vor – ein Energiebedarfsausweis für den Wohnteil und ein weiterer Energieausweis für die gewerblich genutzte Fläche. Beide Ausweise können bei Interesse eingesehen werden. Im Inserat ist der Energieausweis für den Wohnteil hinterlegt.


Bausubstanz & Energieausweis

A+

A

B

C

D

E

F

G

H

541 kWh/(m²*a)

Heizungsart
Zentralheizung
Befeuerung
Gasheizung
Energieausweis
liegt vor
Energieausweistyp
Bedarfsausweis
Energieeffizienzklasse
H
Endenergiebedarf
541 kWh/(m²*a)

Lagebeschreibung

Die Lage in der Lechenicher Straße zeichnet sich durch eine gute Erreichbarkeit, gewachsene Infrastruktur und eine solide Nachfrage nach Wohn- und Gewerbeflächen aus. Einkaufsmöglichkeiten, Gastronomie, öffentliche Verkehrsmittel und das Stadtzentrum sind fußläufig erreichbar.


Sonstige Angaben

Heizungsart: Zentralheizung
Energieträger: Gas


ohne-makler (OM) ist weder Anbieter noch Vermittler der Immobilie. OM betreibt eine Plattform für Immobilieneigentümer, die unter anderem die gleichzeitige Veröffentlichung einzelner Inserate auf mehreren Immobilienportalen ermöglicht. Die Inhalte dieser Inserate werden ausschließlich von Dritten verantwortet. Für die Richtigkeit, Vollständigkeit oder Rechtmäßigkeit der Angaben übernimmt OM keine Haftung. Hinweise auf mögliche Rechtsverstöße können jederzeit gemeldet werden und werden nach Prüfung umgehend bearbeitet.


Wohnung finden so einfach wie möglich - das ist unsere Mission!

Kostenlose Basic Features

0 € monatlich


  • Individuelles Such-Profil anlegen
  • Suchaufträge speichern
  • One-Klick Kontaktaufnahme

alles anzeigen

Jetzt kostenlos anmelden

Premium Features

19,99 € monatlich


  • Alle kostenlosen Features
  • Smart-Alarm per Whatsapp
  • Deine Chancen checken
  • Wohngegend analysieren

alles anzeigen

Jetzt Premium freischalten

Gewerblicher Anbieter

ohne-makler.net
Humboldtstraße 25 A
21509 Glinde

Wohnglück-ID:
Objekt-Nr.:
WGL-833568
397057