Etagenwohnung in Paderborn (Schloß Neuhaus)

Balkon/­Terrasse
derzeit vermietet
Garten/­-mitbenutzung
Gäste WC
Keller
Einbauküche
Garage/­Stellplatz

Vermietete ETW in Paderborn-Schloß Neuhaus mit Garage

Anfragen bisher

Premium

Meine Chancen

Premium

Fairer Preis

Premium

169.000 €

Kaufpreis

87,4 m²

4 Zi.

1. OG

33104 Paderborn

Gewerblicher Anbieter

McMakler GmbH
Am Postbahnhof 17
10243 Berlin

Details

Zimmerzahl
4
Wohnungstyp
Etagenwohnung
Etage, Geschoss
1
Etagenzahl
4
Mieteinnahmen pro Monat
520 €
Bezugsfrei ab
nach Absprache
Anzahl Schlafzimmer
3
Anzahl Badezimmer
1
Anzahl Garage/ Stellplatz
1
Objektzustand
Renovierungsbedürftig
Baujahr
1964

Kosten

Kaufpreis
169.000 €
Käuferprovision
Die Provision i.H.v. 3,57 % inkl. MwSt. ist mit Kaufvertragsbeurkundung fällig, sofern der Verkaufspreis über 83.000,00 € liegt. Liegt der Verkaufspreis dagegen bei/unter 83.000,00 €, ist die fest vereinbarte Mindestprovision i.H.v. mind. 5.950,00
Was kostet dein Umzug?

Objektbeschreibung

Objektnr: 1069445


Diese vermietete Etagenwohnung in ruhiger Wohnlage von Paderborn-Schloß Neuhaus bietet Kapitalanlegern eine attraktive Gelegenheit für ein langfristig sicheres Investment.


Die Wohnung ist seit vielen Jahren an eine zuverlässige Mieterin vermietet und erwirtschaftet derzeit jährliche Nettokaltmieteinnahmen von ca. 6.240 €. Eine marktgerechte Soll-Miete von rund 7.176 € ist gemäß aktuellem Mietspiegel kurzfristig realisierbar. Das monatliche Hausgeld beträgt ca. 270 €, davon sind etwa 151 € umlegbar.


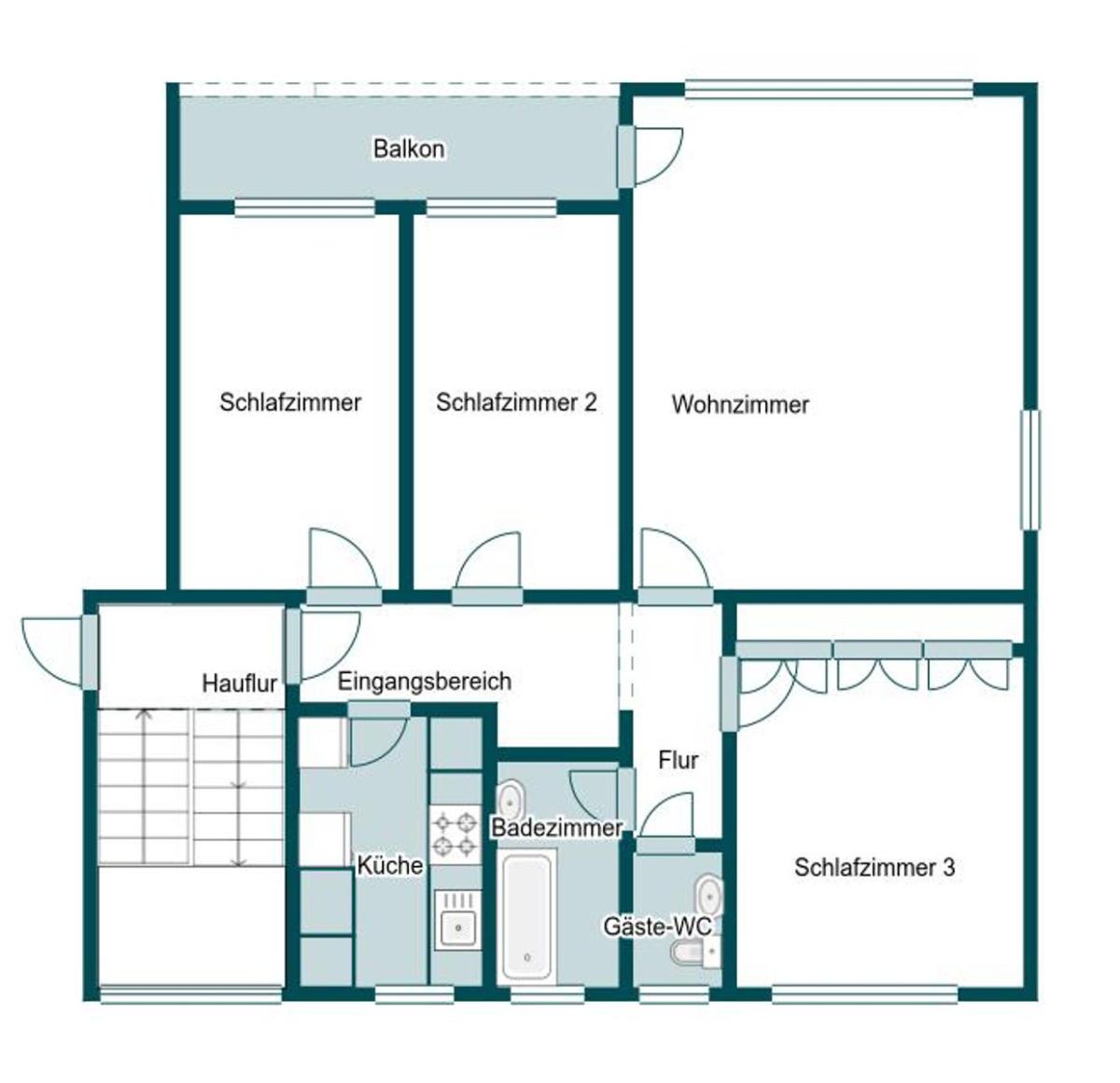
Mit einer Wohnfläche von rund 87,4 m² verteilt auf vier gut geschnittene Zimmer, darunter drei Schlafzimmer, überzeugt die Wohnung durch eine zeitgemäße Aufteilung mit stabiler Vermietbarkeit.


Positiv hervorzuheben ist, dass das Gebäude bereits teilweise energetisch modernisiert wurde. In den letzten Jahren wurde ein Wärmeverbundsystem verbaut und der Großteil der Fenster erneuert. Dadurch reduziert sich der zukünftige Investitionsbedarf erheblich. Der verbleibende Renovierungsbedarf betrifft im Wesentlichen die Wohnung selbst, während die Allgemeinbereiche und Außenanlagen sehr gepflegt sind.


Ein Balkon sowie der großzügige Gemeinschaftsgarten erhöhen die Wohnqualität und sichern die Attraktivität für künftige Mieter. Eine Garage, ein Kellerraum, Hausreinigung und Winterdienst runden das Angebot ab.


Dank der beliebten Lage in Paderborn-Schloß Neuhaus, der guten Infrastruktur und der nachhaltig hohen Mietnachfrage präsentiert sich diese Immobilie als solide Kapitalanlage mit langfristiger Perspektive.


Bausubstanz & Energieausweis

A+

A

B

C

D

E

F

G

H

Baujahr
1965
Objektzustand
Renovierungsbedürftig
Wesentlicher Energieträger
Öl
Heizungsart
Zentralheizung
Befeuerung
Ölheizung
Energieausweis
liegt vor
Energieausweistyp
Verbrauchsausweis
Energieverbrauchskennwert
101 kWh/(m²*a)
Energieeffizienzklasse
D

Ausstattung


  • Langjährig und zuverlässig vermietete Wohnung zu derzeit ca. 6.240€ JNKM

  • Kurzfristiges Erhöhungspotential

  • Regeneration an der frischen Luft dank eines Balkons sowie eines breitangelegten Gartens

  • Hausgeld: ca. 270 €, nicht umlegbar: rund 119 €

  • Eine Garage, ein Kellerraum und eine Hausreinigung runden das ansprechende Angebot ab


Lagebeschreibung

Lage: Attraktive Lage in Paderborn-Schloß Neuhaus mit guten Bedingungen für Investoren
Bildung und Betreuung: Familienfreundlicher Wohnkomfort dank Kindergarten und Schule in unmittelbarer Nähe
Nahversorgung: Supermarkt, Postfiliale und Bankfiliale in max. 5 Gehminuten Entfernung bieten gutes Wohnumfeld
Anbindung: Gut erreichbar: Bahnhof und Autobahn


Sonstige Angaben

Vereinbaren Sie noch heute einen Besichtigungstermin!








Alle Angaben sind ohne Gewähr und basieren ausschließlich auf Informationen, die uns von unserem Auftraggeber zur Verfügung gestellt wurden. Wir übernehmen keine Gewähr für die Vollständigkeit, Richtigkeit und Aktualität der Angaben.


Wohnung finden so einfach wie möglich - das ist unsere Mission!

Kostenlose Basic Features

0 € monatlich


  • Individuelles Such-Profil anlegen
  • Suchaufträge speichern
  • One-Klick Kontaktaufnahme

alles anzeigen

Jetzt kostenlos anmelden

Premium Features

19,99 € monatlich


  • Alle kostenlosen Features
  • Smart-Alarm per Whatsapp
  • Deine Chancen checken
  • Wohngegend analysieren

alles anzeigen

Jetzt Premium freischalten

Gewerblicher Anbieter

McMakler GmbH
Am Postbahnhof 17
10243 Berlin

Wohnglück-ID:
Objekt-Nr.:
WGL-828443
6908be598b81c643065045c6