Reihenhaus in Reinbek

Raumwunder in Reinbek in direkter Waldrandlage: "Gut geschnittenes Reihenmittelhaus mit Platz für die Familie"

Anfragen bisher

Premium

Meine Chancen

Premium

Fairer Preis

Premium

425.000 €

Kaufpreis

101 m²

4 Zi.

Grundriss

21465 Reinbek

Gewerblicher Anbieter

PIPPING Immobilien GmbH & Co. KG - Filiale Reinbek
Bahnhofstraße 12
21465 Reinbek

Details

Grundstücksfläche
170 m²
Zimmerzahl
4
Haustyp
Reihenhaus
Nutzfläche
76 m²
Objektzustand
Gepflegt
Baujahr
1978

Kosten

Kaufpreis
425.000 €
Käuferprovision
3,125 % inkl. USt.
Was kostet dein Umzug?

Objektbeschreibung

Bei dem angebotenen Objekt handelt es sich um ein zweigeschossiges Mittelreihenhaus, welches im Jahre 1978/79 in Holzrahmenbauweise in ruhiger und familienfreundlicher Lage des Sachsenwaldes errichtet wurde.


Das Außenkleid präsentiert sich mit einer weißen Kunstharzputzfassade. Kontrastreich setzen sich die dunkel gestrichenen, isolierverglasten Holzfenster aus nordischen Fichtenholz zur Fassade ab. Das Erdgeschoss ist mit Außenjalousien (größtenteils elektrisch) ausgestattet. Insgesamt verteilen sich derzeit drei gut geschnittene Zimmer auf einer Wohn- und Nutzfläche von ca. 101 m² über Erd- und Obergeschoss (im Obergeschoss wurden seinerzeit zwei Zimmer zusammengelegt – ein Rückbau wäre mit wenig Aufwand umsetzbar). Ein weiterer, sehr großzügig geschnittener Raum erwartet Sie im wohnlich ausgebaute Spitzboden. Dieser weist zusätzlich ca. 24 m² Nutzfläche aus und bietet viel Platz für die Familie oder kreative Hobbys. Das Objekt ist voll unterkellert. Die Beheizung sowie die Warmwasserversorgung übernimmt eine Gaszentralheizung der Fa. Buderus aus dem Jahre 2006. Ein Holzschuppen im Vordergarten bietet Platz für die Fahrräder, Gartengeräte & Co. Ein Garagenstellplatz auf dem Garagenhof wird mit veräußert.


Was Sie noch wissen sollten:


Die Immobilie befindet sich in einem sehr gepflegten Erhaltungszustand. Die Ausstattung entspricht allerdings in Teilbereichen nicht mehr dem heutigen Zeitgeschmack. Das Objekt eröffnet daher viel Gestaltungsspielraum für die Verwirklichung eigener Wohnideen. Die Fassadenwände sind laut Baubeschreibung aus Asbest-Zement-Tafeln.


Bausubstanz & Energieausweis

A+

A

B

C

D

E

152 kWh/(m²*a)

F

G

H

Baujahr
2006
Objektzustand
Gepflegt
Wesentlicher Energieträger
Gas
Heizungsart
Gasheizung
Befeuerung
Gasheizung
Energieausweistyp
Bedarfsausweis
Gültig bis
02.11.2035
Energieeffizienzklasse
E
Endenergiebedarf
152 kWh/(m²*a)

Ausstattung

Ein überdachter Eingangspodest führt Sie in das Haus. Ein geräumiger Windfang nimmt Sie hier in Empfang und verfügt über eine praktische Garderobennische mit viel Platz. Rechter Hand schließt sich ein helles Gäste-WC mit Fenster an.


Linker Hand ist die Küche gelegen, welche mit einer Einbauküche im Retrostil ausgestattet ist.


Geradezu führt der Weg in den offen konzipierten, über ca. 35 m² großen Wohn- und Essbereich, welcher sich dank eines raumbreiten Panoramafensters und der sonnigen Süd-Ost-Ausrichtung in angenehmen Lichtverhältnissen präsentiert. Die anliegende Terrasse lädt in den Sommermonaten zum Verweilen ein. Der Essbereich bildet das kommunikative Zentrum des Mittelreihenhauses.


Eine offene Holztreppe geleitet vom Wohn- und Essbereich auf das erste Obergeschoss. Die zweigeschossige Bauweise erlaubt auch auf dieser Etage großzügiges Wohnen ohne Schrägen.


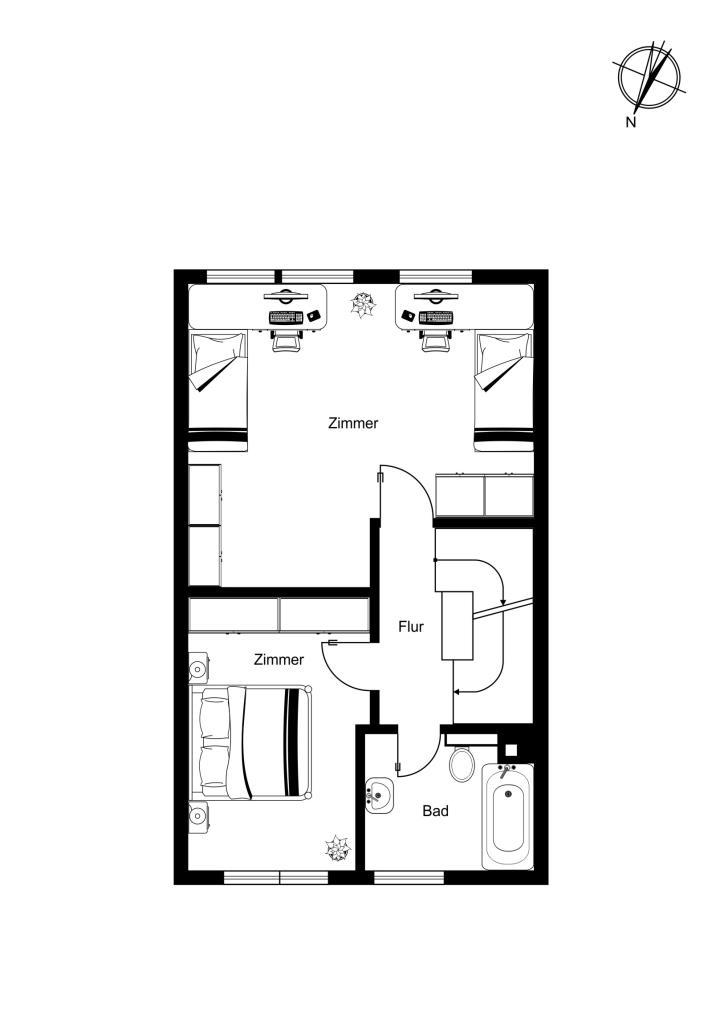
Direkt von der Diele gelangt der Besucher in zwei sehr großzügig geschnittene Schlafzimmer, eines davon ist mit einem praktischen Einbauschrank ausgestattet. Das geräumige Vollbad wurde schätzungsweise in den 90-iger Jahren saniert und ist mit hellen Wand- und Bodenfliesen, einer Dusche sowie einer Wanne ausgestattet.


Als ganz besonderes Highlight jedoch fungiert das ausgebaute Studiozimmer im Dachgeschoss, dessen Charme durch Schrägen und die offene Balkenlage unterstrichen wird und sich ideal als Jugend- oder Gästebereich anbieten würde. Zwei großzügige Dachflächenfenster sorgen für eine angenehme Belichtung.


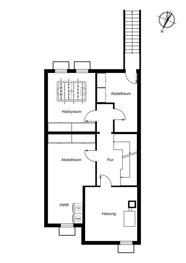
Zurück im Erdgeschoss führt der Weg in den Vollkeller, welcher zudem über einen separaten Außenzugang zu erreichen ist.


Neben dem Heizungsraum sind auf der untersten Geschossebene des Hauses zwei Vorratsräume sowie ein Hobbyraum untergebracht.


Lagebeschreibung

Reinbek - "die Stadt im Grünen", mit dem Ortsteil Krabbenkamp liegt im Speckgürtel von Hamburg in Schleswig-Holstein und zählt derzeit ca. 28.000 Einwohner. Das angebotene Einfamilienhaus liegt in besonders guter Lage von Reinbek-Krabbenkamp. Der Sachsenwald, das größte Waldgebiet Schleswig-Holsteins, und das Naturschutzgebiet Billetal beginnen quasi vor der Haustür.


Das Zentrum der Kleinstadt mit sämtlichen Einkaufsmöglichkeiten des täglichen Bedarfs liegt nur wenige Fahrrad- bzw. PKW – Minuten entfernt.


Weitere infrastrukturelle Gegebenheiten wie Bäcker, Supermärkte, Ärzte, und Apotheken sowie die S-Bahnhöfe Wohltorf und Aumühle sind fußläufig zu erreichen. Kindergärten, Grundschulen und weiterführende Schulen sind ebenfalls in der Nähe.


Das bekannte Schloss Reinbek, das Theaterforum, die Volkshochschule und andere Einrichtungen wie Stadtbibliothek und Museum Rade vermitteln kulturelle Erlebnisse. Hallenbad und Natursee, Reit-, Golf und sonstige Vereine bieten in unmittelbarer Umgebung einen bunten Mix an Möglichkeiten zur Freizeitgestaltung. Mit dem St. Adolf-Stift verfügt Reinbek auch über ein hochleistungsfähiges Krankenhaus.


Die Hamburger Innenstadt erreicht man mit dem PKW über die B 5 oder mit der S-Bahn in ca. 30 Fahrminuten. Die Auffahrten zur BAB 24 Hamburg-Berlin und zur BAB 1 Hamburg-Lübeck liegen nur 10 bzw. 20 Minuten entfernt.


Sonstige Angaben

Das ca. 170 m² große Grundstück mit sonnenverwöhnter Süd-Ost-Ausrichtung befindet sich in einem hübschen und zugleich pflegeleicht angelegten Zustand.


Der blickdicht eingewachsene Garten bietet ausreichen Privatsphäre. Die großzügige Terrasse garantiert angenehme Stunden unter freiem Himmel. Besonders ist die direkte Zuwegung zum angrenzenden Waldgebiet.


Das angebotene Mittelreihenhaus eignet sich besonders für einen Personenkreis, welcher ruhiges Wohnen inmitten einer gewachsenen Nachbarschaft und familienfreundlicher Umgebung zu schätzen weiß.


Wohnung finden so einfach wie möglich - das ist unsere Mission!

Kostenlose Basic Features

0 € monatlich


  • Individuelles Such-Profil anlegen
  • Suchaufträge speichern
  • One-Klick Kontaktaufnahme

alles anzeigen

Jetzt kostenlos anmelden

Premium Features

19,99 € monatlich


  • Alle kostenlosen Features
  • Smart-Alarm per Whatsapp
  • Deine Chancen checken
  • Wohngegend analysieren

alles anzeigen

Jetzt Premium freischalten

Gewerblicher Anbieter

PIPPING Immobilien GmbH & Co. KG - Filiale Reinbek
Bahnhofstraße 12
21465 Reinbek

Wohnglück-ID:
Objekt-Nr.:
WGL-828027
RH-2571012655