Einfamilienhaus freistehend in Altenkirchen (Altenkirchen (Westerwald))

Balkon/­Terrasse
Keller
Garage/­Stellplatz

Einfamilienhaus mit Charme in ruhiger Stadtrandlage von Altenkirchen

Anfragen bisher

Premium

Meine Chancen

Premium

Fairer Preis

Premium

198.880 €

Kaufpreis

90 m²

3 Zi.

Grundriss

57610 Altenkirchen (Westerwald)

Gewerblicher Anbieter

Schumacher Immobilien Management GmbH
Bahnhofstraße 16
57610 Altenkirchen

Details

Grundstücksfläche
948 m²
Zimmerzahl
3
Haustyp
Einfamilienhaus freistehend
Etagenzahl
2
Nutzfläche
30 m²
Anzahl Schlafzimmer
1
Anzahl Badezimmer
1
Anzahl Garage/ Stellplatz
1
Objektzustand
Gepflegt
Baujahr
1938

Kosten

Kaufpreis
198.880 €
Käuferprovision
3,57 % inkl. MwSt.
Der Interessent/spätere Käufer bestätigt dem Makler eine Courtage in Höhe von 3,57 % des Kaufpreises. Diese ist verdient und fällig mit Abschluss des Notarvertrages. Mit dem Verkäufer haben wir einen Vertrag zur Zahlung der Courtage in gleicher Höhe geschlossen.
Was kostet dein Umzug?

Stellplätze

Stellplatztyp
Carport
Anzahl
2

Objektbeschreibung

Zum Kauf bieten wir hier ein 1938 in Massiv-/Fachwerkbauweise errichtetes Einfamilienhaus an.
Die Immobilie präsentiert sich in einem gepflegtem Zustand. Der bisherige Eigentümer hat die Immobilie immer wieder renoviert und modernisiert. So wurde z. B. 2022 der Giebel zur Gartenseite hin isoliert und mit neuem Schiefer verkleidet. Die Gas-Brennwertheizung inkl. dem Schornstein wurden 2012 erneuert. Alle Fenster wurden ab dem Jahr 2009 durch Kunststofffenster isolierverglast ersetzt, zudem 2021 mit Insektenschutz ausgestattet. Auf dem ca. 948 m² großem Grundstück finden Sie neben dem Vorgarten Platz für einen großen Zier- und Nutzgarten sowie ein Gerätehaus/Werkstatt mit Starkstromanschluss, ein Doppelcarport und einer überdachten Lagerfläche für Brennholz.
Derzeit ist die Immobilie, mit einem befristeten Mietvertrag bis Ende Februar 2026 vermietet. Nach Absprache ist aber auch ein früherer Auszug jederzeit möglich. Somit stehen dem neuen Eigentümer alle Möglichkeiten offen.


Bausubstanz & Energieausweis

A+

A

B

C

D

E

F

G

H

259,7 kWh/(m²*a)

Baujahr
1938
Objektzustand
Gepflegt
Wesentlicher Energieträger
GAS
Heizungsart
Ofenheizung
Befeuerung
Gasheizung
Energieausweis
liegt vor
Energieausweistyp
Bedarfsausweis
Gültig bis
18.07.2030
Energieeffizienzklasse
H
Endenergiebedarf
259,7 kWh/(m²*a)

Ausstattung

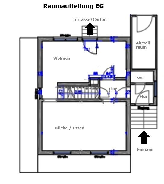
Über wenige Stufen treten Sie durch den Windfang in Ihr neues Zuhause ein. Im Erdgeschoss finden Sie eine geräumige Küche, die genügend Platz zum Aufstellen eines Esstisches bietet.
Ein großer Wohnraum mit einem Kaminofen, der im Winter für angenehme Wärme sorgt, laden zum Verweilen ein. Von hier aus ist ein direkter Zugang zur Terrasse und Garten möglich. Ein Gäste-WC, das aufgehübscht werden muss, rundet das Bild dieser Etage ab.
Über eine wunderschöne Naturholztreppe gelangen Sie ins 1. Obergeschoss, wo sich 2 Schlafzimmer befinden. Von dieser Etage aus ist auch über eine Bodentreppe der nicht ausgebaute Speicher zu erreichen, der weiteren Platz bietet. Vor allem der in den Wohnräumen verlegte Fußboden aus überwiegend Massivholzdielen bietet ein angenehmes Wohnklima.
Im Untergeschoss angekommen finden Sie das Badezimmer mit Waschbereich und einer großen Badewanne sowie ein separates WC. Zwei weitere Räume, welche als Hobby- oder Vorratsräume genutzt werden können sowie der Heizungsraum, der momentan auch als Waschküche genutzt wird, bieten ausreichend Platz. Praktisch ist auch ein weiter Ein-Ausgang von hier aus in den Garten.


Lagebeschreibung

Dieses schöne Haus finden Sie in Stadtrandlage von Altenkirchen im Westerwald, gelegen im nördlichen Rheinland-Pfalz. In wenigen Gehminuten erreichen Sie das Zentrum der Kreisstadt Altenkirchen. Hier finden Sie alle Annehmlichkeiten. Einzelhandelsgeschäfte, Supermärkte, Banken, Ärzte, Apotheken, Schulen und Kindergärten sind ebenso zahlreich vertreten wie Freizeitmöglichkeiten. Der hügelige und bewaldete Westerwald ist besonders reizvoll für Naturliebhaber.
Auch der Bahnhof mit Anschluss in Richtung Westerburg, Limburg und Au/Sieg, von dort nach Siegen oder Köln ist schnell erreichbar.
Bis nach Bonn sind es mit dem Auto über die A 560 ca. 45 km (40 Minuten), Köln erreichen Sie über die A3 nach ca. 65 km (in ca. 50 Minuten).
Altenkirchen


Sonstige Angaben

Das von Ihnen ausgewählte Objekt ist ein Angebot der SIM-Immobilien GmbH. Weitere Objekte finden Sie unter:


www.makler-ak.de | www.makler-nr.de | www.makler-ww.de


Bitte beachten Sie, dass der Verkäufer einen Kapitalnachweis verlangen kann.
Dieses Angebot wurde nach den Angaben des Eigentümers erstellt. Die Aussage zu den Maßen, den Verbrauchswerten oder dem Objektzustand sind daher ohne Gewähr zu sehen. Die Berechnung der Wohnfläche erfolgt nach Ermessen des Eigentümers und wird nach dessen Angaben veröffentlicht.


Wohnung finden so einfach wie möglich - das ist unsere Mission!

Kostenlose Basic Features

0 € monatlich


  • Individuelles Such-Profil anlegen
  • Suchaufträge speichern
  • One-Klick Kontaktaufnahme

alles anzeigen

Jetzt kostenlos anmelden

Premium Features

19,99 € monatlich


  • Alle kostenlosen Features
  • Smart-Alarm per Whatsapp
  • Deine Chancen checken
  • Wohngegend analysieren

alles anzeigen

Jetzt Premium freischalten

Gewerblicher Anbieter

Schumacher Immobilien Management GmbH
Bahnhofstraße 16
57610 Altenkirchen

Wohnglück-ID:
Objekt-Nr.:
WGL-827988
202511433