Haus in Suhl

Balkon/­Terrasse
Einliegerwohnung
Keller
Einbauküche
Garage/­Stellplatz

Landhausidylle – Großes Grundstück, eigener Teich & Ausbaupotenzial

Anfragen bisher

Premium

Meine Chancen

Premium

Fairer Preis

Premium

165.000 €

Kaufpreis

140 m²

5 Zi.

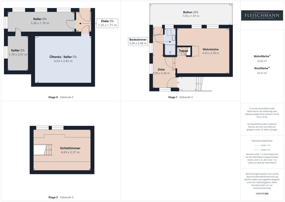
Grundriss

98527 Suhl

Gewerblicher Anbieter

Immobilienkanzlei Fleischmann GmbH & Co. KG
Am Bahnhof 10
98529 Suhl Suhl

Details

Grundstücksfläche
2.026 m²
Zimmerzahl
5
Immobilienart
Haus
Etagenzahl
2
Nutzfläche
40 m²
Anzahl Schlafzimmer
2
Anzahl Badezimmer
1
Anzahl Garage/ Stellplatz
2
Objektzustand
Renovierungsbedürftig
Baujahr
1932

Kosten

Kaufpreis
165.000 €
Was kostet dein Umzug?

Stellplätze

Stellplatztyp
Freiplatz
Anzahl
5
Stellplatztyp
Garage
Anzahl
5

Objektbeschreibung

Ihr Traumanwesen in Suhl – Ein Ort der Ruhe und Freiheit


Verstecken Sie sich vor der Welt – und leben Sie ganz für sich selbst! Auf 2.026 m² Grundstück erwartet Sie Ihr ganz persönlicher Rückzugsort. Zwei charmante Häuser mit insgesamt ca. 140 m² Wohnfläche bieten Ihnen unendlich viele Möglichkeiten:


Das Haupthaus (100 m²) bietet Raum für Ihre Familienvisionen – hell, großzügig, mit direktem Zugang zum Naturparadies vor der Tür.


Das zweite Haus (40 m²) ist perfekt als Gästehaus, Homeoffice oder kreativer Rückzugsort für ganz persönliche Projekte.


Genießen Sie die Sonne auf Ihrer Südwest-Terrasse und lassen Sie die Seele baumeln. Hier sind Sie nicht nur Besitzer eines Hauses, sondern eines Lebensgefühls – Natur, Privatsphäre und Raum zur Entfaltung.


Nutzen Sie diese seltene Gelegenheit und vereinbaren Sie noch heute Ihren exklusiven Besichtigungstermin. Entdecken Sie, was dieses Anwesen für Sie bereithält!


Einen virtuellen Rundgang und weiterführende Informationen zu dieser Immobilie erhalten Sie auf unserer Homepage www.hauptmakler.de oder schreiben Sie uns eine Email an info@hauptmakler.de oder rufen Sie uns an unter +49 3681 723981.


Bausubstanz & Energieausweis

Objektzustand
Renovierungsbedürftig
Heizungsart
Zentralheizung
Befeuerung
Ölheizung

Ausstattung

Ausstattung – Komfort, Raum und viele Möglichkeiten


Dieses Anwesen vereint Komfort und Potenzial auf einzigartige Weise – eine perfekte Kombination aus modernen Annehmlichkeiten und Raum für Ihre eigenen Ideen.


Das Badezimmer bringt Licht und Frische in Ihren Alltag: Mit Tageslicht, einer Badewanne und einer separaten Dusche, die für entspannte Momente nach einem langen Tag sorgt.


In der Küche erwartet Sie eine Einbauküche, die nicht nur funktional ist, sondern auch ein Fenster bietet, das beim Kochen den Blick ins Grüne freigibt – für ein echtes Gefühl von Weite und Freiheit.


Für Ihre Auszeiten im Freien haben Sie die Wahl zwischen gleich zwei Rückzugsorten:


Sonnenterrasse mit Südwest-Ausrichtung – perfekt für entspannte Sommerabende, an denen die Sonne untergeht und der Tag zur Ruhe kommt.


Balkon mit Aussicht – der ideale Ort, um den Blick über das weitläufige Grundstück schweifen zu lassen und die Natur zu genießen.


Praktische Details machen das Leben hier noch angenehmer:


Mehrere Stellplätze, darunter eine Garage und Außenstellplätze, bieten Platz für bis zu fünf Fahrzeuge.


Eine Vollunterkellerung sorgt für zusätzlichen Stauraum oder Platz für Ihre persönlichen Projekte.


Eine effiziente Zentralheizung sorgt für wohlige Wärme, und ein gemütlicher Kamin lädt an kühleren Tagen zum Verweilen und Entspannen ein.


Diese Ausstattung ist die perfekte Grundlage, um dieses Anwesen nach Ihren Vorstellungen zu gestalten – und bereits heute den Komfort zu genießen, der Ihren Alltag bereichert.


Lagebeschreibung

Lage – Idylle trifft perfekte Anbindung


Eingebettet in ein ruhiges, gewachsenes Wohngebiet von Suhl, vereint dieses Anwesen das Beste aus zwei Welten: absolute Privatsphäre in einer naturnahen Umgebung – und gleichzeitig kurze Wege zu allem, was das Leben angenehm macht.


Suhl, bekannt für seine charmante Atmosphäre, seine kulturelle Vielfalt und die umgebende Landschaft des Thüringer Waldes, bietet Ihnen hier eine Lage, die Ruhe und Lebensqualität mit urbaner Erreichbarkeit verbindet.


Kurze Wege für den Alltag:


Einkaufsmöglichkeiten für den täglichen Bedarf – nur ca. 500 Meter entfernt.


Kindergarten in 690 Metern erreichbar.


Grundschule, Realschule und Gymnasium innerhalb von 1,34 Kilometern – sicher und schnell erreichbar.


Pendler und Vielreisende profitieren von der Autobahnanbindung in nur 2,3 Kilometern Entfernung – so bleiben Sie flexibel und bestens vernetzt, ohne auf die Ruhe Ihres privaten Refugiums verzichten zu müssen.


Diese Lage ist ein seltener Glücksfall: Sie genießen die Geborgenheit eines familienfreundlichen Umfelds, während alle wichtigen Einrichtungen und die regionale Infrastruktur nur wenige Minuten entfernt sind.


Ein Zuhause, das Sie jeden Tag aufs Neue spüren lässt, wie wertvoll eine gute Lage wirklich ist.


Sonstige Angaben

Bei Interesse an dieser Immobilie nutzen Sie bitte das Kontaktformular auf dieser Seite.
Bitte tragen Sie Ihre Kontaktdaten (Name, Adresse, Tel.-Nr., E-Mail-Adresse) vollständig ein, da nur ein vollständig ausgefülltes Formular an uns übermittelt wird.
Wir werden Ihre Anfrage dann schnellstmöglich bearbeiten und Sie anschließend kontaktieren.
Im Rahmen der Besichtigung kann die Situation entstehen, dass sich mehrere Interessenten für den Kauf der Immobilie entscheiden. Der Erhalt des Zuschlages kann sowohl von persönlichen Entscheidungen des Eigentümers, wie auch von einem Preisangebot abhängen.


Bei Interesse an weiteren Immobilien, schauen Sie bitte auf unsere Homepage
www.hauptmakler.de
Dort finden Sie eine große Auswahl an Häusern, Wohnungen, Gewerbeobjekten, Baugrundstücken und anderen Objekten, die von unserem Makler-Team betreut werden.
Bitte beachten Sie auch unseren Wertgutachten-Service. Sollten Sie eine fundierte, fachkundige Einschätzung zum Wert Ihrer Immobilie benötigen- auch die bekommen Sie gerne von uns.
Der Makler schuldet keine Beratung hinsichtlich des Gebäudeenergiegesetzes.
Die bereitgestellten Grundrisse sind nicht maßstäblich und können von den vorhanden Maßen abweichen.


Gemäß Geldwäsche-Gesetz § 4 GwG sind unsere Vertragspartner / Interessenten zur Mitteilung ihrer Identität verpflichtet. Wir bitten um Vorlage eines gültigen Personalausweises oder eines gültigen Reisepasses, wenn ein Termin zur Besichtigung vereinbart wird.


Wohnung finden so einfach wie möglich - das ist unsere Mission!

Kostenlose Basic Features

0 € monatlich


  • Individuelles Such-Profil anlegen
  • Suchaufträge speichern
  • One-Klick Kontaktaufnahme

alles anzeigen

Jetzt kostenlos anmelden

Premium Features

19,99 € monatlich


  • Alle kostenlosen Features
  • Smart-Alarm per Whatsapp
  • Deine Chancen checken
  • Wohngegend analysieren

alles anzeigen

Jetzt Premium freischalten

Gewerblicher Anbieter

Immobilienkanzlei Fleischmann GmbH & Co. KG
Am Bahnhof 10
98529 Suhl Suhl

Wohnglück-ID:
Objekt-Nr.:
WGL-826712
EFH-V-17-25_WH