Reihenhaus in Timmendorfer Strand

Balkon/­Terrasse
Garten/­-mitbenutzung
Gäste WC
Einbauküche

Lebensqualität trifft Komfort – gepflegtes Reihenhaus mit Wohlfühlcharakter

Anfragen bisher

Premium

Meine Chancen

Premium

Fairer Preis

Premium

519.000 €

Kaufpreis

100,16 m²

4 Zi.

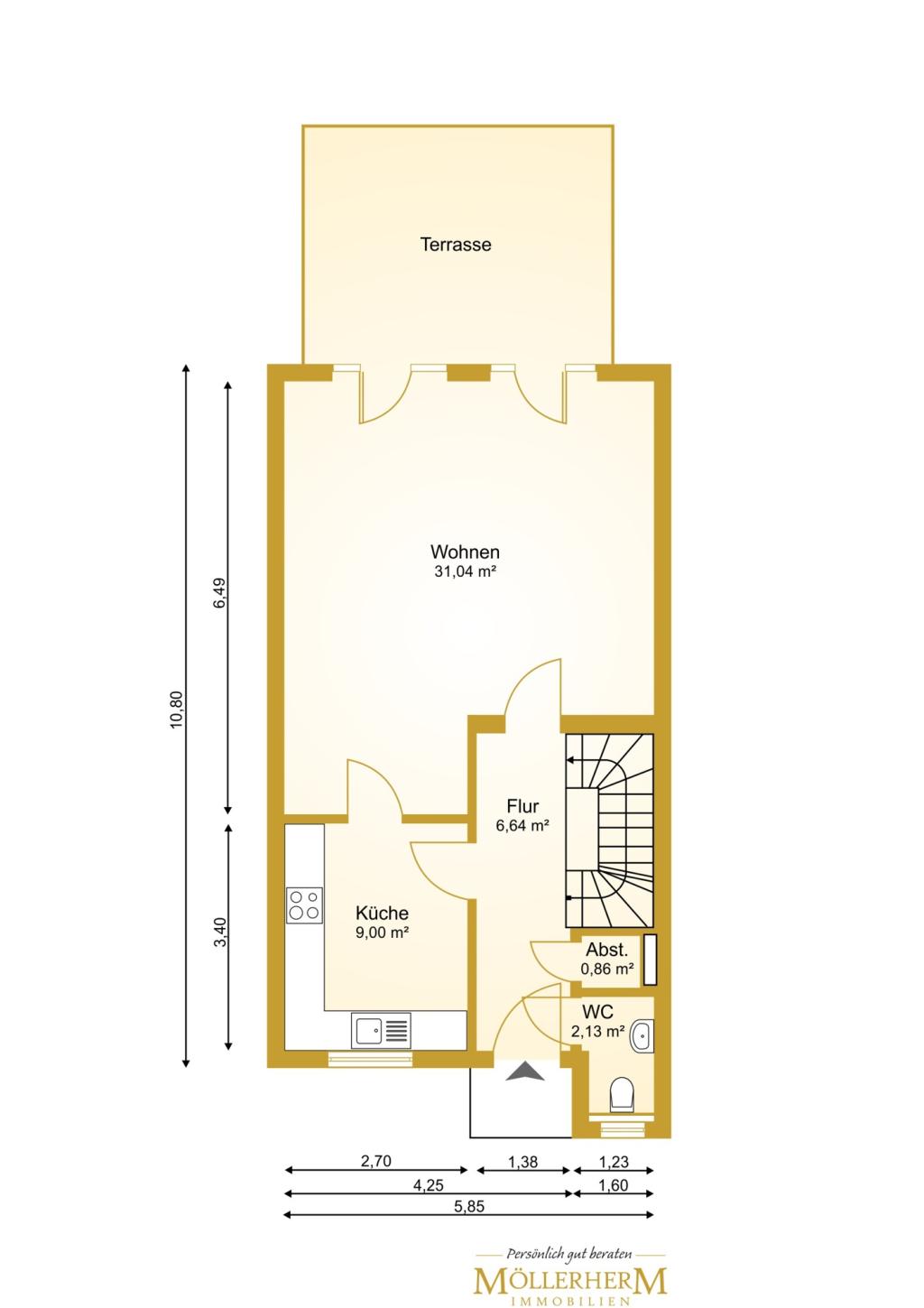
Grundriss

23669 Timmendorfer Strand

Gewerblicher Anbieter

Möllerherm Immobilien
Am Bürgerhaus 4
23683 Scharbeutz

Details

Grundstücksfläche
151 m²
Zimmerzahl
4
Haustyp
Reihenhaus
Nutzfläche
27,13 m²
Bezugsfrei ab
Nach Vereinbarung
Anzahl Schlafzimmer
3
Anzahl Badezimmer
1
Baujahr
2000

Kosten

Kaufpreis
519.000 €
Was kostet dein Umzug?

Objektbeschreibung

EXPOSÉ-DIREKT-DOWNLOAD: Jetzt das vollständige Exposé inkl. Adresse zu dieser Immobilie mit nur einer Anmeldung sofort selber herunterladen unter: www.moellerherm-immobilien.de/objekt/ID-MI-15070


OBJEKTBESCHREIBUNG:
Ein Reihenhaus, das kaum Wünsche offenlässt
Hier wartet Ihr neues Zuhause auf Sie – perfekt für alle, die zentrales, zugleich aber ruhiges Wohnen schätzen und Wert auf ein gepflegtes Umfeld sowie viel Platz unter einem Dach legen.
Das attraktive Reihenhaus, weiss verputzt mit rotem Klinkermauerwerk, überzeugt vor allem durch seine durchdachte Raumaufteilung. Auf drei Ebenen verteilen sich insgesamt fünf Zimmer, einschließlich des bis in den Dachboden ausgebauten Wohnraums. Hinzu kommen ein Badez(...)


Die vollständige Objektbeschreibung, noch mehr Bilder und, falls vorhanden, einen virtuellen 360-Grad-Rundgang zu dieser Immobilie sehen Sie auf unserer Internetseite unter: www.moellerherm-immobilien.de/objekt/ID-MI-15070


Bausubstanz & Energieausweis

A+

A

B

C

D

E

F

G

H

Baujahr
2000
Wesentlicher Energieträger
GAS
Heizungsart
Sonstige
Energieausweis
liegt vor
Energieausweistyp
Verbrauchsausweis
Gültig bis
22.10.2035
Energieverbrauchskennwert
66 kWh/(m²*a)
Energieeffizienzklasse
B

Ausstattung

EXPOSÉ-DIREKT-DOWNLOAD: Jetzt das vollständige Exposé inkl. Adresse zu dieser Immobilie mit nur einer Anmeldung sofort selber herunterladen unter: www.moellerherm-immobilien.de/objekt/ID-MI-15070


AUSSTATTUNG:



  • Reihenmittelhaus mit 127,29 m² Wohn- und Nutzfläche

  • gefliester Keller

  • Baujahr 1999/2000

  • Weiss verputztes Eigenheim mit rotem Mauerwerk und Satteldach

  • 3 Wohnebenen

  • 4 Zimmer + 1 Zimmer im ausgebauten Dachgeschoss

  • vollwertig ausgestattete Einbauküche

  • 1 Badezimmer mit Wanne und Dusche

  • 1 Gäste-WC im Erdgeschoss

  • 1 Garderobe bzw. Abstellraum im Eingangsbereich

  • Wohnfläche im Dachboden mit Velux-Fenster und beheizte und belüftete Kellerräume (gefliest)

  • gefliester und beheizter K(...)


Die vollständige Objektbeschreibung, noch mehr Bilder und, falls vorhanden, einen virtuellen 360-Grad-Rundgang zu dieser Immobilie sehen Sie auf unserer Internetseite unter: www.moellerherm-immobilien.de/objekt/ID-MI-15070


Lagebeschreibung

Timmendorfer Strand – das elegante Herz der Lübecker Bucht


Nur rund eine halbe Stunde von der Hansestadt Lübeck entfernt liegt Timmendorfer Strand – eines der bekanntesten und beliebtesten Seebäder an der Ostsee. Der Ort präsentiert sich mit eleganten Boutiquen, stilvoller Gastronomie und einem besonderen Flair, das Besucher aus nah und fern begeistert.
Die verkehrsberuhigte Zone geht harmonisch in die großzügige Fußgängerzone über, von der es nur wenige Schritte bis zur Promenade unter den alten, schattenspendenden Kiefern sind. Von hier öffnet sich der Blick auf den kilometerlangen, feinen Sandstrand, der sich bis zum idyllischen Hafen im benachbarten Niendorf erstreckt.
Der kleine, urige Hafen war einst ein reiner Fischereihafen und wurde im Laufe der Jahre um einen modernen Yachthafen erweitert. Während Niendorf mit seinem maritimen Charme begeistert, verleiht Scharbeutz mit seiner jugendlichen Lebendigkeit dem Umfeld zusätzlichen Reiz.
Zahlreiche Veranstaltungen, kulturelle Highlights und ein vielseitiges Freizeitangebot machen Timmendorfer Strand das ganze Jahr über zu einem Erlebnis. Einkaufsmöglichkeiten aller Art, Banken, Ärzte und Apotheken befinden sich direkt im Ort – alles, was man für ein komfortables Leben am Meer braucht.
Das Reihenhaus liegt in einer Sackgasse ca. 15 Minuten zu Fuß vom Zentrum entfernt. Die Bundestraße B 76 führt an Timmendorfer Strand vorbei und die Autobahnauffahrt zur A1 ist 6 Autominuten entfernt. So sind Sie schnell in Richtung Lübeck und Hamburg oder gen Norden unterwegs. Darüber hinaus bestehen gut ausgebaute Bus- und Bahnverbindungen.


Sonstige Angaben

EXPOSÈ-DIREKT-DOWNLOAD
Als Qualitätsmakler für Norddeutschland bieten wir Ihnen einen Direkt-Exposé-Download auf unserer Homepage. Link zum Objekt auf unserer Homepage: www.moellerherm-immobilien.de/objekt/ID-MI-15070


Einfach auf unserer Internetseite anmelden und das Exposé inkl. Adresse direkt selber herunterladen.


VORTEILE



  • sofortige automatische Exposé-Beantwortung nach Anmeldung

  • Exposé inkl. Adresse sofort selber herunterladen

  • Zugriff auch auf alle anderen Immobilien-Angebote & Exposés mit nur einer Anmeldung


KOSTENLOSE MARKTWERTEINSCHÄTZUNG & ERST-BERATUNG
www.unser-immobilienwert.de
(Unsere Beratung ist für den Eigentümer unverbindlich und kostenfrei, Tel. 0800 77 16 100)


ABLAUF IMMOBILIENVERKAUF
www.moellerherm-immobilien.de/ablauf


DIE MÖLLERHERM-METHODE
www.moellerherm-immobilien.de/moellerherm-methode


ALLE IMMOBILIENANGEBOTE
www.moellerherm-immobilien.de/aktuelle-angebote-wohnen


PROSPEKTHAFTUNG
Wir haben alle Angaben nach bestem Wissen und Gewissen für Sie zusammengetragen, jedoch ist Irren menschlich und es kann daher immer mal sein, dass sich der eine oder andere Fehler eingeschlichen hat. Das Angebot ist daher freibleibend und unverbindlich. Die Objektangaben wurden uns vom Eigentümer bereitgestellt, eine Prospekthaftung ist ausgeschlossen. Zwischenverkauf, Irrtum, Auslassung und Änderung sind vorbehalten.


Wohnung finden so einfach wie möglich - das ist unsere Mission!

Kostenlose Basic Features

0 € monatlich


  • Individuelles Such-Profil anlegen
  • Suchaufträge speichern
  • One-Klick Kontaktaufnahme

alles anzeigen

Jetzt kostenlos anmelden

Premium Features

19,99 € monatlich


  • Alle kostenlosen Features
  • Smart-Alarm per Whatsapp
  • Deine Chancen checken
  • Wohngegend analysieren

alles anzeigen

Jetzt Premium freischalten

Gewerblicher Anbieter

Möllerherm Immobilien
Am Bürgerhaus 4
23683 Scharbeutz

Wohnglück-ID:
Objekt-Nr.:
WGL-826655
MI-15070