Haus in Altmärkische Höhe (Boock)

Balkon/­Terrasse
Dachboden
Garten/­-mitbenutzung
Keller

Sanierungsbedürftiger Hof mit großer Scheune, fast 1 Hektar

Anfragen bisher

Premium

Meine Chancen

Premium

Fairer Preis

Premium

42.000 €

Kaufpreis

224 m²

10 Zi.

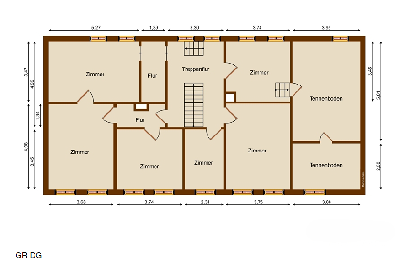
Grundriss

39606 Altmärkische Höhe

Privater Anbieter

Details

Grundstücksfläche
9.411 m²
Zimmerzahl
10
Immobilienart
Haus
Bezugsfrei ab
nach Vereinbarung
Baujahr
1890

Kosten

Kaufpreis
42.000 €
Was kostet dein Umzug?

Objektbeschreibung

Dieses Juwel ist gut geeignet für eine Wohngemeinschaft oder eine Hofgemeinschaft.
Mit Handwerklichem Geschick ist dieses auch schnell wieder in Schuss und bereit zum Einzug.

Das Grundstück steht seit ca 30 Jahren leer.
Das Mehrfamilienhaus hat 224m² Wohnfläche auf zwei Etagen.
Teilunterkellerung unter einem Raum (ehemaliges Badezimmer), ca 15-20m².
Der Dachboden ist ausbaufähig.
Das Dach hat 3 Teileindeckungen: Wellasbest, Betonziegel und Tonziegel.
Kernsanierung für Wasser- und Stromleitungen nötig. (Strom und Wasserunternehmen beide direkt im Ort vorhanden)
Keine Heizungsanlage vorhanden, außer einem sehr großen verzierten Kachelofen (auf den Bildern zu sehen), der 2/3 der unteren Etage (4 Räume) geheizt hat.
Hausanschlusskasten für Strom sowie Leitungen und Anschluss für Wasser und Tel/DSL im Haus vorhanden.
Grundriss fürs Haus vorhanden.
Kein Denkmalschutz und keine Altlasten.

Es gibt eine Sammelgrube, die aber auch saniert werden muss, da sie beschädigt wurde.
Das Grundstück ist komplett geschlossen, ausgeschlossen ist die ca 7200m² große Wiese.
Es sind Stallungen für Schweine/Hühner/Rinder/Pferde vorhanden.
Es gibt eine Garage.
Die Scheune ist ein Herzstück und umfasst ca 450m².

Boock hat ca 120 Einwohner, überwiegend Menschen im fortgeschrittenen Alter.
Einkaufsmöglichkeiten sind rundherum um den Ort in den Nachbarorten. Die nächst größere Stadt ist Osterburg (per Buslinie erreichbar), dort gibt es Schulen, Kitas, Einkaufsmöglichkeiten sowie einen Bahnhof und auch Busbahnhof.
Der Luftkurort Arendsee ist auch in ca 15min mit dem Auto erreichbar.


Privatverkauf ohne Makler
Bei Interesse melden Sie sich gerne bei mir, unter bestimmten Vorraussetzungen ist auch ein Mietkauf möglich. (nur mit einer Anzahlung, wenn ihr das nicht könnt, dann bitte nicht anfragen)

Bausubstanz & Energieausweis


Wohnung finden so einfach wie möglich - das ist unsere Mission!

Kostenlose Basic Features

0 € monatlich


  • Individuelles Such-Profil anlegen
  • Suchaufträge speichern
  • One-Klick Kontaktaufnahme

alles anzeigen

Jetzt kostenlos anmelden

Premium Features

19,99 € monatlich


  • Alle kostenlosen Features
  • Smart-Alarm per Whatsapp
  • Deine Chancen checken
  • Wohngegend analysieren

alles anzeigen

Jetzt Premium freischalten

Privater Anbieter

Wohnglück-ID:
Objekt-Nr.:
WGL-824969