Mehrfamilienhaus in Stuttgart (Gablenberg)

Balkon/­Terrasse
Garten/­-mitbenutzung
Keller
Einbauküche
Garage/­Stellplatz

Vorteilhafte Gelegenheit: MFH mit 3 WE und Wertsteigerungspotenzial in Citylage

Anfragen bisher

Premium

Meine Chancen

Premium

Fairer Preis

Premium

799.000 €

Kaufpreis

228 m²

10 Zi.

70186 Stuttgart

Gewerblicher Anbieter

McMakler GmbH
Am Postbahnhof 17
10243 Berlin

Details

Grundstücksfläche
331 m²
Zimmerzahl
10
Haustyp
Mehrfamilienhaus
Etagenzahl
3
Mieteinnahmen pro Monat
1.565,82 €
Bezugsfrei ab
nach Absprache
Anzahl Schlafzimmer
7
Anzahl Badezimmer
3
Anzahl Garage/ Stellplatz
1
Objektzustand
Renovierungsbedürftig
Baujahr
1910

Kosten

Kaufpreis
799.000 €
Käuferprovision
Die Provision i.H.v. 2,98 % inkl. MwSt. ist mit Kaufvertragsbeurkundung fällig, sofern der Verkaufspreis über 83.000,00 € liegt. Liegt der Verkaufspreis dagegen bei/unter 83.000,00 €, ist die fest vereinbarte Mindestprovision i.H.v. mind. 5.950,00
Was kostet dein Umzug?

Objektbeschreibung

Objektnr: 1063829


Als ideale Wahl für Kapitalanleger und Eigennutzer präsentiert sich dieses Objekt in Stuttgart. Die attraktive Lage stellt eine vielfältige Auswahl an Freizeitaktivitäten wie Sportclubs, Fitnessstudios, Parks und Veranstaltungen bereit, die einen abwechslungsreichen und aktiven Alltag ermöglichen. Der nahegelegene Schlossgarten und der Ostendplatz laden zu Spaziergängen und Freizeitaktivitäten im Grünen ein.


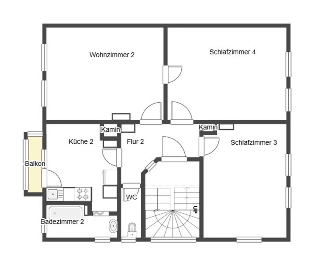
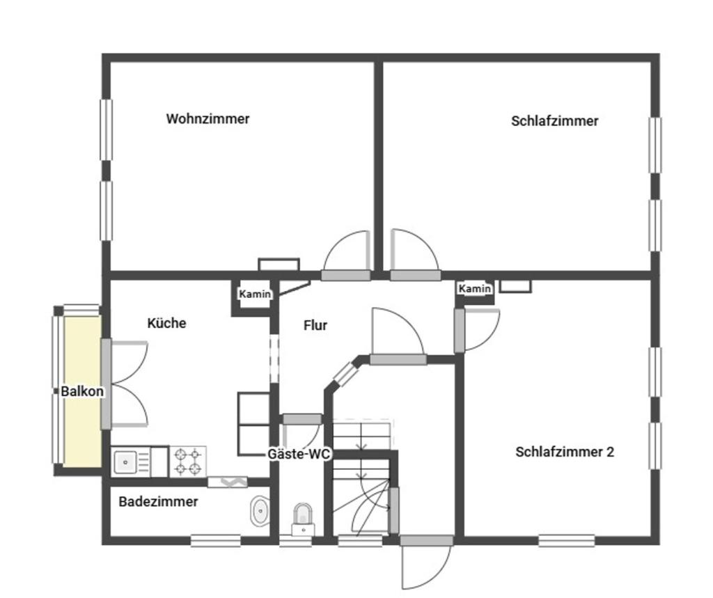
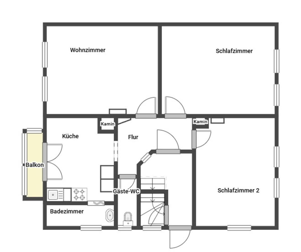
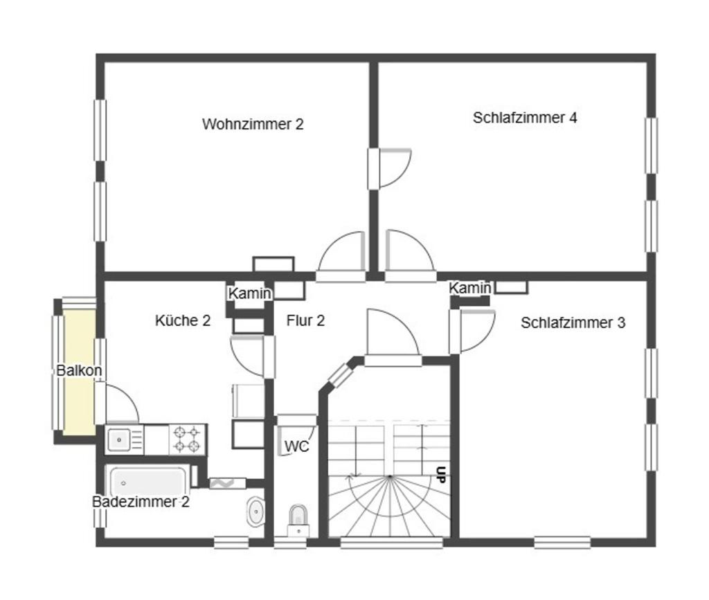
Die Immobilie mit 3 Wohneinheiten befindet sich in renovierungsbedürftigem Zustand und bietet viel Potenzial, das Sie sich nun zunutze machen können. Über die ansprechende gegenwärtige Vermietung werden ca. 18.789,84 € jährlich erwirtschaftet. Auch als ideales Zuhause für einen Mehrgenerationenhaushalt bietet die Immobilie ausreichend Platz und Privatsphäre für alle Familienmitglieder. Das Objekt verfügt über eine Gesamtfläche von ca. 228 m², die sich auf insgesamt 10 Zimmer verteilt. Die Ausstattung mit einer Einbauküche erleichtert den zukünftigen Bewohnern den Alltag. Gelegen ist das Eigenheim auf einem ca. 331 m² großen Grundstück.
Das Haus ist voll unterkellert und bietet mit einem historischen Gewölbekeller zusätzlichen Stauraum. Im Hinterhof befindet sich ein idyllischer Gartenbereich mit Grünflächen, der ideal für entspannte Stunden im Freien genutzt werden kann.
Der zum Gebäude gehörende Schuppen kann als Garage verwendet werden, und direkt davor gibt es eine bequeme Parkmöglichkeit für Ihren Pkw. Geheizt wird das Haus mit einer effizienten Gasheizung. Dieses Mehrfamilienhaus vereint den Charme einer ruhigen Wohnlage mit allen Vorteilen der urbanen Nähe zur Stuttgarter Innenstadt. Ob als wertbeständige Investition oder als zukünftiges Eigenheim – hier eröffnen sich Ihnen vielfältige Möglichkeiten.


Bausubstanz & Energieausweis

A+

A

B

C

D

E

F

G

H

306,6 kWh/(m²*a)

Baujahr
1910
Objektzustand
Renovierungsbedürftig
Wesentlicher Energieträger
Gas
Heizungsart
Zentralheizung
Befeuerung
Gasheizung
Energieausweis
liegt vor
Energieausweistyp
Bedarfsausweis
Energieeffizienzklasse
H
Endenergiebedarf
306,6 kWh/(m²*a)

Ausstattung


  • Mehrfamilienhaus in attraktiver Lage von Stuttgart kann eigengenutzt oder vermietet werden mit Nutzungsmöglichkeit als Mehrgenerationshaus

  • Ansprechende Vermietung zu ca. 18.789,84 € jährlich

  • Schuppen mit Parkmöglichkeit

  • Vollunterkellert

  • Komfort entsteht durch die vielseitige Ausstattung des Hauses inkl. Einbauküche

  • Der Außenbereich umfasst einen Garten sowie 3 Balkone


Lagebeschreibung

Lage: Attraktive urbane Lage, große Vielfalt für Kulturbegeisterte und kurze Wege
Bildung und Betreuung: Nur ca. 800 m zu Kindergarten und Schule
Nahversorgung: Supermarkt, Apotheke u.a. in weniger als 5 Gehminuten Entfernung
Anbindung: Bushaltestelle, Bahnhof sowie Autobahn in einiger Entfernung gut erreichbar


Sonstige Angaben

Vereinbaren Sie noch heute einen Besichtigungstermin!








Alle Angaben sind ohne Gewähr und basieren ausschließlich auf Informationen, die uns von unserem Auftraggeber zur Verfügung gestellt wurden. Wir übernehmen keine Gewähr für die Vollständigkeit, Richtigkeit und Aktualität der Angaben.


Wohnung finden so einfach wie möglich - das ist unsere Mission!

Kostenlose Basic Features

0 € monatlich


  • Individuelles Such-Profil anlegen
  • Suchaufträge speichern
  • One-Klick Kontaktaufnahme

alles anzeigen

Jetzt kostenlos anmelden

Premium Features

19,99 € monatlich


  • Alle kostenlosen Features
  • Smart-Alarm per Whatsapp
  • Deine Chancen checken
  • Wohngegend analysieren

alles anzeigen

Jetzt Premium freischalten

Gewerblicher Anbieter

McMakler GmbH
Am Postbahnhof 17
10243 Berlin

Wohnglück-ID:
Objekt-Nr.:
WGL-823734
67179d0bc5d63c4e28e12408