Einfamilienhaus freistehend in Gauting

Balkon/­Terrasse
Garten/­-mitbenutzung
Gäste WC
Keller
Einbauküche
Garage/­Stellplatz

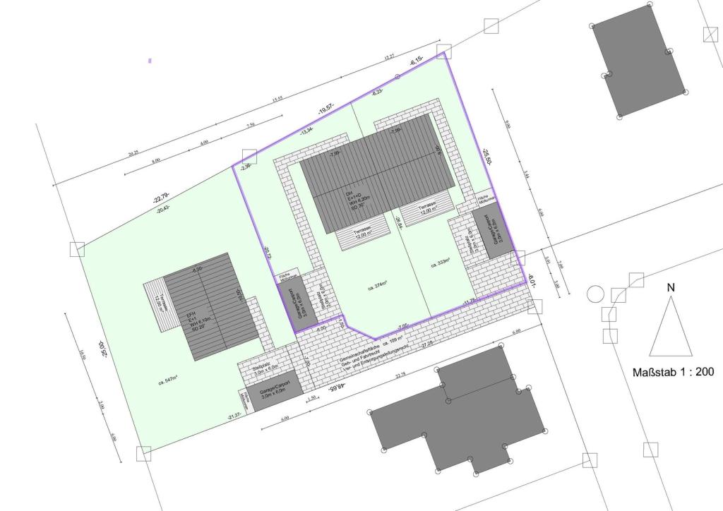
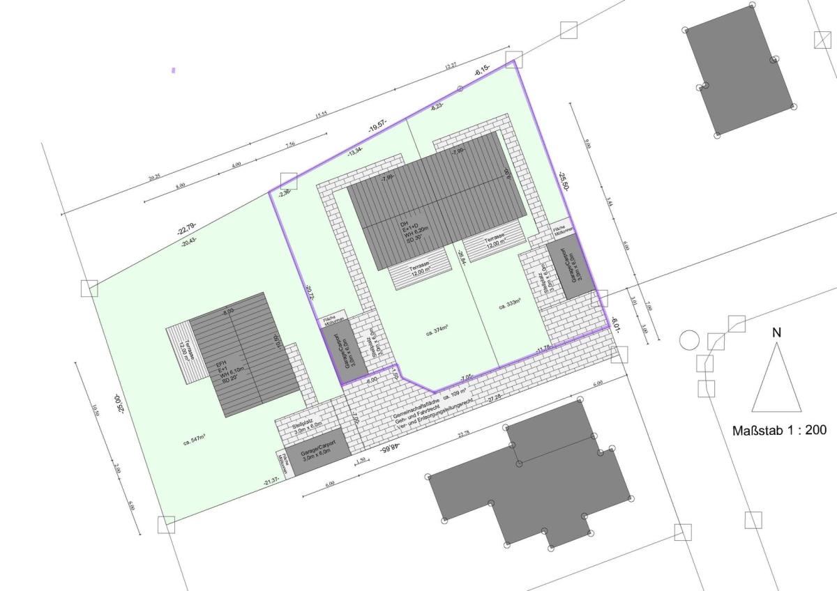
Sonniges Teilgrundstück am Waldrand mit einem EFH, mit genehmigten Bauvorbescheid für DH/EFH!

Anfragen bisher

Premium

Meine Chancen

Premium

Fairer Preis

Premium

849.000 €

Kaufpreis

6 Zi.

82131 Gauting

Gewerblicher Anbieter

McMakler GmbH
Am Postbahnhof 17
10243 Berlin

Details

Grundstücksfläche
780 m²
Zimmerzahl
6
Haustyp
Einfamilienhaus freistehend
Etagenzahl
1
Bezugsfrei ab
ab sofort
Anzahl Schlafzimmer
4
Anzahl Badezimmer
2
Anzahl Garage/ Stellplatz
1
Objektzustand
Gepflegt
Baujahr
1954

Kosten

Kaufpreis
849.000 €
Käuferprovision
Die Provision i.H.v. 3,57 % inkl. MwSt. ist mit Kaufvertragsbeurkundung fällig, sofern der Verkaufspreis über 83.000,00 € liegt. Liegt der Verkaufspreis dagegen bei/unter 83.000,00 €, ist die fest vereinbarte Mindestprovision i.H.v. mind. 5.950,00
Was kostet dein Umzug?

Objektbeschreibung

Objektnr: 1064765


Das hier zum Verkauf angebotene Grundstück überzeugt mit seiner nahen Waldrandlage in Gauting-Königswiesen, sowie einer Gesamtgröße von etwa 780 m² Grundfläche (inkl. anteiliger Zufahrt von 2/3, ca. 73 m²). Durch die Nord-Süd Ausrichtung und die ruhige Lage in einem Wohnviertel am Waldrand bietet dieses Grundstück ideale Voraussetzungen für Ihr neues Zuhause.


Das erhaltungswürdige Bestandsgebäude bietet Potential für ein neues, sonnige Zuhause für die ganze Familie mit den Vorteilen der exklusiven Waldrandlage und unweit entfernten Naherholungsgebieten.


Bausubstanz & Energieausweis

A+

A

B

C

D

E

F

G

H

348,7 kWh/(m²*a)

Baujahr
1954
Objektzustand
Gepflegt
Wesentlicher Energieträger
Öl
Heizungsart
Zentralheizung
Befeuerung
Ölheizung
Energieausweis
liegt vor
Energieausweistyp
Bedarfsausweis
Energieeffizienzklasse
H
Endenergiebedarf
348,7 kWh/(m²*a)

Ausstattung


  • In ruhiger Umgebung in Waldrandlage von Gauting, beschaulich und sicher in einer Nebenstraße, ideal für eine Eigennutzung

  • Der teils sichtgeschützte Garten auf ca. 780 m² Grund lädt zum Verweilen ein - eine Terrasse und ein Balkon bereichern das Erlebnis

  • Die Immobilie präsentiert sich in einem gepflegten Zustand

  • Solide ausgestattetes Haus mit einer Einbauküche sowie Holzdielenböden

  • Objekt bietet Staufläche im Keller sowie Platz für Pkw dank 2 Garagen und eines Freistellplatzes


Lagebeschreibung

Lage: Idyllische Waldrandlage in Gauting-Königswiesen - bietet wahre Entspannung und Erholung
Bildung und Betreuung: Für Bildung und Betreuung ein Kindergarten vorhanden (max. 6 km)
Nahversorgung: Rund 6 km zu wichtigen Anlaufstellen wie Supermärkten, Apotheken, Postfilialen und Bankfilialen
Anbindung: Bushaltestelle, Bahnhof und Autobahn komfortabel erreichbar


Sonstige Angaben

Vereinbaren Sie noch heute einen Besichtigungstermin!








Alle Angaben sind ohne Gewähr und basieren ausschließlich auf Informationen, die uns von unserem Auftraggeber zur Verfügung gestellt wurden. Wir übernehmen keine Gewähr für die Vollständigkeit, Richtigkeit und Aktualität der Angaben.


Wohnung finden so einfach wie möglich - das ist unsere Mission!

Kostenlose Basic Features

0 € monatlich


  • Individuelles Such-Profil anlegen
  • Suchaufträge speichern
  • One-Klick Kontaktaufnahme

alles anzeigen

Jetzt kostenlos anmelden

Premium Features

19,99 € monatlich


  • Alle kostenlosen Features
  • Smart-Alarm per Whatsapp
  • Deine Chancen checken
  • Wohngegend analysieren

alles anzeigen

Jetzt Premium freischalten

Gewerblicher Anbieter

McMakler GmbH
Am Postbahnhof 17
10243 Berlin

Wohnglück-ID:
Objekt-Nr.:
WGL-823684
675c02acf6bdbaeda11e762e