Einfamilienhaus freistehend in Wandlitz (Basdorf)

Garten/­-mitbenutzung
Keller
Einbauküche
Garage/­Stellplatz

Seltene Familienidylle: 5-Zimmer EFH in Wandlitz

Anfragen bisher

Premium

Meine Chancen

Premium

Fairer Preis

Premium

299.900 €

Kaufpreis

120 m²

5 Zi.

16348 Wandlitz

Gewerblicher Anbieter

McMakler GmbH
Am Postbahnhof 17
10243 Berlin

Details

Grundstücksfläche
682 m²
Zimmerzahl
5
Haustyp
Einfamilienhaus freistehend
Etagenzahl
1
Bezugsfrei ab
01.11.2025
Anzahl Schlafzimmer
4
Anzahl Badezimmer
1
Anzahl Garage/ Stellplatz
1
Objektzustand
Renovierungsbedürftig
Baujahr
1938

Kosten

Kaufpreis
299.900 €
Käuferprovision
Die Provision i.H.v. 3,57 % inkl. MwSt. ist mit Kaufvertragsbeurkundung fällig, sofern der Verkaufspreis über 83.000,00 € liegt. Liegt der Verkaufspreis dagegen bei/unter 83.000,00 €, ist die fest vereinbarte Mindestprovision i.H.v. mind. 5.950,00
Was kostet dein Umzug?

Objektbeschreibung

Objektnr: 1068734


Charmante Immobilie mit Potenzial in idyllischer Lage von Wandlitz


Zum Verkauf steht dieses Einfamilienhaus in einer ruhigen Nebenstraße von Wandlitz – eine sichere und beschauliche Wohnlage, die sich sowohl zur Eigennutzung als auch zur Vermietung bestens eignet. Die idyllische Vorstadtumgebung spricht vor allem Familien mit Kindern und Ruhesuchende an.


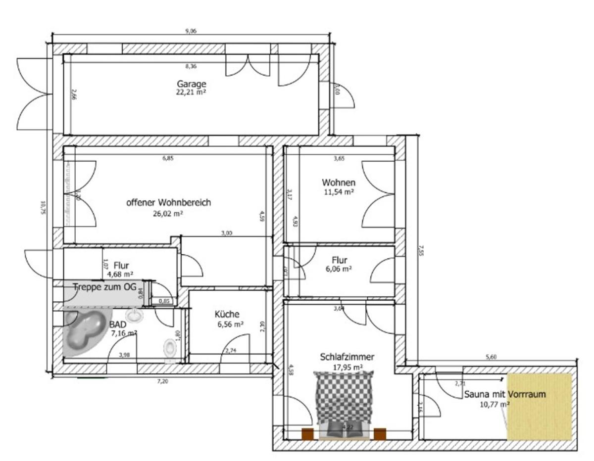
Das Haus befindet sich in renovierungsbedürftigem Zustand und bietet Ihnen daher die Möglichkeit, Ihre individuellen Wohnideen zu verwirklichen. Auf insgesamt ca. 120 m² Wohnfläche, verteilt auf Erdgeschoss und Dachgeschoss, stehen Ihnen fünf Zimmer zur Verfügung. Dank der guten Raumaufteilung sind bis zu vier Schlafzimmer möglich, sodass hier auch eine Familie mit drei Kindern problemlos Platz findet. Ein Badezimmer mit Badewanne ist ebenfalls vorhanden. Ein besonderes Highlight ist der hauseigene Wellness-Bereich mit Sauna, der Ihnen exklusiven Erholungs- und Entspannungskomfort im eigenen Zuhause ermöglicht.


Die Immobilie wurde teilweise modernisiert: Die Elektrik wurde im gesamten Haus erneuert, und alle Fenster wurden 2004 durch doppelt verglaste Kunststofffenster ersetzt. Beheizt wird das Haus aktuell über eine Ölheizung, die zwar funktionsfähig ist, jedoch in absehbarer Zeit ersetzt werden sollte.


Zusätzlichen Raum bietet die Teilunterkellerung, die vielfältig genutzt werden kann – von Stauraum bis hin zu Hobby- oder Arbeitsbereichen.


Das ca. 682 m² große Grundstück lädt zum Entspannen und Gestalten ein. Der großzügige Garten eröffnet zahlreiche Nutzungsmöglichkeiten – von einer Spielwiese für Kinder bis hin zu einer grünen Oase für Hobbygärtner.


Für Ihr Fahrzeug stehen sowohl eine Garage als auch ein Freistellplatz zur Verfügung – so gehört die Parkplatzsuche der Vergangenheit an.


Bausubstanz & Energieausweis

A+

A

B

C

D

E

F

G

211,5 kWh/(m²*a)

H

Baujahr
1938
Objektzustand
Renovierungsbedürftig
Wesentlicher Energieträger
Öl
Heizungsart
Zentralheizung
Befeuerung
Ölheizung
Energieausweis
liegt vor
Energieausweistyp
Bedarfsausweis
Energieeffizienzklasse
G
Endenergiebedarf
211,5 kWh/(m²*a)

Ausstattung


  • In ruhiger Umgebung in Vorstadtlage von Wandlitz mit Garten auf ca. 682 m²

  • 5 Zimmer EFH bietet Platz für 4 Schlafzimmer- ideal für Familien

  • Das Objekt präsentiert sich in einem renovierungsbedürftigen Zustand

  • Wellness-Highlight: Sauna mit Vorraum

  • Objekt bietet Staufläche im Keller sowie Platz für Pkw dank einer großen Garage


Lagebeschreibung

Lage: Ruhige Vorstadtlage mit guter Anbindung an die Stadtzentren und alle Einrichtungen
Bildung und Betreuung: Ein Kindergarten im Umkreis von max. 1 km
Nahversorgung: Nur rund 3 km zu wichtigen Anlaufstellen wie Supermärkten, Apotheken, Bankfilialen und Postfilialen
Anbindung: Autobahn komfortabel erreichbar


Sonstige Angaben

Vereinbaren Sie noch heute einen Besichtigungstermin!








Alle Angaben sind ohne Gewähr und basieren ausschließlich auf Informationen, die uns von unserem Auftraggeber zur Verfügung gestellt wurden. Wir übernehmen keine Gewähr für die Vollständigkeit, Richtigkeit und Aktualität der Angaben.


Wohnung finden so einfach wie möglich - das ist unsere Mission!

Kostenlose Basic Features

0 € monatlich


  • Individuelles Such-Profil anlegen
  • Suchaufträge speichern
  • One-Klick Kontaktaufnahme

alles anzeigen

Jetzt kostenlos anmelden

Premium Features

19,99 € monatlich


  • Alle kostenlosen Features
  • Smart-Alarm per Whatsapp
  • Deine Chancen checken
  • Wohngegend analysieren

alles anzeigen

Jetzt Premium freischalten

Gewerblicher Anbieter

McMakler GmbH
Am Postbahnhof 17
10243 Berlin

Wohnglück-ID:
Objekt-Nr.:
WGL-822866
68bef1b21f1f937230b93d1b