Hallen / Lager / Produktion in Fürstenwalde (FĂŒrstenwalde/Spree)

Strategisch Relevanter Industrie- & Produktionsstandort in 15517 FĂŒrstenwalde (Berlin) – Option auf direkten Gleisanschluss!

Anfragen bisher

Premium

Meine Chancen

Premium

Fairer Preis

Premium

3.950.000 â‚Ź

Kaufpreis

15517 Fürstenwalde

Gewerblicher Anbieter

ImmoFin Immobilien GmbH
Weidenhang
59755 Arnsberg

Details

Typ der Gewerbeimmobilie
Hallen / Lager / Produktion
Bezugsfrei ab
sofort
Objektzustand
Gepflegt
Baujahr
1960

Kosten

Kaufpreis
3.950.000 €
Was kostet dein Umzug?

Objektbeschreibung

Industrie- & Produktionsstandort mit strategischer Relevanz


Julius-Pintsch-Ring 3 · 15517 FĂŒrstenwalde/Spree


Diese Industrieimmobilie bietet exzellente Rahmenbedingungen fĂŒr sicherheitsrelevante Produktion, Systemkomponentenfertigung, Verteidigungslogistik und weitere Bereiche, bei denen Versorgungssicherheit, Skalierbarkeit und Standortkontrolle entscheidend sind.


Die Liegenschaft ist sofort nutzbar, verfĂŒgt ĂŒber schwerlastfĂ€hige Hallen, mehrere Krananlagen und ausreichende Reserven fĂŒr Erweiterungs- oder Sicherheitszonen.


Besonders relevant: Die Immobilie liegt in einem industriellen Umfeld, das organisatorische Abschirmung, Zugangskontrolle und diskrete BetriebsfĂŒhrung ermöglicht.


In Zeiten, in denen sicherheits- und verteidigungsrelevante ProduktionskapazitĂ€ten eine neue zentrale Bedeutung fĂŒr die nationale Versorgungssicherheit einnehmen, rĂŒcken Standorte in den Fokus, die bislang als zurĂŒckhaltend oder industriell unauffĂ€llig galten. Genau hier liegt das besondere Potenzial dieser Liegenschaft: Ein vollwertiger, sofort aktivierbarer Industrie- und Produktionsstandort, dessen Lage, GrĂ¶ĂŸe und bauliche Struktur eine schnelle, adaptive und skalierbare Nutzung ermöglicht — ideal fĂŒr Verteidigungslogistik, Systemkomponentenfertigung, militĂ€rische Versorgungstechnik und resilient aufgestellte Zulieferketten.


Damit eignet sich das Areal besonders fĂŒr skalierende RĂŒstungs- und Systemtechnikproduktion, wie sie aktuell im Rahmen staatlicher Beschleunigungsprogramme gefordert ist. Diese Liegenschaft ist kein gewöhnliches Industrieangebot, sondern ein Standort mit echtem strategischen Wert.


Sie bietet die bauliche Substanz, die logistische Lage und die Erweiterungsoptionen, die heute fĂŒr wehrtechnische, systemkritische und staatlich priorisierte Produktionsketten entscheidend sind.


Wer frĂŒh einsteigt, sichert sich Standortvorteile, Versorgungssicherheit und Zukunftswert.


Bausubstanz & Energieausweis

Baujahr
2006
Objektzustand
Gepflegt
Wesentlicher EnergietrÀger
GAS
Heizungsart
Sonstige
Energieausweis
liegt vor
Energieausweistyp
Verbrauchsausweis
GĂŒltig bis
28.01.2029
Energieverbrauchskennwert
184 kWh/(mÂČ*a)

Ausstattung

Objektbeschreibung:
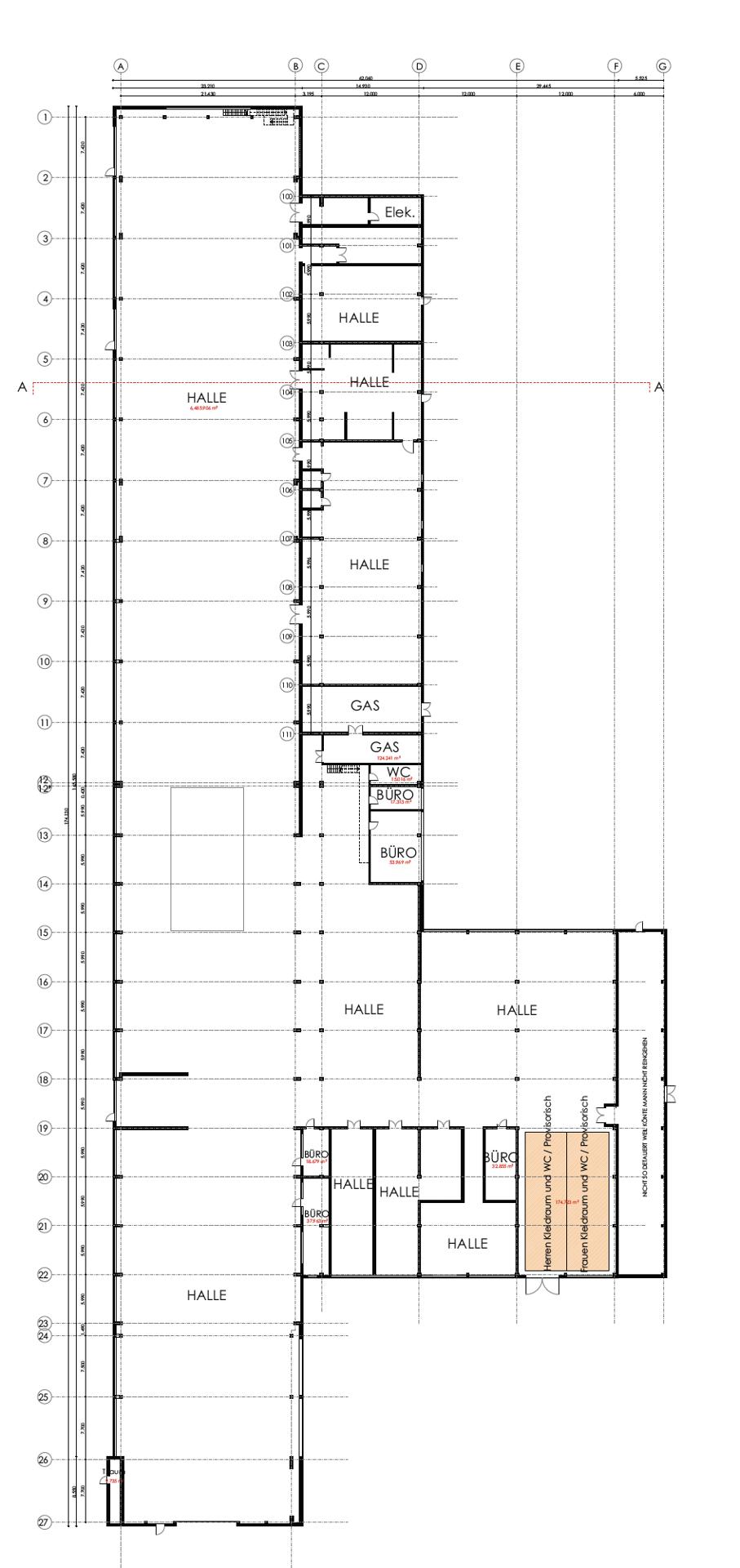
Die Hauptproduktionshalle umfasst ca. 160 m x 20 m mit einer Hallenhöhe von ca. 11 m – ideal dimensioniert fĂŒr Fertigungslinien, Systemmontagen, schwere Baugruppen oder Großkomponenten.


ErgĂ€nzend stehen zwei weitere Hallenabschnitte zur VerfĂŒgung:


Hallenbereich GrĂ¶ĂŸe Nutzungsmöglichkeiten
Halle II ca. 44 m x 19 m Erweiterte Fertigung, Logistikumschlag, PrĂŒftechnik
Halle III ca. 24 m x 23 m Feinmontage, Spezialtechnik, Test & Integration


Mehrere Krananlagen – auch fĂŒr schwere Lasten – sind bereits installiert und sofort einsetzbar.


Ein großzĂŒgiger BĂŒrotrakt auf zwei Ebenen mit BesprechungsrĂ€umen, Sozial- und SanitĂ€rbereichen unterstĂŒtzt administrative, planerische und strategische AblĂ€ufe direkt am Produktionsstandort.


ZusĂ€tzlich stehen vielseitige Lager- und TechnikflĂ€chen zur VerfĂŒgung – aufgeteilt, klar strukturiert und funktional nutzbar.


GrundstĂŒck & EntwicklungsflĂ€chen


Das GrundstĂŒck umfasst ca. 17.068 mÂČ und bietet damit maßgebliche Erweiterungspotenziale, z. B. fĂŒr:



  • zusĂ€tzliche Produktions- oder Montagehallen

  • geschĂŒtzte Lager- oder Hochsicherheitsbereiche

  • Testbereiche, Erprobungshallen oder Logistikumschlag


Lagebeschreibung

Der Standort FĂŒrstenwalde bietet hohe Relevanz fĂŒr logistische Versorgungsachsen zwischen Berlin, Polen und osteuropĂ€ischen MĂ€rkten.


A12 Anschluss → Berlin / BRD Versorgung → Polen / NATO-Ostflanke → HĂ€fen & Luftdrehkreuze.


GleisfĂŒhrung nur ca. 50 m entfernt → Gleisanschluss technisch kurzfristig realisierbar
NĂ€he zur Tesla Gigafactory GrĂŒnheide → bereits vorhandene Lieferketten, FachkrĂ€fte & Infrastruktur


Strategische & Standortbezogene Vorteile



  1. Lage mit logistischer und verteidigungsrelevanter Bedeutung
    FĂŒrstenwalde liegt nahe der A12, mit direkter Anbindung zu Berlin, Frankfurt (Oder), Polen und osteuropĂ€ischen Versorgungsachsen.


Wichtig im Verteidigungs- und Krisenfall:
Schnelle Versorgung – kurze Wege – gesicherte Verkehrsanbindung.



  1. Sofortige Aktivierbarkeit & UmrĂŒstbarkeit


Die bauliche Struktur ermöglicht:



  • kurzfristige Produktionsaufnahme

  • modulare Linienmontage

  • flexible Einbringung von Spezialanlagen

  • definierbare Sicherheitszonen



  1. Staatliche PrioritĂ€ten begĂŒnstigen schnelle Entscheidungen


Im Zuge der aktuellen nationalen & europÀischen Sicherheitsprogramme können schnellere Entscheidungswege möglich sein, sowohl in Bezug auf Entwicklungsgenehmigungen als auch Infrastrukturförderungen.


Sonstige Angaben

Bereits heute fĂŒr sicherheitsrelevante Industrien geeignet Zielgruppen wie:


Wehrtechnik-Zulieferer
MilitÀrische Logistik- & Wartungsbetriebe
Instandsetzungs- und Versorgungseinheiten


finden hier einen Standort, der ohne zeitintensive Umbaumaßnahmen produktionsfĂ€hig ist.


Wohnung finden so einfach wie möglich - das ist unsere Mission!

Kostenlose Basic Features

0 € monatlich


  • Individuelles Such-Profil anlegen
  • SuchauftrĂ€ge speichern
  • One-Klick Kontaktaufnahme

alles anzeigen

Jetzt kostenlos anmelden

Premium Features

19,99 € monatlich


  • Alle kostenlosen Features
  • Smart-Alarm per Whatsapp
  • Deine Chancen checken
  • Wohngegend analysieren

alles anzeigen

Jetzt Premium freischalten

Gewerblicher Anbieter

ImmoFin Immobilien GmbH
Weidenhang
59755 Arnsberg

WohnglĂŒck-ID:
Objekt-Nr.:
WGL-822338
1-600-26