Einfamilienhaus freistehend in Norderstedt

Balkon/­Terrasse
Gäste WC
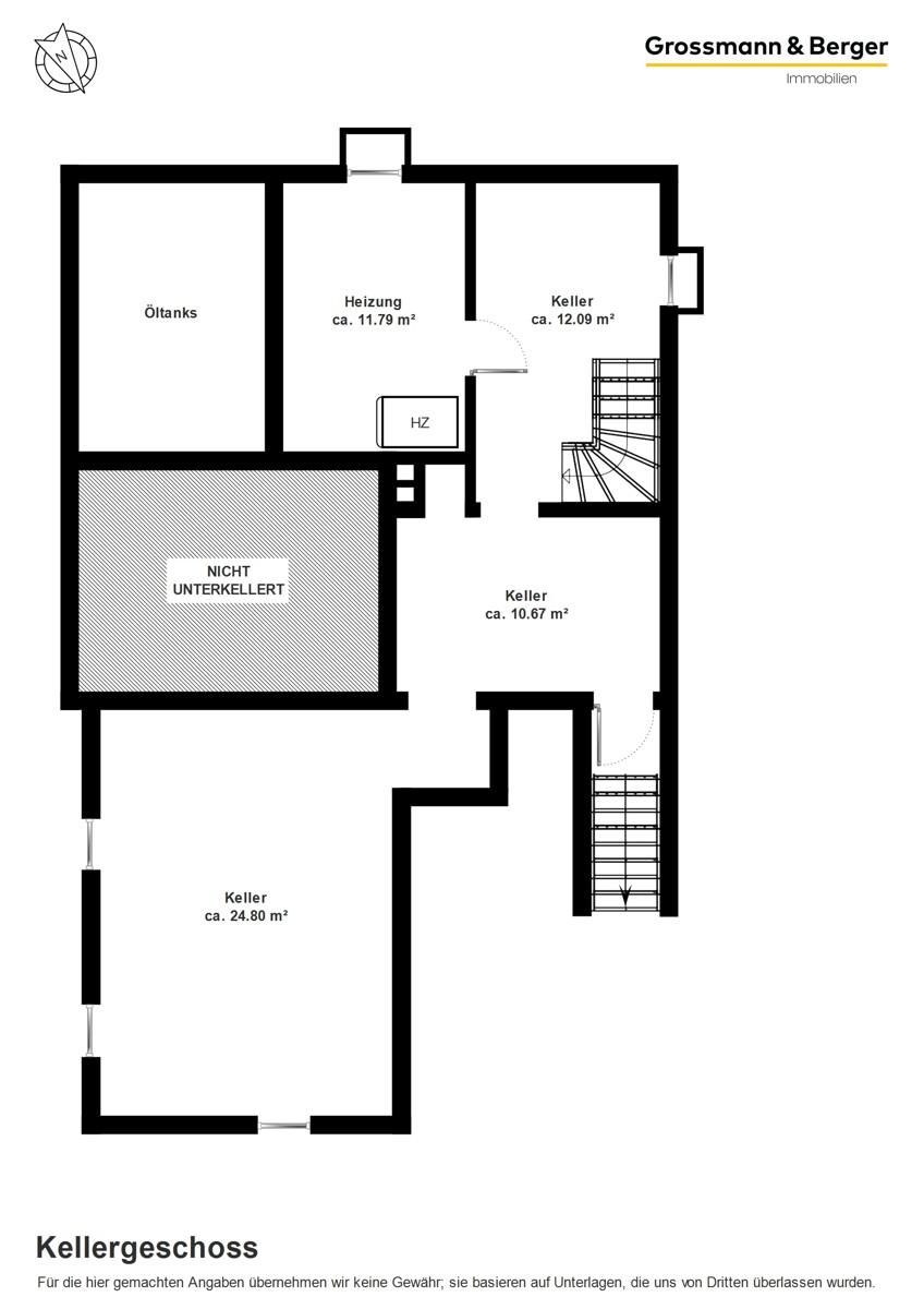
Keller
Einbauküche
Garage/­Stellplatz

Modernisiertes Einfamilienhaus

Anfragen bisher

Premium

Meine Chancen

Premium

Fairer Preis

Premium

598.000 €

Kaufpreis

122 m²

5 Zi.

Grundriss

22848 Norderstedt

Gewerblicher Anbieter

Grossmann & Berger GmbH
Rathausallee 27a
22846 Norderstedt

Details

Grundstücksfläche
685 m²
Zimmerzahl
5
Haustyp
Einfamilienhaus freistehend
Nutzfläche
15 m²
Bezugsfrei ab
nach Vereinbarung
Anzahl Garage/ Stellplatz
1
Objektzustand
Gepflegt
Baujahr
1959

Kosten

Kaufpreis
598.000 €
Käuferprovision
3,57 % inkl. MwSt.
Was kostet dein Umzug?

Stellplätze

Stellplatztyp
Garage
Anzahl
1

Objektbeschreibung

Dieses Einfamilienhaus wurde im Jahr 1959 auf einem ca. 685 m² großen Grundstück errichtet und in dem Jahr 1962 um einen Anbau erweitert. Es verfügt über eine Wohnfläche von ca. 122 m² im Erd- und Obergeschoss sowie eine Nutzfläche auf der geschlossenen Veranda und im Teilkeller.


Das Haus befindet sich in einem sehr gepflegten baulichen Zustand. Im Laufe der Jahre wurden immer wieder Modernisierungen vorgenommen. Besonders im Jahr 2016 wurden umfangreiche Maßnahmen durchgeführt. Unter anderem wurden das Wannenbad und das Gäste-WC erneuert, eine neue Einbauküche eingebaut, die Elektrik im gesamten Haus ersetzt und die doppelverglasten Kunststofffenster mit innenliegenden Sprossen ausgetauscht. Zusätzlich wurden ein neuer Zaun sowie ein Gartentor aufgestellt.


Abgerundet wird dieses Angebot durch eine Garage, welche sich direkt am Haus befindet.


Bausubstanz & Energieausweis

A+

A

B

C

D

E

F

G

H

255,5 kWh/(m²*a)

Baujahr
1995
Objektzustand
Gepflegt
Wesentlicher Energieträger
OEL
Heizungsart
Zentralheizung
Befeuerung
Ölheizung
Energieausweis
liegt vor
Energieausweistyp
Bedarfsausweis
Gültig bis
24.04.2032
Energieeffizienzklasse
H
Endenergiebedarf
255,5 kWh/(m²*a)

Ausstattung

Beim Betreten des Hauses gelangen Sie über den Windfang in den Flur. Von hier aus sind das neuwertige Gäste-WC, die Küche sowie das Wohnzimmer zu erreichen. Die Küche ist mit einer hellen Einbauküche aus dem Jahr 2016 ausgestattet, von hier sind sowohl das Esszimmer als auch die geschlossene Veranda zu erreichen. Die Veranda bietet Platz für eine gemütliche Sitzmöglichkeit sowie den Zugang in den ca. 25 m² Anbau und in den Garten.


Über eine Holztreppe im Flur ist das Obergeschoss zu erreichen. Hier finden Sie das neuwertige Wannenbad, das Kinderzimmer sowie das Büro/Ankleidezimmer, welches mit dem angrenzenden Schlafzimmer verbunden ist.


Zusätzlich ist das Haus teilunterkellert. Hier stehen Ihnen zu Abstellzwecken drei Kellerräume sowie ein Heizungsraum zur Verfügung.


Lagebeschreibung

Dieses Einfamilienhaus befindet sich in beliebter Lage von Norderstedt-Garstedt, in einer 30er-Zone mit nur geringem Verkehrsaufkommen. Die Nachbarschaft ist mit Einfamilien-, Doppel- und Reihenhäusern bebaut.


Im nahen Umfeld befindet sich das Einkaufszentrum "Herold-Center", welches mit dem Fahrrad in ca. 7 Minuten erreichbar ist. Hier finden Sie neben Einkaufs- und Shoppingmöglichkeiten auch Ärzte, Restaurants sowie die U-Bahn-Haltestelle "Garstedt". In gleicher Entfernung sind ebenfalls der "Schmuggelstieg" sowie die U-Bahn-Haltestelle "Ochsenzoll" zu erreichen.


Kindergärten, eine Grundschule sowie weiterführende Schulen sind auf kurzen Wegen erreichbar.


Aufgrund der direkten Nähe zur Hamburger Stadtgrenze, einer guten U-Bahnanbindung und der Nähe zur Autobahnauffahrt Schnelsen-Nord sowie dem Flughafen erfreut sich der Stadtteil Garstedt in Norderstedt seit Jahren hoher Beliebtheit.


Wohnung finden so einfach wie möglich - das ist unsere Mission!

Kostenlose Basic Features

0 € monatlich


  • Individuelles Such-Profil anlegen
  • Suchaufträge speichern
  • One-Klick Kontaktaufnahme

alles anzeigen

Jetzt kostenlos anmelden

Premium Features

19,99 € monatlich


  • Alle kostenlosen Features
  • Smart-Alarm per Whatsapp
  • Deine Chancen checken
  • Wohngegend analysieren

alles anzeigen

Jetzt Premium freischalten

Gewerblicher Anbieter

Grossmann & Berger GmbH
Rathausallee 27a
22846 Norderstedt

Wohnglück-ID:
Objekt-Nr.:
WGL-822237
WB 8308