Wohn-Grundstück in München (Alt Moosach)

Entwicklungspotential - 8 WEH -

Anfragen bisher

Premium

Meine Chancen

Premium

Fairer Preis

Premium

2.490.000 €

Kaufpreis

Feldmochinger Str. 25
80992 München

Gewerblicher Anbieter

ohne-makler.net
Humboldtstraße 25 A
21509 Glinde

Details

Grundstücksfläche
520 m²
Typ des Grundstücks
Wohn-Grundstück
Bezugsfrei ab
nach Absprache
Baujahr
1910

Kosten

Kaufpreis
2.490.000 €
Käuferprovision
keine
Was kostet dein Umzug?

Objektbeschreibung

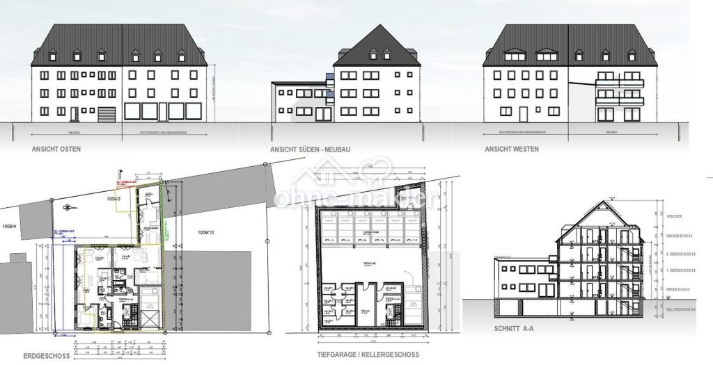
Mehrfamilienhaus mit 6 Wohnungen, 1 Werkstatt/Lager,
bestehend aus Hauptgebäude und Anbau


Aufteilung Iststand:
Nr.1 - EG - Gewerbe - ca. 60m²

Nr.2 - EG vorne - 2 Zimmer - 60m²
Nr.3 - 1. OG links - 3 Zimmer - 95m²
Nr.4 - 2. OG - 2 Zimmer - 57m²
Nr.5 - DG - 2 Zimmer - 55m²
Nr.6 - 2. OG rechts - 2 Zimmer - 47m²
Nr.7 - Anbau EG - 3 Zimmer - 44m²
Gesamt ca. 418m²


Fazit:
Entwicklungspotential bei Neubebauung Bauvorbescheid liegt vor mit ca. 520m²
-Langfristige Kapitalanlage
-Gewachsenes Umfeld
-Potential durch Mieten-Optimierung


Die Immobilie:
-BJ ca. 1910/1933
-Mietfläche ca. 418 m²
-Vordergebäude - unterkellert
-Gasheizung, Warmwasser-Elektroboiler


*Kein Denkmalschutz
*Zusätzliches Baurecht bei Abbruch
*Mieterhöhungspotenzial
*Gewerbefläche vermietet
*6 WEH vermietet


Bausubstanz & Energieausweis

Heizungsart
Gasheizung
Befeuerung
Gasheizung

Lagebeschreibung

U-Bahn-Station (U3)
„Moosacher St.-Martins-Platz“
in 7 Gehminuten erreichbar.
Fahrzeit zum „Marienplatz“ weniger als 20 Min.
Infrastruktur (im Umkreis von 5 km):
Apotheke, Lebensmittel-Discount, Allgemeinmediziner, Kindergarten, Grundschule, Hauptschule, Realschule, Gymnasium, Gesamtschule, Öffentliche Verkehrsmittel


Sonstige Angaben

Energieträger: Gas


----München – die beliebteste Großstadt Deutschlands----
München zählt zu den wichtigsten und attraktivsten Wirtschaftsmetropolen in Europa. Ein breit gefächerter
Mix aus Branchen und Betrieben sowie vielfältige Dienstleistungsbereiche mit innovativem Potential prägen
die breite Unternehmerlandschaft der Stadt.
Unter den deutschen Großstädten weist München traditionell immer die niedrigste Arbeitslosenquote, die
niedrigste Leerstandsquote bei Wohnimmobilien und die sicherste Wertsteigerung auf. Regelmäßig zur
beliebtesten Stadt Deutschlands gewählt, gehört sie auch zu den bedeutendsten Wissenschaftsstandorten.
An drei Universitäten und über 30 Hochschulen studieren um die 130.000 Studenten. Mit dem Franz-Josef-
Strauß-Flughafen verfügt die Stadt zudem über einen der modernsten internationalen Flughäfen Europas.


----Moosach – städtebauliche Neuordnung----
In 5 Gehminuten erreicht man den Moosacher St.-Martins-Platz.
Hier plant die Stadt München eine städtebauliche Neuordnung.


ohne-makler (OM) ist weder Anbieter noch Vermittler der Immobilie. OM betreibt eine Plattform für Immobilieneigentümer, die unter anderem die gleichzeitige Veröffentlichung einzelner Inserate auf mehreren Immobilienportalen ermöglicht. Die Inhalte dieser Inserate werden ausschließlich von Dritten verantwortet. Für die Richtigkeit, Vollständigkeit oder Rechtmäßigkeit der Angaben übernimmt OM keine Haftung. Hinweise auf mögliche Rechtsverstöße können jederzeit gemeldet werden und werden nach Prüfung umgehend bearbeitet.


Wohnung finden so einfach wie möglich - das ist unsere Mission!

Kostenlose Basic Features

0 € monatlich


  • Individuelles Such-Profil anlegen
  • Suchaufträge speichern
  • One-Klick Kontaktaufnahme

alles anzeigen

Jetzt kostenlos anmelden

Premium Features

19,99 € monatlich


  • Alle kostenlosen Features
  • Smart-Alarm per Whatsapp
  • Deine Chancen checken
  • Wohngegend analysieren

alles anzeigen

Jetzt Premium freischalten

Gewerblicher Anbieter

ohne-makler.net
Humboldtstraße 25 A
21509 Glinde

Wohnglück-ID:
Objekt-Nr.:
WGL-815659
379122