Maisonette in Pinneberg

Aufzug
Balkon/­Terrasse
EinbaukĂĽche

Friedrichs - Ufer - Neubaumietwohnung in Pinneberg

Anfragen bisher

Premium

Meine Chancen

Premium

Fairer Preis

Premium

1.335,44 â‚¬

Kaltmiete

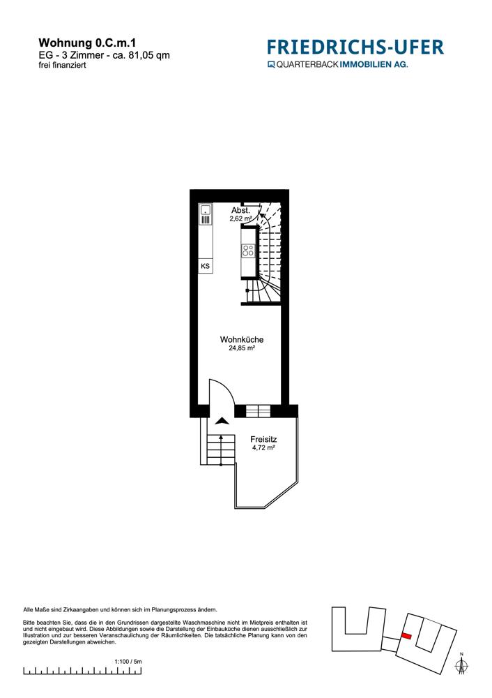
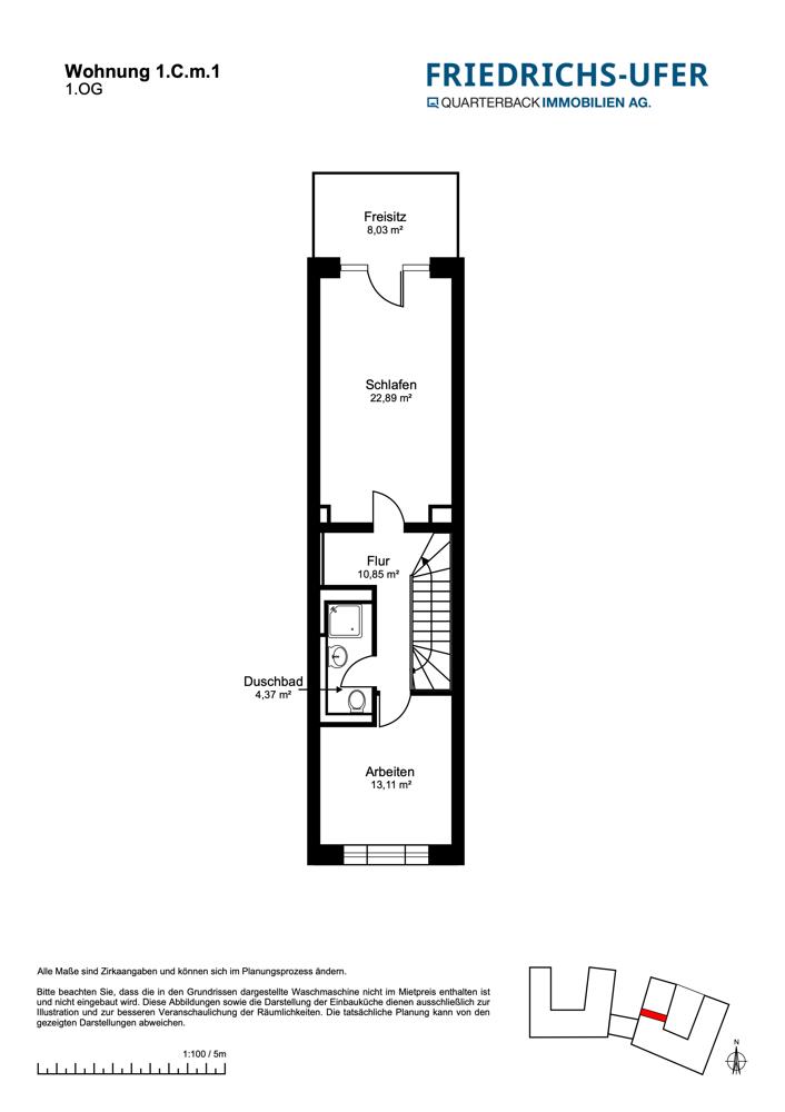
85,06 m²

3 Zi.

Erdg.

Grundriss

25421 Pinneberg

Gewerblicher Anbieter

Klinke Immobilien GmbH
JarrestraĂźe 42
22303 Hamburg Winterhude

Details

Zimmerzahl
3
Wohnungstyp
Maisonette
Bezugsfrei ab
2. Quartal 2026
Objektzustand
Erstbezug
Baujahr
2026

Kosten

Kaltmiete
1.335,44 €
Nebenkosten
283,68 €
Heizkosten
81,05 €
Kaution
4.006,32 €
Was kostet dein Umzug?

Objektbeschreibung

In zentraler Innenstadtlage von Pinneberg entsteht bis Anfang 2026 ein modernes Wohn- und Geschäftshaus mit zukunftsweisendem Konzept: Das Neubauprojekt FRIEDRICHS UFER in der Friedrich-Ebert-Straße 28-30 realisiert ein nachhaltiges Quartier mit 165 Mietwohnungen, davon 45 öffentlich gefördert, sowie bis zu acht Gewerbeeinheiten im Erdgeschoss.


Besonderes Highlight ist die integrierte Kindertagesstätte mit rund 100 Betreuungsplätzen – ein klares Zeichen für die familienfreundliche und soziale Ausrichtung des Projekts. Die Bauweise im KfW-40-NH-Standard, ergänzt durch Photovoltaik-Anlagen und Gründächer, steht für höchste Energieeffizienz und gelebten Klimaschutz.


Mit moderner Architektur und einem durchdachten Nutzungskonzept wird das ehemalige Postareal städtebaulich aufgewertet und zu neuem Leben erweckt.


Bausubstanz & Energieausweis

Objektzustand
Erstbezug
Heizungsart
FuĂźbodenheizung
Befeuerung
Fernwärme

Ausstattung

Die Wohnungen im FRIEDRICHS UFER bieten zeitgemäßen Wohnkomfort und eine ansprechende Grundausstattung:
•Fußbodenheizung in allen Räumen (Fernwärme)
•Hochwertiger Vinylboden (Objectflor Expona Living – Light Classic Oak)
•Moderne Bäder mit Marazzi-Fliesen (Serie Essay), teils mit Badewanne
•Bodengleiche Duschen mit Echtglasabtrennung, Handtuchheizkörper, LED-Spiegel
•Einbauküche mit Geräten (Front weiß / Arbeitsplatte anthrazit)
•Elektrische Rollläden, Videogegensprechanlage (Busch-Jaeger)
•Barrierefreier Zugang zu allen Wohnungen
•Aufzug in alle Etagen – inkl. Tiefgarage
•LED-Beleuchtung auf Balkon oder Terrasse
•Tiefgarage mit 140 Stellplätzen (Duplex, Rolltor mit Transponder)
•319 Fahrradstellplätze, teils gesichert im Untergeschoss
•Photovoltaik-Anlage auf dem Dach für nachhaltige Energieversorgung


Lagebeschreibung

Mittendrin in Pinneberg: Die Friedrich-Ebert-Straße 28-30 liegt direkt gegenüber der Rathauspassage, nur wenige Schritte vom Rathaus entfernt. In unmittelbarer Umgebung finden sich zahlreiche Einkaufsmöglichkeiten, Cafés, Apotheken und Einrichtungen des täglichen Bedarfs – alles bequem zu Fuß erreichbar.


Verkehrsanbindung:
•ÖPNV: Nur ca. 570 m zum Pinneberger S- und Regionalbahnhof – mit direkter Verbindung nach Hamburg (ca. 18 km)
•Auto: Die A7 (Auffahrt Pinneberg-Mitte) ist in rund 2 km erreichbar


Umfeld & Infrastruktur:
•Supermärkte, Bäckereien, Drogerien und Ärzte in Laufweite
•Schulen, Kitas und Freizeitangebote im direkten Umfeld
•Vielfältige Nahversorgungs- und Dienstleistungsangebote am Standort


Sonstige Angaben

Wichtige Hinweise:
Irrtum, Fehler, Änderungen und Zwischenvermietung vorbehalten.
Für die Richtigkeit und Vollständigkeit wird keine Haftung übernommen.
Bei den Wohnflächen handelt es sich um Zirka-Angaben.
Änderungen sind jederzeit möglich.


Die Fertigstellung erfolgt voraussichtlich zum zweiten Quartal 2026.
Die Wohnungen werden voraussichtlich ab dem 1. April 2026 bezugsfertig.


Der Energieausweis befindet sich in Erstellung und wird spätestens bei der Besichtigung vorgelegt.


Hinweise zum Bewerbungsverfahren:


Folgende Unterlagen benötigen wir von Ihnen:



  • AusgefĂĽllte Selbstauskunft (mit Angabe der Wohnungsnummer)

  • Nachweise ĂĽber Einkommen (Rentenbescheide, Gehaltsabrechnungen)

  • Schufa-Auskunft (nicht älter als 6 Monate)


Bitte schicken Sie uns alle Unterlagen per Email im PDF-Format an:
friedrichs-ufer@klinke-immo.de


Alternativ können Sie uns Ihre Bewerbungsunterlagen auch per Post an unsere Büroanschrift senden.


Hinweise zu den Stellplätzen:
In der Tiefgarage stehen insgesamt 140 Stellplätze zur Anmietung zur Verfügung.
Es handelt sich dabei um verschiedene Stellplatztypen:



  • Duplexstellplätze fĂĽr 105 € monatlich

  • Breitere Einzelstellplätze fĂĽr 150 € monatlich (Möglichkeit zur NachrĂĽstung einer E-Ladestation)


Wohnung finden so einfach wie möglich - das ist unsere Mission!

Kostenlose Basic Features

0 € monatlich


  • Individuelles Such-Profil anlegen
  • Suchaufträge speichern
  • One-Klick Kontaktaufnahme

alles anzeigen

Jetzt kostenlos anmelden

Premium Features

19,99 € monatlich


  • Alle kostenlosen Features
  • Smart-Alarm per Whatsapp
  • Deine Chancen checken
  • Wohngegend analysieren

alles anzeigen

Jetzt Premium freischalten

Gewerblicher Anbieter

Klinke Immobilien GmbH
JarrestraĂźe 42
22303 Hamburg Winterhude

WohnglĂĽck-ID:
Objekt-Nr.:
WGL-815510
7416_0.C.m.1