Büro / Praxen in Bad Segeberg

Einbauküche
Garage/­Stellplatz

Flexible Büroräume zur Miete in zentraler Lage von 23795 Bad Segeberg (DG)

Anfragen bisher

Premium

Meine Chancen

Premium

Fairer Preis

Premium

1.745,9 €

Kaltmiete

5 Zi.

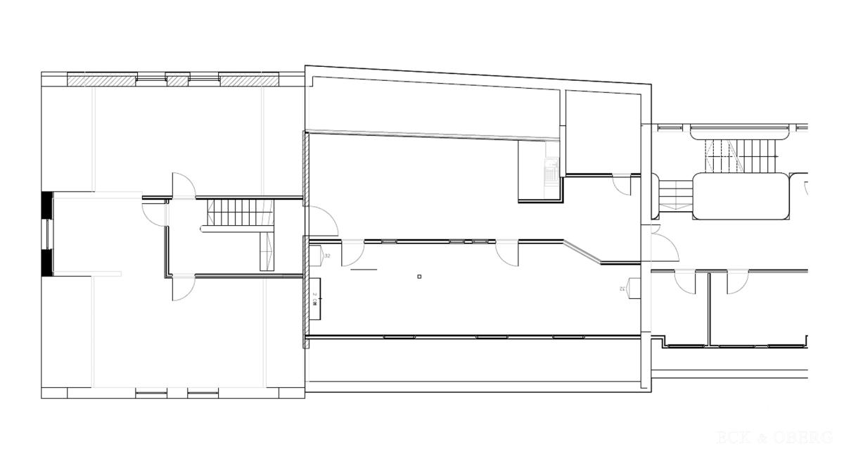
2. OG

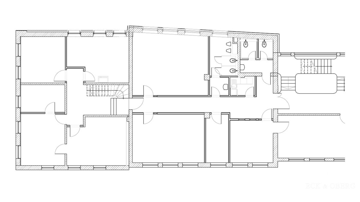
Grundriss

23795 Bad Segeberg

Gewerblicher Anbieter

ECK & OBERG Immobilien GmbH
Düsternbrooker Weg 75
24105 Kiel-Düsternbrook

Details

Bürofläche
174,59 m²
Zimmerzahl
5
Typ der Gewerbeimmobilie
Büro / Praxen
Etage, Geschoss
2
Etagenzahl
2
Bezugsfrei ab
sofort
Anzahl Garage/ Stellplatz
1
Objektzustand
Vollsaniert
Baujahr
1977

Kosten

Kaltmiete
1.745,9 €
Nebenkosten
611,07 €
Was kostet dein Umzug?

Stellplätze

Stellplatztyp
Freiplatz
Anzahl
2

Objektbeschreibung

Willkommen in Bad Segeberg, Ihrer neuen Wirkungsstätte!


Diese attraktive Büroetage im Dachgeschoss überzeugt durch ihre klare Raumstruktur, helle Arbeitsbereiche und eine angenehme Arbeitsatmosphäre. Ob Start-up, Agentur oder etabliertes Unternehmen – hier finden Sie den idealen Standort für produktives Arbeiten und professionelles Auftreten.


Die großzügige Fläche ist funktional aufgeteilt und bietet flexible Nutzungsmöglichkeiten. Mehrere separat zugängliche Büroräume ermöglichen konzentriertes Arbeiten oder Teamarbeit in kleinerer Runde. Große Fensterflächen sorgen für reichlich Tageslicht und ein freundliches Raumgefühl.


Für Komfort und Funktionalität ist bestens gesorgt: Eine Einbauküche steht zur Verfügung. Derzeit sind keine separaten Damen- und Herren-WCs vorhanden, eine Nachrüstung ist jedoch bei Bedarf möglich. Darüber hinaus bietet das Objekt zwei Außenstellplätze (jeweils 60 € monatlich) für Mitarbeiter oder Besucher. Die Räumlichkeiten sind über ein gepflegtes Treppenhaus erreichbar und befinden sich in einem repräsentativen Umfeld mit weiteren Gewerbemietern.


Je nachdem, welche Flächen Sie benötigen, sei es für ein kompaktes Team oder ein größeres Unternehmen. Schauen Sie sich gerne auch die weiteren Exposés an, um die für Sie passende Fläche zu entdecken.


Je nach Platzbedarf stehen Ihnen folgende Mietoptionen zur Verfügung:



  • das 1. Obergeschoss mit ca. 255,62 m² und 3 Stellplätzen

  • das Dachgeschoss mit ca. 174,59 m² und 2 Stellplätzen

  • oder beide Etagen gemeinsam mit insgesamt ca. 430,21 m² und 5 Stellplätzen.


Interessantes zum Gebäude:


Das Büro- und Geschäftsgebäude in Bad Segeberg hat seinen Ursprung im Jahr 1826 und wurde 1977/78 durch einen Anbau erweitert. Das Gebäude besteht teilweise aus einer roten Verblendmauerwerk Fassade und aus einem Wärmedämmverbundsystem und verfügt zudem über ein vollständig unterkellertes Fundament. Die Türen des Gebäudes sind aus Holz und Metall gefertigt, teilweise mit Glasausschnitten versehen. Besonders hervorzuheben ist die Nordfassade des Altbaus, die unter Denkmalschutz steht und damit von besonderer historischer Bedeutung ist.


Im Zuge der Sanierungsmaßnahmen, die in den Jahren 2009/2010 stattfanden, wurde besonderer Wert auf den Brandschutz und die energetische Effizienz gelegt.


Die Ostfassade erhielt ein mineralisches Wärmedämmverbundsystem mit Putz, um den Wärmeschutz erheblich zu verbessern. An der Nordfassade wurde die Fassade neu verfugt und mit einer 50 mm starken Innendämmung ausgestattet, um das historische Erscheinungsbild zu bewahren. Beide Fassaden, Nord und Ost, wurden zudem mit neuen dreifach verglasten Fenstern ausgestattet, die sowohl den Wärmeschutz als auch den Schallschutz deutlich verbessern. Zur Erhöhung der Sicherheit wurde eine flächendeckende Brandmeldeanlage installiert, die als interne Brandfrühsterkennung dient. Im Erdgeschoss wurden die Sanitäranlagen vollständig erneuert, ebenso wurde eine neue Teeküche eingebaut, um die Aufenthaltsqualität und Funktionalität des Gebäudes weiter zu verbessern.


Die wichtigsten Kennzahlen im Überblick:




  • Nettokaltmiete: 1.745,90 €




  • Nebenkosten: 611,07 €




  • Außenstellplätze: 2 (60,00 € pro Stellplatz)




  • Gesamtmiete: 2.476,97 €




  • Mietkaution: 5.237,70 €




Bausubstanz & Energieausweis

Baujahr
1977
Objektzustand
Vollsaniert
Heizungsart
Sonstige
Energieausweis
liegt vor
Energieausweistyp
Verbrauchsausweis
Ausstellungsdatum
29.04.2025
Gültig bis
29.04.2035
Energieverbrauchskennwert
198 kWh/(m²*a)

Ausstattung



  • Baujahr 1826, Anbau 1977 / 78




  • 5 Büroräume




  • Türen: Holz- und Metalltüren teilweise mit Glasausschnitt




  • Gas-Heizung




  • Küchenräume mit Pantry bzw. einfacher Küchenzeile




  • WC-Anlagen für Damen und Herren in ausreichender Anzahl




  • Schutzraum im 1. Obergeschoss (Rettungswegersatz)




  • 2 Außenstellplätze




Lagebeschreibung

Bad Segeberg, eine malerische Kleinstadt im Herzen Schleswig-Holsteins, bietet eine ideale Kombination aus charmantem Ambiente und moderner Infrastruktur. Das Büro- und Geschäftshaus befindet sich in einer strategisch günstigen Lage, die sowohl für Unternehmen als auch für Kunden und Mitarbeiter attraktiv ist.


Die Hamburger Straße ist eine der Hauptverkehrsadern der Stadt und ein begehrter Standort für Unternehmen. In unmittelbarer Nähe des Büro- und Geschäftshauses befinden sich diverse Einzelhandelsgeschäfte, Restaurants und Cafés, die sowohl für Mitarbeiter als auch für Kunden bequem zu erreichen sind.
Die Verkehrsanbindung ist hervorragend. Der Bahnhof Bad Segeberg ist nur etwa 10 Gehminuten entfernt und bietet regelmäßige Verbindungen nach Hamburg, Lübeck und Kiel. Für Autofahrer ist die Bundesstraße B206 schnell erreichbar, die eine zügige Anbindung an die Autobahnen A21 und A20 ermöglicht. Parkmöglichkeiten in der Umgebung sorgen für zusätzlichen Komfort für Mitarbeiter und Besucher.


Für die Mittagspause oder nach der Arbeit bieten der nahegelegene Große Segeberger See und der Ihlsee Möglichkeiten zur Entspannung und Erholung. Zahlreiche Parks und Grünflächen laden zu einem Spaziergang ein und tragen zu einer angenehmen Arbeitsatmosphäre bei.


Das Büro- und Geschäftshaus in Bad Segeberg bietet eine erstklassige Lage für Unternehmen, die Wert auf eine gute Erreichbarkeit und ein lebendiges Geschäftsumfeld legen. Die hervorragende Infrastruktur, die vielfältigen Freizeitmöglichkeiten und die hohe Lebensqualität dieser attraktiven Region machen diesen Standort zu einer idealen Wahl.


Sonstige Angaben

Bezüglich der Objektangaben ist die ECK & OBERG Immobilien GmbH auf die Auskünfte des Eigentümers angewiesen. Daher kann für die Richtigkeit und Vollständigkeit dieser Angaben, trotz sorgfältiger Prüfung, keine Haftung übernommen werden. Darüber hinaus kann auch für die Qualität der Immobilie keine Gewähr übernommen werden.


Zwischenvermietung, Irrtum und Änderungen bleiben somit vorbehalten.


Besichtigungen können nur nach vorheriger Terminabsprache mit unserem Büro erfolgen.


Die angegebenen Miet- und Betriebskostenvorauszahlungen verstehen sich jeweils zuzüglich der gesetzlich gültigen Mehrwertsteuer.


WIR BITTEN UM IHR VERSTÄNDNIS, DASS WIR NUR ANFRAGEN MIT IHRER KOMPLETTEN ADRESSEINGABE UND TELEFONNUMMER BEARBEITEN KÖNNEN !!!


Wohnung finden so einfach wie möglich - das ist unsere Mission!

Kostenlose Basic Features

0 € monatlich


  • Individuelles Such-Profil anlegen
  • Suchaufträge speichern
  • One-Klick Kontaktaufnahme

alles anzeigen

Jetzt kostenlos anmelden

Premium Features

19,99 € monatlich


  • Alle kostenlosen Features
  • Smart-Alarm per Whatsapp
  • Deine Chancen checken
  • Wohngegend analysieren

alles anzeigen

Jetzt Premium freischalten

Gewerblicher Anbieter

ECK & OBERG Immobilien GmbH
Düsternbrooker Weg 75
24105 Kiel-Düsternbrook

Wohnglück-ID:
Objekt-Nr.:
WGL-814671
5482#gLhcK