Wohnung in Vellmar (Obervellmar)

Balkon/­Terrasse
Einbauküche
Garage/­Stellplatz

Charmante Eigentumswohnung mit sonnigem Balkon in Vellmar!

Anfragen bisher

Premium

Meine Chancen

Premium

Fairer Preis

Premium

175.000 €

Kaufpreis

87 m²

3 Zi.

2. OG

34246 Vellmar

Gewerblicher Anbieter

Volksbank Kassel Göttingen eG
Rudolf-Schwander-Straße 1
34117 Kassel

Details

Grundstücksfläche
7.022 m²
Zimmerzahl
3
Immobilienart
Wohnung
Etage, Geschoss
2
Bezugsfrei ab
nach Vereinbarung
Anzahl Schlafzimmer
1
Anzahl Badezimmer
1
Anzahl Garage/ Stellplatz
2
Baujahr
1994

Kosten

Kaufpreis
175.000 €
Käuferprovision
2,975 %
Was kostet dein Umzug?

Stellplätze

Stellplatztyp
Freiplatz
Anzahl
1
Stellplatztyp
Garage
Anzahl
1

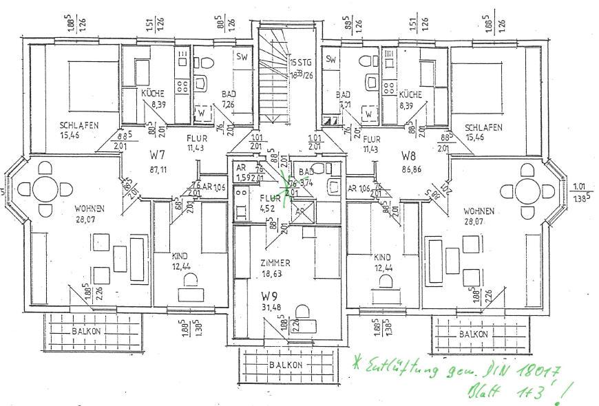
Objektbeschreibung

Beim Betreten der Wohnung befindet sich auf der rechten Seite das sich gerade in Sanierung befindende Duschbad. Auf der linken Seite ist eine Garderobe angeordnet. Im weiteren Verlauf des Flurs liegt rechts die großzügige Küche.
Vom Flur aus gelangt man in das große Wohn- und Esszimmer mit Zugang zum Balkon.
Zwei weitere, ebenfalls vom Flur aus erreichbare Räume sind das Schlafzimmer sowie ein weiteres Zimmer, das flexibel als Kinderzimmer, Büro oder Gästezimmer genutzt werden kann.
Zusätzlich befindet sich im Flur ein kleiner Abstellraum.

Zur Wohnung gehört ein abgeschlossener Kellerraum. Ein Fahrradkeller sowie ein Waschkeller stehen zur gemeinschaftlichen Nutzung zur Verfügung.
Auf dem Grundstück befindet sich ein zur Wohnung gehörender Tiefgaragenstellplatz. Zusätzlich kann für monatlich 30,00 EUR ein Stellplatz direkt vor der Haustür angemietet werden.

Das monatliche Hausgeld beträgt einschließlich Instandhaltungsrücklage 353,00 EUR.


Bausubstanz & Energieausweis

A+

A

B

C

D

E

F

G

H

Wesentlicher Energieträger
Erdgas
Heizungsart
Zentralheizung
Befeuerung
Gasheizung
Energieausweis
liegt vor
Energieausweistyp
Verbrauchsausweis
Ausstellungsdatum
23.10.2018
Gültig bis
23.10.2028
Energieverbrauchskennwert
113 kWh/(m²*a)
Energieeffizienzklasse
C

Lagebeschreibung

Das Objekt befindet sich in zentraler Lage von Vellmar, einer beliebten Wohngegend im Landkreis Kassel. Die Umgebung zeichnet sich durch eine angenehme Mischung aus Wohn- und Geschäftsbebauung sowie eine sehr gute Anbindung an die Stadt Kassel aus. Sowohl mit dem Auto als auch mit öffentlichen Verkehrsmitteln sind das Kasseler Stadtzentrum und die umliegenden Ortsteile in wenigen Minuten erreichbar.

In unmittelbarer Nähe befinden sich zahlreiche Einkaufsmöglichkeiten, Bäckereien, Apotheken, Ärzte sowie Schulen und Kindergärten. Auch Freizeit- und Sporteinrichtungen sind schnell erreichbar und tragen zu einer hohen Lebensqualität bei.

Besonders hervorzuheben ist die Nähe zum Ahnepark, der als weitläufige Grün- und Erholungsfläche vielfältige Möglichkeiten zur Freizeitgestaltung bietet. Die Lage verbindet somit städtische Infrastruktur mit einem ruhigen, grünen Wohnumfeld ideal für alle, die Wert auf eine gute Erreichbarkeit und ein angenehmes Umfeld legen.


Wohnung finden so einfach wie möglich - das ist unsere Mission!

Kostenlose Basic Features

0 € monatlich


  • Individuelles Such-Profil anlegen
  • Suchaufträge speichern
  • One-Klick Kontaktaufnahme

alles anzeigen

Jetzt kostenlos anmelden

Premium Features

19,99 € monatlich


  • Alle kostenlosen Features
  • Smart-Alarm per Whatsapp
  • Deine Chancen checken
  • Wohngegend analysieren

alles anzeigen

Jetzt Premium freischalten

Gewerblicher Anbieter

Volksbank Kassel Göttingen eG
Rudolf-Schwander-Straße 1
34117 Kassel

Wohnglück-ID:
Objekt-Nr.:
WGL-813666
0-2086