Einfamilienhaus freistehend in Hückelhoven

Balkon/­Terrasse
Garten/­-mitbenutzung
Gäste WC
Garage/­Stellplatz

"Investieren statt spekulieren- Einfamilienhaus mit solider Basis"

Anfragen bisher

Premium

Meine Chancen

Premium

Fairer Preis

Premium

Auf Anfrage

Kaufpreis

164,94 m²

5 Zi.

41836 Hückelhoven / Hilfarth

Gewerblicher Anbieter

ImmoNetzwerk GmbH
Theodor Heuß Straße 6
52399 Merzenich

Details

Grundstücksfläche
504 m²
Zimmerzahl
5
Haustyp
Einfamilienhaus freistehend
Etagenzahl
1
Nutzfläche
47,46 m²
Anzahl Schlafzimmer
3
Anzahl Badezimmer
1
Anzahl Garage/ Stellplatz
2
Baujahr
2007

Kosten

Kaufpreis
Auf Anfrage
Käuferprovision
Die Provision beträgt 3,57% des Kaufpreises inkl. 19% MwSt. und ist vom Käufer zu tragen.
Was kostet dein Umzug?

Stellplätze

Stellplatztyp
Freiplatz
Anzahl
1
Stellplatztyp
Garage
Anzahl
1

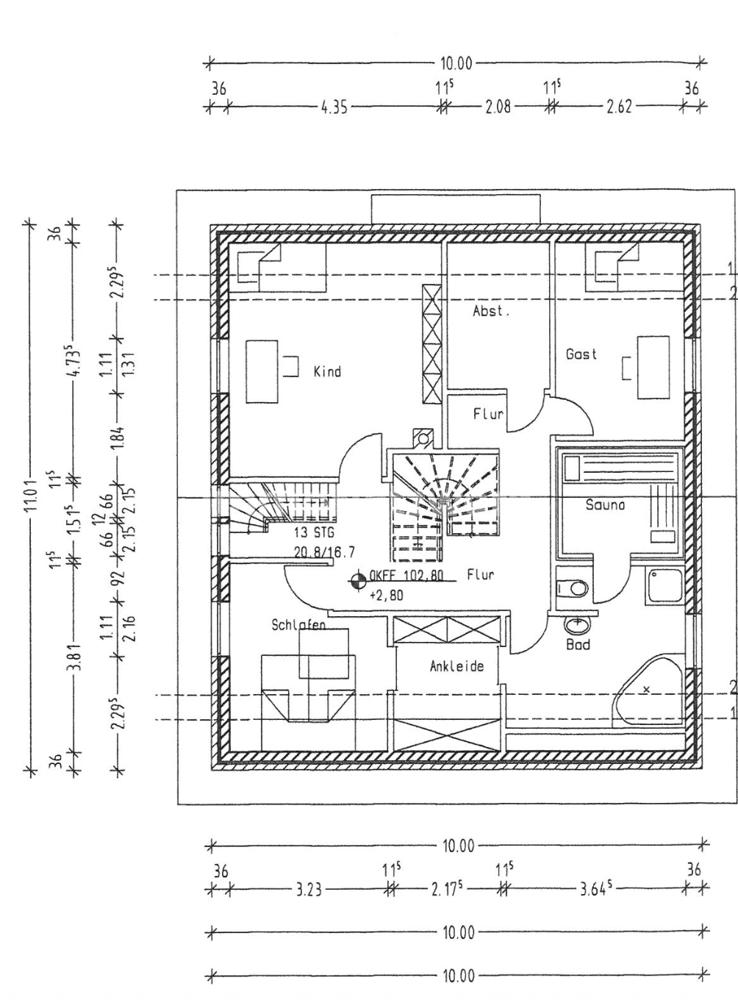
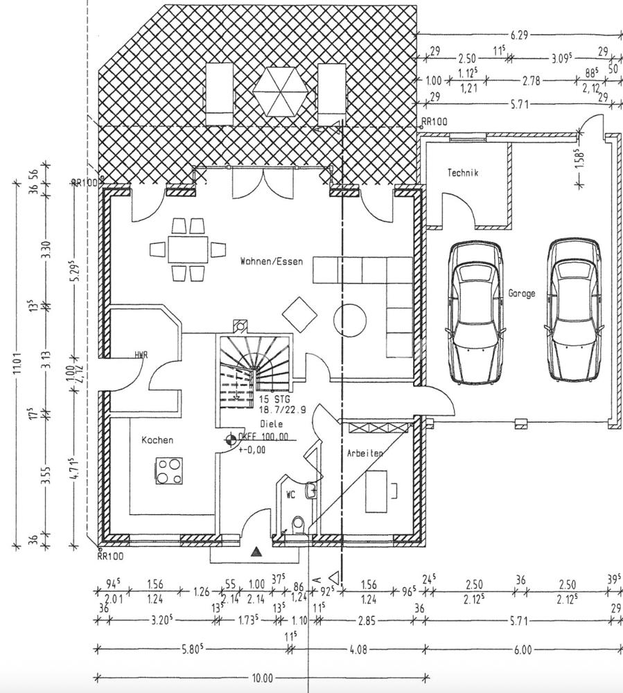
Objektbeschreibung

Einfamilienhaus mit modernem Komfort und entspanntem Charme


Dieses freistehende Einfamilienhaus, erbaut im Jahr 2007, überzeugt durch eine harmonische Kombination aus moderner Technik und wohliger Wohnatmosphäre. Die ruhige Ortsrandlage bietet eine ideale Rückzugsmöglichkeit für Familien, die Wert auf Privatsphäre und Entspannung legen.
Betreten Sie Ihr geräumiges Zuhause durch einen einladenden Eingangsbereich, der direkt ins großzügige Wohnzimmer führt. Mit drei komfortablen Schlafzimmern bietet dieses Haus ausreichend Platz für die ganze Familie.
Die Energieeffizienz ist durch die moderne Luft-Wasser-Wärmepumpe gewährleistet, die sowohl umweltfreundlich als auch kostensparend ist. Für Ihre Fahrzeuge steht eine geräumige Doppelgarage zur Verfügung, die zusätzlichen Stauraum bietet.
Der kompakte Garten ist pflegeleicht und bietet ausreichend Platz für Familienaktivitäten im Freien, ohne dabei übermäßig viel Arbeit zu verursachen. Hier können Kinder sicher spielen, während Sie die Ruhe der Umgebung genießen.
Mit durchdachter Raumaufteilung und der zeitgemäßen Ausstattung ist dieses Haus ideal für Familien, die ein komfortables Leben in einer qualitativen Umgebung suchen.


Kapitalanlage oder Selbstnutzung: Nutzen Sie die Vielseitigkeit dieser Immobilie – sei es als Ihr neues Zuhause oder als lohnenswerte Kapitalanlage.


Aktuell ist das Haus vermietet. Die Monatlichen Soll- Mieteinnahmen liegen bei 1000 € Netto. Eine Besichtigung der Innenräume ist aufgrund der aktuellen Vermietung leider nicht möglich. Interessenten sind jedoch herzlich eingeladen, das Haus diskret von außen zu besichtigen. Die Immobilie wird im Bieterverfahren angeboten.
Der Startpreis liegt bei 250.000 €.
Ein Erwerb ist sowohl zur Eigennutzung möglich – die Räumung aufgrund eines eventuellen Eigenbedarfs obliegt dem Käufer – als auch als Kapitalanlage mit Fortführung des bestehenden Mietverhältnisses.


Hinweis zum Bieterverfahren
Diese Immobilie wird im Bieterverfahren angeboten. Der Startpreis liegt bei 250.000 €.
Interessenten haben die Möglichkeit, innerhalb einer festgelegten Frist ihr persönliches Kaufangebot abzugeben.


Bitte beachten Sie: Das Bieterverfahren ist keine Auktion. Der Verkäufer ist nicht verpflichtet, das Höchstgebot anzunehmen, sondern entscheidet frei über die Annahme eines Angebotes.


Verpassen Sie nicht diese einzigartige Gelegenheit, in ein Zuhause zu investieren, das sowohl ein behagliches Lebensumfeld bietet als auch eine starke Investition darstellt. Nutzen Sie diese Chance und geben Sie Ihr Gebot ab – vielleicht gehört dieses Haus schon bald Ihnen!
Nehmen Sie Kontakt mit uns auf, um mehr über die Möglichkeiten dieses Hauses zu erfahren.


Bausubstanz & Energieausweis

A+

A

37,5 kWh/(m²*a)

B

C

D

E

F

G

H

Baujahr
2007
Wesentlicher Energieträger
LUFTWP
Heizungsart
Wärmepumpe
Befeuerung
Wärmepumpe
Energieausweis
liegt vor
Energieausweistyp
Bedarfsausweis
Gültig bis
05.10.2025
Energieeffizienzklasse
A
Endenergiebedarf
37,5 kWh/(m²*a)

Ausstattung

ca. 165m² + Kompaktes Gartengrundstück



  • Tageslichtbad mit Badewanne und Dusche

  • Alle Fenster isolierverglast mit Kipp- und Drehbeschlägen

  • Gut geschnittene, helle Räume

  • Ausgebauter Dachgeschoss

  • kein Keller

  • Vielfältige Gestaltungsmöglichkeiten

  • Luft /Wasser Wärmepumpe

  • Terrasse

  • Geräumige Garage

  • Stellplatz

  • Aktuell vermietet

  • Sehr gute Verkehrsanbindung

  • Sehr gute Infrastruktur

  • Viele Freizeitmöglichkeiten in unmittelbarer Nähe

  • Kinderspielplatz in direkter Nähe

  • Schulen und Kindergärten in der Nähe

  • Naturnahe Lage

  • Familienfreundliche Lage


Lagebeschreibung

Der Stadtteil Hilfarth gehört zur Stadt Hückelhoven im Kreis Heinsberg und liegt idyllisch an der Rur inmitten der sogenannten Rurebene. Die Umgebung ist geprägt von weitläufigen Wiesen, Ackerflächen und Rad- sowie Spazierwegen entlang des Flusses. Durch diese naturnahe Lage bietet Hilfarth einen hohen Freizeit- und Erholungswert.


Der Ortskern verfügt über eine gute Nahversorgung mit Bäckereien, kleineren Geschäften, Gastronomie, Ärzten sowie einer Grundschule und Kindergärten. Zahlreiche Vereine, das Korbmachermuseum sowie Veranstaltungen wie „Rur in Flammen“ prägen das lebendige Gemeindeleben.


Die benachbarte Innenstadt von Hückelhoven ist nur wenige Minuten entfernt und bietet umfangreiche Einkaufsmöglichkeiten, weiterführende Schulen, ein Kino sowie das Freizeit- und Erlebnisbad „Aquarena“. Über die nahegelegene A46 ist eine sehr gute Verkehrsanbindung gewährleistet – Mönchengladbach erreicht man in ca. 20 Minuten, Düsseldorf in etwa 45 Minuten.


Zusammengefasst bietet Hilfarth eine gelungene Kombination aus ruhigem, naturnahem Wohnen mit gleichzeitig sehr guter Anbindung und Infrastruktur.


Wohnung finden so einfach wie möglich - das ist unsere Mission!

Kostenlose Basic Features

0 € monatlich


  • Individuelles Such-Profil anlegen
  • Suchaufträge speichern
  • One-Klick Kontaktaufnahme

alles anzeigen

Jetzt kostenlos anmelden

Premium Features

19,99 € monatlich


  • Alle kostenlosen Features
  • Smart-Alarm per Whatsapp
  • Deine Chancen checken
  • Wohngegend analysieren

alles anzeigen

Jetzt Premium freischalten

Gewerblicher Anbieter

ImmoNetzwerk GmbH
Theodor Heuß Straße 6
52399 Merzenich

Wohnglück-ID:
Objekt-Nr.:
WGL-807912
250826181825