Maisonette in Hamburg (Wellingsbüttel)

derzeit vermietet
Keller
Garage/­Stellplatz

Ihr Urlaubsgefühl zuhause in Toplage – hochwertige Kapitalanlage mit Option zur Eigennutzung

Anfragen bisher

Premium

Meine Chancen

Premium

Fairer Preis

Premium

950.000 €

Kaufpreis

134 m²

4 Zi.

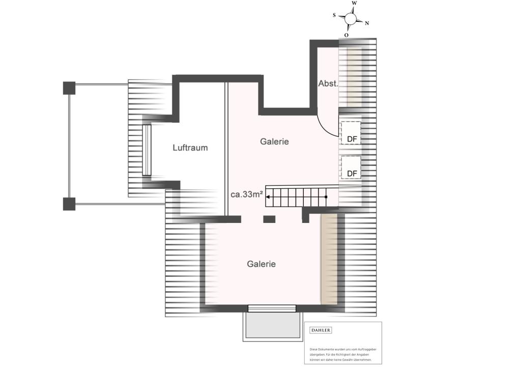
Grundriss

22391 Hamburg / Wellingsbüttel

Gewerblicher Anbieter

DAHLER & COMPANY Alstertal GmbH & Co. KG
Wellingsbüttler Weg 136
22391 Hamburg

Details

Zimmerzahl
4
Wohnungstyp
Maisonette
Etagenzahl
3
Mieteinnahmen pro Monat
3.000 €
Bezugsfrei ab
sofort
Anzahl Badezimmer
1
Anzahl Garage/ Stellplatz
1
Objektzustand
Gepflegt
Baujahr
2000

Kosten

Kaufpreis
950.000 €
Hausgeld
622 €
Käuferprovision
3,57% inkl. gesetzl. MwSt. Käuferprovision bezogen auf den Kaufpreis
Was kostet dein Umzug?

Stellplätze

Stellplatztyp
Tiefgarage
Anzahl
2

Objektbeschreibung

Die Maisonette-Endetagenwohnung befindet sich in einer sehr gepflegten und ansprechend gestalteten Wohnanlage, eingebettet auf einem ca. 5.091 m² großen, parkähnlichen Grundstück mit Südwestausrichtung in rückwärtiger Lage zur Torhauswiese.
Die sehr gepflegte und ansprechend gestaltete Wohnanlage besteht aus vier Gebäuden mit jeweils sechs Wohneinheiten. Die Gemeinschaftsflächen des aufwändig angelegten Grundstücks mit Teichanlage präsentieren sich in einem ausgezeichneten Pflegezustand und laden zum Wohlfühlen ein. Ein besonderes Highlight: die Torhauswiese sowie der Alsterwanderweg sind über eine kleine Zuwegung vom Grundstück in ein paar Schritten direkt zu erreichen.


Die moderne Rotklinkeranlage wurde in den Jahren 1997 bis 2000 erbaut, dieses Gebäude wurde 2000 fertiggestellt. Die weißen Holzfenster, welche teilweise vor kurzem erst erneuert wurden, und hochwertige Kupferelemente unterstreichen den ansprechenden und gehobenen Gesamteindruck der Immobilie. Große Fensterflächen im modernen Treppenhaus sorgen für einen besonderen Lichteinfall. Das Treppenhaus spiegelt das äußerst gepflegte und liebevolle Erscheinungsbild der Gesamtanlage wider.


Die angebotene Wohnung ist bequem mit dem Fahrstuhl von der Tiefgarage aus zu erreichen und befindet sich im zweiten Obergeschoss des Hauses. Abstellmöglichkeiten bietet der geräumige Kellerraum und ein weiterer kleiner Raum für Kaminholz, im Untergeschoss. Zwei Tiefgaragenstellplätze runden das attraktive Angebot ab.


Der Verkäufer strebt ein Mietverhältnis für bis zu fünf Jahre à 3.000,- € Kaltmiete/Monat an. Im Anschluss steht die Immobilie zur Eigennutzung oder Neuvermietung bereit. Eine Vermietung an den jetzigen Eigentümer bei Kauf der Immobilie ist obligatorisch.


Bausubstanz & Energieausweis

A+

A

B

C

155 kWh/(m²*a)

D

E

F

G

H

Baujahr
1997
Objektzustand
Gepflegt
Heizungsart
Fußbodenheizung
Befeuerung
Elektroheizung
Energieausweis
liegt vor
Energieausweistyp
Bedarfsausweis
Gültig bis
28.01.2025
Energieeffizienzklasse
C
Endenergiebedarf
155 kWh/(m²*a)

Ausstattung


  • die angebotene Eigentumswohnung befindet sich im zweiten Obergeschoss des Gebäudes und besticht durch den zeitgemäßen Pflegezustand

  • durchweg helle, gut belichtete Räume

  • der gelungene Grundriss eröffnet ein Wohnen auf gehobenem Niveau für verschiedene Zielgruppen

  • die hohen Decken sowie die hochwertige Gestaltung bieten ein Wohlfühlambiente mit besonderer Aufenthaltsqualität

  • die gesamte Wohnung ist mit einer elektrischen Fußbodenheizung ausgestattet

  • großzügiger Eingangsbereich mit Garderobe

  • offene und geräumige Einbauküche mit weiß lackierten Fronten aus dem Jahr 2005 von der Tischlerei Utz, die Küche bietet genügend Platz für einen gemütlichen Esstisch

  • attraktiver Wohn-/Essbereich mit Kamin, mit belüfteter Kamin-Kassette

  • Zugang vom Wohnbereich zum ca. 15 m² großen, sonnigen Balkon

  • die Böden der Wohnung sind größtenteils mit Echtholzparkett, hellen Fliesen und Teppichboden belegt

  • zeitlos, in cremeweiß gefliestes Bad mit u.a. stilvollem Waschtisch, einer Dusche sowie einer Badewanne, durch praktische Einbauschränke finden Waschmaschine und Trockner einen geschickten Platz im Bad

  • die Warmwasseraufbereitung erfolgt über Durchlauferhitzer und im Bad über einen 100l Warmwasserspeicher

  • alle Einbaumöbel, Küche, Bad, Eingangsbereich und Schlafzimmer von der Tischlerei Utz


Lagebeschreibung

Die angebotene Immobilie befindet sich in einer bereits erwähnten Adresslage, eine Ausnahmelage des Alstertals. Die Infrastruktur ist hervorragend. In fußläufiger Entfernung befindet sich das beliebte Alstertal-Einkaufszentrum mit seinen über 240 Geschäften; zudem sind dort Ärzte diverser Fachrichtungen ansässig. Einkäufe für den täglichen Bedarf lassen sich außerdem auf dem Poppenbüttler- oder Wellingsbüttler Markt tätigen.
Das Alsterforum befindet sich in unmittelbarer Nachbarschaft und bietet ein großes kulturelles Angebot.
Eine schnelle Anbindung an die Hamburger Innenstadt ist durch die nahe gelegene S-Bahnstation Wellingsbüttel gegeben. Der Flughafen ist in ca. 20 Minuten gut zu erreichen. Zahlreiche Freizeitgestaltungsmöglichkeiten bietet der nahe gelegene Alsterlauf mit seinen Wanderwegen und Wassersportmöglichkeiten. Zum Entspannen laden das Meridian Spa Alstertal beim Alstertal-Einkaufszentrum oder das Aspria Spa & Wellness in Hummelsbüttel ein. Diverse Sportvereine, Tennis- und Hockeyclubs (UHC und Klipper) sowie der nahe gelegene Golfclub Treudelberg runden das vielfältige Freizeitangebot ab.


Sonstige Angaben

Die vom Käufer im Falle eines Ankaufs an die Dahler & Company Alstertal GmbH & Co. KG zu zahlende Provision beträgt 3,57 % inkl. der gesetzl. MwSt. bezogen auf den Kaufpreis.


Wohnung finden so einfach wie möglich - das ist unsere Mission!

Kostenlose Basic Features

0 € monatlich


  • Individuelles Such-Profil anlegen
  • Suchaufträge speichern
  • One-Klick Kontaktaufnahme

alles anzeigen

Jetzt kostenlos anmelden

Premium Features

19,99 € monatlich


  • Alle kostenlosen Features
  • Smart-Alarm per Whatsapp
  • Deine Chancen checken
  • Wohngegend analysieren

alles anzeigen

Jetzt Premium freischalten

Gewerblicher Anbieter

DAHLER & COMPANY Alstertal GmbH & Co. KG
Wellingsbüttler Weg 136
22391 Hamburg

Wohnglück-ID:
Objekt-Nr.:
WGL-805640
DC-HAR35723