Erdgeschosswohnung in Pösing

Balkon/­Terrasse
Garage/­Stellplatz

KfW40 QNG Neubau: 2-Zimmer Erdgeschosswohnung mit gehobener Ausstattung

Anfragen bisher

Premium

Meine Chancen

Premium

Fairer Preis

Premium

264.000 €

Kaufpreis

66,85 m²

2 Zi.

Erdg.

93483 Pösing

Gewerblicher Anbieter

VON POLL IMMOBILIEN Cham - Mario Aschenbrenner
Fuhrmannstraße 3
93413 Cham

Details

Zimmerzahl
2
Wohnungstyp
Erdgeschosswohnung
Anzahl Schlafzimmer
1
Anzahl Badezimmer
1
Anzahl Garage/ Stellplatz
2
Objektzustand
Erstbezug
Baujahr
2025

Kosten

Kaufpreis
264.000 €
Was kostet dein Umzug?

Stellplätze

Stellplatztyp
Carport
Anzahl
1
Kaufpreis
12.000 €
Stellplatztyp
Sonstiges
Anzahl
1
Kaufpreis
9.000 €

Objektbeschreibung

Willkommen in Ihrem zukünftigen Zuhause, dessen stilvolle Architektur die neuesten energetischen Standards erfüllt. Die bezugsfertige Fertigstellung ist für das Jahr 2026 vorgesehen.


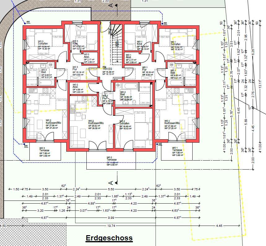
Die zum Verkauf stehende 2-Zimmer-Erdgeschosswohnung bietet eine Wohnfläche von ca. 66,85 m². Ein Schlafzimmer, ein großzügiger Wohn- und Essbereich, das moderne Bad sowie eine praktische Diele und ein Abstellraum bieten ausreichend Platz sowohl für Singles als auch Paare oder kleine Familien. Herzstück der Wohnung ist der offen gestaltete Wohn-Essbereich mit Zugang zur eigenen Terrasse sowie zum Gartenabteil.


Die hochwertige Ausstattung unterstreicht das besondere Wohnambiente. Im gesamten Wohnbereich wird Echtholzparkett verlegt.


Eine Fußbodenheizung, Kunststofffenster mit 3-fach-Verglasung, elektrisch bedienbare Rollläden und eine dezentrale Lüftungsanlage mit Wärmerückgewinnung sorgen dabei für angenehme Wärme und ein behagliches Raumklima.


Ein weiteres Plus ist der zu jeder Wohneinheit zugeordnete, großzügige Abstellraum im Dachgeschoss – ideal zum Verstauen von saisonalen Gegenständen.


Zudem gehört zu jeder Wohneinheit ein überdachter Carportstellplatz, sowie ein direkt an das Carport angrenzender abschließbarer Abstellraum mit Stromanschluss für Deckenleuchte und Steckdose zum Aufladen von E-Bikes (Kaufpreis 12.000 Euro, nicht im Kaufpreis inkludiert) sowie ein weiterer überdachter Carportstellplatz direkt vor dem Haus (Kaufpreis 9.000 Euro, nicht im Kaufpreis inkludiert). Eine Vorsehung für die Installation einer E-Ladestation für Elektrofahrzeuge wird bereits berücksichtigt.


Technisch überzeugt das Gebäude durch eine 18 kWp Photovoltaik-Anlage inklusive großem Speicher (30 kWh), was den Energieverbrauch nachhaltig reduziert.


Darüber hinaus ist das Objekt nach KfW-40-QNG-Standard förderfähig, was attraktive Förderungen und zukunftsweisende Energieeffizienz garantiert. Für Kapitalanleger ist die Wohnung durch die Möglichkeit der degressiven AfA (Abschreibung) mit 5% zusätzlich besonders interessant.


Die Visualisierungen der Immobilie dienen als Beispiel und basieren auf einem bereits realisierten Projekt. Diese bieten einen ersten Eindruck von der zu erwartenden Qualität und dem architektonischen Stil des Neubaus.


Für weitere Informationen oder eine unverbindliche Besichtigung kontaktieren Sie uns bitte. Sichern Sie sich jetzt Ihr neues Zuhause – wir freuen uns auf Ihre Anfrage!


Bausubstanz & Energieausweis

A+

A

28,5 kWh/(m²*a)

B

C

D

E

F

G

H

Baujahr
2025
Objektzustand
Erstbezug
Wesentlicher Energieträger
LUFTWP
Heizungsart
Fußbodenheizung
Befeuerung
Solarheizung
Energieausweis
liegt vor
Energieausweistyp
Bedarfsausweis
Gültig bis
27.11.2025
Energieeffizienzklasse
A
Endenergiebedarf
28,5 kWh/(m²*a)

Ausstattung

Bilder dienen als Beispiel von einem bereits bestehenden Objekt. Eine Besichtigung eines Referenzobjekts ist jederzeit nach Absprache möglich.



  • 1x direkt an das Carport angrenzender abschließbarer Abstellraum (mit Stromanschluss für Deckenleuchte und Steckdose zum Aufladen von E-Bikes) - Kaufpreis 12.000 Euro

  • 1x überdachter Carportstellplatz direkt vor dem Haus - Kaufpreis 9.000 Euro

  • eigener geräumiger und großzügiger Abstellraum im Dachgeschoss bei jeder Wohneinheit

  • Echtholzparkett im Standardbodenprogramm ohne Aufpreis mitenthalten

  • für Kapitalanleger durch degressive AfA 5% besonders interessant

  • fantastischer Ausblick über das Regental

  • Kunststofffenster mit 3-fach-Verglasung

  • 18 kWp PV-Anlage mit Speicher 30 kWh

  • Vorsehung für Elektroauto vorhanden

  • hochwertige Türen und Treppen

  • elektrisch bedienbare Rollläden

  • dezentrale Lüftungsanlage

  • KfW 40 QNG förderfähig


Kaufpreis der Wohnung - inklusive 2 Carports (eines davon mit direkt angrenzendem Abstellraum und Stromanschluss) - 285.000 Euro


Lagebeschreibung

Pösing ist eine Gemeinde im Oberpfälzer Landkreis Cham. Die Gemeinde ist Mitglied der Verwaltungsgemeinschaft Stamsried.


Pösing liegt ca. 6 Kilometer von der Stadt Roding entfernt. Diese ist die zweitgrößte Kommune im Landkreis Cham. Mit ca. 13.100 Einwohnern ist Sie das Zentrum des westlichen Landkreises.


Roding liegt rund 45 km nordöstlich von Regensburg im reizvollen vorderen Bayerischen Wald. Zahlreiche kleine und mittlere Gewerbe und Industriegebiete, Supermärkte und Ladengeschäfte verleihen der Stadt ihre Bedeutung.


Die Kreisstadt Cham, mit einer Einwohnerzahl von ca. 17.400 erreichen Sie in nur 15 Kilometern Entfernung.


Lage:



  • nach Roding ca. 6 km

  • nach Cham Zentrum ca. 15 km

  • nach Regensburg Zentrum ca. 53 km


Sonstige Angaben

Es liegt ein Energiebedarfsausweis vor.
Dieser ist gültig bis 27.11.2025.
Endenergiebedarf beträgt 28.50 kwh/(m²*a).
Wesentlicher Energieträger der Heizung ist Luft/wasser Wärmepumpe.
Das Baujahr des Objekts lt. Energieausweis ist 2025.
Die Energieeffizienzklasse ist A.


Wohnung finden so einfach wie möglich - das ist unsere Mission!

Kostenlose Basic Features

0 € monatlich


  • Individuelles Such-Profil anlegen
  • Suchaufträge speichern
  • One-Klick Kontaktaufnahme

alles anzeigen

Jetzt kostenlos anmelden

Premium Features

19,99 € monatlich


  • Alle kostenlosen Features
  • Smart-Alarm per Whatsapp
  • Deine Chancen checken
  • Wohngegend analysieren

alles anzeigen

Jetzt Premium freischalten

Gewerblicher Anbieter

VON POLL IMMOBILIEN Cham - Mario Aschenbrenner
Fuhrmannstraße 3
93413 Cham

Wohnglück-ID:
Objekt-Nr.:
WGL-805342
25201073