Mehrfamilienhaus in Langenhorn

Garage/­Stellplatz

Kapitalanlage: Charmantes Doppelhaus mit großzügigem Grundriss in ruhiger Ortsrandlage in Langenhorn

Anfragen bisher

Premium

Meine Chancen

Premium

Fairer Preis

Premium

349.000 €

Kaufpreis

205,5 m²

8 Zi.

25842 Langenhorn

Gewerblicher Anbieter

Richardsen Immobilien-Vermietungen GmbH & Co.KG
Alte Schulstraße 4
25899 Niebüll

Details

Grundstücksfläche
755 m²
Zimmerzahl
8
Haustyp
Mehrfamilienhaus
Anzahl Schlafzimmer
6
Anzahl Badezimmer
2
Anzahl Garage/ Stellplatz
1
Objektzustand
Gepflegt
Baujahr
1994

Kosten

Kaufpreis
349.000 €
Käuferprovision
3,57 % inkl. gestzl. MwSt.
Was kostet dein Umzug?

Stellplätze

Stellplatztyp
Freiplatz
Anzahl
2

Objektbeschreibung

Objekt-Nr. 100-627-6


Bauweise
Baujahr 1994, Bauweise massiv, Dacheindeckung mit Betonpfanne, Fenster sind aus Kunststoff mit Isolierverglasung, die Haustüren sind aus Holz.


Heizung
Gaszentralheizung mit Warmwasserbereitung, Marke „Vaillant“, Baujahr 1996, Nennwertleistung: 10,5 kW


Grundstück
Das Grundstück hat eine Größe von ca. 755,00 m².
Das Grundstück ist voll erschlossen und an die öffentliche Kanalisation angeschlossen.


Energieausweis
Energieausweis: Bedarfsausweis
Endenergiebedarf: 128,6 kWh/(m²*a)
Wesentl. Energieträger: Erdgas H
Energieeffizienzklasse: D
Energieausweis gültig bis: 15.10.2035
Baujahr lt. Energieausweis: 1994


Irrtum vorbehalten!


Bausubstanz & Energieausweis

A+

A

B

C

D

128,6 kWh/(m²*a)

E

F

G

H

Baujahr
1994
Objektzustand
Gepflegt
Wesentlicher Energieträger
GAS
Heizungsart
Zentralheizung
Befeuerung
Gasheizung
Energieausweis
liegt vor
Energieausweistyp
Bedarfsausweis
Gültig bis
15.10.2035
Energieeffizienzklasse
D
Endenergiebedarf
128,6 kWh/(m²*a)

Ausstattung

•Nettokaltmiete 21.120,00 € p. a.
•Photovoltaikanlage (2014 installiert) mit einer Leistung von 9,88 kWp


Lagebeschreibung

Die Immobilie befindet sich in einer ruhigen Lage am Ortsrand von dem Dorf Langenhorn. Langenhorn bietet eine gute Infrastruktur mit Schulen, Ärzten und Einkaufsmöglichkeiten sowie einer sehr guten Verkehrsanbindung durch die Bundesstraße 5 und dem Bahnhof mit einer direkten, stündlichen Verbindung auf die Insel Sylt oder nach Hamburg. Der Bahnhof ist nur ca. 3 km entfernt.


Sonstige Angaben

Es liegt ein Energiebedarfsausweis vor.
Dieser ist gültig bis 15.10.2035.
Endenergiebedarf beträgt 128.60 kwh/(m²*a).
Wesentlicher Energieträger der Heizung ist Gas.
Das Baujahr des Objekts lt. Energieausweis ist 1994.
Die Energieeffizienzklasse ist D.


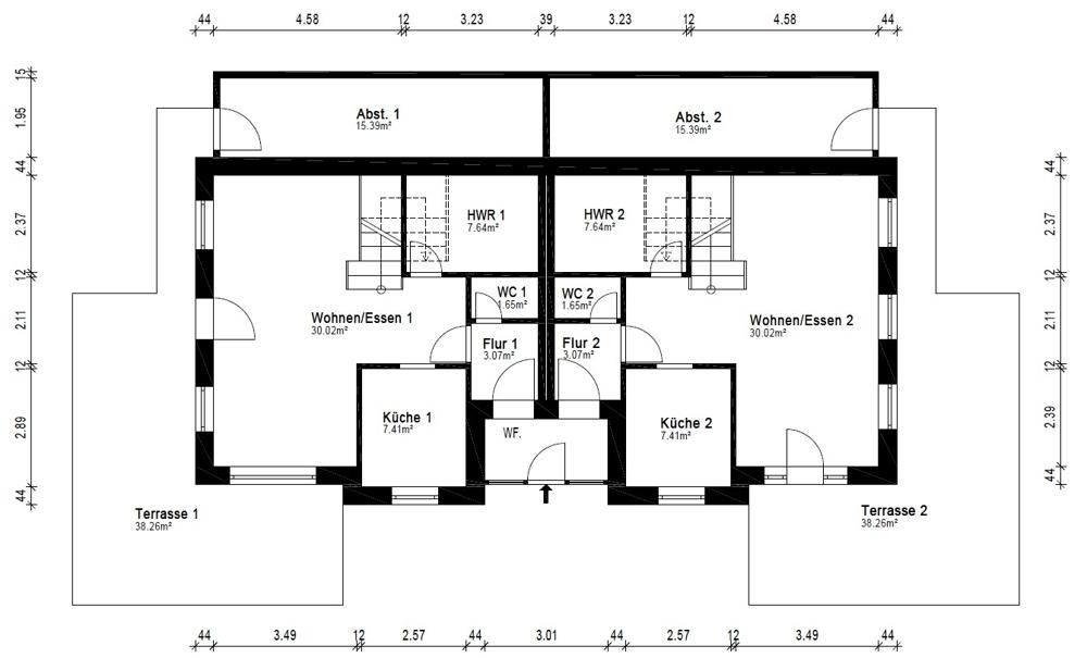
Erdgeschoss links:
Wohnen/Essen 1: 30,02 m²
Küche 1: 7,41 m²
HWR 1: 7,64 m²
WC 1: 1,65 m²
Flur 1: 3,07 m²
Erdgeschoss gesamt: ca. 49,79 m²


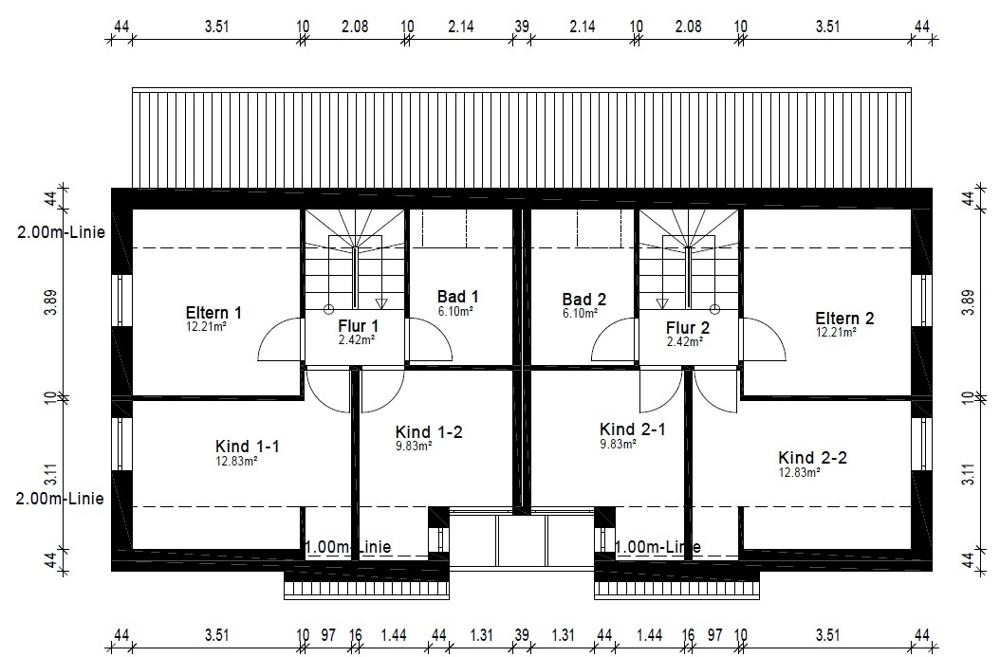
Dachgeschoss links:
Eltern 1: 12,21 m²
Kind 1-1: 12,83 m²
Kind 1-2: 9,83 m²
Bad: 6,10 m²
Flur: 2,42 m²
Dachgeschoss gesamt: ca. 43,39 m²


Wohnfläche linke Haushälfte gesamt: ca. 93,18 m²
Zzgl.: Abstellraum (ca. 15,39 m²) und Terrasse


Erdgeschoss rechts:
Wohnen/Essen 2: 30,02 m²
Küche 2: 7,41 m²
HWR 2: 7,64 m²
WC 2: 1,65 m²
Flur 2: 3,07 m²
Erdgeschoss gesamt: ca. 49,79 m²


Dachgeschoss rechts:
Eltern 2: 12,21 m²
Kind 2-1: 9,83 m²
Kind: 9,8 m²
Bad: 6,10 m²
Flur: 2,42 m²
Dachgeschoss gesamt: ca. 43,39 m²


Wohnfläche rechte Haushälfte gesamt: ca. 93,18 m²


Wohnfläche gesamt: ca. 186,36 m²


Zzgl.: Abstellräume (ca. zweimal 15,39 m²) und Terrassen
Für die Berechnungen der Raumgrößen liegen jeweils die Grundflächen der Räume zugrunde.


Alle Maße sind ca. Maße, Irrtum vorbehalten.


Wohnung finden so einfach wie möglich - das ist unsere Mission!

Kostenlose Basic Features

0 € monatlich


  • Individuelles Such-Profil anlegen
  • Suchaufträge speichern
  • One-Klick Kontaktaufnahme

alles anzeigen

Jetzt kostenlos anmelden

Premium Features

19,99 € monatlich


  • Alle kostenlosen Features
  • Smart-Alarm per Whatsapp
  • Deine Chancen checken
  • Wohngegend analysieren

alles anzeigen

Jetzt Premium freischalten

Gewerblicher Anbieter

Richardsen Immobilien-Vermietungen GmbH & Co.KG
Alte Schulstraße 4
25899 Niebüll

Wohnglück-ID:
Objekt-Nr.:
WGL-805267
100-627-6