Wohn-Grundstück in Hofgeismar

Traumhafte Baugrundstücke im Süden von Hofgeismar! Keine Provision! Kein Bauzwang!

Anfragen bisher

Premium

Meine Chancen

Premium

Fairer Preis

Premium

124.000 €

Kaufpreis

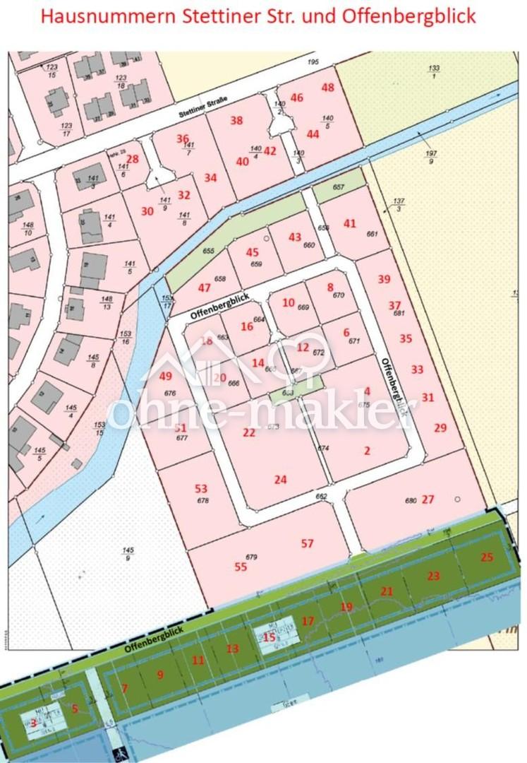
Stettiner Straße 48
34369 Hofgeismar

Gewerblicher Anbieter

ohne-makler.net
Humboldtstraße 25 A
21509 Glinde

Details

Grundstücksfläche
496 m²
Typ des Grundstücks
Wohn-Grundstück
Bezugsfrei ab
nach Absprache

Kosten

Kaufpreis
124.000 €
Käuferprovision
keine
Was kostet dein Umzug?

Objektbeschreibung

Die angebotenen Grundstücke mit Größen von 481m² bis 751m² befinden sich im WA1 des Neubaugebietes Offenbergblick, B-Plan 67, Sudheimer Feld Ost in 34369 Hofgeismar, Kernstadt.
GRZ: 0,4
GFZ: 0,8
Gebäudehöhe: max. 9,0m gesamt
2 Vollgeschosse plus Dachgeschoss
offene Bauweise
Der Grundstücksverkauf wird provisionsfrei über die k2s Projektentwicklungs GmbH abgewickelt.


Bausubstanz & Energieausweis

Heizungsart
Sonstige

Lagebeschreibung

Das Neubaugebiet Offenbergblick befindet sich in zentrumsnaher und dennoch naturnaher Lage im wunderschönen Süden von Hofgeismar, nahe der Albert-Schweitzer-Schule!
Vielfältige Einkaufs-, Dienstleistungs-, Freizeit- und Gastronomieangebote befinden sich in der Nähe, ebenso ein hervorragend ausgestatteter Bau- und Heimwerkermarkt!
Verschiedene Kindergärten, Grundschulen, eine Gesamtschule und ein renommiertes Oberstufengymnasium sowie Berufs- und Förderschulen sind ebenfalls in Hofgeismar ansässig.
Die in 13 Minuten fußläufig zu erreichende historische Fußgängerzone der Fachwerkstadt Hofgeismar rundet dieses Angebot sowohl für den tägliche Bedarf als auch in Bezug auf verschiedenste Straßen- und Stadtfeste ab. Hofgeismar verfügt über eine vollumfängliche ärztliche Versorgung durch verschiedene Arztpraxen, das Kreiskrankenhaus, mehrere Tagespflegen und Physiotherapiepraxen.
Öffentliche Verkehrsmittel sind fußläufig erreichbar.
Durch die Regiotram am nahegelegenen Bahnhof ist eine hervorragende Nahverkehrsanbindung sowohl in Richtung Kassel als auch in Richtung Warburg sichergestellt.
Infrastruktur (im Umkreis von 5 km):
Apotheke, Lebensmittel-Discount, Allgemeinmediziner, Kindergarten, Grundschule, Hauptschule, Realschule, Gymnasium, Gesamtschule, Öffentliche Verkehrsmittel


Sonstige Angaben

ohne-makler (OM) ist weder Anbieter noch Vermittler der Immobilie. OM betreibt eine Plattform für Immobilieneigentümer, die unter anderem die gleichzeitige Veröffentlichung einzelner Inserate auf mehreren Immobilienportalen ermöglicht. Die Inhalte dieser Inserate werden ausschließlich von Dritten verantwortet. Für die Richtigkeit, Vollständigkeit oder Rechtmäßigkeit der Angaben übernimmt OM keine Haftung. Hinweise auf mögliche Rechtsverstöße können jederzeit gemeldet werden und werden nach Prüfung umgehend bearbeitet.


Wohnung finden so einfach wie möglich - das ist unsere Mission!

Kostenlose Basic Features

0 € monatlich


  • Individuelles Such-Profil anlegen
  • Suchaufträge speichern
  • One-Klick Kontaktaufnahme

alles anzeigen

Jetzt kostenlos anmelden

Premium Features

19,99 € monatlich


  • Alle kostenlosen Features
  • Smart-Alarm per Whatsapp
  • Deine Chancen checken
  • Wohngegend analysieren

alles anzeigen

Jetzt Premium freischalten

Gewerblicher Anbieter

ohne-makler.net
Humboldtstraße 25 A
21509 Glinde

Wohnglück-ID:
Objekt-Nr.:
WGL-804236
304336