Etagenwohnung in Saarbrücken (St. Arnual)

Aufzug
Gäste WC
Keller
Einbauküche
Garage/­Stellplatz

Lichtdurchflutete Eigentumswohnung mit Panoramablick – Stilvoll wohnen am Winterberg *provisionsfrei

Anfragen bisher

Premium

Meine Chancen

Premium

Fairer Preis

Premium

219.000 €

Kaufpreis

113 m²

4 Zi.

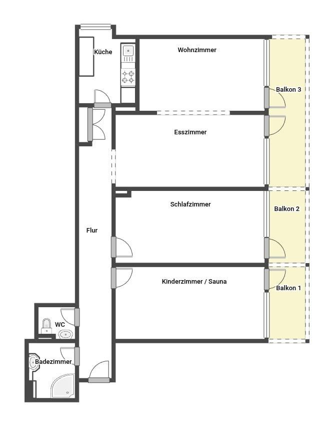
Grundriss

66119 Saarbrücken

Gewerblicher Anbieter

Bank 1 Saar Immobilien GmbH
Kaiserstr. 17-19
66111 Saarbrücken

Details

Zimmerzahl
4
Wohnungstyp
Etagenwohnung
Etagenzahl
6
Bezugsfrei ab
01.08.2025
Anzahl Schlafzimmer
2
Anzahl Badezimmer
1
Anzahl Garage/ Stellplatz
1
Objektzustand
Gepflegt
Baujahr
1980

Kosten

Kaufpreis
219.000 €
Hausgeld
461 €
Käuferprovision
prov.frei
Was kostet dein Umzug?

Stellplätze

Stellplatztyp
Freiplatz
Anzahl
1

Objektbeschreibung

Willkommen in der Winterbergresidenz – einer der begehrtesten Wohnlagen Saarbrückens! In der Theodor-Heuss-Straße, oberhalb von St. Arnual, erwartet Sie in der 3. Etage dieses gepflegten Mehrparteienhauses eine lichtdurchflutete 4-Zimmer-Eigentumswohnung mit 113 m² Wohnfläche, drei sonnigen Südbalkonen und einem beeindruckenden Weitblick über die Stadt.


Diese exklusive Wohnung überzeugt mit großzügigen Fensterflächen, einem durchdachten Grundriss sowie hochwertigen Ausstattungsdetails:



  • Helle Wohnräume mit hochwertigen Akustik-Spanndecken inklusive dimmbarer Einbauspots

  • Elegante weiße Holztüren mit edlen Beschlägen

  • Einbauküche mit Elektrogeräten inklusive

  • Küchenwand kann entfernt werden um alles offen mit Ess- und Wohnzimmer zu verbinden

  • Schreinergefertigte Badmöbel, Saunaraum mit Feuchtraumpaneelen

  • Separates Gäste-WC neben dem stilvollen Hauptbad mit Waschmaschinen- und Trockneranschluss
    -Gepflegter, professionell gereinigter Velourteppich in den Wohnräumen

  • Alle Räume und Decken wurden frisch gestrichen

  • Die drei Südbalkone mit Kunstrasenteppich laden zum Entspannen mit Panoramablick ein

  • Hausmeister wohnt im Haus


Ein weiteres Plus: Der barrierefreie Zugang sowohl ins Haus als auch in die Wohnung ermöglicht komfortables Wohnen bis ins hohe Alter. Ein Hausmeisterservice, ein eigener Kellerraum, eine Garage direkt am Hauseingang sowie ein regelmäßig gewarteter Fahrstuhl runden das Angebot ab.


Fazit:
Diese hochwertig ausgestattete Wohnung in der Winterbergresidenz bietet Wohnen mit Stil und Aussicht. Das gepflegte Wohnambiente, die durchdachten Details sowie die erstklassige Lage über den Dächern Saarbrückens machen sie zu einer seltenen Gelegenheit auf dem Immobilienmarkt.


Vereinbaren Sie jetzt Ihren Besichtigungstermin – Ihr Immobilienspezialist im Saarland!


Bausubstanz & Energieausweis

A+

A

B

C

D

E

F

G

H

Baujahr
1980
Objektzustand
Gepflegt
Wesentlicher Energieträger
Fernwärme
Heizungsart
Zentralheizung
Befeuerung
Fernwärme
Energieausweis
liegt vor
Energieausweistyp
Verbrauchsausweis
Ausstellungsdatum
09.01.2019
Gültig bis
09.01.2029
Energieeffizienzklasse
C

Ausstattung

Individuelle Ausstattungsmerkmale:

- Garage/ Stellplatz


Lagebeschreibung

Die Winterbergresidenz in Saarbrücken-St. Arnual bietet eine der attraktivsten Höhenlagen der Stadt – ruhig, gepflegt und dennoch bestens angebunden. Die Nähe zur Winterberg-Klinik (nur ca. 5 Gehminuten entfernt) macht die Lage auch für medizinisches Fachpersonal besonders attraktiv.


Verkehrsanbindung:



  • Öffentliche Verkehrsmittel (Bushaltestelle) fußläufig in unmittelbarer Nähe

  • Schneller Anschluss an die A620 / A6 in wenigen Fahrminuten

  • In ca. 10 Minuten mit dem Auto in der Saarbrücker Innenstadt

  • Einkaufsmöglichkeiten, Apotheken und Restaurants befinden sich im nahen Umfeld

  • Dank ihrer zentrumsnahen, aber ruhigen Lage, der barrierefreien Erreichbarkeit und dem stilvollen Wohnkomfort eignet sich diese Wohnung ideal für Paare, Einzelpersonen oder Senioren, die Wert auf Qualität, Ruhe und eine gute Infrastruktur legen.


Sonstige Angaben

Fragen Sie nach einer Finanzierung durch unsere Hausbank die Bank1Saar - Sie bekommen sehr kurzfristig einen persönlichen Termin für eine Baufinanzierungsberatung. Dank regionaler Fachexpertise können wir schnell ein attraktives Angebot unterbreiten und Ihren Traum vom Haus kompetent realisieren!


Wohnung finden so einfach wie möglich - das ist unsere Mission!

Kostenlose Basic Features

0 € monatlich


  • Individuelles Such-Profil anlegen
  • Suchaufträge speichern
  • One-Klick Kontaktaufnahme

alles anzeigen

Jetzt kostenlos anmelden

Premium Features

19,99 € monatlich


  • Alle kostenlosen Features
  • Smart-Alarm per Whatsapp
  • Deine Chancen checken
  • Wohngegend analysieren

alles anzeigen

Jetzt Premium freischalten

Gewerblicher Anbieter

Bank 1 Saar Immobilien GmbH
Kaiserstr. 17-19
66111 Saarbrücken

Wohnglück-ID:
Objekt-Nr.:
WGL-804209
007137#eBkRJ