Doppelhaushälfte in Düsseldorf (Wittlaer)

Balkon/­Terrasse
Garten/­-mitbenutzung
Gäste WC
Keller
Einbauküche
Garage/­Stellplatz

Exklusive Doppelhaushälfte in bevorzugter Lage nahe des Rheins

Anfragen bisher

Premium

Meine Chancen

Premium

Fairer Preis

Premium

3.950 €

Kaltmiete

278 m²

7 Zi.

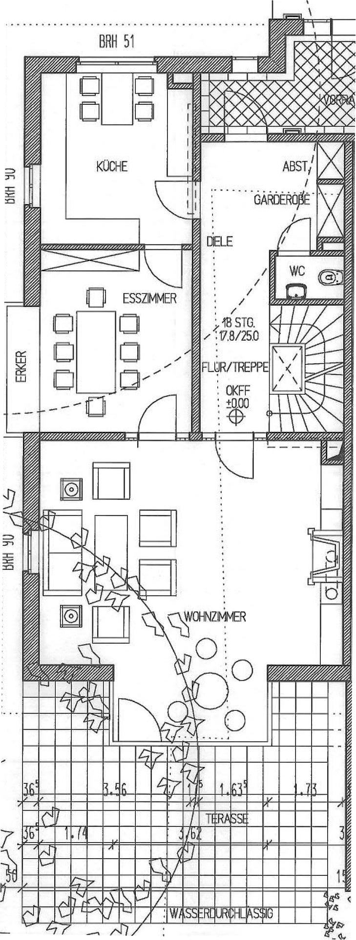
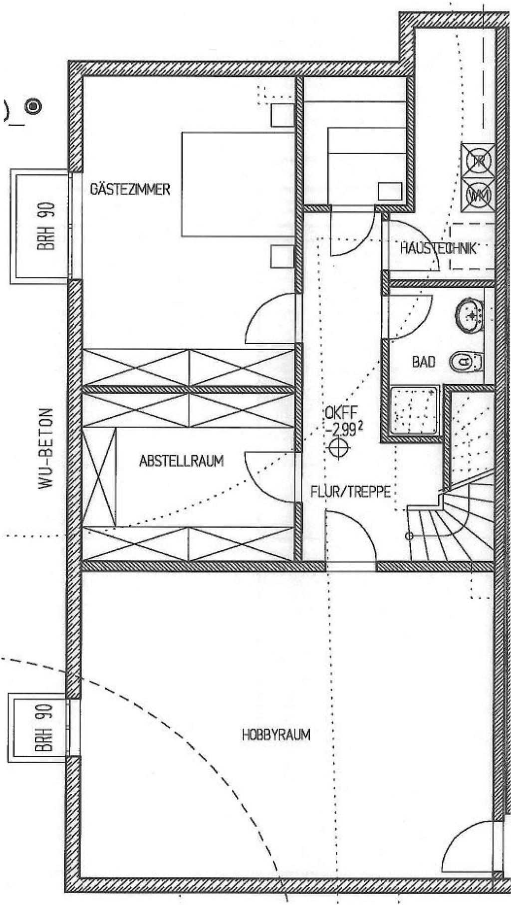
Grundriss

40489 Düsseldorf / Wittlaer

Gewerblicher Anbieter

BÖCKER-Wohnimmobilien GmbH
Klemensplatz 3
40489 Düsseldorf

Details

Grundstücksfläche
250 m²
Zimmerzahl
7
Haustyp
Doppelhaushälfte
Bezugsfrei ab
nach Vereinbarung
Anzahl Schlafzimmer
6
Anzahl Badezimmer
4
Anzahl Garage/ Stellplatz
1
Baujahr
2004

Kosten

Kaltmiete
3.950 €
Nebenkosten
350 €
Kaution
11.850 €
Was kostet dein Umzug?

Stellplätze

Stellplatztyp
Tiefgarage
Anzahl
2

Objektbeschreibung

Exklusive Parkvilla mit Luxusausstattung in Rheinnähe.


Die Villa bietet Ihnen ein unvergleichliches Ambiente fürs Leben, das durch den hohen Freizeitwert sowie durch das naturnahe Wohnen noch zusätzlich unterstrichen wird.


Die Internationale Schule, der Flughafen sowie die Düsseldorfer Innenstadt sind in kürzester Zeit zu erreichen.


Gerne überzeugen wir Sie bei einem Besichtigungstermin vor Ort!


Bausubstanz & Energieausweis

A+

A

B

C

75,5 kWh/(m²*a)

D

E

F

G

H

Baujahr
2014
Wesentlicher Energieträger
GAS
Heizungsart
Zentralheizung
Befeuerung
Gasheizung
Energieausweis
liegt vor
Energieausweistyp
Bedarfsausweis
Gültig bis
14.06.2033
Energieeffizienzklasse
C
Endenergiebedarf
75,5 kWh/(m²*a)

Ausstattung


  • Großzügiger Wohnbereich

  • Essbereich mit offener Wohnküche inkl. hochwertige Einbauküche

  • Diele mit Einbauschränken

  • Offener Kamin

  • Alarmanlage

  • Hausanlage mit Videokamera

  • Fußbodenheizung im ganzen Haus

  • Parkettböden

  • Elektrische Rollläden

  • Treppengeländer aus Naturholz

  • Integrierte Beleuchtung (Spotlights)

  • 2 TG-Stellplätze vom Haus aus begehbar (im Mietpreis enthalten)

  • Staffelmietvertrag


Lagebeschreibung

Wittlaer gehört zu den exklusiven Wohnlagen im Norden der Landeshauptstadt Düsseldorf. Das malerische Dorf, unmittelbar am Rhein gelegen, bietet ländliche Idylle gepaart mit den Vorzügen der nahen, pulsierenden Großstadt. Eine grüne Oase der Ruhe und Beschaulichkeit, die nicht ohne Grund Künstler wie zum Beispiel Max Clarenbach zu hinreißenden und typisch niederrheinischen Bildern inspirierte.


Der über 800 Jahre alte Ort bietet eine gute Infrastruktur und der tägliche Bedarf kann auf kurzem Wege gedeckt werden. Supermärkte, Bäcker, Metzger, Banken, Ärzte und Apotheken liegen in erreichbarer Nähe. Am Ort befinden sich zwei Kindergärten und eine Grundschule. In Kaiserswerth gewährleisten zwei private Gymnasien mit bestem Ruf sowie eine Internationale Schule optimale Ausbildungschancen für den Nachwuchs.


Beste Verkehrsanbindung mit PKW und Öffentlichen Verkehrsmitteln wie Bus und Bahn nach Kaiserswerth, Düsseldorf und zum Flughafen unterstreichen zusätzlich die Attraktivität der ruhigen Wohnlage im Grünen abseits von Lärm, Hektik und Stress. Die reizvolle Niederrheinlandschaft mit Auen, Wäldern und Feldern garantiert ebenso wie die nahe Kunst- und Kulturwelt Düsseldorfs zu jeder Jahreszeit vielfältige Freizeitmöglichkeiten. Eine Infrastruktur par excellence!


Sonstige Angaben

Denken Sie aktuell über den Verkauf Ihrer Immobilie nach? Kennen Sie denn bereits den Wert Ihrer Immobilie?


In nur wenigen Klicks erhalten Sie von uns per E-Mail eine erste Einschätzung zur aktuellen Wertermittlung Ihrer Immobilie.


Hier geht es direkt zu unserer kostenlosen Online-Wohnmarktanalyse: WWW.IMMOBILIEN-BOECKER.DE/WERTANALYSE


Wohnung finden so einfach wie möglich - das ist unsere Mission!

Kostenlose Basic Features

0 € monatlich


  • Individuelles Such-Profil anlegen
  • Suchaufträge speichern
  • One-Klick Kontaktaufnahme

alles anzeigen

Jetzt kostenlos anmelden

Premium Features

19,99 € monatlich


  • Alle kostenlosen Features
  • Smart-Alarm per Whatsapp
  • Deine Chancen checken
  • Wohngegend analysieren

alles anzeigen

Jetzt Premium freischalten

Gewerblicher Anbieter

BÖCKER-Wohnimmobilien GmbH
Klemensplatz 3
40489 Düsseldorf

Wohnglück-ID:
Objekt-Nr.:
WGL-803413
37669