Etagenwohnung in Pinneberg

Einbauküche
Garage/­Stellplatz

Attraktive Kapitalanlage in zentraler Lage

Anfragen bisher

Premium

Meine Chancen

Premium

Fairer Preis

Premium

219.000 €

Kaufpreis

60 m²

2 Zi.

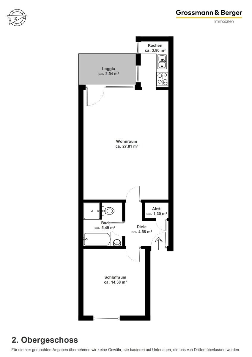
Grundriss

25421 Pinneberg

Gewerblicher Anbieter

Grossmann & Berger GmbH
Königstraße 36
25335 Elmshorn

Details

Zimmerzahl
2
Wohnungstyp
Etagenwohnung
Bezugsfrei ab
nach Vereinbarung
Anzahl Badezimmer
1
Anzahl Garage/ Stellplatz
1
Objektzustand
Gepflegt
Baujahr
1985

Kosten

Kaufpreis
219.000 €
Hausgeld
414 €
Käuferprovision
3,57 % inkl. MwSt.
Was kostet dein Umzug?

Stellplätze

Stellplatztyp
Tiefgarage
Anzahl
1

Objektbeschreibung

Diese gepflegte Zweizimmerwohnung befindet sich im zweiten Obergeschoss eines im Jahr 1985 erbauten Mehrfamilienhauses in ruhiger, zentraler Lage. Auf rund 60 m² bietet sie eine durchdachte Raumaufteilung mit einem großzügigen Wohnbereich und Zugang zur Loggia, einem Schlafzimmer, einer Küche, einem Badezimmer sowie einem praktischen Abstellraum.
Die Wohnung ist langjährig vermietet und befindet sich in einem äußerst gepflegten Zustand. Die erzielte Nettokaltmiete teilen wir Ihnen gerne in einem persönlichen Gespräch mit. Das Mietverhältnis besteht als Indexmietvertrag und bietet somit langfristige Sicherheit und Entwicklungspotenzial. Das monatliche Hausgeld beträgt derzeit 414,00 €, wovon 240,00 € auf den Mieter umlegbar sind. Der Wohnung sind ein Tiefgaragenstellplatz und ein Kellerraum zugeordnet, außerdem gibt es Gemeinschaftskellerräume, wie ein Trocken- und Fahrradkeller.


Bausubstanz & Energieausweis

A+

A

B

C

D

E

F

G

H

Baujahr
2001
Objektzustand
Gepflegt
Wesentlicher Energieträger
ERDGAS_SCHWER
Heizungsart
Fernwärme
Energieausweis
liegt vor
Energieausweistyp
Verbrauchsausweis
Gültig bis
26.02.2028
Energieverbrauchskennwert
99 kWh/(m²*a)
Energieeffizienzklasse
C

Ausstattung

Die Wohnung überzeugt durch eine klare Struktur und helle Räume. Das ca. 28 m² große Wohnzimmer bietet ausreichend Platz für Wohnen und Essen und öffnet sich zur überdachten Loggia mit schönem Ausblick. Das Schlafzimmer verfügt über eine angenehme Größe und schafft eine gemütliche Rückzugsmöglichkeit.


Die Küche ist mit einer modernen Einbauküche samt Elektrogeräten ausgestattet. Das innenliegende Duschbad ist modern gestaltet und gepflegt. Ein Abstellraum sowie ein Kellerabteil sorgen für zusätzlichen Stauraum.
Die Wohnung ist derzeit vermietet und stellt eine attraktive Gelegenheit für Kapitalanleger dar.


Lagebeschreibung

Die Stadt Pinneberg liegt im südlichen Schleswig-Holstein, nur rund 18 km von Hamburg entfernt, und bietet durch die Nähe zur A23 und zur S-Bahn eine hervorragende Anbindung an die Metropolregion. Einkaufsmöglichkeiten, Ärzte, Schulen und Freizeitangebote sind schnell erreichbar – ideal für Pendler und Familien.


Die Bahnhofstraße 12b überzeugt durch ihre zentrale und dennoch ruhige Lage. Ein Kindergarten, eine Grundschule und ein Gymnasium befinden sich in unmittelbarer Nähe. Einkaufsmöglichkeiten liegen nur 350 m entfernt, das Stadtzentrum etwa 1 km. Die S-Bahn und der Bus gewährleisten eine optimale ÖPNV-Anbindung, während der Flughafen Hamburg mit dem Auto in ca. 19 km erreichbar ist.


Das Wohnumfeld ist geprägt von gepflegten Häusern, kurzen Wegen und einer angenehmen Nachbarschaft. So verbindet die Lage urbanen Komfort mit ruhigem Wohnen – perfekt für alle, die Stadtnähe und Lebensqualität schätzen.


Wohnung finden so einfach wie möglich - das ist unsere Mission!

Kostenlose Basic Features

0 € monatlich


  • Individuelles Such-Profil anlegen
  • Suchaufträge speichern
  • One-Klick Kontaktaufnahme

alles anzeigen

Jetzt kostenlos anmelden

Premium Features

19,99 € monatlich


  • Alle kostenlosen Features
  • Smart-Alarm per Whatsapp
  • Deine Chancen checken
  • Wohngegend analysieren

alles anzeigen

Jetzt Premium freischalten

Gewerblicher Anbieter

Grossmann & Berger GmbH
Königstraße 36
25335 Elmshorn

Wohnglück-ID:
Objekt-Nr.:
WGL-803320
WB 8274