Erdgeschosswohnung in Heilbronn

Garten/­-mitbenutzung
Keller
Einbauküche
Garage/­Stellplatz

Stilvolle und neu renovierte 3-Zim.-Wohnung in HN-City mit Einzelgarage - PROVISIONSFREI

Anfragen bisher

Premium

Meine Chancen

Premium

Fairer Preis

Premium

299.000 €

Kaufpreis

52 m²

3 Zi.

Erdg.

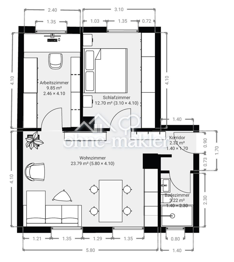
Grundriss

74076 Heilbronn

Gewerblicher Anbieter

ohne-makler.net
Humboldtstraße 25 A
21509 Glinde

Details

Zimmerzahl
3
Wohnungstyp
Erdgeschosswohnung
Etagenzahl
3
Bezugsfrei ab
sofort
Anzahl Schlafzimmer
2
Anzahl Badezimmer
1
Anzahl Garage/ Stellplatz
1
Objektzustand
Saniert
Baujahr
1953

Kosten

Kaufpreis
299.000 €
Hausgeld
166 €
Käuferprovision
keine
Was kostet dein Umzug?

Stellplätze

Stellplatztyp
Garage
Anzahl
1

Objektbeschreibung

Willkommen in Ihrem neuen Zuhause! Diese exquisite 3-Zimmer-Wohnung wurde im Frühjahr/ Sommer 2025 vollständig renoviert und befindet sich im Herzen von Heilbronn. Die stilvolle und vollständig neue Inneneinrichtung inkl. neuer Einbauküche sind im Kaufpreis enthalten und stellen einen modernen Komfort auf höchstem Niveau dar. Mit einer Wohnfläche von ca. 52 m² eignet sich diese Immobilie perfekt für Singles, Paare oder Kapitalanleger.


Im Eingangsbereich befinden sich schöne Akustikpaneele im modernen Holz-Weiß Stil, ein praktischer Schuhschrank und ein großer Spiegel, die für einen einladenden Empfang sorgen.


Der großzügige Wohn- und Essbereich mit offener Küche erstreckt sich über ca. 25 m² und bietet durch die zwei großen Fenster viel Tageslicht. Die Rollläden sind elektrisch und es gibt in der gesamten Wohnung eine elektrische Fußbodenheizung.
Die neue, in weiß gehaltene Einbauküche ist mit allen Elektrogeräten ausgestattet und fügt sich harmonisch in den Wohnraum ein. Ein neuer Bosch Waschmaschinentrockner ist ebenso vorhanden.


Im angrenzenden Schlafzimmer ist ein großer Kleiderschrank integriert.


Es gibt einen extra Arbeitsbereich, das ein komfortables Home-Office ermöglicht. Dieses Zimmer ist ebenso als Schlafzimmer oder Kinderzimmer denkbar.


Das Badezimmer beeindruckt mit einer bodenebenen begehbaren Dusche, einem weißen Waschschrank und Armaturen von Hansgrohe.


Die Wohnung wurde kürzlich umfassend renoviert und präsentiert sich in einem neuwertigen Zustand.


Zögern Sie nicht, diese attraktive Immobilie zu besichtigen und sich von ihren Vorzügen zu überzeugen.


Objektzustand: Erstbezug nach Sanierung


Bausubstanz & Energieausweis

A+

A

B

C

D

E

F

176 kWh/(m²*a)

G

H

Objektzustand
Saniert
Heizungsart
Zentralheizung
Befeuerung
Gasheizung
Energieausweis
liegt vor
Energieausweistyp
Bedarfsausweis
Energieeffizienzklasse
F
Endenergiebedarf
176 kWh/(m²*a)

Ausstattung

Garten, Keller, Vollbad, Duschbad, Einbauküche, Fliesen, Sonstiges (s. Text)


Bemerkungen:



  • Provisionsfreier Verkauf

  • Komplette Renovierung in 2025

  • 2 Schlafzimmer individuell nutzbar

  • Hochwertige, neuwertige Möblierung inklusive (eingerichtet von Interior Designern)

  • Einzelgarage im Kaufpreis enthalten

  • Elektrische Fußbodenheizung + elektr. Rollläden

  • Einbauküche vorhanden (Schüller Küche mit Bosch Einbaugeräten)

  • Badezimmer mit bodenebener Dusche

  • Designfließenboden + WC und Küche

  • glatt verspachtelte Wände, neue, weiße Türen + Zargen (Wohnungseingangstür Schallschutz S2, Zimmertüren S1)

  • geräumiger Essbereich für zusätzliches Wohnkomfort

  • abschließbarer Kellerabteil + Dachbodenabteil

  • Hausmeisterservice ist vorhanden


Lagebeschreibung

Die Umgebung der Wohnung überzeugt mit einer Vielzahl an Annehmlichkeiten: Geschäfte des täglichen Bedarfs, Supermärkte und Restaurants befinden sich in unmittelbarer Nähe. Ein Spielplatz liegt quasi direkt vor der Haustür und bietet ideale Möglichkeiten für Familien.


Für Familien besonders praktisch: Kindergärten sind nur 200 Meter entfernt, Schulen erreichen Sie nach nur 400 Metern – alles bequem zu Fuß erreichbar.


Verkehrsanbindu­ng:
Die Autobahnen A6 und A81 sind mit dem Auto in nur 10–15 Minuten erreichbar, was die Lage auch für Pendler attraktiv macht. Heilbronn selbst liegt etwa 50 Kilometer nördlich von Stuttgart, direkt am Neckar. Öffentliche Verkehrsmittel stehen ebenfalls in kurzer Entfernung bereit, sodass Sie auch ohne Auto bestens angebunden sind.


Freizeit und Umgebung:
Die nähere Umgebung bietet ein breites Angebot an Freizeitaktivitäten. Ob Restaurants, Einkaufsmöglichkeiten, Ärzte oder Apotheken – alles ist bequem erreichbar. Nach nur 10 Gehminuten gelangen Sie ins Stadtzentrum, wo die Kilianskirche und der historische Marktplatz mit regelmäßig stattfindenden Veranstaltungen und Märkten auf Sie warten.


Heilbronn bietet eine gelungene Mischung aus historischem Charme und moderner Architektur. Der Neckar und die umliegenden Weinberge laden zu zahlreichen Outdoor-Aktivitäten ein – sei es ein entspannter Spaziergang, eine Fahrradtour oder ein gemütliches Picknick.


Fazit:
Die Steinstraße vereint eine ruhige, familienfreundliche Lage mit einer ausgezeichneten Anbindung und einem vielfältigen Freizeitangebot. Hier lässt es sich hervorragend leben!
Infrastruktur (im Umkreis von 5 km):
Apotheke, Lebensmittel-Discount, Allgemeinmediziner, Kindergarten, Grundschule, Hauptschule, Realschule, Gymnasium, Gesamtschule, Öffentliche Verkehrsmittel


Sonstige Angaben

Heizungsart: Zentralheizung
Energieträger: Gas


Überzeugen Sie sich selbst von dieser gut geschnittenen 3-Zimmer-Wohnung.
Es kann ab sofort mit den ersten Besichtigungen begonnen werden.


+++ Bitte geben Sie bei Anfragen immer Ihre Adresse und Telefonnummer an! So können wir eine schnelle Kontaktaufnahme und einen reibungslosen Ablauf gewährleisten. +++


Angaben gemäß § 5 DDG


KVLB Invest GmbH
Allee 40
74072 Heilbronn
Tel.: 07131/6188375


Registereintrag:
E­­­­­­intragung im Handelsregister.
Registergeri­­­­­­cht: Amtsgericht Stuttgart
Registernummer: B 783884


Umsatzsteuer-Identif­­­­­­ikationsnummer gemäß §27a Umsatzsteuergesetz: DE352606183


Makleranfragen nicht erwünscht. Nach § 7 UWG sind unaufgeforderte Kontaktaufnahmen durch Makler ohne ausdrückliche Einwilligung des Empfängers verboten!


ohne-makler (OM) ist weder Anbieter noch Vermittler der Immobilie. OM betreibt eine Plattform für Immobilieneigentümer, die unter anderem die gleichzeitige Veröffentlichung einzelner Inserate auf mehreren Immobilienportalen ermöglicht. Die Inhalte dieser Inserate werden ausschließlich von Dritten verantwortet. Für die Richtigkeit, Vollständigkeit oder Rechtmäßigkeit der Angaben übernimmt OM keine Haftung. Hinweise auf mögliche Rechtsverstöße können jederzeit gemeldet werden und werden nach Prüfung umgehend bearbeitet.


Wohnung finden so einfach wie möglich - das ist unsere Mission!

Kostenlose Basic Features

0 € monatlich


  • Individuelles Such-Profil anlegen
  • Suchaufträge speichern
  • One-Klick Kontaktaufnahme

alles anzeigen

Jetzt kostenlos anmelden

Premium Features

19,99 € monatlich


  • Alle kostenlosen Features
  • Smart-Alarm per Whatsapp
  • Deine Chancen checken
  • Wohngegend analysieren

alles anzeigen

Jetzt Premium freischalten

Gewerblicher Anbieter

ohne-makler.net
Humboldtstraße 25 A
21509 Glinde

Wohnglück-ID:
Objekt-Nr.:
WGL-799622
400257