Etagenwohnung in Berlin (Wilmersdorf)

Keller

Ku'damm oder Grunewald? Beides! - aber mit viel Platz, bitte.

Anfragen bisher

Premium

Meine Chancen

Premium

Fairer Preis

Premium

349.500 €

Kaufpreis

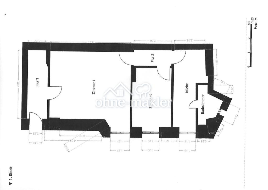
63 m²

2 Zi.

1. OG

14197 Berlin

Gewerblicher Anbieter

ohne-makler.net
Humboldtstraße 25 A
21509 Glinde

Details

Zimmerzahl
2
Wohnungstyp
Etagenwohnung
Etage, Geschoss
1
Bezugsfrei ab
sofort
Anzahl Schlafzimmer
1
Anzahl Badezimmer
1
Objektzustand
Modernisiert
Baujahr
1920

Kosten

Kaufpreis
349.500 €
Hausgeld
179 €
Käuferprovision
keine
Was kostet dein Umzug?

Objektbeschreibung


  • Sanierter Altbau von 1920

  • Sauberes Treppenhaus mit Teppich

  • Malerischer, grüner Hof

  • Insgesamt sehr gepflegte Anlage

  • Komfortable Rücklage


Bausubstanz & Energieausweis

A+

A

B

C

D

E

F

G

H

Objektzustand
Modernisiert
Heizungsart
Etagenheizung
Befeuerung
Gasheizung
Energieausweis
liegt vor
Energieausweistyp
Verbrauchsausweis
Energieverbrauchskennwert
116 kWh/(m²*a)
Energieeffizienzklasse
D

Ausstattung

Keller, Vollbad, Fliesen, Sonstiges (s. Text)


Bemerkungen:
Sie suchen eine ruhige Wohnung, die gleichzeitig perfekt angebunden ist? Sie suchen Natur und Wassernähe und möchten gleichzeitig in der City leben? Sie suchen endlich viel Platz, um Ihre Freunde zu empfangen und bequem von zuhause zu arbeiten? Ein gediegenes Wohnambiente mit Gründerzeitflair ist Ihnen wichtig? Willkommen in Ihrem Altbauschmuckstück am Heidelberger Platz!



  • Großzügige 2-Zimmer-Wohnung

  • Wohnzimmer mit 28,5 m²

  • Super hohe Decken

  • Zum ruhigen, grünen Hof gelegen

  • Französischer Balkon

  • Umfassend modernisiert

  • Modernes Tageslicht-Bad

  • Durchgehend Isolierglasfenster

  • Abgezogene Dielen

  • Begehbare Kammer und Stauraum darüber

  • Zimmerdecke mit Stuckapplikationen

  • Riesen Kellerraum


Lagebeschreibung


  • Wilmersdorf mit bester Anbindung

  • Direkt am S-/U-Heidelberger Platz (Ring, U3)

  • Fußläufig zum Fennsee, Volkspark Wilmersdorf

  • Nahe Schlachtensee, Grunewald und Havel

  • Ku'damm quasi um die Ecke
    Infrastruktur (im Umkreis von 5 km):
    Öffentliche Verkehrsmittel


Sonstige Angaben

Heizungsart: Etagenheizung
Energieträger: Gas


Die Wohnung ist per sofort bezugsfrei. Abgebildete Einrichtung gehört nicht zum Angebot.


Der Verkauf erfolgt von Privat und OHNE Maklerprovision.


Alle Angaben nach bestem Wissen. Auslassungen und Irrtum vorbehalten.


Makleranfragen nicht erwünscht. Nach § 7 UWG sind unaufgeforderte Kontaktaufnahmen durch Makler ohne ausdrückliche Einwilligung des Empfängers verboten!


ohne-makler (OM) ist weder Anbieter noch Vermittler der Immobilie. OM betreibt eine Plattform für Immobilieneigentümer, die unter anderem die gleichzeitige Veröffentlichung einzelner Inserate auf mehreren Immobilienportalen ermöglicht. Die Inhalte dieser Inserate werden ausschließlich von Dritten verantwortet. Für die Richtigkeit, Vollständigkeit oder Rechtmäßigkeit der Angaben übernimmt OM keine Haftung. Hinweise auf mögliche Rechtsverstöße können jederzeit gemeldet werden und werden nach Prüfung umgehend bearbeitet.


Wohnung finden so einfach wie möglich - das ist unsere Mission!

Kostenlose Basic Features

0 € monatlich


  • Individuelles Such-Profil anlegen
  • Suchaufträge speichern
  • One-Klick Kontaktaufnahme

alles anzeigen

Jetzt kostenlos anmelden

Premium Features

19,99 € monatlich


  • Alle kostenlosen Features
  • Smart-Alarm per Whatsapp
  • Deine Chancen checken
  • Wohngegend analysieren

alles anzeigen

Jetzt Premium freischalten

Gewerblicher Anbieter

ohne-makler.net
Humboldtstraße 25 A
21509 Glinde

Wohnglück-ID:
Objekt-Nr.:
WGL-799492
400221