Einzelhandel in Osnabrück (Innenstadt)

barrierefrei
Keller

Gewerbefläche in zentraler Lage von Osnabrück

Anfragen bisher

Premium

Meine Chancen

Premium

Fairer Preis

Premium

1.000 €

Kaltmiete

Süster Str. 14
49074 Osnabrück

Gewerblicher Anbieter

ohne-makler.net
Humboldtstraße 25 A
21509 Glinde

Details

Verkaufsfläche
127,5 m²
Typ der Gewerbeimmobilie
Einzelhandel
Bezugsfrei ab
sofort

Kosten

Kaltmiete
1.000 €
Was kostet dein Umzug?

Objektbeschreibung

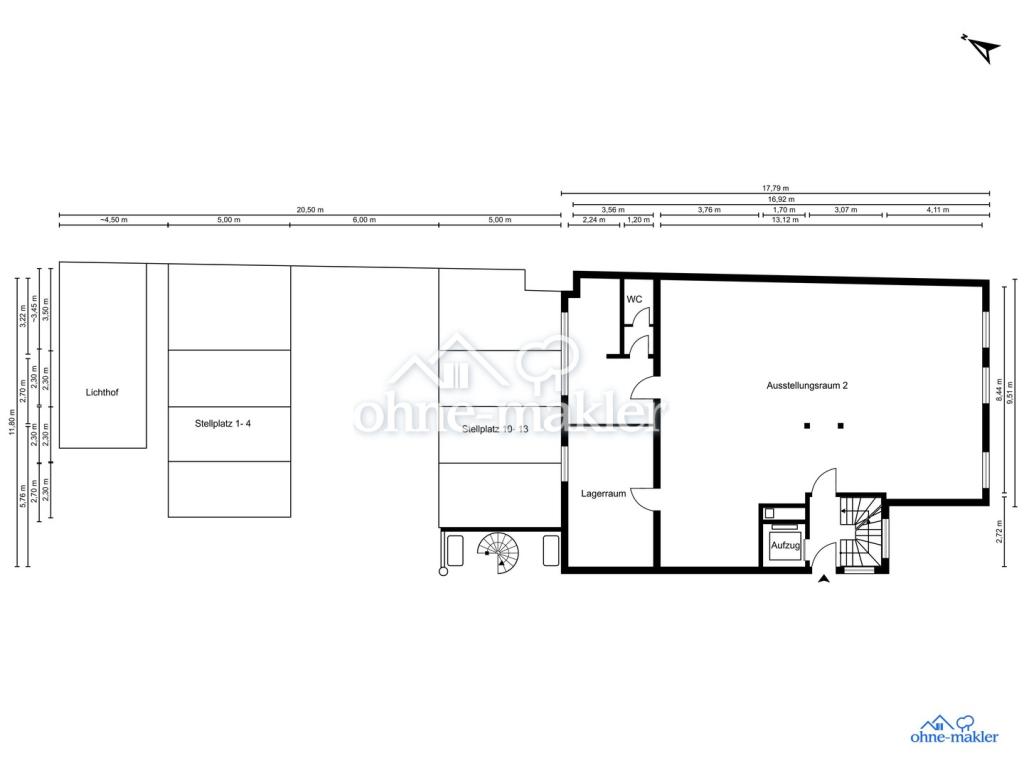
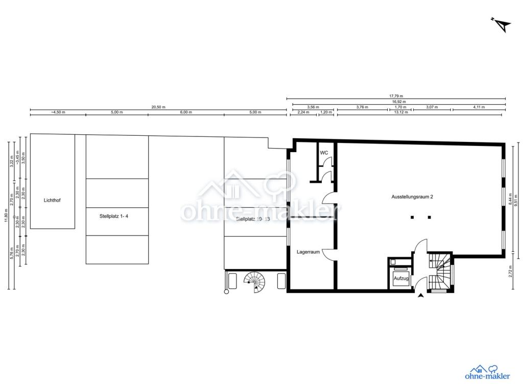
Die zur Vermietung stehende Gewerbefläche umfasst insgesamt 167,04 m² und bietet vielseitige Nutzungsmöglichkeiten für Einzelhandel oder Büro. Der Grundriss ist überwiegend offen gestaltet und erlaubt eine flexible Raumaufteilung. Ergänzt wird die Fläche durch ein separates Büro, eine Küche sowie ein WC. Ein Kellerraum steht als Lager- oder Archivfläche zur Verfügung. Optional können bis zu vier Stellplätze direkt am Objekt angemietet werden.


Bausubstanz & Energieausweis

Heizungsart
Sonstige

Ausstattung

Keller, Barrierefrei


Bemerkungen:



  • Gesamtfläche: 167,04 m²

  • Offene und helle Hauptfläche

  • Separates Büro

  • Küche und WC vorhanden

  • Kellerraum als Lager oder Archiv nutzbar

  • Bis zu 4 Stellplätze optional anmietbar

  • Flexible Nutzungsmöglichkeiten für Handel oder Büro


Lagebeschreibung

Die Immobilie befindet sich in zentraler Lage von Osnabrück. Durch die gute Anbindung an das städtische Verkehrsnetz ist der Standort sowohl für Kunden als auch für Mitarbeiter optimal erreichbar. In unmittelbarer Umgebung befinden sich zahlreiche Geschäfte, Dienstleister und Gastronomieangebote, wodurch eine hohe Frequenz und Sichtbarkeit gewährleistet ist.
Infrastruktur (im Umkreis von 5 km):
Apotheke, Lebensmittel-Discount, Allgemeinmediziner, Grundschule, Öffentliche Verkehrsmittel


Sonstige Angaben

Energieausweis nicht vorhanden


Makleranfragen nicht erwünscht. Nach § 7 UWG sind unaufgeforderte Kontaktaufnahmen durch Makler ohne ausdrückliche Einwilligung des Empfängers verboten!


ohne-makler (OM) ist weder Anbieter noch Vermittler der Immobilie. OM betreibt eine Plattform für Immobilieneigentümer, die unter anderem die gleichzeitige Veröffentlichung einzelner Inserate auf mehreren Immobilienportalen ermöglicht. Die Inhalte dieser Inserate werden ausschließlich von Dritten verantwortet. Für die Richtigkeit, Vollständigkeit oder Rechtmäßigkeit der Angaben übernimmt OM keine Haftung. Hinweise auf mögliche Rechtsverstöße können jederzeit gemeldet werden und werden nach Prüfung umgehend bearbeitet.


Wohnung finden so einfach wie möglich - das ist unsere Mission!

Kostenlose Basic Features

0 € monatlich


  • Individuelles Such-Profil anlegen
  • Suchaufträge speichern
  • One-Klick Kontaktaufnahme

alles anzeigen

Jetzt kostenlos anmelden

Premium Features

19,99 € monatlich


  • Alle kostenlosen Features
  • Smart-Alarm per Whatsapp
  • Deine Chancen checken
  • Wohngegend analysieren

alles anzeigen

Jetzt Premium freischalten

Gewerblicher Anbieter

ohne-makler.net
Humboldtstraße 25 A
21509 Glinde

Wohnglück-ID:
Objekt-Nr.:
WGL-797288
395380