Etagenwohnung in Nürnberg

Aufzug
Balkon/­Terrasse
barrierefrei
Keller
Einbauküche

Zum exklusiven wohnen oder als Kapitalanlage* Von PRIVAT * 170 qm

Anfragen bisher

Premium

Meine Chancen

Premium

Fairer Preis

Premium

770.000 €

Kaufpreis

170 m²

5 Zi.

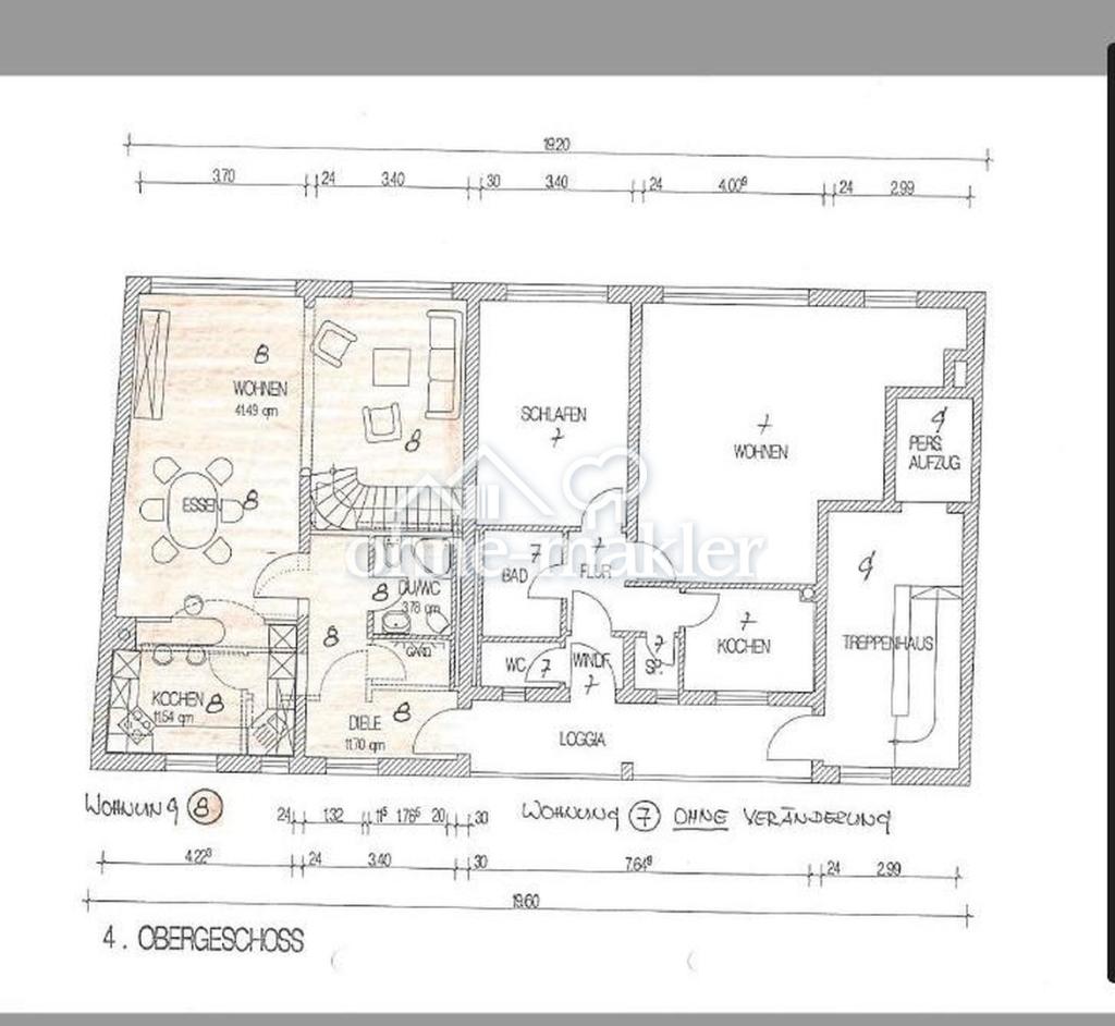
4. OG

Grundriss

90489 Nürnberg

Gewerblicher Anbieter

ohne-makler.net
Humboldtstraße 25 A
21509 Glinde

Details

Zimmerzahl
5
Wohnungstyp
Etagenwohnung
Etage, Geschoss
4
Etagenzahl
4
Bezugsfrei ab
nach Absprache
Anzahl Schlafzimmer
2
Anzahl Badezimmer
2
Objektzustand
Gepflegt
Baujahr
1979

Kosten

Kaufpreis
770.000 €
Hausgeld
590 €
Käuferprovision
keine
Was kostet dein Umzug?

Objektbeschreibung

Stilvolle exklusive Wohnung in einen gepflegten 4 Etagen Haus.
Durch die hochwertige Innenausstattung und besonderen Raumaufteilung, ist die Nutzung sehr flexibel. Sie eignet sich ideal für gehobene Ansprüche zum selbst wohnen, oder auch als gute Kapitalanlage.
Die zwei Ebenen der Wohnung, sind verbunden durch einer wunderschönen Marmor Treppe (die man auch beleuchten kann),
Durch den exklusiven Edelweiß/rosa Marmor Boden in Schmetterling Bilder ausgelegt, und den wunderschönen Stuck (Barock und Rokoko Stil) an den Wänden und Decken, fühlt man ein Hauch von Luxus.



  • alle Böden und Bäder in der Wohnung sind in diesen edlen Marmor ausgelegt,

  • Sehr großzügiges Wohnzimmer und Esszimmer,

  • Hochwertige Schreiner Küche aus Kirschholz mit Markengeräten(Siemens) und Markenarmaturen,

  • Marmor Kamin mit Beleuchtung,

  • Separates Ankleidezimmer und Schuhzimmer, mit Schreiner Einbauschränke aus Edelholz,

  • Großzügiger Wintergarten zum Relaxen mit elektrische Velux Fenster,

  • Großes Schlafzimmer mit offenen Bad, (Doppelwaschbecken, Bidet, Badewanne, Whirlpool und Dusche mit Dampf Sauna),

  • ein zweites Bad mit Dusche und Pissoir, in der ersten Ebene,

  • elektrische Rollläden in der gesamten Wohnung, sehr gute isolierte Fenster, und vieles mehr...

  • aus den Gästezimmer kann man über einer Treppe in den spitz Dachboden,

  • die gesamte Wohnung ist in einen super Zustand, wie neu,
    Die Eingebauten Möbel sind in Preis enthalten, auf Wunsch, kann man auch ein Teil der nicht eingebauten Möbel erwerben.





  • Fassade vorne und hinten neu in September 2020,

  • Dach renoviert 2020


dank der guten Isolation bei den Ausbau, ist die Wohnung sehr Schalldicht und kühl in Sommer, und sehr angenehm in Winter.




Ansprechpartner Frau Hedwig
Tel.: 0157 39350272


Bausubstanz & Energieausweis

A+

A

B

C

D

E

F

G

H

Objektzustand
Gepflegt
Heizungsart
Zentralheizung
Befeuerung
Gasheizung
Energieausweis
liegt vor
Energieausweistyp
Verbrauchsausweis
Energieverbrauchskennwert
122 kWh/(m²*a)
Energieeffizienzklasse
D

Ausstattung

Balkon, Wintergarten, Keller, Fahrstuhl, Vollbad, Duschbad, Sauna, Pool · Schwimmbad, Einbauküche, Gäste-WC, Kamin, Barrierefrei, Sonstiges (s. Text)


Lagebeschreibung

Eine Optimale Verkehrs Anbindung:
Mit der Straßenbahn ist man in nur 5 Minuten am Bahnhof und in 7 Minuten mit der U-Bahn am Flughafen.
Mit dem Auto in 7 Minuten ist man auf der Autobahn A3.
Das Haus ist Sehr zentral, man ist in nur 5 Minuten in Grünen zum Entspannen oder zum Sport in Stadtpark und am Wörter See.
Infrastruktur (im Umkreis von 5 km):
Apotheke, Lebensmittel-Discount, Allgemeinmediziner, Kindergarten, Grundschule, Hauptschule, Realschule, Gymnasium, Gesamtschule, Öffentliche Verkehrsmittel


Sonstige Angaben

Heizungsart: Zentralheizung
Energieträger: Gas


Besichtigung nur bei seriösen Kaufinteresse,
Ansprechpartner Frau Hedwig


Tel.: 0157 39350272


ohne-makler (OM) ist weder Anbieter noch Vermittler der Immobilie. OM betreibt eine Plattform für Immobilieneigentümer, die unter anderem die gleichzeitige Veröffentlichung einzelner Inserate auf mehreren Immobilienportalen ermöglicht. Die Inhalte dieser Inserate werden ausschließlich von Dritten verantwortet. Für die Richtigkeit, Vollständigkeit oder Rechtmäßigkeit der Angaben übernimmt OM keine Haftung. Hinweise auf mögliche Rechtsverstöße können jederzeit gemeldet werden und werden nach Prüfung umgehend bearbeitet.


Wohnung finden so einfach wie möglich - das ist unsere Mission!

Kostenlose Basic Features

0 € monatlich


  • Individuelles Such-Profil anlegen
  • Suchaufträge speichern
  • One-Klick Kontaktaufnahme

alles anzeigen

Jetzt kostenlos anmelden

Premium Features

19,99 € monatlich


  • Alle kostenlosen Features
  • Smart-Alarm per Whatsapp
  • Deine Chancen checken
  • Wohngegend analysieren

alles anzeigen

Jetzt Premium freischalten

Gewerblicher Anbieter

ohne-makler.net
Humboldtstraße 25 A
21509 Glinde

Wohnglück-ID:
Objekt-Nr.:
WGL-790076
398530