Mehrfamilienhaus in Ebern

Balkon/­Terrasse
Garten/­-mitbenutzung
Gäste WC
Keller
Einbauküche
Garage/­Stellplatz

Viel Platz für Familien & Investoren – MFH mit großem Garten in Ebern

Anfragen bisher

Premium

Meine Chancen

Premium

Fairer Preis

Premium

770.000 €

Kaufpreis

274 m²

11 Zi.

Grundriss

96106 Ebern

Gewerblicher Anbieter

VON POLL IMMOBILIEN Bamberg - Grohganz & Schauer Immobilien GmbH
Untere Königstraße 10
96052 Bamberg

Details

Grundstücksfläche
912 m²
Zimmerzahl
11
Haustyp
Mehrfamilienhaus
Etagenzahl
4
Nutzfläche
78 m²
Anzahl Schlafzimmer
7
Anzahl Badezimmer
4
Anzahl Garage/ Stellplatz
1
Objektzustand
Gepflegt
Baujahr
1964

Kosten

Kaufpreis
770.000 €
Käuferprovision
Käuferprovision beträgt 3,57 % (inkl. MwSt.) des beurkundeten Kaufpreises
Was kostet dein Umzug?

Stellplätze

Stellplatztyp
Garage
Anzahl
2

Objektbeschreibung

Auf einem wunderschönen Areal gelegen, überzeugt dieses gepflegte Mehrfamilienhaus aus dem Jahr 1964 mit rund 274 m², einer soliden Bauweise und einer angenehmen Wohnatmosphäre. Ruhig und dennoch verkehrsgünstig gelegen, spricht es sowohl Familien und Paare als auch Investoren an.


Das Gebäude umfasst vier Wohneinheiten, die sich auf drei Etagen verteilen. Alle Wohnungen zeichnen sich durch helle, gut geschnittene Räume aus. Die wohlüberlegte Aufteilung eröffnet vielseitige Nutzungsmöglichkeiten – sowohl für den Eigenbedarf als auch zur Vermietung.


Im Erdgeschoss befindet sich eine geräumige Wohnung mit ca. 98 m² Wohnfläche. Sie besticht durch einen einladenden Eingangsbereich, eine durchdachte Raumaufteilung und lichtdurchflutete Zimmer. Neben einem großen Wohnzimmer mit Zugang zur sonnigen Terrasse und zum Garten gibt es einen separaten Essbereich, ein Schlafzimmer, ein Arbeitszimmer sowie ein Tageslichtbad und ein Gäste-WC. Die Küche verfügt über eine eigene Terrasse mit Zugang zum Kräutergarten. Große Fenster schaffen ein freundliches Ambiente und eröffnen einen traumhaften Blick ins Grüne.


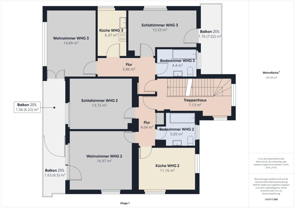
Im Obergeschoss befinden sich zwei separate Wohnungen mit ca. 51 m² und ca. 44 m² Wohnfläche. Beide Wohneinheiten zeichnen sich durch helle, großzügig geschnittene Räume aus, die eine hohe Wohnqualität für Paare, Familien oder Wohngemeinschaften versprechen. Vom Südbalkon der beiden Wohnungen bietet sich ein atemberaubender Fernblick.


Die Dachgeschosswohnung umfasst ca. 81 m². Sie weist ein Schlafzimmer, zwei helle Kinderzimmer, ein gemütliches Wohnzimmer, eine großzügige Küche mit integriertem Essbereich, ein Badezimmer mit Wanne sowie ein separates Gäste-WC auf.


Ein besonderes Highlight ist der große Garten, der vielfältige Nutzungsmöglichkeiten eröffnet. Für Familien mit Kindern, auch mit Haustieren, bietet die gepflegte Grünfläche mit altem Baumbestand optimale Bedingungen zum Verweilen, zum Spielen oder für gesellige Abende im Freien. Zudem gibt der Garten reichlich Raum für individuelle Gestaltungsideen. Angrenzend zum Garten befinden sich zwei Garagen.


Eine zentrale Heizungsanlage gewährleistet eine zuverlässige Wärmeversorgung. Die Ausstattung befindet sich in einem gepflegten Zustand und lässt künftigen Eigentümern viel Spielraum für eigene Gestaltungsideen. Zusätzliche Keller- und Abstellräume mit reichlich Stauraum runden das Angebot ab.


Die Lage des Anwesens bietet eine ausgewogene Kombination aus Ruhe, Infrastruktur und guter Anbindung. Einkaufsmöglichkeiten, Schulen, Ärzte und öffentliche Verkehrsmittel sind in unmittelbarer Nähe bequem erreichbar. Gleichzeitig lädt die naturnahe Umgebung mit zahlreichen Freizeit- und Erholungsmöglichkeiten zu Aktivitäten im Grünen ein.


Dieses Mehrfamilienhaus stellt eine attraktive Gelegenheit für Eigennutzer und Anleger dar, die Wert auf eine solide Immobilie mit flexiblen Nutzungsmöglichkeiten legen. Gerne präsentieren wir Ihnen dieses Objekt im Rahmen einer Besichtigung und stehen für Ihre Fragen zur Verfügung.


Bausubstanz & Energieausweis

A+

A

B

C

D

E

F

G

210,2 kWh/(m²*a)

H

Baujahr
1964
Objektzustand
Gepflegt
Wesentlicher Energieträger
OEL
Heizungsart
Zentralheizung
Befeuerung
Ölheizung
Energieausweis
liegt vor
Energieausweistyp
Bedarfsausweis
Gültig bis
18.09.2027
Energieeffizienzklasse
G
Endenergiebedarf
210,2 kWh/(m²*a)

Ausstattung


  • 4 Wohneinheiten

  • großzügiger Garten mit Obstbäumen und Gemüsegarten

  • 2 Balkone (Nordseite und Südseite)

  • 2 Terrassen (Nordseite und Südseite)


Lagebeschreibung

Das angebotene Mehrfamilienhaus befindet sich in ruhiger und zugleich gut angebundener Südwohnlage im zentralen Stadtgebiet von Ebern. Die Umgebung ist geprägt von einer gepflegten Wohnbebauung und bietet ein angenehmes, familienfreundliches Umfeld.


Dank der Nähe zur B279 ist eine schnelle Verbindung in Richtung Bamberg, Haßfurt, Schweinfurt, Coburg und Bad Königshofen gewährleistet. Der Bahnhof Ebern ist ebenfalls zügig erreichbar und ermöglicht eine bequeme Anbindung nach Bamberg.


Einkaufsmöglichkeiten, Schulen, Kindergärten sowie medizinische Einrichtungen befinden sich in unmittelbarer Nähe und unterstreichen die hohe Lebensqualität des Standorts. Die naturnahe Umgebung mit zahlreichen Freizeit- und Erholungsmöglichkeiten rundet das attraktive Gesamtbild ab.


Die Kombination aus ruhigem Wohnumfeld, guter Infrastruktur und verkehrsgünstiger Lage macht das Objekt sowohl für Eigennutzer als auch für Kapitalanleger besonders interessant.


Sonstige Angaben

Es liegt ein Energiebedarfsausweis vor.
Dieser ist gültig bis 18.9.2027.
Endenergiebedarf beträgt 210.20 kwh/(m²*a).
Wesentlicher Energieträger der Heizung ist Öl.
Das Baujahr des Objekts lt. Energieausweis ist 1964.
Die Energieeffizienzklasse ist G.


GELDWÄSCHE: Als Immobilienmaklerunternehmen ist die von Poll Immobilien GmbH nach § 2 Abs. 1 Nr. 14 und § 11 Abs. 1, 2 Geldwäschegesetz (GwG) dazu verpflichtet, bei der Begründung einer Geschäftsbeziehung die Identität des Vertragspartners festzustellen und zu überprüfen, bzw. sobald ein ernsthaftes Interesse an der Durchführung des Immobilienkaufvertrages besteht. Hierzu ist es erforderlich, dass wir nach § 11 Abs. 4 GwG die relevanten Daten Ihres Personalausweises festhalten (wenn Sie als natürliche Person handeln) – beispielsweise mittels einer Kopie. Bei einer juristischen Person benötigen wir eine Kopie des Handelsregisterauszugs, aus welchem der wirtschaftlich Berechtigte hervorgeht. Das Geldwäschegesetz sieht vor, dass der Makler die Kopien bzw. Unterlagen fünf Jahre aufbewahren muss. Als unser Vertragspartner haben Sie auch eine Mitwirkungspflicht nach § 11 Abs. 6 GwG.


HAFTUNG: Wir weisen darauf hin, dass die von uns weitergegebenen Objektinformationen, Unterlagen, Pläne etc. vom Verkäufer bzw. Vermieter stammen. Eine Haftung für die Richtigkeit oder Vollständigkeit der Angaben übernehmen wir daher nicht. Es obliegt daher unseren Kunden, die darin enthaltenen Objektinformationen und Angaben auf ihre Richtigkeit hin zu überprüfen. Alle Immobilienangebote sind freibleibend und vorbehaltlich Irrtümer, Zwischenverkauf- und Vermietung oder sonstiger Zwischenverwertung.


UNSER SERVICE FÜR SIE ALS EIGENTÜMER:
Planen Sie den Verkauf oder die Vermietung Ihrer Immobilie, so ist es für Sie wichtig, deren Marktwert zu kennen. Lassen Sie kostenfrei und unverbindlich den aktuellen Wert Ihrer Immobilie professionell durch einen unserer Immobilienspezialisten einschätzen. Unser bundesweites und internationales Netzwerk ermöglicht es uns, Verkäufer bzw. Vermieter und Interessenten bestmöglich zusammenzuführen.


Wohnung finden so einfach wie möglich - das ist unsere Mission!

Kostenlose Basic Features

0 € monatlich


  • Individuelles Such-Profil anlegen
  • Suchaufträge speichern
  • One-Klick Kontaktaufnahme

alles anzeigen

Jetzt kostenlos anmelden

Premium Features

19,99 € monatlich


  • Alle kostenlosen Features
  • Smart-Alarm per Whatsapp
  • Deine Chancen checken
  • Wohngegend analysieren

alles anzeigen

Jetzt Premium freischalten

Gewerblicher Anbieter

VON POLL IMMOBILIEN Bamberg - Grohganz & Schauer Immobilien GmbH
Untere Königstraße 10
96052 Bamberg

Wohnglück-ID:
Objekt-Nr.:
WGL-789480
25 161 035