Einzelhandel in MĂĽnchen (Obergiesing)

Aufzug
Keller
Garage/­Stellplatz

Laden - Lagerraum - 2 TG zu verkaufen - flexibel nutzbar - Top-Lage Obergiesing am Tegernseer Platz

Anfragen bisher

Premium

Meine Chancen

Premium

Fairer Preis

Premium

Auf Anfrage

Kaufpreis

81541 MĂĽnchen Obergiesing

Gewerblicher Anbieter

Brau & Friedrich Immobilienmarketing
Jakob Klar Str. 4
80796 MĂĽnchen Schwabing

Details

Ladenfläche
85,8 m²
Verkaufsfläche
85,8 m²
Typ der Gewerbeimmobilie
Einzelhandel
Bezugsfrei ab
frei werdend
Anzahl Garage/ Stellplatz
1
Objektzustand
Gepflegt
Baujahr
2007

Kosten

Kaufpreis
Auf Anfrage
Käuferprovision
3,57 % inkl. Mwst. auf den Kaufpreis
Was kostet dein Umzug?

Stellplätze

Stellplatztyp
Duplex
Anzahl
2
Kaufpreis
25.000 €

Objektbeschreibung

Zum Verkauf steht ein vielseitig nutzbares Ladenlokal in sehr gut frequentierter Lage von München-Obergiesing. Die Einheit befindet sich direkt am Tegernseer Platz und bietet eine Kombination aus großzügiger Fläche, praktischer Aufteilung und guten Nutzungsmöglichkeiten.


Angebotsumfang:
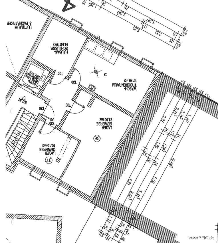
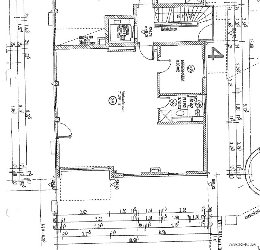
• Ladenfläche: ca. 85,8 m² mit flexibler Grundrissgestaltung
• Lagerraum: ca. 22 m² im 1. Untergeschoss, erreichbar über Aufzug
• Tiefgaragenstellplätze: Zwei Duplex-Stellplätze im 2. Untergeschoss
• Ausstattung: Im hinteren Bereich befinden sich eine kleine Teeküche, ein WC und ein separates Büro


Der Lagerraum kann bei Nichtbedarf auch unabhängig vom Laden genutzt oder vermietet werden.


Nutzungsmöglichkeiten


Die Teilungserklärung sieht keine Einschränkungen hinsichtlich der gewerblichen Nutzung vor. Daher kommen verschiedene Nutzungen wie Büro, Praxis, Einzelhandel oder gastronomische Konzepte grundsätzlich in Betracht – vorbehaltlich der jeweils erforderlichen Genehmigungen.


Lagevorteile
• Öffentliche Parkmöglichkeiten direkt vor dem Objekt
• Taxistand und Postfiliale in unmittelbarer Nähe
• Nachbarschaft zur Stadtsparkasse
• Sehr gute ÖPNV-Anbindung (U-Bahn, Tram, Bus)
• Ärztehaus, Geschäfte und Gastronomie im direkten Umfeld


Die beiden Stellplätze in der Tiefgarage bieten in dieser zentralen Stadtlage einen spürbaren Zusatznutzen.


Hinweis zur derzeitigen Nutzung / Geschäftsübernahme


Die Räume werden aktuell gewerblich genutzt. Eine Übernahme des laufenden Geschäftsbetriebs ist nach Absprache möglich. Weitere Informationen hierzu erhalten Sie auf Anfrage.


Wirtschaftliche Perspektive


FĂĽr Kapitalanleger bietet das Objekt eine solide und gut kalkulierbare Ertragsbasis.
Je nach Nutzung und Ausstattung lassen sich marktübliche Mieten zwischen 28 und 34 Euro pro Quadratmeter erzielen, was monatlichen Mieteinnahmen von rund 3.500 Euro entspricht – zuzüglich der Vermietung von Lager-/Hobbyraum und Kfz-Stellplätzen.


Damit eignet sich die Fläche hervorragend für Investoren, die das Objekt als Kapitalanlage mit Verpachtung nutzen möchten.
Wer das bestehende Geschäftskonzept nicht selbst weiterführen möchte, kann es mit geringem Aufwand verpachten und so stabile Einnahmen generieren.


Ob durch eine Fortführung des aktuellen Geschäfts oder mit einem alternativen Nutzungskonzept:
Diese gepflegte und vielseitig nutzbare Gewerbeeinheit bietet eine stabile Ertragsperspektive und beste Zukunftsaussichten in München-Obergiesing – ideal für Investoren, die eine langfristig werthaltige Kapitalanlage mit sicherem Vermietungspotenzial suchen.


Bausubstanz & Energieausweis

A+

A

B

C

D

E

F

G

H

Baujahr
2007
Objektzustand
Gepflegt
Wesentlicher Energieträger
GAS
Heizungsart
Sonstige
Energieausweis
liegt vor
Energieausweistyp
Verbrauchsausweis
GĂĽltig bis
23.02.2033
Energieverbrauchskennwert
97 kWh/(m²*a)
Energieeffizienzklasse
C

Lagebeschreibung

Der Tegernseer Platz in München Obergiesing ist eine erstklassige Geschäftslage, die durch ihre hervorragende Infrastruktur und die ausgezeichnete Anbindung an den öffentlichen Nahverkehr besticht. Mit U-Bahn-Stationen, Bus- und Tramhaltestellen in unmittelbarer Nähe ist Ihr Ladengeschäft bequem für Kunden und Mitarbeiter erreichbar. Zudem sorgen zahlreiche umliegende Geschäfte, Banken, Apotheken, Ärzte sowie Restaurants und Cafés für eine starke Kundenfrequenz und attraktive Synergien.


Die Lage des Tegernseer Platzes in München Obergiesing bietet eine gute Anbindung an den öffentlichen Nahverkehr. Folgende Verbindungen bringen Ihre Kunden und Mitarbeiter zu Ihrem Ladengeschäft.


Die nächstgelegene U-Bahn-Station ist die Silberhornstraße, die von den Linien U2, U7 und U8 bedient wird. Die U2-Linie verläuft zwischen den Stationen Feldmoching und Messestadt Ost, während die U7-Linie zwischen Neuperlach Süd und Olympia-Einkaufszentrum verkehrt. Die U8-Linie bietet eine Verbindung zwischen der Station Fürstenried West und der Haltestelle Sendlinger Tor.


Tramhaltestelle Silberhornstraße (Linien 15 und 25): Die Linie 15 verbindet den Romanplatz mit der Großhesseloher Brücke, während die Linie 25 zwischen der Grünwaldstraße und der Effnerstraße verkehrt.
Tramhaltestelle Wettersteinplatz (Linie 17): Die Linie 17 bietet eine Verbindung zwischen AmalienburgstraĂźe und Effnerplatz.


Buslinie 54: Diese Linie verkehrt zwischen den Stationen Candidplatz und Haidenauplatz.
Buslinie 62: Die Linie 62 bietet eine Verbindung zwischen dem Fasanengarten und dem Pasinger Marienplatz.
Buslinie 146: Diese Linie verbindet den Harras mit dem Michaelibad.
Buslinie 58: Die Linie 58 verkehrt zwischen dem Ostbahnhof und der WaldfriedhofstraĂźe.


Parkplätze und ein Taxistand vor dem Haus erhöhen die Sichtbarkeit und die Erreichbarkeit Ihres Ladengeschäfts.


Im 200-Meter-Umkreis des Tegernseer Platzes in München Obergiesing finden Sie eine gute Auswahl an Geschäften, Banken, Apotheken, Ärzten, Restaurants und Cafés.
Profitieren Sie als Ladeninhaber von der starken Kundenfrequenz der umliegenden Geschäfte.
Hier sind einige Beispiele:


Supermärkte:
• EDEKA


Drogerien:
• dm-drogerie markt


Bäckereien und Metzgereien:
• Bäckerei Wimmer: Traditioneller Backwaren und Imbiss.
• Metzgerei Boneberger: Hochwertige Fleischprodukte und ein beliebter Imbiss.
• Hofpfisterei: biologische und traditionelle Backwaren.


Banken:
• Postbank, Post DHL: Tegernseer Platz 7, kombiniert mit Restaurant
• Stadtsparkasse München: gleich nebenan
• Münchner Bank eG: Genossenschaftsbank.


Apotheken:
• Silberhorn-Apotheke
• Heilig-Kreuz-Apotheke


Ärzte:
• Ärztezentrum am Tegernseer Platz: Breites Spektrum an Fachärzten und Allgemeinmedizin.
• Allgemeinmediziner
• Zahnarzt:
• Augenarzt
• Physiotherapie


Gastronomie:
• Subway: Perfekt für einen schnellen Snack.
• Café Drilling: Lokales Highlight mit gemütlicher Atmosphäre.
• Café Piccolo: Treffpunkt für einen entspannten Kaffee.
• Imbiss Boneberger: Qualitätssnacks aus der Metzgerei.
• Verschiedene Restaurants in den Seitenstrassen: Große Vielfalt von traditionell bis international.
• in der Post Tegernseer Platz befindet sich ein Restaurant


Weitere Geschäfte und Einrichtungen:
• Optiker: Alteingesessenes Fachgeschäft.
• Friseure: Zahlreiche Salons für unterschiedliche Bedürfnisse.
• Kioske: Praktische Läden für Snacks und Kleinigkeiten.
• Woolworth: Günstiges Warenhaus mit breitem Sortiment.


Die Umgebung zeichnet sich durch ihre Vielfalt, die fußläufige Erreichbarkeit und die Mischung aus Tradition und Moderne aus, was sie zu einem optimalen Standort für Geschäftstreibende und Anwohner macht.


Sonstige Angaben

Da die Teilungserklärung keinerlei Einschränkungen bezüglich der gewerblichen Nutzung vorsieht, sind auch Nutzungen als Gastronomie, Büro, Praxis oder Einzelhandel möglich. Beachten Sie bitte, dass für die verschiedenen Nutzungsmöglichkeiten spezifische behördliche Auflagen gelten, die erfüllt werden müssen. Diese wurden vom Verkäufer nicht überprüft oder angefragt.


Wohnung finden so einfach wie möglich - das ist unsere Mission!

Kostenlose Basic Features

0 € monatlich


  • Individuelles Such-Profil anlegen
  • Suchaufträge speichern
  • One-Klick Kontaktaufnahme

alles anzeigen

Jetzt kostenlos anmelden

Premium Features

19,99 € monatlich


  • Alle kostenlosen Features
  • Smart-Alarm per Whatsapp
  • Deine Chancen checken
  • Wohngegend analysieren

alles anzeigen

Jetzt Premium freischalten

Gewerblicher Anbieter

Brau & Friedrich Immobilienmarketing
Jakob Klar Str. 4
80796 MĂĽnchen Schwabing

WohnglĂĽck-ID:
Objekt-Nr.:
WGL-788980
XD244_Laden