Mehrfamilienhaus in Kappeln

Dachboden
Gäste WC
Keller
Garage/­Stellplatz

Sanierungsobjekt mit Charm und viel Potenzial

Anfragen bisher

Premium

Meine Chancen

Premium

Fairer Preis

Premium

295.000 €

Kaufpreis

237 m²

10 Zi.

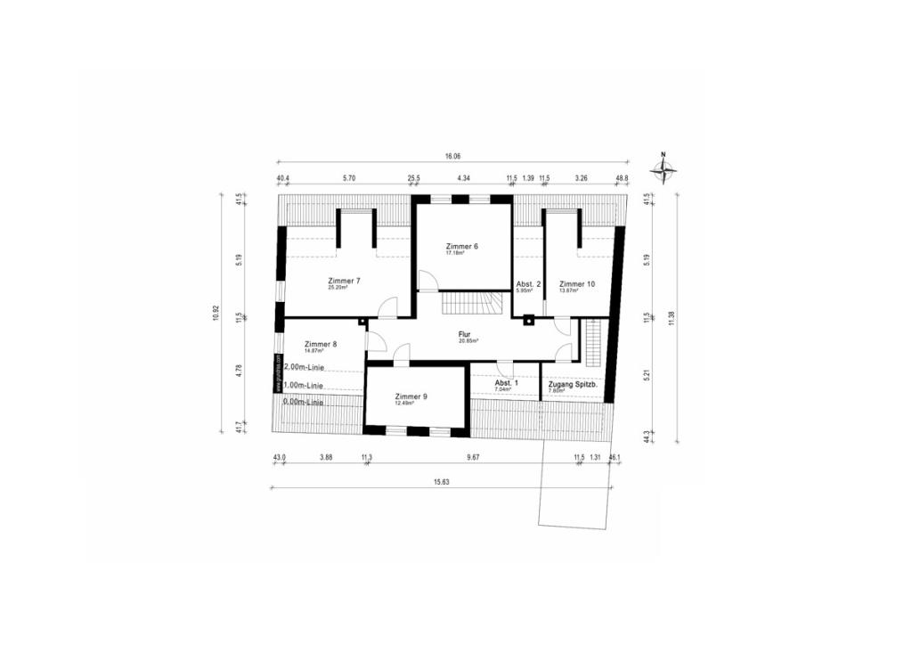
Grundriss

24376 Kappeln

Gewerblicher Anbieter

Sparda Immobilien GmbH
Rathausstraße 2
24937 Flensburg

Details

Grundstücksfläche
1.962 m²
Zimmerzahl
10
Haustyp
Mehrfamilienhaus
Etagenzahl
2
Nutzfläche
21 m²
Anzahl Schlafzimmer
10
Anzahl Garage/ Stellplatz
1
Objektzustand
Baufällig
Baujahr
1900

Kosten

Kaufpreis
295.000 €
Käuferprovision
3,57 % inkl. MwSt.
Was kostet dein Umzug?

Stellplätze

Stellplatztyp
Freiplatz
Anzahl
2

Objektbeschreibung

Zum Verkauf steht ein sanierungsbedürftiges Wohn- und Geschäftshaus im Zentrum von Kappeln. Das ca. 1900 errichtete Gebäude bietet rund 258 m² Wohn-/Nutzfläche auf Erd- und Obergeschoss. Großzügige Räume mit hohen Decken und ein einladender Eingangsbereich unterstreichen das Potenzial dieser Immobilie.


Die zentrale Lage, klare Raumstruktur und vielseitige Nutzungsmöglichkeiten machen das Objekt besonders attraktiv – ob für Wohnen, Arbeiten oder eine Kombination aus beidem.


Der bauliche Zustand entspricht dem eines Altbestands: Elektrik, Dach und Fenster sind nicht auf aktuellem Stand. Feuchtigkeit im Teilkeller und an einigen Außenwänden erfordert eine fachgerechte Sanierung. Die vorhandene Ölheizung stammt aus 2004 und bietet Ansatzpunkte für energetische Modernisierung.


Highlights:



  • zentrale Lage in Kappeln,

  • ca. 258 m² Wohn-/Nutzfläche,

  • große Räume mit Potenzial zur individuellen Gestaltung,

  • Parkplatzmöglichkeiten direkt am Objekt und ein

  • repräsentativer Eingangsbereich


Ein interessantes Projekt für Kapitalanleger, Entwickler oder Eigennutzer, die in begehrter Innenstadtlage investieren möchten. Mit einer sorgfältigen Sanierung entsteht hier ein attraktives Wohn- und Arbeitsumfeld mit Wertsteigerungspotenzial. Eine Besichtigung lohnt sich!


Bausubstanz & Energieausweis

A+

A

B

C

D

E

F

G

H

307,8 kWh/(m²*a)

Baujahr
2004
Objektzustand
Baufällig
Wesentlicher Energieträger
OEL
Heizungsart
Ölheizung
Befeuerung
Ölheizung
Energieausweis
liegt vor
Energieausweistyp
Bedarfsausweis
Gültig bis
30.09.2035
Energieeffizienzklasse
H
Endenergiebedarf
307,8 kWh/(m²*a)

Ausstattung

Fenster:
Holzfenster mit 2-fach Verglasung aus den 1980ern


Heizung und Warmwasser:
Ölzentralheizung aus 2004


Bodenbeläge:
Terrazzo, Teppichböden, Fliesen, PVC


Küche:
keine Einbauküche vorhanden


Bäder:
WC


Modernisierungen:
Renovierungs-/ und Sanierungsstau im gesamten Gebäude


Besonderheiten:
viel Potenzial, große Räume mit hohen Decken, direkt im Zentrum, Altbaucharme der auf "neuen" Glanz wartet, Parkplatz am Gebäude


Lagebeschreibung

Die Immobilie befindet sich in zentraler Lage von Kappeln an der Schlei, einer beliebten Hafenstadt an der Ostsee. Nur wenige Gehminuten von der Altstadt und dem Hafen entfernt – ruhig, aber sehr gut angebunden. Die Lage überzeugt durch eine gute Infrastruktur, eine hohe Lebensqualität und ein attraktives Umfeld für Mieter und Feriengäste.


Alle Einrichtungen des täglichen Bedarfs wie Supermärkte, Apotheken, Ärzte, Schulen und gastronomische Angebote sind fußläufig erreichbar. Die Verkehrsanbindung erfolgt über die B201 und die nahegelegene A7, die nächste Bahnstation ist Süderbrarup (ca. 15 Minuten).


Kappeln ist ganzjährig ein gefragter Wohn- und Ferienort mit hohem Freizeitwert. Die Nähe zur Ostsee (Weidefelder Strand) sowie zur Schlei bietet ideale Bedingungen für Wassersport, Radfahren und Erholung.


Für Kapitalanleger bietet die Lage ein stabiles Vermietungspotenzial – sowohl im Bereich der Dauervermietung als auch im Ferienwohnungssegment (je nach Genehmigung). Die konstant hohe Nachfrage in der Region und die gute Vermietbarkeit sichern langfristige Ertragschancen und eine solide Wertentwicklung.


Sonstige Angaben

Die Courtage in Höhe von 3,57 % inkl. der gesetzl. gültigen MwSt. ist vom Käufer an die Sparda Immobilien GmbH zu zahlen.


Weitere attraktive Angebote finden Sie auch auf www.spardaimmobilien.de


Wohnung finden so einfach wie möglich - das ist unsere Mission!

Kostenlose Basic Features

0 € monatlich


  • Individuelles Such-Profil anlegen
  • Suchaufträge speichern
  • One-Klick Kontaktaufnahme

alles anzeigen

Jetzt kostenlos anmelden

Premium Features

19,99 € monatlich


  • Alle kostenlosen Features
  • Smart-Alarm per Whatsapp
  • Deine Chancen checken
  • Wohngegend analysieren

alles anzeigen

Jetzt Premium freischalten

Gewerblicher Anbieter

Sparda Immobilien GmbH
Rathausstraße 2
24937 Flensburg

Wohnglück-ID:
Objekt-Nr.:
WGL-788957
COS_7549