Mehrfamilienhaus in Kappeln

Balkon/­Terrasse
derzeit vermietet
Einliegerwohnung
Garten/­-mitbenutzung
Gäste WC
Garage/­Stellplatz

Drei in Einem - Zwei schöne Einfamilienhäuser nebst Einliegerwohnung in Kappeln/Kopperby

Anfragen bisher

Premium

Meine Chancen

Premium

Fairer Preis

Premium

739.000 €

Kaufpreis

310 m²

12 Zi.

24376 Kappeln

Gewerblicher Anbieter

VR Immobilien eG
Große Straße 18
24392 Süderbrarup

Details

Grundstücksfläche
971 m²
Zimmerzahl
12
Haustyp
Mehrfamilienhaus
Etagenzahl
2
Bezugsfrei ab
nach Absprache
Anzahl Schlafzimmer
8
Anzahl Badezimmer
4
Anzahl Garage/ Stellplatz
1
Objektzustand
Gepflegt
Letzte Modernisierung/ Sanierung
2022
Baujahr
1993

Kosten

Kaufpreis
739.000 €
Käuferprovision
3,57 %
Die Käufer-Provision ist verdient und fällig mit notarieller Beurkundung. Der Immobilienmakler hat einen provisionspflichtigen Maklervertrag in gleicher Höhe mit dem Verkäufer abgeschlossen.
Was kostet dein Umzug?

Stellplätze

Stellplatztyp
Freiplatz
Anzahl
4

Objektbeschreibung

Diese tolle Immobilie bietet sowohl für Kapitalanleger als auch für Interessenten mit dem Wunsch nach einem Mehrgenerationenleben den idealen Rahmen.
Auf ca. 970 qm Grundstück stehen am Feldrand zwei Einfamilienhäuser und eine angrenzende weitere Wohnung auf gesamt ca. 310 qm Wohnfläche zur Verfügung.
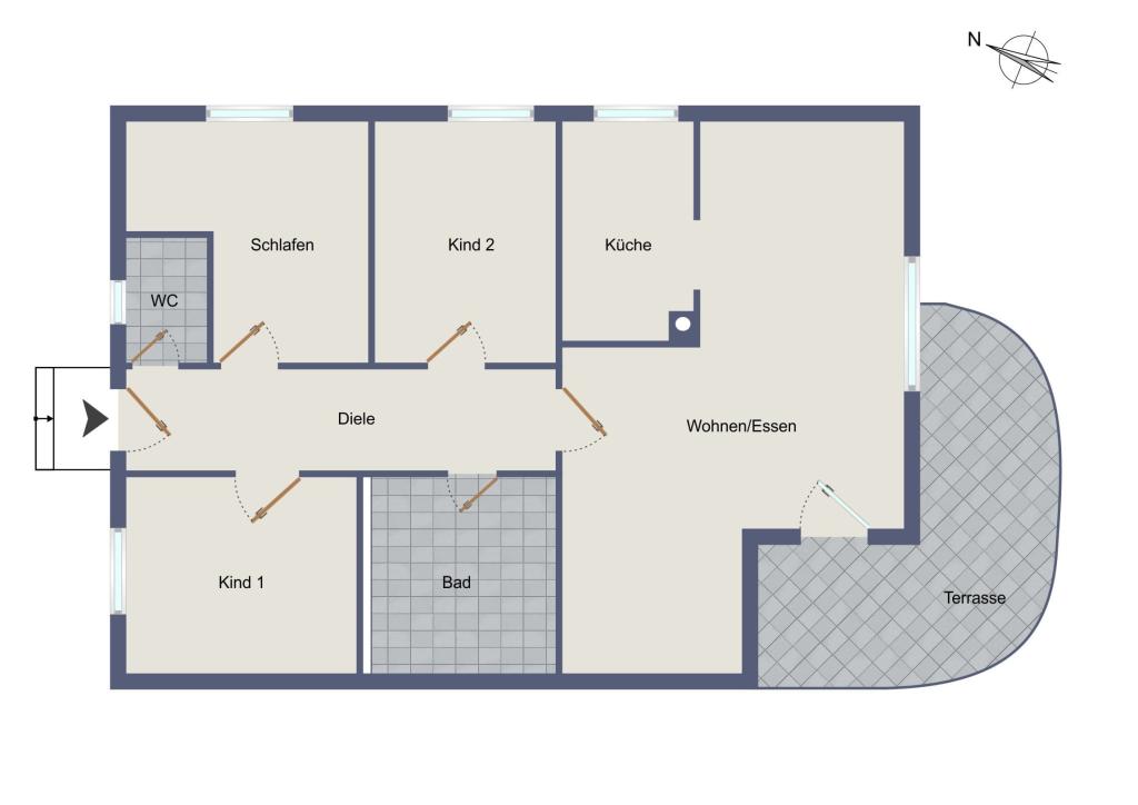
Im Haupthaus stehen Ihnen eine großzügige Wohnküche, ein helles Wohnzimmer mit Zugang zur Terrasse, ein Duschbad mit Tageslicht, das gemütliche Schlafzimmer und der große Abstellraum zur Verfügung.
Im Obergeschoss erwarten Sie dann nochmals drei schöne Zimmer und das große Bad mit Wanne und Dusche.
Der Anbau dient aktuell als Ferienwohnung. Hier gibt es neben drei Schlafzimmern einen schönen Wohn-/Essbereich mit Zugang in den Außenbereich, ein Bad mit Wanne und Dusche und ein Gäste-WC.
Als Bonbon verfügt dieses großzügige Areal noch über ein frei stehendes Einfamilienhaus, welches aktuell an eine ruhige Einzelperson vermietet ist.
Ein toller Wohn-/Essbereich mit großem Erker, ein innen liegendes Duschbad und ein kleiner Kochbereich empfangen Sie im Erdgeschoss. Das Obergeschoss bietet ein kuscheliges Schlafzimmer mit angrenzendem Bürobereich.
Das Grundstück erreichen Sie über eine eigene Zufahrt, sodass Sie die Ruhe in schöner Feldrandlage genießen können.


Bausubstanz & Energieausweis

A+

A

B

C

D

E

F

G

H

Baujahr
1993
Objektzustand
Gepflegt
Letzte Modernisierung
2022
Wesentlicher Energieträger
Erdgas schwer
Heizungsart
Etagenheizung
Energieausweis
liegt vor
Energieausweistyp
Verbrauchsausweis
Ausstellungsdatum
29.06.2022
Gültig bis
28.06.2032
Energieeffizienzklasse
D

Ausstattung

Individuelle Ausstattungsmerkmale:



  • Mietwohnung

  • Ferienwohnung


Lagebeschreibung

Kappeln ist eine zauberhafte, aus der TV- Serie „Der Landarzt" bekannte Stadt, die direkt am Ostseefjord Schlei liegt. Aktuell leben ca. 8600 Einwohner in dem maritimen Ort. In nur wenigen Minuten erreichen Sie die Marina von Port Olpenitz, die tolle Freizeitmöglichkeiten am und auf dem Wasser ermöglicht. Kappeln selbst bietet eine Vielzahl an Einkausmöglichkeiten, Ärzten, Schulen und Kindergärten sowie kulturelle Angebote. In ca. 50 Minuten erreichen Sie Flensburg über die B 199 oder Eckernförde über die B203.
Ein über die Grenzen bekanntes Highlight zu Himmelfahrt bieten die Heringstage - ein Volksfest direkt am Kappelner Hafen. Diverse Sport- und Kulturvereine bieten tolle Angebote zur Freizeitgestaltung.


Sonstige Angaben

Haben wir Ihr Interesse geweckt? Gern übersenden wir Ihnen in Vorbereitung auf eine Besichtigung vor Ort ein vollständiges Exposé mit weiteren Fotos, den Grundrissen, der genauen Anschrift, weiteren Ausstattungsdetails und dem Link zur 360-Grad-Begehung! Machen Sie sich gern vorab einen Eindruck von der Lage und Umgebung - vom Betreten des Grundstücks ohne unsere Begleitung bitten wir jedoch abzusehen; lassen Sie uns gern einen Besichtigungstermin vereinbaren!


Wenn Sie zudem Interesse an einem Vergleichsangebot für eine maßgeschneiderte Finanzierung haben, sprechen Sie uns ebenso an!


Die in diesem Exposé enthaltenen Informationen und Angaben basieren auf den Auskünften des Eigentümers sowie auf den vorhandenen Bauunterlagen. Trotz sorgfältiger Prüfung übernehmen wir für die Richtigkeit, Vollständigkeit und Aktualität der Angaben keine Haftung.


Dieses Exposé dient lediglich der Vorabinformation und stellt kein verbindliches Angebot dar. Änderungen, Irrtümer und Zwischenverkauf bleiben vorbehalten.


Wir freuen uns auf Ihre Anfrage.


Wohnung finden so einfach wie möglich - das ist unsere Mission!

Kostenlose Basic Features

0 € monatlich


  • Individuelles Such-Profil anlegen
  • Suchaufträge speichern
  • One-Klick Kontaktaufnahme

alles anzeigen

Jetzt kostenlos anmelden

Premium Features

19,99 € monatlich


  • Alle kostenlosen Features
  • Smart-Alarm per Whatsapp
  • Deine Chancen checken
  • Wohngegend analysieren

alles anzeigen

Jetzt Premium freischalten

Gewerblicher Anbieter

VR Immobilien eG
Große Straße 18
24392 Süderbrarup

Wohnglück-ID:
Objekt-Nr.:
WGL-787082
7736-Pr