Bauernhaus in Wurmannsquick

Balkon/­Terrasse
barrierefrei
Garten/­-mitbenutzung
Keller
Einbauküche
Garage/­Stellplatz

Attraktiver Vierseithof mit vielfältigen Möglichkeiten für Wohnen mit Pferde- oder Tierhaltung

Anfragen bisher

Premium

Meine Chancen

Premium

Fairer Preis

Premium

2.350.000 €

Kaufpreis

406,58 m²

16 Zi.

Grundriss

84329 Wurmannsquick

Gewerblicher Anbieter

ohne-makler.net
Humboldtstraße 25 A
21509 Glinde

Details

Grundstücksfläche
40.000 m²
Zimmerzahl
16
Haustyp
Bauernhaus
Etagenzahl
3
Bezugsfrei ab
nach Absprache
Anzahl Schlafzimmer
5
Anzahl Badezimmer
5
Anzahl Garage/ Stellplatz
2
Objektzustand
Renoviert
Baujahr
1800

Kosten

Kaufpreis
2.350.000 €
Käuferprovision
keine
Was kostet dein Umzug?

Stellplätze

Stellplatztyp
Freiplatz
Anzahl
6
Stellplatztyp
Garage
Anzahl
2

Objektbeschreibung

Dieser Vierseithof liegt auf einem ca. 40.000 m²großen, teils arrondiertem Grundstück in Niederbayern nahe Eggenfelden und kann Interessenten mit unterschiedlichen Bedürfnissen und Perspektiven ansprechen. Gartenfreunde, Landwirte, passionierte Pferde-oder Tierbegeisterte und alle Freunde großzügigen Wohnens -ob Lebensgemeinschaft oder Familien, welche Generationen übergreifend wohnen möchten - können sich hier verwirklichen. Auch Apartment – oder Teilvermietungen sind durch die gut zugänglichen, sehr einfach aufzuteilenden Räumlichkeiten bei über 400 Quadratmetern Wohnfläche möglich.
Der wunderschön mit Wein begrünte, ursprünglich im 18 Jahrhundert gegründete Hof verfügt über einen abschließbaren, gepflasterten, typischen Innenhof mit bewachsenen Arkaden, welcher idyllische Sitzgelegenheiten ebenso wie eine kleine Rasenfläche und Spielmöglichkeiten für Kinder bietet.
Der gepflegte Hof wird aktuell zum Teil als landwirtschaftlicher Nebenerwerbs-Betrieb mit Pferdezucht und Futtererzeugung genutzt und aktuell von den Eigentümern nebst Familie bewohnt.
Jede Perspektive bietet den Blick ins Grüne, auf Felder, Waldstücke, Koppeln; immer ist ein enger Bezug zu den eigenen Tieren möglich. Zur Selbstversorgung dienen fruchtbare Böden, Obstbäume und ein Garten sowie ein kleines Gewächshaus.
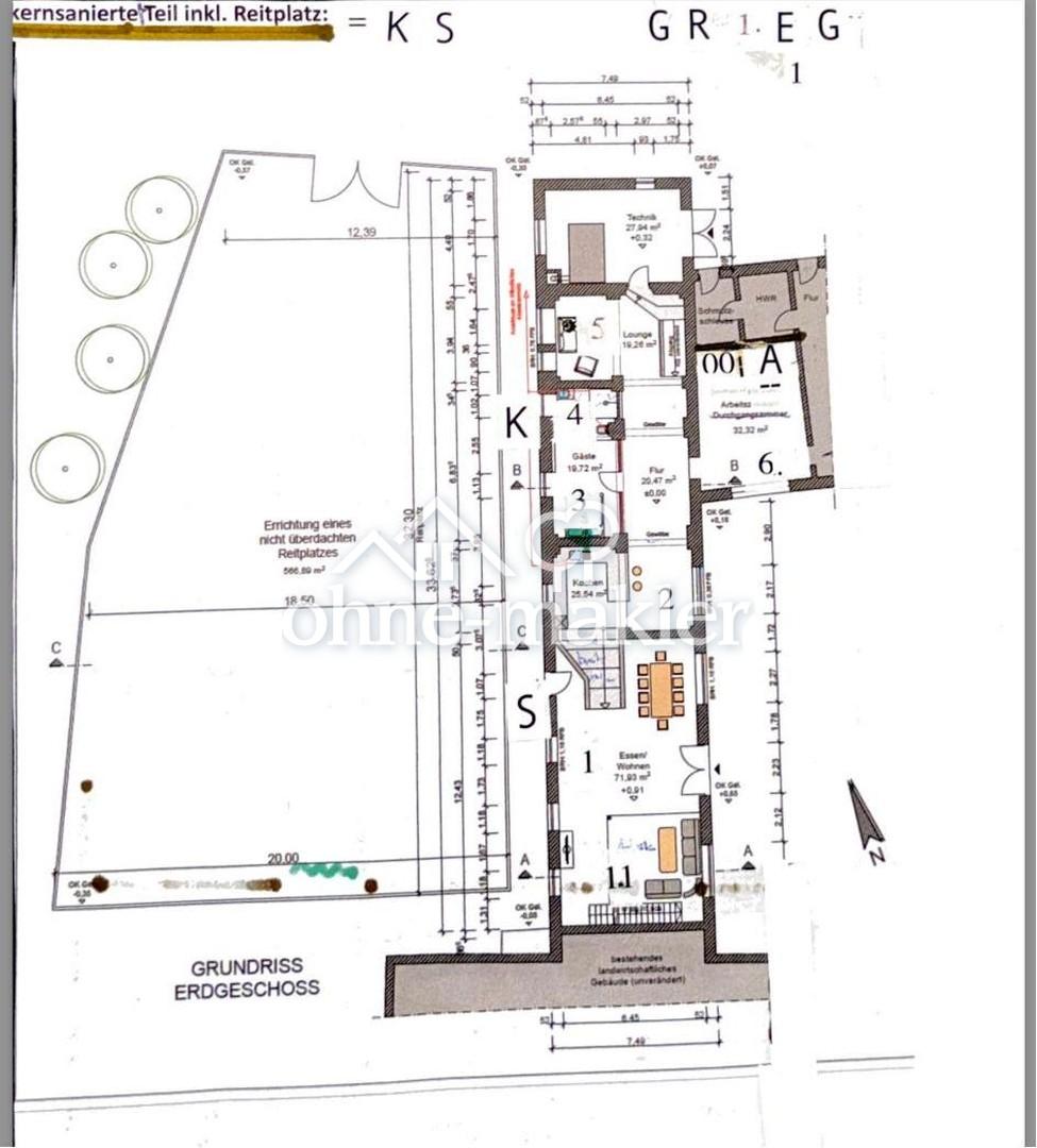
Das Objekt umfasst das ursprüngliche zweigeschossige Haupthaus mit Dachgeschoss, welches die Wohnbereiche I.-VI. und A-H (siehe Grundrisse) beherbergt und das sich winkelförmig anschließende, kernsanierte Gebäude mit Gewölbe-siehe Wohnbereich (1-6).
Auch eine Maschinenhalle, einen Laufstall, das Arkadengebäude, den Boxenstall und die neue Halle mit Vorplatz, Paddocks sowie den Reitplatz beinhaltet dieses Angebot.
Das Gewölbe wurde in 2023 komplett kernsaniert einschließlich Strom-Wasser- Abwasser und Kommunikationsleitungen, mit Lehm- Biowandputz- und Dachdämmungen und ist mit Isolierverglasung ausgestattet.
Der andere Teil des Haupthauses wurde 1996 (alle Holzfenster), 2010 (das Dach) und 2020 (neue Bäder) renoviert.
Das 2020 renovierte, befahrbare Stallgebäude mit Waschplatz und Sattelkammer bietet bis zu 5 Pferden artgemäßen Kontakt und viel Platz. Die Reithalle von 16 x 32 m mit nicht überdachter Verlängerung von 20 x 10 m wurde 2024 fertiggestellt. Sie hat einen qualitativ hochwertigen Boden sowie einen Wasseranschluss und elektrisch absenkbare Fenster.
Östlich davon liegen 2-3 neue teilüberdachte Paddocks mit beheizten Tränken und befestigtem Boden. Außerdem ist ein Lagerraum von ca. 11,61 qm mit Schiebefenster zur darunter liegenden Reithalle neu erstellt worden.


Das Anwesen hat einen eigenen Brunnen, womit der Garten, der Laufstall und der Reitplatz aktuell versorgt werden kann. Es besteht die Möglichkeit eine PVA mit einer Leistung von 40,7 KWP zum zusätzlichen Preis von 60.000 € zu erwerben. Die Anlage bringt aktuell mit einem Vertrag mit dem Eigentümer bis 31.05.2040 einen Ertrag von 1.600€ pro Monat. Nach Ablauf dieses Vertrags kann der Strom vom zukünftigen Eigentümer auch privat benutzt werden, da die passende Leitung im Rahmen der Kernsanierung bis in die Nähe der Stromspeicher bereits gelegt wurde.
Die Substanz sowohl der Wohn- und Nutzflächen als auch der Stallungen wurde von ausgewiesenen Fachleuten als sehr gut bezeichnet.
Für Wärme sorgt die 2021 neu eingebaute Pellet-Zentralheizung mit Warmwasserspeicher, welche sich im kernsanierten Gewölbeanteil des Wohngebäudes befindet.
Durch die Mischung der renovierten und kernsanierten/ neuen Flächen im Wohngebäude wurde ein Primärenergiebedarf von 35,3 kWh/(m2-a) und Endenergiebedarf von 157,4 kWh/(m2-a) kürzlich berechnet, entspricht Klasse E, der Energieausweis gilt bis 2035.


Bausubstanz & Energieausweis

A+

A

B

C

D

E

F

G

H

Objektzustand
Renoviert
Heizungsart
Zentralheizung
Befeuerung
Holz-Pelletheizung
Energieausweis
liegt vor
Energieausweistyp
Verbrauchsausweis
Energieverbrauchskennwert
157 kWh/(m²*a)
Energieeffizienzklasse
E

Ausstattung

Balkon, Terrasse, Garten, Keller, Vollbad, Duschbad, Einbauküche, Gäste-WC, Kamin, Barrierefrei, Parkett, Laminat, Fliesen, Sonstiges (s. Text)


Bemerkungen:
Im kernsanierten Hausteil befindet sich ein stimmungsvolles Ambiente mit allein 72 Quadratmetern Lebens-Raum. Das üppige, mit hochwertigen großen Fliesen inclusive Fußbodenheizung ausgestattete Wohn-Esszimmer (1) mit verglaster Galerie (1.1), einer restaurierten Balkendecke, zwei Sicht-Ziegelwänden, und einer Raumhöhe von knapp 9 Metern bietet einen repräsentativen Rahmen mit doppelter bodentiefer Holz-Glastür und Zugang zum Innenhof oder den Blick auf Bäume und Felder.

Über vier sehr breite geflieste Stufen schließt sich die ebenerdige offene Küche (2) mit Kochinsel und Granitarbeitsplatte; modernen Geräten wie etwa eine eingelassene Dunstabzugshaube an. Die Essecke ermöglicht den Blick auf die Arkaden in den Innenhof mit zahlreichen auch überdachten Sitzgelegenheiten sowie in der anderen Richtung, auf den Reitplatz, der von einer hochwertigen Holz- Einfassung umsäumt ist.
Zum gemütlichen Schlafraum (3) mit ansprechendem Holz- und Fliesenboden, Einbauschrank gehört das en Suite- Bad (4) mit Fenster. Hier findet sich eine Walk-in- Dusche, ein WC mit Bidet Funktion sowie ein V&B Waschtisch mit hochwertigen Armaturen und Unterschrank.
Von der ca. 20 qm großen Lounge (5) aus mit Blick auf den Reitplatz und ins Grüne durch die schönen Holzfenster gelangt man über eine Treppe in den urigen, teilsanierten Weinkeller. Neben der Lounge liegt der ca. 28 qm große Technikraum. Dort ist die moderne Pelletheizung untergebracht, die 2021 installiert wurde und vom darüber liegenden Pellet- Lager befüllt wird.
Der stimmungsvolle Gewölbe- Flur führt aUCH zum Arbeitszimmer (6) von ca. 32 qm. Das exquisite, eigens vom Schreinermeister eingepasste abgerundete Fenster mit Sprossen und vorgelegter breiter Holzfensterbank belichtet diesen ebenfalls mit Gewölbe ausgestatteten Raum. Dieser wunderschöner Platz zum Lesen, Arbeiten, an dem sich ein Gäste-WC modernster Art anschließt, ist auch Zugang zum Eingangsbereich und zur Garderobe des Haupthauses,
Die Räume 2-6 sind barrierefrei. Alle Räume haben Fußbodenheizung, zum Teil mit zusätzlicher Sockelheizung.
Im Haupthaus befindet sich im Erdgeschoss ein zu einem Appartement abteilbarer Bereich mit eigenem Zugang, einer großen Wohnküche (II) mit Küchenzeile und robustem Terracotta- Fliesenboden. Durch zwei große Fenster blickt man in den idyllischen Vorgarten mit Kletterrosen und Pfirsichbaum.
Von der Küche aus gehen Sie in ein Wohn-oder Wohnschlafzimmer mit Ofen- Kamin (I) und einem modernen Bio-Holzboden. Hier ergibt sich ebenso ein toller Ausblick in den Vorgarten und Innenhof. Vom Vorraum und Flur (IV) gelangt man zum Vorratsraum (III) und einem HWR (V) mit Waschbecken sowie ein Bad mit Dusche/ WC (VI) und Waschmaschinen- undTrockner Anschlüssen. In allen Räumen befinden sich Fenster und Heizkörper. Auch hier sind keine Stufen zu überwinden.
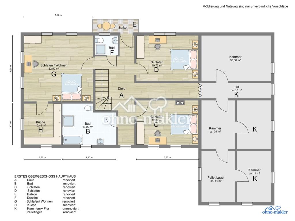
Im 1. OG des Haupthauses sind 3 weitere Zimmer (C, D, G), eine Küche (H) ohne Einrichtung jedoch mit allen Anschlüssen. An das großzügige Wohn-/ Schlafzimmer (G) schließt sich das moderne Duschbad mit Toilette (F) an. Von der breiten Holzbodendiele (A) gehen Sie zum Balkon (E) oder auch ins mit Parkett ausgelegte Zimmer D. Dem gemütlichen Zimmer C gegenüber liegt das wiederum mit Terracotta- Fliesen ausgestattete, großzügige Badezimmer mit Wanne, Dusche, WC und Bidet (B).
Alle Holzfenster haben Isolierverglasung.
Im 1. OG sind noch zusätzliche nicht benutzte und nicht renovierte Räume (K) von ca. 90 qm. Eine der Kammern wird als Pellet- Lager (PL) genutzt. Im Dachgeschoss befinden sich noch große Nutzflächen mit Räucherofen.
Das Haus kann aufgrund des Vorhandenseins von mehreren Eingängen problemlos in 2 – 3 Wohneinheiten geteilt werden.


Lagebeschreibung

Im Ort in 1,5-2,5 km Entfernung gibt es einen Kindergarten, eine Grund- und Mittelschule, eine Bücherei, Allgemeinärzte, eine Bank, ein Elektrofachgeschäft, Gaststätten, Bäckereien, eine Metzgerei, eine Apotheke und einen Discounter. Die Bushaltestelle ist fußläufig zu erreichen, dort verläuft die B20 Richtung Burghausen- mit der längsten Burg Europas und einem interessanten kulturellen Angebot sicher ein Anziehungspunkt ebenso wie das nicht weit entfernte, traditionsreiche Altötting. In Richtung Eggenfelden, welche die größte Stadt im Landkreis Rottal-Inn und 7 km entfernt ist, finden sich alle Einkaufsmöglichkeiten, Restaurants, Autowerkstätten, Baumärkte, Handwerksbetriebe, Friseure, Kosmetik, Kino, Eisdielen, Schwimm-und Sportmöglichkeiten sowie ein renommiertes Krankenhaus. Sie liegen also nah. In beiden sowie in den umliegenden Orten etwa in Pfarrkirchen oder Massing werden Märkte und traditionelle Feste übers Jahr verteilt abgehalten. Unterschiedlichste Traditionsvereine bieten ein abwechslungsreiches Programm. Um Wellness zu betreiben bieten drei renommierte Wellness-und Kurbäder in der näheren Umgebung eine große Auswahl, auch Biergärten und tolle Badeseen schaffen viele Möglichkeiten zur Erholung.
In Eggenfelden findet sich der Regionalbahnhof. Über Mühldorf oder Landshut erreicht man mit der DB oder ÖBB Ziele in Deutschland oder Österreich.
Die Ausfahrt zur A94 ist 18 km entfernt, nach Passau sind es 68 km, nach Salzburg 77km und nach München 100km.
Infrastruktur (im Umkreis von 5 km):
Apotheke, Lebensmittel-Discount, Allgemeinmediziner, Kindergarten, Grundschule, Öffentliche Verkehrsmittel


Sonstige Angaben

Heizungsart: Zentralheizung
Energieträger: Holzpellets


Die Nutzungsmöglichkeiten:
Genießen -wohnen-arbeiten-ruhig leben sind hier im großzügigen Rahmen schon bald umsetzbar. Auf dem nebenliegenden Grundstück ist eine Nachbarsfamilie ansässig, auf den übrigen Seiten sind Felder, Wiesen und Bäume sowie die frühere Dorfstraße die Nachbarschaft.
Auch eine teilgewerbliche Nutzung kann umgesetzt werden.
Nicht zuletzt die Option, Grünland und Ackerflächen selbst landwirtschaftlich zu nutzen oder zu verpachten ist praktikabel genau so wie die unterschiedlichen Möglichkeiten der Pferde-oder Tierhaltung im Lauf- und Boxenstall. Sei es im Winter auf drainierten Auslaufflächen oder in der multifunktionell nutzbaren Bewegungs- und Reithalle oder im Sommer auf gepflegten Koppeln.
Ein Angebot wie dieses ist auf dem Immobilienmarkt sicherlich selten bis gar nicht zu finden: Im neuen und im renovierten Ambiente kann niveauvoll gewohnt werden, zusätzlich kann nach Wunsch und eigenen Fähigkeiten noch weiterer Wohnraum nach eigenem Geschmack gestaltet werden. Ob eine Outdoorküche unter den Arkaden oder die Umnutzung der Lagerflächen oder die Anlage eines Trails um die Koppeln zu erweitern-viele Ideen und Perspektiven für die Zukunft dieser Hofanlage sind denkbar.


Makleranfragen nicht erwünscht. Nach § 7 UWG sind unaufgeforderte Kontaktaufnahmen durch Makler ohne ausdrückliche Einwilligung des Empfängers verboten!


ohne-makler (OM) ist weder Anbieter noch Vermittler der Immobilie. OM betreibt eine Plattform für Immobilieneigentümer, die unter anderem die gleichzeitige Veröffentlichung einzelner Inserate auf mehreren Immobilienportalen ermöglicht. Die Inhalte dieser Inserate werden ausschließlich von Dritten verantwortet. Für die Richtigkeit, Vollständigkeit oder Rechtmäßigkeit der Angaben übernimmt OM keine Haftung. Hinweise auf mögliche Rechtsverstöße können jederzeit gemeldet werden und werden nach Prüfung umgehend bearbeitet.


Wohnung finden so einfach wie möglich - das ist unsere Mission!

Kostenlose Basic Features

0 € monatlich


  • Individuelles Such-Profil anlegen
  • Suchaufträge speichern
  • One-Klick Kontaktaufnahme

alles anzeigen

Jetzt kostenlos anmelden

Premium Features

19,99 € monatlich


  • Alle kostenlosen Features
  • Smart-Alarm per Whatsapp
  • Deine Chancen checken
  • Wohngegend analysieren

alles anzeigen

Jetzt Premium freischalten

Gewerblicher Anbieter

ohne-makler.net
Humboldtstraße 25 A
21509 Glinde

Wohnglück-ID:
Objekt-Nr.:
WGL-786714
381120